Badeprojekte mit einem Ruheraum

Der Entspannungsraum im Bad ist so wichtig wie das Dampfbad. Bei Badeprozeduren wechseln sich die Expositionen mit Hochtemperatursaunen mit Intervallen ab, um den Körper zwischen dem Eintritt in das Dampfbad wiederherzustellen. Ein Ruheraum soll diese Pausen angenehm machen. Wenn Sie planen, ein Bad zu bauen, sollten Sie auf jeden Fall ein Zimmer für die Wiederherstellung reservieren.

Professionelle Beratung wird Ihnen sagen, wie Sie das richtige Projekt auswählen.

Besonderheiten

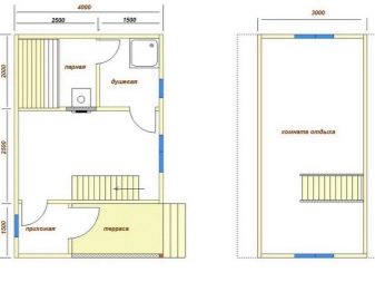
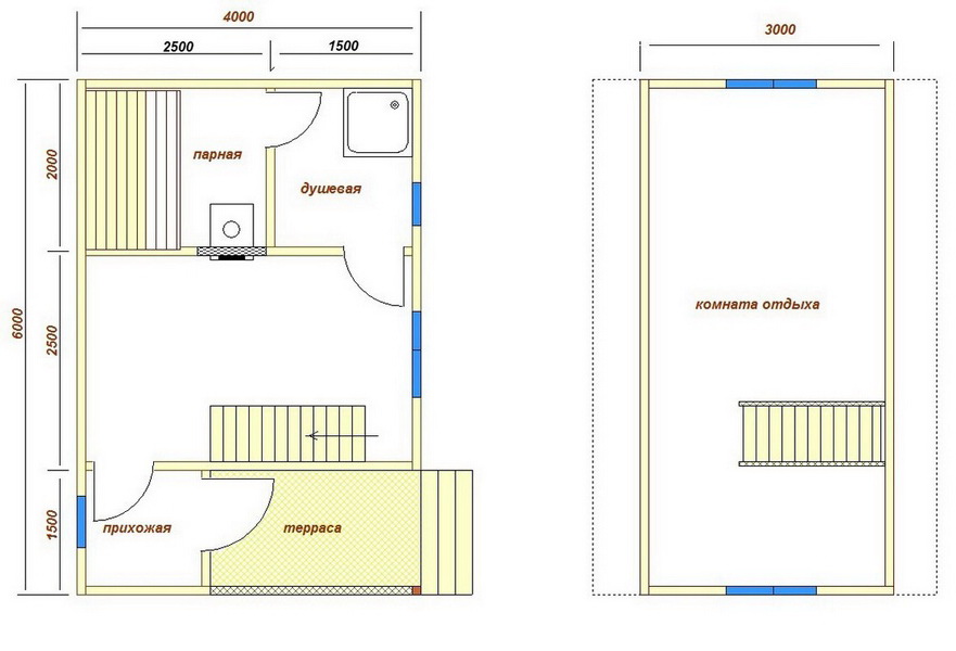
Projekte Bad mit einem Ruheraum kann in drei Gruppen unterteilt werden. Die erste Gruppe sind traditionelle einstöckige Bäder. Sie sind aus kapillaren Baumaterialien mit geringer Wärmeleitfähigkeit gebaut und haben ein Standard-Zimmer-Set: Es gibt ein Dampfbad, ein Duschbad, einen Ruheraum, einen Warteraum und manchmal eine Terrasse.

Der Ruheraum befindet sich im Erdgeschoss neben dem Dampfbad und dem Waschraum und kombiniert die Funktionen einer Umkleidekabine.Dies ist die bequemste Möglichkeit, um die optimale Temperatur in allen Räumen aufrechtzuerhalten, da der Ofen alle angrenzenden Räume mit Dampfzufuhr zum Saunabereich gleichmäßig heizt.

Dieses Layout ermöglicht es Ihnen, den Ofen in das Dampfbad, das nicht immer bequem ist, und in den Ruheraum zu platzieren.

Der Heizer hat eine angenehme Temperatur, und es ist auch leichter, nach dem Anzünden abzuspülen. Moderne, technologisch fortschrittliche, langbrennende Öfen können mit einer Glasscheibe ausgestattet werden, die es Ihnen ermöglicht, das Flammenspiel beim Entspannen zu beobachten, eine angenehme Kaminatmosphäre zu schaffen und den Bewohnern des Raumes eine lebhafte Wärme zu verleihen. Ein einfaches Layout enthält jedoch alles, was für Badeprozeduren benötigt wird, hat eine große Variation in der Fläche.

Die Mindestfläche des Gebäudes - von 16 Quadratmetern. MeterDas ist praktisch für kleine Bereiche, die maximale - auf Wunsch des Eigentümers. Diese Option erfordert aufgrund der Energieintensität der Heizung keine großen Kapitalinvestitionen.

Die zweite Gruppe - Projekte mit einem Ruheraum im Dachgeschoss oder im zweiten Stock. Es erfordert die Konstruktion der zweiten Etage oder DachisolierungDies wird einen zusätzlichen Materialverbrauch mit sich bringen, das Fundament muss durch eine Erhöhung der Traglast verstärkt werden. Diese Option ist praktisch für einen kleinen Bereich des Gebäudes.

Im Erdgeschoss gibt es ein Ankleidezimmer, Ankleideraum, Dampfbad, Waschraum. Auf der zweiten - ein Ruheraum mit oder ohne Balkon. Platzzuteilung für eine Treppe wird benötigt. Schöne Wendeltreppe kann das Innere des Bades schmücken.

Die dritte Gruppe von Projekten - mit der Auferlegung eines Ruheraums auf der Terrasse. Dieses Layout ist praktisch für den Sommer. In der kalten Jahreszeit muss die Terrasse glasieren und über das Heizsystem nachdenken. Diese Anordnung des Ruheraums bietet jedoch viel Raum für die Ausführung von Designlösungen.

Ein Panoramablick auf die Landschaft verleiht den Momenten der Entspannung ein ästhetisches Vergnügen.

Die Wahl der Planung hängt von der Saisonalität der Badnutzung ab. Verwenden Sie für das ganze Jahr die erste und zweite Gruppe von Projekten. Im Sommer ist es ausreichend, einen Ruheraum unter einem Baldachin mit flexibler Verglasung aus Folie oder Polycarbonat für eine Budget-Option zu haben.

Von großer Bedeutung ist die Verfügbarkeit von freiem Platz auf dem Gelände, und wenn es nicht genug ist, dann ist das Aufrichten des Ruheraums auf den Dachboden ein guter Ausweg. Das Heizen der zweiten Etage in der kalten Jahreszeit benötigt einen Luft- oder Wasserkreislauf.. Die Installation eines langen Ofens mit einem Konvektor im Erdgeschoss kann dieses Problem lösen.

Die Platzierung des Bades auf der Baustelle muss den Standards des Brandschutzes und der Benutzerfreundlichkeit entsprechen. Die Fenster des Ruheraums sind wünschenswert, um auf eine attraktive Aussicht zu konzentrieren.. Es ist schön, vor deinen Augen schöne Landschaften zu sehen, und nicht einen Zaun oder die Scheune eines Nachbarn.

Es ist ratsam, einen erhöhten Standort für gute Belüftung und Wasserabfluss zu wählen.. Eine spektakuläre Ergänzung kann die Nähe eines künstlichen oder natürlichen Reservoirs sein.

Besondere Aufmerksamkeit wird den Materialien für den Bau von Bädern geschenkt. Traditionell wird Naturholz in Form von Holz oder gerundeter Linde, Espe oder Zedernholz bevorzugt.

Kiefer ist erschwinglicher, hat ein schönes Muster aus verknoteten Holzfasern und ist ein beliebtes Badehaus auf dem Land. Sein Nachteil ist die poröse Struktur des Holzes, die seine Leistung von der Hitze und der hohen Feuchtigkeit stark ändert, deshalb im Dampfraum und der Duschkiefer ist nötig es die Latte des harten Holzes zu legen, und Für einen Ruheraum wird eine Kiefer mit ihrem angenehmen Geruch und ihrer ästhetischen Erscheinung die beste Lösung sein.

Ziegel ist ein teureres Material, aber es hat die besten Indikatoren für die Haltbarkeit, Beständigkeit gegen Temperaturextreme.

Budget Konstruktion kann aus Schaumstoffblöcken errichtet werden. Der Bau eines Blockbades kann auch ohne besondere Kenntnisse von Hand gemacht werden.

Der Innenraum ist mit einem Blockhaus ummantelt, das mit Fliesen oder Naturstein verkleidet ist.

Die Dekoration des Ruheraums geht von einer bestimmten Stilrichtung aus, je nach Ausführung werden Veredelungsmaterialien ausgewählt.

Feinheiten des Designs

Ein Bad selbst zu entwerfen ist eine aufregende Erfahrung. Um dies zu tun, füllen Sie Papier, Bleistift und Lineal auf.

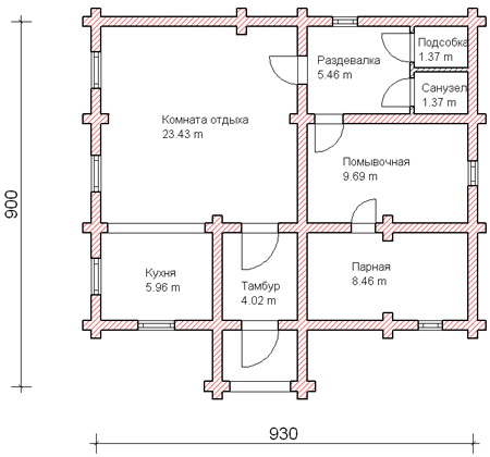
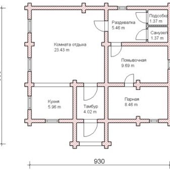
Für eine Familie von 4-5 Personen und ein paar Gästen gilt eine 6x6 Meter große Sauna mit Loft als optimale Größe.. Im Erdgeschoss gibt es eine Eingangshalle, ein Dampfbad, ein Duschbad mit Toilette, einen Ruheraum oder ein Wohnzimmer. Die Lounge kann mit einer Küche ausgestattet werden, und die zweite Etage ist für Freizeit und zusätzliche Plätze für Gäste oder Familienmitglieder reserviert. Der Eingangsbereich des zweiten Stocks mit einer Fläche von 18 Metern kann von einem Studio oder einem Billardzimmer eingenommen werden. Dahinter sind zwei symmetrische Schlafzimmer oder Kinderzimmer für 9 Quadratmeter. Meter

Das Funktionsbad erweitert sich deutlich und Sie müssen dafür kein großes Haus bauen. Kompaktes Layout mit Bad erfüllt die Bedürfnisse der durchschnittlichen Familie in einem Landurlaub.

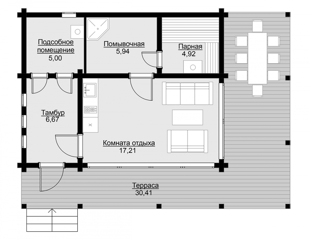
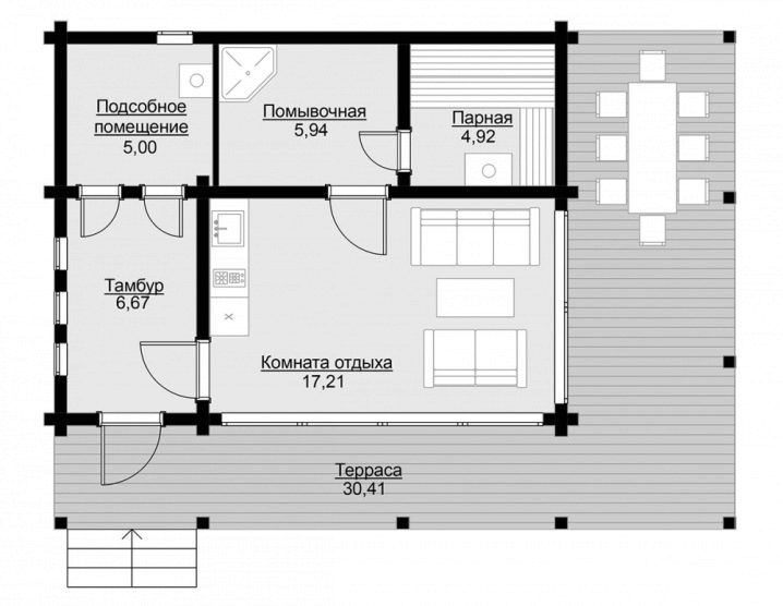
Mit Terrasse

Eine Sauna mit einer Terrasse ist eine ausgezeichnete Option für Sommer Mahlzeiten im Freien nach dem Bad Verfahren. Barbecue-Grill kann auf der Website vor der Badewanne platziert werden oder betreten Sie den Grillplatz in der Veranda. Um dies zu erreichen, sollte die Größe der Terrasse erhöht werden, um den freien Zugang zum Röster zu gewährleisten und den Rauch von Esstisch und Fenstern zu vermeiden.

Der Mindestabstand zwischen dem Ofen und dem Tisch muss mindestens 2 Meter betragen. Das Kohlebecken ist aus Metall oder ein Steingrill aus Ziegel mit einem Schornstein. Für ein solches Mangal errichten Sie ein separates Fundament, das in der Entwurfsphase berücksichtigt wird.

Der Boden der Terrasse sollte bei offener Terrasse aus Pflastersteinen oder Sandstein bestehen. Der Holzboden wird auch für die verglaste Terrasse verwendet.. Die Verglasung besteht aus Aluminium- oder Kunststoffrahmen. Kunststoffrahmen dienen zur Warmverglasung. Leichte Aluminiumkonstruktionen schützen vor dem Wetter, aber die Temperatur im geschlossenen Raum ist nur ein paar Grad höher als draußen.

Eine Sauna mit Kohlenbecken und Panoramafenstern auf der Veranda wird nach der Arbeit ein Anziehungspunkt für die Familie.

Mit Schwimmbad

Die Vorteile von Badeprozeduren werden mit der Anordnung des Pools oder des Gusses im Ruheraum viele Male zunehmen. Der Pool befindet sich in der Nähe der Dusche.

Die Poolschüssel besteht aus Beton und ist mit Fliesen verkleidet.

Die Fliese wird gewählt, um der Gesamtdekoration des Ruheraums zu entsprechen. Orientalischer Geschmack wird ein florales Ornament und Mosaik geben. Für das Bad im russischen Stil geeignete Stein-, Ziegel- und Holzseiten.

In den einstöckigen Bädern gestaltet sich oft ein Komplex von der Terrasse mit einer Schrift unter einem Baldachin. Die Schrift ist aus Holz und auf einer Holzplattform im Freien platziert..

In der japanischen Version ist die Heizung der Schrift mit elektrischen Heizelementen ausgestattet, die in das Gehäuse eingebaut sind. Kombiniert man einen Naherholungsraum mit einem Bad, wird zum Sommerbaden ein fertiger Rahmen aufgestellt oder ein stationärer Pool errichtet, Liegestühle oder Liegen sind in der Nähe.

Das Reservoir kann eine strenge geometrische Form haben oder der natürlichen Form nahekommen. In diesem Fall ist die Küste mit Kieselsteinen und Pflanzen geschmückt: der Wirt, Astilba, Getreide. Badehaus mit einem Pool auf der Terrasse ist vor neugierigen Blicken mit einer Hecke geschlossen von blühenden Sträuchern oder Reben auf Stützen.

Für einen integrierten Erholungsraum bedarf es einer guten Beleuchtung, wie sie am Abend genutzt wird.

Die Beleuchtung des Territoriums mit Strom erfolgt in Gegenwart von Kommunikation, eine wirtschaftlichere Option - Beleuchtung mit LEDs oder Taschenlampen auf Solarbatterien.

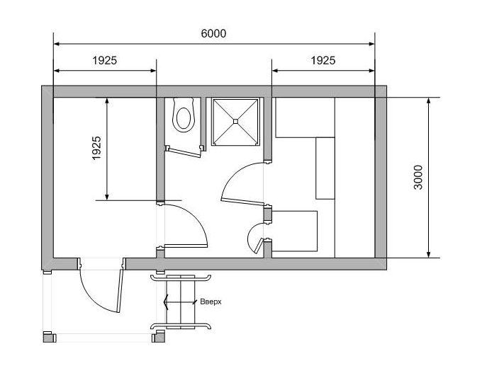
Kleines Zimmer

Kleine Bäder können nicht eine große Anzahl von Zimmern bieten, so oft im Ruheraum eine Dusche haben. Bei der Dekoration von Räumen mit einer solchen Planungslösung ist es notwendig, die erhöhte Feuchtigkeit zu berücksichtigen und geeignete Materialien auszuwählen: Fliesen, Kunststoffplatten, Natur- oder Kunststein.

Die Dusche muss vom Aufenthaltsbereich mit einer Trennwand aus Glas oder Kunststoff umzäunt sein, damit das Spray den Rest nicht behindert.

Möbel werden vorzugsweise aus feuchtigkeitsbeständigen Materialien bezogen. Die richtige Auswahl an Oberflächen wird die Benutzung der Dusche angenehm machen, und es wird angenehm sein, im Ruheraum zu sein.

Design

Das Design des Ruheraums wird durch den gewählten Stil bestimmt.Für die Fertigstellung des Bades ist es besser, natürliche Materialien zu wählen, die feuchtigkeitsresistent sind. Es ist praktisch, alle Räume sauber zu halten, wenn der Raum nicht mit unnötigen Gegenständen bedeckt ist und die Oberflächen leicht zu reinigen sind. Das Design des Ruheraums wird durch den gewählten Stil bestimmt.

Land oder russischer Stil

Richtung beinhaltet die Verwendung von natürlichem Holz zur Verkleidung von Wänden und Böden. Holz wird mit speziellen Verbindungen gegen den Pilz behandelt und mit Öl oder Wachs bedeckt. Die natürliche Farbe des Holzes verleiht dem Innenraum einen hellen Ton, der den Raum optisch erhöht.

Es sieht interessant aus, in der Wandverkleidung unbesäumte Bretter zu verwenden, die von Rinde gereinigt und poliert werden. Der Raum bekommt brutale Züge.

Diese kostengünstige Oberfläche dient der Wärmedämmung und dem ästhetischen Akzent.

Die Wände können mit Nadelbäumen verkleidet und mit Schnitzereien verziert werden.

Die Möbel in einem solchen Aufenthaltsraum sind mit ihren eigenen Händen aus massivem Kiefernholz oder sie werden fertig gemacht und ergänzen das Dekor mit Reliefbildern auf Holz mit einem Bad Thema. Log Wände sehen schön aus als ein Symbol der traditionellen russischen Kultur. Für Budget-Optionen verwenden Sie ein Blockhaus aus Kunststoffverschiedene Holzarten imitieren.

Skandinavischer Stil

Die optimale Kombination aus Funktionalität und Einfachheit. Das Finish wird dominiert von Weiß mit braunen oder schwarzen Designelementen..

Das Hauptmaterial ist Holz und Glas. Alle Farben sind ruhig, überall kann ein geometrisches Thema verfolgt werden. Es ist angebracht, einen natürlichen oder künstlichen Stein zu verwenden, der ursprünglich wie eine Platte aus Holzschnitten aussieht. Die ganze Situation ist praktisch und dauerhaft.

Chalet-Stil

Eine der malerischsten Einrichtungsoptionen für den Ruheraum. Das Zentrum der Komposition ist der Kamin und die Landschaft vor dem Fenster. Es ist besser, Windows für eine bessere Ansicht zu installieren..

Die Einrichtung des Zimmers ist angenehm für Gespräche und ruhigen Zeitvertreib. Bequeme Möbel, Stühle mit Armlehnen, an den Wänden hängen Jagdtrophäen und Gemälde mit Jagdszenen. Bei der Gestaltung des Chalet-Stils werden weitverbreitete Teile aus Holz verwendet, die dem Innenraum Festigkeit und Rustikalität verleihen. Holz und Stein - die wichtigsten Materialien für die Dekoration der Lounge im Chalet-Stil.

Minimalismus und Hightech

Modische moderne Stile in der Gestaltung des Bades werden durch diese Richtungen dargestellt. Der Schwerpunkt liegt auf Ergonomie und Funktionalität, natürliche Materialien werden zur Hauptdekoration des Interieurs.

Das Farbschema ist sehr hell - Weiß, Beige, Stahl kombiniert mit transparenten Glasflächen und unbehandeltem Beton oder Mauerwerk. Weiße moderne Sanitäranlagen, ausgestattet mit der neuesten Technologie, schaffen ein energetisches und komfortables Klima im Ruheraum.

Japanischer Stil

Bad in diesem Stil ist lakonisch und streng. Der Fokus liegt auf der Wahl von Holz für den Boden, da die Sitze niedrig sind oder auf dem Boden liegen. Es ist wünschenswert, die Wände in der Farbe von Papyruspapier zu malen. Die Einrichtung und Designs enthalten Bilder von Kirschblüten oder Berglandschaften. Die minimalste Einstellung.

Von großer Bedeutung ist die Organisation des Lichts und die Schaffung einer angenehmen Umgebung für Meditation und geistige Ruhe.

Orientalischer Stil

Es hat eine lange Geschichte von Hamam oder türkische Sauna. Sie können versuchen, das sanfte Glück einer entspannten Ruhe nach dem Bad zu Hause mit Hilfe von Keramikfliesen und Mosaiken mit zu reproduzierenBlumenverzierung.

Ein unentbehrliches Attribut eines Aufenthaltsraums ist ein Schwimmbad.

Seine Seiten sind mit kleinen Fliesen ausgelegt, Möbel können auch mit einem Mosaikfliesenmuster verziert werden. Glatte Linien, arabische Motive im Design, leuchtende Farben, große bequeme Sofas mit vielen Kissen sind die Kennzeichen orientalischer Innenausstattung.

Klassischer Stil

Dieser Stil hat sich zu einer universellen Lösung für die Schaffung eines schönen Innenraums mit Budgetmitteln entwickelt. Dies ist ein unkompliziertes und intuitives Finish.

Es wird angemessene und historische Gegenstände des bäuerlichen Lebens, und bequeme moderne Möbel sein.

Beige Palette, offenes Feuer wird diesen Raum zu einem angenehmen Ort für Abendtee nach einem Bad machen.

Beispiele für fertige Gebäude

Sauna mit Grillterrasse und Swimmingpool.

Bad mit Terrasse und Dachboden mit Balkon.

Der Komplex von Bädern, Pavillons für Barbecue und Schwimmbad unter einem Glasdach.

Einen Überblick über das Badprojekt mit einem Ruheraum finden Sie im folgenden Video.

Kommentare
 Kommentarautor

Die Küche

Kleiderschrank

Wohnzimmer