Bad der Blöcke: die Vor- und Nachteile

 Bad der Blöcke: die Vor- und Nachteile

Heute findet man selten ein Privathaus ohne Bad, Sauna oder Schwimmbad. Je nach Wohnort entscheiden sich unsere Landsleute, ihre Website für sich selbst und ihre Präferenzen zu füllen. Der Bau des Bades ist heute einer der beliebtesten Prozesse.

Es ist ziemlich mühsam und komplex. Aber auch ein Neueinsteiger kann in seiner Gegend eine ordentliche Konstruktion bauen, wenn er die grundlegenden Empfehlungen und Schritt-für-Schritt-Anweisungen befolgt.

Besonderheiten

Zuvor wurde das Hauptmaterial für den Bau eines Bades als Baum betrachtet. Häuser wurden auch daraus gebaut. Heute hat sich die Situation etwas geändert. Materialien der neuen Generation dringen sukzessive in den Baumarkt ein. Unter ihnen - eine Vielzahl von Bausteinen.Bad mit porösen Wänden - klingt auf den ersten Blick sehr seltsam.

Immerhin ist für diese Konstruktion eine sehr wichtige Hydro- und Wärmedämmung erforderlich. Ansonsten ist es überhaupt kein Bad. Aber das Hauptmerkmal eines solchen Gebäudes aus Blöcken kann als einmalige Gelegenheit bezeichnet werden, ein fast monolithisches Haus mit glatten Wänden in wenigen Tagen zu bauen.

Blöcke sind meistens für den Bau von niedrigen Gebäuden vorgesehen. Das Maximum, was sie tun können, ist ein einstöckiges Haus mit einem Dachboden. Um das Material für das zukünftige Bad genau zu bestimmen, achten Sie auf die positiven und negativen Seiten der Blockstrukturen.

Vorteile und Nachteile

Aufzählen die Vor- und Nachteile von Blöcken in den Badwänden können eine lange Zeit sein. Jeder findet seine Qualitätsunterschiede in diesem Material sowohl in guter als auch in schlechter Form.

Dennoch ist es angenehmer, mit den Profis zu beginnen:

  • Schaumstoffblöcke haben überhaupt keine Schrumpfung;
  • das Bad ist sofort nach dem Bau, der externen und internen Konstruktion und der Installation des Ofens betriebsbereit;
  • Mindestlaufzeit der Konstruktion;
  • die Kosten der fertigen Struktur sind zweimal niedriger als ein Holzblock oder ein Mauerwerk;
  • die Abwesenheit von schädlichen Chemikalien bei der Herstellung von Betonblöcken und folglich die Abwesenheit von unangenehmen Gerüchen;
  • Geringes Gewicht des Materials, wodurch das einfache Fundament einfach zu verlegen und zu verwenden ist;
  • besitzt hohe hitzeabweisende Eigenschaften;
  • nicht anfällig für Schimmelpilze, Pilze oder andere Mikroorganismen;
  • die Dicke der Wände ist erfreut, dass Sie nur einen Block auf einmal verwenden können, dies wird ausreichen, um einen warmen, komfortablen Raum zu schaffen.

Aber in einem Faß Honig oft einen Löffel Teer. Daher beachten wir die Nachteile:

  • Wenn die Blöcke nicht mit einer speziellen hydrophoben Lösung behandelt werden, können sie leicht Feuchtigkeit aufnehmen. Sie im Winter, auch unter der Bedingung der doppelten Isolierung, kann die Wände des Bades verhärten und verderben. Das Design kann einfach bröckeln.
  • Wenn Betonblöcke in einem solchen Gebäude mit hoher thermischer Leistung verwendet werden, besteht ein Problem der Kondensation an den Wänden.

Die meisten Mängel von Schaumblöcken können korrigiert und vermieden werden, indem auf zusätzliche Dampf- und Wasserabdichtungsmittel zurückgegriffen wird. Und wählen Sie auch die Art des Materials mit einer minimalen Anzahl von Poren in der Struktur.

Arten von Materialien

Die Anzahl der verschiedenen Bausteine ​​ist heute einfach riesig. Es scheint, dass die Hersteller miteinander konkurrieren und mehr und mehr neue Sorten schaffen. Versuchen wir, diese Vielfalt zu verstehen, indem wir die beliebtesten auswählen.

Porenbeton

Es ist ein Betonblock mit einer porösen Struktur. Seine Bestandteile: Zement, Quarzsand und Schaummittel. Dauerhafte Schaumblöcke aus Porenbeton sind ein praktisches Material für den Bau von niedrigen Häusern.

Der bekannteste Hersteller von Gasblöcken in Russland ist die Marke "Insi". Sie charakterisieren ihr Material als qualitativ neues, praktisches und vielseitiges Muster.

Ein weiteres Unterscheidungsmerkmal des Gasblocks kann die Tatsache sein, dass Porenbeton immer noch sehr häufig beim Bau von innerbetrieblichen Trennwänden verwendet wird.

Die Schalldämmungseigenschaften sind den Ziegeln natürlich ein wenig unterlegen, aber sie sind viel stärker als die der Trockenbauwände.

Schaumbeton

Dieses Material hat eine ähnliche Struktur wie das vorherige. Aber es hat weniger Gewicht und verbesserte Wärmedämmung. Ein anderes sehr wichtiges und großes Plus von Schaumbetonblöcken ist die erhöhte Wasseraufnahme, die besonders wichtig für den Bau eines Bades ist.Und hat auch einen niedrigeren Preis im Vergleich zu den Kosten von Porenbetonsteinen.

Claydit

Einer von seinem Namen sagt über seine eigene Zusammensetzung. Es hat eine geringe Wärmeleitfähigkeit, das heißt, es ist ein ausgezeichnetes Werkzeug für den Bau der Außenwände eines Gebäudes. Es hat die dichteste Struktur und geringe Masse. Es ist mit Hohlräumen, Nischen innerhalb des Körpers des Blocks gemacht.

    Und ein paar mehr Materialien:

    • Herstellungsprozess Gas Silikat Blöcke ermöglicht es, sie von allen Seiten absolut gleich groß zu machen, was echten Perfektionisten Freude bereitet. Die Zusammensetzung enthält auch Kalk, der die Blöcke in weiß malt, verdichtet die Struktur. Diese Art von Blöcken erfordert eine obligatorische Abdichtung.
    • Mit einem anderen sehr beliebten Schaumstoff auf einmal - Schlackenstein - Experten empfehlen dringend nicht. Unter dem Einfluss erhöhter Temperatur beginnt dieses Rohmaterial toxische Gase freizusetzen.
    • Das Vorhandensein von Holzspänen in Holzbetonsteine Es verleiht diesem Baustoff eine hohe Wärmedämmung, entzieht jedoch der Feuchtigkeitsbeständigkeit vollständig.Wie Holz müssen sie antiseptisch behandelt werden und eine verbesserte Wasserdichtigkeit erzielen. Ansonsten können große Sägespäne, die zu Holzbetonsteinen gehören, anfangen zu verfaulen.

    Heute in der Konstruktion verwendet eine große Anzahl von verschiedenen Materialien. Die beliebtesten sind oben beschrieben.

    • Ich würde gerne weitere Eigenschaften separat notieren Sandsteinbesteht aus einer Mischung aus Sand, Zement und Wasser. Durch seine Qualitäten ist es ein bisschen wie die Lösung, die verwendet wird, um einen Streifen für ein niedriges Gebäude zu machen. Ziemlich feuchtigkeitsbeständig, preiswert und einfach zu bedienen.
    • Besonders hervorzuheben ist der relative Anteil des Gas-Silikats - Doppelblock. Es ist eines der umweltfreundlichsten Materialien für den Bau von Wohngebäuden. Die Zusammensetzung des Doppelblocks umfasst: Wasser, Portlandzement, Kalk, Aluminiumpulver und Asche. Seine Bequemlichkeit liegt in dem geringen Gewicht und dem Vorhandensein von Einsteckschlössern, die die Struktur maximal der monolithischen annähern.

    Projekt

    Wie beim Bau irgendeines anderen Gebäudes sollte das Design des Bades gewissenhaft und verantwortungsvoll angegangen werden. Der erste Schritt besteht darin, einen Plan für Ihr Projekt zu erstellen.Der Vorteil der Konstruktion der Blöcke ist, dass sie auch für die kleinsten - Zwei-oder Drei-Zimmer-Bad geeignet sind.

    Gleichzeitig erlaubt die erhöhte Wärmedämmung der Bausteine ​​eine Erweiterung zum Haupthaus oder zum Landhaus. Also haben Sie keine Angst, neben der Garage zu baden. Sie stören sich überhaupt nicht.

    Bevor Sie mit dem Bau beginnen, sollten Sie die gebräuchlichsten und erfolgreichsten Zeichnungen von Standardgrößen in Betracht ziehen.

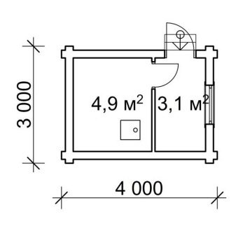
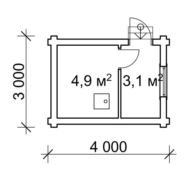
    • Um ein kleines Design mit maximalem Komfort unterzubringen, müssen Sie alles richtig machen. Gleichzeitig ist sowohl die externe als auch die interne Planung sehr wichtig. Die Mindestgröße des Dampfbades ist ein 4 x 3 m Haus, hier können Sie ein kleines Zweizimmerhaus bauen, in dem das Dampfbad sehr erfolgreich mit Waschraum eingerichtet ist und der Ruheraum auch als kleine Ecke zum Aufbewahren von Badzubehör genutzt werden kann. Ein solches Projekt zeichnet sich trotz seiner geringen Größe durch hohe Funktionalität aus. Bad 3x4 m kann sogar auf einem kleinen Grundstück oder an der Hütte angebaut werden.
    • Die nächste beliebte Blockbadgröße ist etwas größer - 3 mal 5 Meter.Nur zwei Zimmer sind ebenfalls vorhanden. Wie in der ersten Ausführungsform ist das Dampfbad benachbart zu der Spüle ohne eine Trennwand und nimmt eine Fläche von 9 m² ein. Die Eingangshalle ist nur 6 Plätze. Zur gleichen Zeit ist das Bad mit allem ausgestattet, was Sie brauchen: eine Dusche mit Abfluss, ein Herd mit einem Warmwasserspeicher und Regale, in der Regel Etagenbetten.
    • Ein weiteres Projekt eines Bades von 3x5 M. Hier können Sie trotz des kleinen Platzes schon drei Räume machen. Überlegen Sie, wie dies erreicht wurde. Es gibt ein komfortables Wartezimmer - ein Ruheraum. Jetzt ist es unter 9 m² gegeben. Dampfbad und Waschbecken haben Abmessungen von 4 und 2 Quadratmetern.
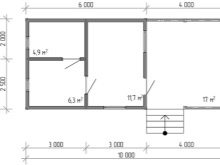
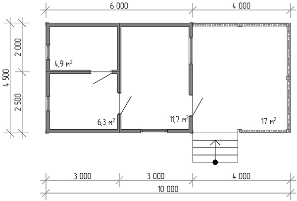
    • Das Beispiel eines viereckigen Bades von 4 mal 4 Metern erlaubt es, alles an Orten anzuordnen und ist absolut geometrisch genau. Die gleichen drei Zimmer, wie in der dritten Version. Nur das Dampfbad und das Waschbecken haben diesmal die gleiche Fläche von 4 m², und das Wartezimmer mit dem Gästebereich befindet sich auf 8 Plätzen. Ein Blockbad von 4x4 m modernen Meistern schafft es, sogar mit einer Mansarde zu machen. Aber es lohnt sich, dies schon in der Phase der Grundlegung für die entsprechende Höhe des Gebäudes zu tun.
    • Bäder, groß, tun - ein Vergnügen. Zum Beispiel eine komfortable Größe von 5x4 m.Hier können Sie auf die offene oder geschlossene Terrasse gehen und das Dachgeschoss mit der Anordnung eines Schlafbereichs sicherer planen.
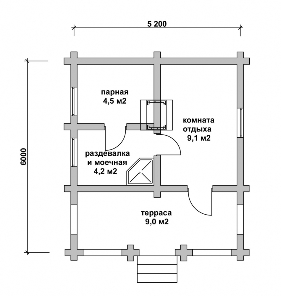
    • 6x4 m - die beste Option für ein Bad auf einem großen Grundstück. Dieses Design sieht gut aus als ein separater Raum. Die Hauptsache ist, dass alle Hauptkommunikationen dorthin gebracht werden und so reibungslos wie möglich arbeiten. Stellen Sie sich ein Projekt vor, das problemlos eine Firma mit 6 Personen gleichzeitig aufnehmen kann. Das Bad ist auch mit einer Außenterrasse ausgestattet. Alle Räume sind isoliert. Wasch- und Dampfraum - 4 qm. Gästebereich + Wartezimmer - 8 m², und eine Terrasse - 8 Plätze. In der warmen Jahreszeit können Sie nach dem aktiven Segelflug fast in der Natur bleiben.

    Für Bäder aus Blöcken großer Flächen werden originelle und geräumige Projekte zur Verfügung gestellt. Zum Beispiel kann ein quadratisches Gebäude mit einer Fläche von 6 bis 6 Metern als vollwertiges Haus für Outdoor-Aktivitäten betrachtet werden. Ein Bad von 10x4 m kann sicher so angeordnet werden, dass mehr Etagenregale Platz finden.

    Mit besonderer Aufmerksamkeit für die Gestaltung des zukünftigen Gebäudes gehen wir zur Organisation des Innenraums über.In der Planungsphase ist es auch sehr wichtig, über die Füllung des Bades und die Lage aller wichtigen Komponenten des Interieurs zu entscheiden.

    Design

    Die ästhetische Komponente in der Inneneinrichtung des Bades ist sicherlich wichtig. Das Design, streng nach den Wünschen des Eigentümers gemacht, ist nicht nur der Stolz des Hausbesitzers, sondern auch eine Bedingung für Komfort während des Betriebs. Bei der Planung bestimmter interner Inhalte sollten jedoch allgemeine Empfehlungen berücksichtigt werden.

    Das am häufigsten verwendete Material für jedes Bad ist Holz. Für das Innere des Dampfbades ist es üblich, verschiedene Auskleidungen zu verwenden, wobei Linden- und Lärchenbretter am meisten bevorzugt sind.

    Es wird nicht empfohlen, Kiefer, Faserplatten oder Spanplatten, Linoleum zu verwenden, da diese Materialien beim Erhitzen giftige Substanzen abgeben.

    Waschbecken und ein Wartezimmer können aus beliebigen Rohstoffen ausgeführt werden.

    Bei der Anordnung des Innenraums empfiehlt es sich, vom Boden auszugehen. Zunächst werden die Bretter bearbeitet und verlegt. Berücksichtigen Sie die Eigenschaften dieses Materials, da die Eiche auf dem Boden im Dampfbad zum Gleiten beitragen kann.Und es ist sehr traumatisch, besonders wenn das Dampfbad klein ist. Der Boden selbst muss um 10 cm vom Betonestrich abgehoben werden. Dies hält die Wärme im Dampfbad.

    Als nächstes legen Sie die Ebenen der Regale. In diesem Fall sollte der untere von ihnen 10-15 cm über dem Ofen liegen. Abhängig von der Fläche und der Höhe des Raumes, von zwei bis vier Stufen.

    Die nächste Stufe sind die Wände, die mit Holzbrettern oder Schindeln verkleidet sind. Beim Anblick sollten Sie die Zwischenschicht - Dampfsperre nicht vergessen. Und erst danach wird mit der Decke gearbeitet.

    Es ist nicht so wichtig, sich dem Thema Außendekoration zu nähern, aber es lohnt sich, sich an die Notwendigkeit einer zusätzlichen Wärmedämmung zu erinnern. Natürlich haben Blöcke in der Regel einen hohen Index dieses Indikators.

    Um Kondensation an den Blockwänden im Winter zu vermeiden, wenn ein Bad benutzt wird, ist es besser, dieses Thema näher zu betrachten. Mantel Dampfbäder sind in der Regel PVC-Abstellgleis, Ziegel oder sogar Keramikfliesen.

    Wie baue ich?

    Es ist viel einfacher, ein Bad aus Blöcken mit eigenen Händen zu bauen, als den gleichen Prozess aus Holz zu machen.

    Zuerst müssen Sie sich mit einigen detaillierten Schritt-für-Schritt-Empfehlungen vertraut machen:

    • Erstens: Der Bau eines Gebäudes beginnt immer mit einem Projekt. Wenn hier alles fertig ist, können Sie sofort zum zweiten Schritt gehen.
    • Zweitens: Selbst eine so leichte Konstruktion wie ein Blockbad muss auf dem Fundament verlegt werden. Die Entscheidung für eine bestimmte Art von Basis für Ihr Gebäude wird basierend auf der Qualität des Bodens getroffen.

    Vielseitig einsetzbar ist ein säulenförmiges Fundament, das aus Betonfertigteilen besteht. Der Hauptnachteil ist, dass es nicht möglich ist, die Basis bzw. den Boden zu erwärmen. Die säulenförmige Pfahlgründung eignet sich für Böden, die zu Bodensenkungen oder Erdrutschen neigen. Es ist auch schwierig, den unterirdischen Raum zu isolieren.

    Bandfundament - die beste Grundlage für ein Blockbad in fast jedem Boden. Um eine gleichmäßige und starke Bandbasis zu erstellen, müssen Sie die richtige Markierung vornehmen. Graben Sie die erforderliche Breite und Tiefe des Grabens entlang des Umfangs des zukünftigen Gebäudes und der Trennwände darin. Weitere montierte Schalung. Am Boden des Grabens wird eine Sandschicht auf maximal 15 cm verdichtet.

    Wir legen auf den sandverstärkten Boden (Gitter, Stäbe usw.). Nachdem wir die Lösung vorbereitet haben, füllen wir sie mit Schalungen und füllen alle Hohlräume aus. Nach 7 Tagen kann die Unterstützung entfernt werden. Das Fundament wird weiter stehen gelassen und regelmäßig mit Wasser benetzt, um Risse zu vermeiden. Putting Blöcke auf der Basis ist nur in einem Monat möglich.

    • Drittens: Blockmauerwerk. Von oben auf die getrocknete und imprägnierte Fundamentabdichtung erfolgt. Trotz der Tatsache, dass die Blöcke mit einem speziellen Kleber gestapelt sind, wird empfohlen, die ersten beiden Reihen mit Standard-Zementmörtel zu heften. Die Verlegung beginnt mit den Ecken der Struktur. Zusätzlich sollte jeder Eckblock um 0,5 cm über das Fundament hinausragen.Es ist wünschenswert, jede Reihe nach Niveau zu prüfen. Vergessen Sie nicht, die Verstärkung alle 3-4 Reihen zu verlegen. Und auch in den Öffnungen. Also wird das Design stärker sein.
    • Viertens: Wenn die Wände wieder aufgebaut werden, können Sie damit beginnen, Estrich zu entwerfen.
    • Fünftens: vollständig in die Installation des Daches und die Verlegung des Daches eingetaucht. Dieser Prozess ist sehr wichtig. Da es in diesem Stadium ist, werden alle notwendigen Maßnahmen ergriffen, um den Ofenschornstein nach außen zu bringen, so dass sich Gase und Dämpfe nicht ansammeln, so dass ein Feuer nicht passiert, und so weiter.Und auch um im Winter alles warm zu halten, wird es erwärmt.
    • Sechstens: Ein weiterer wichtiger Punkt beim Bau eines Bades aus Blöcken ist die von außen zugewandte Seite. Die Wände sind isoliert. Darüber hinaus wählt der Gastgeber Fassaden, Fliesen oder Holzplatten nach seinem Geschmack. Im Inneren wird nur eine Dampfsperre erzeugt, die die Bildung von Kondensat an der Innenwand der Blockstruktur verhindert.

    Sie können die ungefähren Geräteschichten der Isolierung von Porenbetonplatten im Bad sehen, können auf dem Foto sein.

    Tipps und Tricks

    Die Bewertungen der Besitzer der Badehäuser sind in der Regel positiv. Besonders diejenigen, die es selbst gebaut haben. Meistens emittieren Käufer Porenbeton und Schaumbeton aus einer Vielzahl von Blöcken. Wenn man darauf hinweist, dass diese Materialien besser passen, haben sie die gleichen Blöcke in Form und Größe, sie schrumpfen überhaupt nicht und sind mit ihrer Einfachheit bei der Arbeit zufrieden.

    Was den Bau des Badehauses aus den Blöcken betrifft, teilen die Experten gerne ihre Tipps und Empfehlungen und achten dabei auf die grundlegendsten:

    • Platz unter dem Dampfbad muss ausgewählt werden, nach dem Abwägen aller wichtigen Nuancen.Das Gebäude sollte gut vom Brunnen entfernt sein, um das Trinkwasser nicht zu verunreinigen. Und auch um ein möglichst kleines Feuer zu vermeiden, sollte das Bad abseits des Wohnhauses liegen. Und äquidistant von jedem Baum auf der Website (die ungefähre ausreichende Entfernung beträgt 10-15 Meter).
    • Bei der Anordnung der Abflüsse ist es obligatorisch, das abgesonderte Abflussloch für das Bad auszugraben. Experten empfehlen nicht, es mit dem Allgemeinen zu kombinieren, weil die Bademissionen ziemlich groß und stark sind, die den Zustand Ihrer Gesamtdrainagequelle nachteilig beeinflussen können.
    • Alle Abwasser- und Wasserrohre für das Bad werden wie die Streifenfundamente auf den Sandstein gelegt.
    • Unter jedem porösen Material für die Wände des Bades ist eine eigene Größe der Basis wichtig. Zum Beispiel sind Schlackensteine ​​und Blähtonbeton die besten und stabilsten auf dem Fundament, 50 cm hoch vom Boden aus.
    • Für alle Arten von Schaumbetonblöcken ist eine gelenkig hinterlüftete Fassade am besten geeignet. Es hat eine schöne Erscheinung. Es beseitigt auch das Problem der Kondensation zwischen der Wand und der Verkleidung.

    Es ist sehr wichtig, sich daran zu erinnern, dass der Aufbau eines Bades von den Blöcken selbst beginnt, es ist notwendig, sorgfältig und gründlich alle notwendigen Informationen zu untersuchen.Dies wird der Schlüssel zum Bau des ursprünglichen und einfachen Gebäudes sein, das komfortabel und angenehm zum Ausruhen sein wird.

    Schöne Beispiele

    Ordentlich Innenausstattung Dampfbad mit einer kleinen Fläche. Die Wände, Böden und Regale sind aus Holzwandpaneelen gefertigt. Die Höhe der Decke in der Badewanne des Blocks ist ausreichend, um drei Etagen Regale zu machen. So kann es Platz für bis zu 6 Erwachsene bieten.

    Ein Beispiel für ein geräumiges Bad aus Blöcken mit einer kleinen Terrasse und PVC-Außenverkleidung. Es hat ein Giebeldach, ein niedriges Streifenfundament, das auch durch Plastik, das Steinwerk imitiert, verdeckt ist, in der Farbe dunkler als das Hauptgebäude.

    Das ursprüngliche Design der Außenverkleidung lässt Sie glauben, dass vor uns ein Holzbad ist. Dies ist jedoch unser vertrautes Blockdesign. Die Wände sind mit einem Brett bedeckt, das mit einem Antiseptikum imprägniert ist. Es gibt eine kleine Terrasse für abendliche oder nachmittägliche Treffen in der Natur.

    Eine kühne Kombination von Innenausstattung Dampfbäder in der Badewanne. Wände, Böden, Regale und Decken bestehen aus Schindeln. Der Ofen ist in Form einer Felshöhle eingerahmt. Dreistufige Regale. Zur gleichen Zeit ist der erste von ihnen praktisch auf dem Boden und nicht 10-15 cm über dem Ofen, wie von Profis empfohlen.

    Dieses Foto sieht sehr schön Mauerwerk als die äußere Auskleidung des Bades.Das Gebäude selbst ist sehr geräumig. Es wird ruhig ein großes Dampfbad, ein Gästezimmer, ein Waschraum beherbergen, und Sie können auch ein separates internes Badezimmer installieren.

    Ein anderer Backstein gegenüber, aber ein kleineres Bad. Das Dach wird mit einem Gästezimmer - Dachgeschoss sein. Die Grundlage ist ein Band. Für den Bau verwendete Porenbetonsteine.

    Schönes und sanftes Bad mit Keramikfliesen. Es hat eine kleine offene Terrasse. Details sind in der dominierenden Farbe gemalt. Es gibt zwei Fenster. Klein - geht in den Waschraum, groß - beim Gast.

    Wenn Sie sich für ein Projekt entscheiden, um Ihr eigenes Blockbad zu bauen, sollten Sie sich nicht nur auf Ihren Geschmack und Ihre Wünsche konzentrieren. Der endgültige Erfolg eines Unternehmens hängt von vielen Faktoren ab, die wir manchmal gar nicht sehen. Ausgehend vom Ort des Bades auf dem Gelände, setzen Sie den Prozess der Grundlegung fort und lösen das Problem der Innen- und Außendesign.

    Fertigstellung des Daches und Installation des Hauptattributs des russischen Bades - des Ofens. Machen Sie sich keine Sorgen oder scheuen Sie nicht, sich an die Experten zu wenden, die Sie nicht nur beraten und auffordern, sondern auch gerne und mit ihrem Beispiel helfen werden.

    In diesem Video finden Sie eine Übersicht über ein kleines Bad aus den Blöcken des Landes.

    Kommentare
     Kommentarautor

    Die Küche

    Kleiderschrank

    Wohnzimmer