Rahmenbad: Beispiele für Projekte

Der Bau des Bades ist in jeder Datscha und in einem Landhaus notwendig. Aber die traditionellen Optionen, die Ziegel oder Holz verwenden, haben mehrere Nachteile. Aber von ihren Rahmenbauten müssen Gebäude auf einer speziellen Technologie gebaut werden.

25 Foto

Besonderheiten

Es ist sehr schwierig, Gebäude, selbst solche kleineren wie eine Sauna, mit Ziegelsteinen oder Holzstämmen mit eigenen Händen zu bauen. Sie müssen eine Menge Geld für Materialien ausgeben und makellose Zeichnungen vorbereiten. Und ohne die Hilfe von irgendjemandem wäre es überhaupt nicht möglich, eine solche Arbeit zu leisten. Daher verdienen Rahmenprojekte mehr Aufmerksamkeit. Zudem sinkt der Verbrauch von Holz im Vergleich zu herkömmlichen Holzkonstruktionen genau um die Hälfte.

Die Gebäude sind relativ leicht, selbst wenn sie in den Dimensionen 6 mal 4 oder 6x6 m hergestellt werden. Wenn die Größe der Struktur 3x4, 4x4 m ist, manifestiert sich dieser Umstand noch mehr.Daher müssen keine soliden Grundlagen vorbereitet werden. Sie können gleichzeitig die Außen- und Innenwände beschneiden, und die Gesamtgeschwindigkeit der Installation erhöht sich deutlich. Die kleinste Fläche des Dampfbades beträgt 250 x 250 cm Es wird empfohlen, Asbestzementrohre mit einem Durchmesser von 100 und einer Länge von 4000 mm zu verwenden, die mit Beton gefüllt sind.

Alle Holzelemente werden vor dem Einbau gründlich getrocknet. Sparren werden auf dem Boden gesammelt und dann abwechselnd angehoben und über die Gestelle des Rahmens gesetzt. Dach tun nur in belüfteter Form.

Es ist ratsam, die Decke im Dampfbad über 210 cm nicht zu erhöhen, erst nach Fertigstellung des Rahmens wird das Bad in separate Räume unterteilt.

Vorteile und Nachteile

Unumstrittene Vorteile von Rahmenbädern sind:

  • Leichtigkeit der Konstruktion;
  • billiges Design (kleine Bezahlung für Materialien);
  • Vereinfachung der Gründungsarbeit im Vergleich zu anderen Optionen;
  • geringe Wärmeleitfähigkeit;
  • die Fähigkeit, Kommunikationskanäle innerhalb der Wände herzustellen und das Erscheinungsbild nicht zu beeinträchtigen;
  • keine Schrumpfung;
  • keine Notwendigkeit für komplexe Baumaschinen;
  • ökologische Sicherheit (eine Seltenheit für budgetäre Haushaltskonstruktionen);
  • die Fähigkeit, alle Arbeiten ohne die Beteiligung von Spezialisten auszuführen;
  • Beseitigung von Nassarbeiten - Sie können im Winter bauen und auch dort, wo es keine nachhaltige Wasserversorgung gibt;
  • große Auswahl an Oberflächen.
11 Foto

Aber nach sorgfältiger Überprüfung der Bewertungen von Eigentümern und Entwicklern, können Sie sofort einige Mängel finden. Jeder von ihnen kann durch rechtzeitige Maßnahmen beseitigt werden, nur weil es notwendig ist, mögliche Probleme richtig zu verstehen. Die Rahmenbäder in ihrer reinen Form kühlen schnell ab, und daher erscheint nach kurzer Zeit ein hässlicher Pilz im Inneren. Um mit dieser Schwierigkeit fertig zu werden, müssen Sie nur die hochwertigste Isolierung verwenden.

Polyfoam oder einfache Mineralwolle dient nicht effektiv genug, und die erste Option außer leicht entzündet.

Es ist möglich, die Lebensdauer des Abschirmbades zu verlängern, wenn Sie alle verwendeten Hölzer und Platten mit Antiseptika einer speziellen Probe imprägnieren. Nach 18-24 Monaten beträgt die Rahmenschrumpfung manchmal 80-100 mm. Infolgedessen sind das Äußere und das Innere deformiert. Um ein solches Risiko zu verringern, kann man, wenn man das Holz nimmt, die Kammer trocknen.

Feinheiten des Designs

Die Einfachheit der Konstruktion und ihre Zugänglichkeit für Nicht-Profis bedeutet nicht, dass Sie ohne Vorbereitung zur Arbeit kommen können. Selbst die Erfahrung solcher Arbeiten gibt keinen Anlass zu einer selbstgefälligen Haltung. Um ernsthafte Fehler zu vermeiden, hilft ein gut durchdachtes Projekt und Zeichnungen der zukünftigen Struktur.

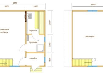
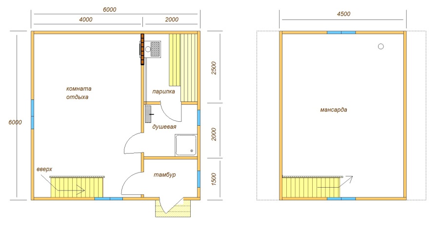
In einem unbedeutenden Bereich (3x4 oder 4x4 m) ist es erforderlich, die Intensität der Raumnutzung zu maximieren. Wenn möglich, sollten solche kleinen Bäder im Allgemeinen vermieden werden, wenn genügend Platz für die Konstruktion vorhanden ist.

Am einfachsten ist es, wenn Dampf, Dusche, Boiler und Ankleideraum kombiniert werden. Aber ein solcher Schritt ist nur für Mini-Strukturen oder Badehäuser akzeptabel, weil es unmöglich ist, die Temperatur wie erwartet zu verteilen. Deshalb versuchen sie, auch mit kleinsten Dimensionen, selbst wenn kleine, aber autonome Räume entstehen. Bad 3x4 m kann gut mit einem kleinen Kessel oder einem Holzofen beheizt werden. Einige Designer finden sogar die Möglichkeit, sie mit einer Veranda oder Terrasse zu ergänzen.

Minimalprojekte haben eine Reihe von wertvollen Eigenschaften:

  • unbedeutender Verbrauch von Baumaterialien;
  • fast vollständige Beseitigung von Abfällen;
  • hohe Arbeitsgeschwindigkeit;
  • Haltbarkeit und Zuverlässigkeit (da es nicht erforderlich ist, auf einer kleinen Fläche auf einer kleinen Fläche zu sparen).

Es sollte daran erinnert werden, dass selbst eine kleine einstöckige Erweiterung des Hauses bei den Katasterämtern registriert werden muss.

Auf einem größeren Grundstück ist es durchaus möglich, ein 6x6 großes Badehaus zu bauen: es ermöglicht nicht nur das Abwaschen von Schmutz, sondern auch das Einladen der ganzen Familie und sogar einer Gesellschaft von Freunden. Typische Projekte mit solchen Parteien implizieren eine bedeutende Fläche des Ruheraums - sie kann 20 m2 erreichen. Meistens befindet sich dort die Treppe, die den ersten Stock mit dem Dachboden verbindet.

Das zweistöckige Bad übertrifft das einstöckige nur, weil es Ihnen ermöglicht, zusätzlichen Raum für Wohnen und Freizeit zu organisieren. Oft gibt es Zimmer für Gäste, Schlafzimmer, Tische für Billard oder andere Sportgeräte.

Dank der Rahmentechnologie entfällt der überwiegende Teil der Kosten auf die Gründung des Gebäudes, und wenn es bereits vorhanden ist, werden die nachfolgenden Arbeitsschritte viel leichter zugänglich sein.

Bei der Konstruktion von zwei Stockwerken ist der erste Schritt die Schaffung der Gründung der Stützpfeiler, und die Basis muss mit einer Schicht der Wasserabdichtung bedeckt werden.Experten empfehlen, ein Fachwerksystem aus einem Bad aus Brettern mit einem Querschnitt von 10x5 cm zu bauen, und ein Brett mit einer Dicke von 2,2 cm geht normalerweise zur Kiste.

Die Rahmen-Schild-Struktur ist nach dem Prinzip eines Spielzeugbauers zusammengesetzt. Es ist nicht schwierig, Kombinationen von Elementen zu finden, die für den Bau eines Beckens mit einem Pool geeignet sind, dann werden sie nur auf den vorbereiteten Rahmen gelegt. Das Set enthält in der Regel detaillierte technische Anweisungen, die helfen, Fehler zu vermeiden - wenn es nur strikt befolgt wird. Bei mobilen Bädern ist es noch einfacher - sie werden nicht auf Baustellen, sondern in Industrieanlagen gesammelt. Für den Kunden bleibt nur noch das Hinzufügen von vorgefertigten Blöcken mit den notwendigen Details.

Bei den meisten Projekten werden Satteldächer verwendet, der Dachboden unter ihnen ist nicht organisiert oder sehr klein. Inside, aber oft Bad Inventar. Bei der Wahl des Fundamenttyps orientieren sich die Bodenart und deren Zustand. Die Masse des Gebäudes, selbst wenn wir das Vorhandensein eines zweiten Stocks in einer Anzahl von Varianten betrachten, ist relativ klein. Die Designindizes der Erwärmung hängen davon ab, ob das Bad das ganze Jahr über genutzt wird oder nur für die warme Jahreszeit gedacht ist.

Berechnung der Materialmenge

Die Notwendigkeit von Metallrahmeneinheiten ist nicht so schwer zu berechnen: Jeder Verkäufer wird dies tun können, nachdem er die notwendigen Dimensionen und Leistungen gelernt hat. In typischen Projekten wird der genaue Verbrauch des Metalls normalisiert, und wenn sie nach einer individuellen Reihenfolge vorbereitet werden, werden alle Berechnungen von den Designern übernommen. Trotzdem müssen sie kontrolliert werden, denn selbst mit Eisenmaterial kann ein Teil der Erbauer "Fehler" zu ihren Gunsten machen. Bevor Sie den Bedarf an Holz berechnen, müssen Sie in diesem Fall wählen, ob Sie ein Holz oder einen Baumstamm verwenden möchten. Bar-basierte Designs sind vorzuziehen, weil:

  • die Schrumpfung wird merklich verringert;
  • Es gibt keine strengen Einschränkungen für Größe und Geometrie.
  • die Arbeit ist stark vereinfacht.

Laut Experten besteht das stärkste Holz aus Nadelbaumarten, außerdem sind sie weniger anfällig für die zerstörerische Wirkung von Insekten und Mikroorganismen, die an einem Baum nagen. Die in den Berechnungen berücksichtigten Standardmaße des Holzes liegen zwischen 10x10 und 20x20 cm, wobei das Volumen durch Multiplikation der Länge mit der Höhe und der Dicke eines einzelnen Elements berechnet wird.

Einige Meister sagen, dass Sie 10-30% zum Ergebnis hinzufügen müssen.Aber dieser Schritt ist ehrlich gesagt dumm, weil Sie im Gegenteil weniger Bar ausgeben müssen - er ist nicht an den Öffnungen von Fenstern und Türen angebracht.

Unerfahrene Kunden und sogar Bauherren ersetzen die Umkreislänge durch eine Fläche und sind dann gezwungen, die Arbeit zu stoppen, die fehlenden Materialien zu kaufen und Geld für ihren Transport auszugeben. Um nicht zu täuschen, sollten Sie auch die Markierungen und Begleitdokumente sorgfältig prüfen. In einigen Fällen wird auf den Preisschildern und in den Reden der Verkäufer eine etwas größere Balkengröße angezeigt, als sie tatsächlich ist.

Um noch mehr Geld zu sparen, können Sie das Holz auf den Brettern wechseln, und das Futter ist aus Kunststoff-Futter oder Profilbögen. Während der Arbeit sind nur Boards der höchsten Kategorie akzeptabel.

Bauphasen

Nachdem Sie den Bedarf an Materialien und die Wahl der Größe des Rahmenbades berücksichtigt haben, müssen Sie sich mit der Reihenfolge der Bauarbeiten auseinandersetzen. Es gibt keine grundsätzlichen Unterschiede zum Bau anderer Bäder oder Stadthäuser in der Reihenfolge der Stufen, aber jeder von ihnen zeigt seine Besonderheiten.

Stiftung

Also, in der Konstruktion der Basis ist es am besten, säulenförmige Strukturen zu verwenden.Sie werden aus Asbestzementrohren mit einem Durchmesser von ca. 10 cm zusammengesetzt und von innen mit Beton gehärtet. Dann markieren sie die Außenkonturen und bohren mit Hilfe eines Bohrers 2 Meter tiefe Bohrlöcher.

Zu Ihrer Information: In einigen Fällen kann die Eindringtiefe größer oder geringer sein. Diese Entscheidung basiert auf der Art des Bodens und der Tiefe des Grundwassers. Jedes Rohr wird in die Öffnung eingeführt und mit Sand einer großen Fraktion von oben gefüllt, außerdem wird es gründlich gerammt. Beim Gießen wird Beton verwendet, der hergestellt wird aus:

  • 1 Teil Zement M200;
  • 4 Teile Sand;
  • 7,5 Stücke Feinschutt;
  • 3 Teile reines Wasser.

Gemäß der Schritt-für-Schritt-Anleitung sollte das Füllen der Rohre glatt sein, und es sollte auf jeden eine feste Stahlplatte gelegt werden, wenn sie fertig sind. Angebaute Rohre müssen getrocknet werden, und erst dann kommt die Installation der unteren Verkleidung. Die Box wird mit Desinfektionsmitteln behandelt und mit einer wasserabweisenden Schicht abgedeckt. Über die Umreifung werden Lumpen gelegt, aus denen ein grober Boden gebildet wird. In dem Intervall, das die Struktur von der Verzögerung und der Umreifung trennt, legen Sie das Bedachungsmaterial, manchmal schmieren Sie diesen Platz reichlich mit Mastix.

Die Konstruktion des Fundaments unter einem Rahmenbad mit zwei oder drei Stockwerken sollte die Gesamtlast und den Schneedruck berücksichtigen.Holzbasen dürfen nur für Miniaturbäder, deren Gesamtfläche 12 Quadratmeter beträgt. m und weniger. Bei der Berechnung des Durchmessers der Holz- und Nivellierflächen ist erhöhte Aufmerksamkeit erforderlich.

Stellen Sie sicher, dass Sie auf einer Ebene mehrere Balken anlegen, die mit Pfählen um den Umfang gekürzt werden. Solche Systeme funktionieren gut auf Lehmböden, wo sie seit vielen Jahren stabil dienen.

Während des Aufbaus von Bädern auf Schraubenpfählen ist es nicht notwendig, die Stützstrukturen mit Hilfe eines oder mehrerer Kanäle anzudocken. Solche Stützen helfen, selbst auf einem Hügel oder an einem stark erodierten Flussufer mit einem schnellen Fluss zu bauen. Die Einbringung von Pfählen in den Boden erfolgt entweder unter Einbeziehung einer speziellen Ausrüstung oder durch die Bemühungen mehrerer Bauherren gleichzeitig. Bei der Arbeit ist es strengstens unmöglich, die Unterstützung von der Horizontlinie abzuweichen.

Bei jeder vierten Runde wird die Stapelposition sorgfältig mit einem magnetischen Niveau überprüft. Die Strukturen, die beim Festziehen geneigt sind, dürfen von der Technologie nicht entfernt werden, ihre Position wird mit einem Rotationsniveau eingestellt. Um die Lücken zu beseitigen, die den Pfahl und den umgebenden Boden trennen, können Sie jeden festen Beton und Fragmente der Verstärkung verwenden. Nach Abschluss der Installation werden die Pfähle auf Ebenheit überprüft.Wenn alles in Ordnung ist, werden Köpfe darauf geschweißt; Entwässerung im Bad ist immer nicht nur im Waschraum, sondern auch im Dampfbad ausgestattet.

Viele versuchen ein Bad auf eine Bandunterlage zu legen. Eine solche Lösung ist selbst auf Böden, die für Bewegung und Absenken anfällig sind, akzeptabel, die leicht aufquellen können. Das Band ist in Finnisch und Kanadisch unterteilt; Beide Technologie-Schulen sind einfach, erfordern jedoch einen sorgfältigen und verantwortungsvollen Ansatz. Monolithische Fundamente werden direkt auf der Baustelle errichtet und vorgefertigt nur gestapelt und verbunden. Meistens werden sie durch eine flache Vertiefung (bis zu 50 cm) geführt, ein solches Band wird gleichmäßig unter den tragenden Wänden verdünnt.

Die Wahl der richtigen Kelleroption ist oft ohne geologische Untersuchungen schwierig. Der einfachste Test kann unabhängig durchgeführt werden: Die Art des Bodens und seine visuellen Eigenschaften werden durch Graben eines 150 cm tiefen Grabens erkannt. Untersuchen Sie sorgfältig nicht nur die Höhe des Grundwassers, sondern auch das Niveau, auf dem die Erde gefriert.

Für jeden Basistyp wird die Baustelle im Voraus von Gras und Sträuchern, Blumen und Rasen gereinigt. Es sollte nicht einmal Stümpfe, Wurzeln und andere Gegenstände geben, die die Konstruktion stören könnten.

Starke Kordeln aus farbigen Stoffen helfen, die Markierungen zu vereinfachen.In Übereinstimmung mit dem Markup müssen Sie eine Kerbe unter dem Fundament graben, die 50 cm tiefer und 400 cm breiter als die vorbereitete Führung ist. Das Kissen besteht aus Sand, der reichlich mit Wasser gefüllt und gerammt wird. Überlappen Sie dann die erste Schuttschicht. Die Abdichtung erfolgt auf den Seitenflächen des Grabens. Dachdeckungsmaterial wird traditionell verwendet, obwohl es zunehmend durch ein moderneres Penetron ersetzt wird.

Die Schalung wird wie folgt erstellt: Die obere Kante der Abdichtung dient zum Verlegen von Platten, deren Dicke 50 mm und maximale Breite 1,5 m beträgt Die Verlegung der Platte ist ohne die geringsten Spalten, mit einer Höhe über dem Boden von 30 cm, erforderlich. Drahtverstärkung 50 mm unter der Oberseite der Schalung (später vollständig durch eine Betonschicht verdeckt). Betonieren wird mit einer Mischung aus Zement mit Sand und Kies durchgeführt, in Bezug auf die Dicke ist es vergleichbar mit dichter saurer Sahne. Eine zusätzliche Härtung wird durch Weichmacher erreicht.

Es empfiehlt sich, den Mörtel selbst zuzubereiten, da er viel schneller ist als die fertige Mischung aus der Fabrik zu bekommen. Darüber hinaus trägt dieser Ansatz dazu bei, die Qualität der Kaltverbindung zu erhalten und ein Auslaufen von Wasser zu vermeiden, das die Basis verderben würde. Und nicht zuletzt können Kostenunterschiede vernachlässigt werden.Nach Abschluss der Arbeiten ist das Fundament mit einem flüssigkeitsundurchlässigen Material bedeckt. Der Beton wird innerhalb von 24 Stunden aushärten, aber erst in einigen Wochen wird er seine endgültige Festigkeit erlangen.

Schalung sollte mit geraden und starken Schilden gemacht werden, um es perfekt aussehen zu lassen. Nägel werden streng von innen nach außen gehämmert. Wenn Sie das Gegenteil tun, wird das Entfernen der Schilde viel schwieriger. Wenn Sie an Schalungskonstruktionen arbeiten, müssen Sie sofort über die Ergebnisse für Abwasser, Wasserversorgung und elektrische Kabel nachdenken. Wenn sie nicht sofort bereitgestellt werden, dann wird es notwendig sein, die Qualität des Monolithen zu hämmern und zu verletzen.

Es ist durchaus zulässig, das Bandfundament in Form eines monolithischen Bandes unter dem Bad aus dem Rahmen zu legen, wenn die fruchtbare Bodenschicht entfernt und durch Streusand ersetzt wird.

Sowohl die monolithische Lösung als auch die Struktur mit geringer Tiefe und die nicht vertiefte Basis sind notwendigerweise gegen die Kraft der Frosthebung geschützt. Für diesen Zweck:

  • Entwässerungsanlagen;
  • Seitenflächen;
  • Isolierung um den blinden Bereich;
  • Entfernen von aufgeweichten Böden mit deren Ersatz durch Sand oder Geröll.

Bänder mit geringer Tiefe sollten nicht an verschiedenen Hängen verwendet werden, da sie einer starken Scherung nicht standhalten.Wenn sie auf staubigem Sand oder Hügeln gebaut werden, legen sie eine Erweiterungsplatte an den Boden. Richtig ausgeführter Monolith hat immer eine größere Höhe als Breite. Außerdem beträgt der Unterschied 2-4 mal; Solch ein Schritt wird den Keller Teil der Struktur optimal machen, es wird möglich sein, sowohl die Überlappung der Balken als auch des Erdgeschosses zu bilden.

Wände und Boden

Beginnen Sie mit der Arbeit, indem Sie ein spezielles Gestell anbringen, das an der oberen Umreifung befestigt wird. Zwischendurch werden weitere Racks hinzugefügt. Sie werden das Bad stärker und stabiler machen. Die Box ist mit Brettern bedeckt, befestigen Sie sie an den Schrauben. Konsequent zusammengesetzte Teile bilden schließlich das Design.

In Rahmenkonstruktionen werden Fenster und Türen sofort montiert, ohne auf den Abschluss der Arbeiten zu warten.

In den meisten Rahmenbädern werden Böden aus Latten und Brettern hergestellt, aber es ist unmöglich, den geeigneten Wert dieser Elemente ohne komplizierte Berechnungen genau zu bestimmen. Aber das ist nicht notwendig - private Entwickler können leicht mit gemittelten Werten fertig werden. In den meisten Fällen sind Bretter mit einer Dicke von 30-40 mm und Endbearbeitungen auf Holzbasis mit einem Querschnitt von 100x150 mm akzeptabel.Die Dicke der Platte, ausgedrückt in Millimetern, sollte ungefähr der Lücke zwischen den Lags entsprechen, ausgedrückt in Zentimetern.

Wenn eine Wärmedämmung verwendet wird, werden die Abstände zwischen den Verzögerungen des fertigen Fußbodens an die erzeugte thermische Schicht angepasst.

Was die Grundmaterialien betrifft, so sind alle langjährig verwendeten Holzarten geeignet, einen Boden in einem Rahmenbad zu erzeugen. Aber Pappel und anderes weiches Holz sind nicht akzeptabel. Vor dem Kauf und Gebrauch sollten Sie sorgfältig die Trockenheit und Unversehrtheit des Materials, die Abwesenheit von Rissen, Spalten und anderen Problemen überprüfen. Idealerweise sollte sämtliches Schnittholz aus derselben Charge entnommen werden, die die Kammertrocknung durchlaufen hat.

Das Veredeln von Bodenbelägen ist von geschnittenen oder gerillten Platten wünschenswert, da es nicht weiter poliert werden muss, aber die raue Basis kann ungeschnitten sein.

Eine Alternative zu Holzkonstruktionen ist oft der selbstnivellierende Boden. Diese Lösung hat sich im Laufe der Jahre immer mehr durchgesetzt und Keramik- und Steinoberflächen in den Hintergrund gedrängt. Die wichtigsten Vorteile des selbstnivellierenden Bodens können berücksichtigt werden:

  • Integrität der erzeugten Beschichtung;
  • hohe mechanische Festigkeit und ausgezeichnete Verschleißfestigkeit;
  • Null Brandgefahr;
  • Staubmangel und schädliche Emissionen während des Betriebs;
  • eine signifikante Vielfalt an Gestaltungsmöglichkeiten, einschließlich der Dekoration von dreidimensionalen Zeichnungen;
  • Pflege ist viel einfacher als Holzkonstruktionen.

Aber es gibt auch objektive Schwächen: Zum Beispiel erstarrt der selbstnivellierende Boden erst nach mehreren Tagen, wenn Sie sofort auf dem Holzboden gehen können. Es besteht ein hohes Risiko von Kratzern und Schmutz, und die Kosten einer solchen Beschichtung sind sehr hoch. Es wird empfohlen, jeden Badboden mit einem Gefälle zum Abfluss zu verlegen, damit sich kein Wasser und keine Seifenlauge in alle Richtungen ausbreiten kann. Selbstnivellierender Boden kann horizontal (ohne Gefälle) oder auf einer bereits geneigten Grundfläche gegossen werden. Die erste Option erfordert eine sorgfältige Versiegelung des Schnittpunkts des Bodens mit den Wänden und die zweite ist schwieriger durchzuführen, sondern leitet die gesamte Flüssigkeit auf einmal in die richtige Richtung.

Bulk Boden kann nicht nur "gießen": sein Substrat ist sehr sorgfältig vorbereitet. Auf dem Baum müssen mächtige Estriche aus Beton und mit Bewehrung verlegt werden.Je früher die Mischung gegossen wird, desto besser - sie verliert schnell Flüssigkeit, und wenn dies vor dem Ende der Arbeit geschieht, werden alle Kosten vergeblich sein. Meistens werden die Böden zusammen gegossen.

Für Bäder wird empfohlen, Verbindungen auf Polyurethanbasis zu verwenden, die sich viel besser als Epoxid oder Polymethylacrylat erwiesen haben.

Bei der Arbeit mit Wänden wird die Gesichtsauskleidung in den meisten Fällen auf der Grundlage von Schindeln oder Spanplatten hergestellt. Die Abdichtung erfolgt durch Pergament, das unter die Außenhaut gelegt wird. Nur dann wird der Heizer verwendet, der absolut umweltfreundlich und brandsicher sein soll. Die Gesamtdicke des Kuchens und seiner einzelnen Schichten wird durch die klimatischen Parameter des Gebiets und die Eigenschaften der Verwendung eines Rahmenbades bestimmt.

Eine ganzjährige Struktur sollte nicht nur dickere Wände, sondern auch eine spezielle Dampfsperre haben. Die beste Lösung dafür ist Plastikfolie.

Das Anstreichen von Wandverkleidungen, selbst in den Wartezimmern, ist unerwünscht, da ein Paar selbst der sichersten Farben und Lacke gesundheitsschädlich sein kann.Beim Durchdenken der Wandstruktur wird besonders darauf geachtet, wie die Lüftungskanäle und elektrischen Leitungen durch sie hindurchgehen. Da brennbare Materialien für die Außendekoration verwendet werden und häufig übermäßige Feuchtigkeit in der Luft vorhanden ist, sollten geschlossene, gründlich isolierte Kabelkanäle bevorzugt werden.

Wenn die Räume mit Brettern beschnitten werden sollen, sollte ihre Dicke ungefähr 30 mm betragen. Bei einem kleineren Wert leidet die Festigkeit, bei einem größeren wird die Struktur schwer.

Dach

Die bei der Konstruktion des Daches einer Rahmenwanne verwendeten Basisteile werden nach und nach direkt auf der Baustelle verlegt und montiert. Der Hof sollte auf der vorbereiteten Rahmenbasis stehen. Vereinfachen Sie die Arbeit an der Erstellung des Daches, um es auf dem rohen Holzsteg zu platzieren. Der Lüftungskuchen ist immer im Modellkuchen enthalten, daher ist der Spalt vom Sparren bis zur Thekenstange mit Dampfsperre ausgefüllt. Die Kiste sollte am Holz befestigt werden.

Dann ist es Zeit, Giebel aus orientierten Platten oder hochwertigen Brettern zu machen.In den meisten Fällen lohnt es sich, sich auf das einfachste Pultdach zu beschränken, das schnell und ohne große Schwierigkeiten durchgeführt wird. Aber wenn Sie ein völlig originelles Design wählen, wird nicht jeder Spezialist in der Lage sein, die Arbeit korrekt und innerhalb der vorgegebenen Zeit zu erledigen.

Was sehr wichtig ist, sind Giebellösungen mit der gleichen Fläche 50-100% teurer, und dieser Unterschied ist nicht einmal durch ihre spezifischen Fähigkeiten gerechtfertigt. Mit der richtigen Berechnung wird eine Abdeckung mit einer Rampe für viele Jahre dauern und die ganze Zeit wird extrem bequem zu bedienen sein.

Flachdächer in den Bädern mit ihren eigenen Händen wird nicht empfohlen. Die Rentabilität einer solchen Wahl ist nur offensichtlich - die Notwendigkeit einer starken künstlichen Beatmung mit natürlicher Schwäche absorbiert alle Einsparungen. Laut den qualifizierten Bauherren sollte das Ein-Pitch-Dach unter einer allgemeinen Neigung von 20 bis 30 Grad liegen. Unter dieser Bedingung fallen flüssiger und fester Niederschlag spontan ab.

Sie können eine Rampe auf zwei Arten erstellen: absichtlich die Wände ungleich in der Höhe machen oder Racks installieren.In der zweiten Version des Materials wird weniger ausgegeben, aber die Hitze wird schlechter bleiben.

Erfahrene Dachdecker wissen, dass mit abnehmendem Dachneigungswinkel immer mehr glatte Gesichtsmaterialien verwendet werden müssen. Aber bei einem Winkel von weniger als 10 Grad erlauben selbst die besten Lösungen nicht, die Pfützen und Schneeverwehungen loszuwerden. Mauerlat besteht aus Nadelholz mit einem Querschnitt von mindestens 15 x 15 cm, außen mit einer wasserabweisenden Schicht (mit Mastix geschmiert oder mit Dachpappe umwickelt). Die Sparren werden ausschließlich aus flachen Brettern mit einem Querschnitt von 5x15 cm hergestellt, die aus Massivholz gefertigt sind.

Mit solchen Abmessungen wird ein optimaler Sicherheitsabstand erreicht und es ist möglich, bei Bedarf eine Isolierung von bis zu 15 cm Dicke zu befestigen. Zu Ihrer Information: Die Länge der Sparren wird mit Redundanz auf den Überhängen berechnet, die den Schutz der Wände gegen Wasser verbessern. Alle Enden der Fachwerkbeine sind mit Schnitten für Mauerlat ausgestattet, die mit Nägeln oder Metallverkleidung befestigt sind. Die Kiste ist im rechten Winkel an den Sparrenfüßen befestigt.

Unter bestimmten Dachmaterialien, die zu Verformungen neigen, wird notwendigerweise eine untrennbare Hülle auf der Basis von feuchtigkeitsbeständigem Sperrholz erzeugt.

In anderen Fällen, legen Sie das Gitter der Schienen, deren Dicke variiert von 2,5 bis 3 cm.In jedem Fall sollte diese Dicke natürlich in ihrer Gesamtheit einheitlich sein. Es empfiehlt sich, die Bäder mit Pultdächern mit Ondulin, Wellblech oder weichen Fliesen zu überlappen. Wenn es eine einfache Decke am Boden gibt, ohne Dachboden oder Dachboden, ist es erforderlich, eine Platte oder eine gerollte Isolierung zu verlegen. Unabhängig von dieser Verwendung:

  • hydrophober Film;
  • Antipyren und antiseptische Imprägnierung;
  • spezielle Befestigungen;
  • sorgfältig ausgewählte und getestete Werkzeuge.

Shed-Dächer sollten auf Sparren im Abstand von 0,5 - 0,8 m abgestützt werden.Dachmaterial sollte mit Spezialschrauben, einschließlich synthetischer Gummihüte, am Boden befestigt werden. Diese Tops verhindern das Eindringen von Wasser. Wenn es kein spezielles Befestigungselement gibt, müssen Sie einfache Schrauben verwenden und diese mit externen Gummifüßen ergänzen. Dann werden die Giebel zugenäht, der Abfluss ist ausgestattet - auf diesem sind die Außenarbeiten am Rahmenbad abgeschlossen.

Fertig

Egal wie zuverlässig und dauerhaft eine "Box" ist, es wird nicht funktionieren.Es gilt, diese Strukturen vor negativen äußeren Einflüssen zu schützen und sie gleichzeitig attraktiver zu machen.

Die Fertigstellung der Außenwände hilft Entwicklern und Designern, ihren Geschmack und ihre ästhetischen Prioritäten auszudrücken. Oft versuchen sie, Abstellgleis, Schindel zu ummanteln. Etwas populärer sind diese Materialien dem Blockhaus und dem Pflaster unterlegen.

Bevor Sie eine Auskleidung anbringen, müssen Sie die rauhen Wände überprüfen. Sie sollten nicht einmal kleinere Risse sein, die Hautgelenke sollten sich eng aneinander anschmiegen. Mithilfe von Vinyl-Verkleidungen können Sie eine Vielzahl von visuellen Bildern erstellen: Nachahmung von einfachem Holz und "Ziegel" -Wand und etwas Hightech im Geiste. Nicht weniger gut manifestieren sich Kunststoffplatten, und wenn Sie das natürliche Aussehen des Bades bis an die Grenze steigern wollen, sollten Sie ein Blockhaus wählen.

Im Falle der Wahl eines Wandpaneels muss es einige Tage aushalten, um sich zu akklimatisieren.

Die Dekoration des Rahmenbades von innen ist nicht weniger wichtig als die Außenseite. Es wird empfohlen, umweltfreundlichen Materialien den Vorzug zu geben, ihre erhöhten Kosten sind voll gerechtfertigt.Die Wahl des Designs im Innenraum ist jetzt nicht begrenzt, Sie können jeden Stil verwenden, nicht unbedingt traditionelles Russisch. Die Warteräume sind mit Hartholz und Nadelholz getrimmt. Aber die Farbe ist wünschenswert, um das ruhigste und ausgeglichenste angesichts des Zwecks des Bades zu wählen.

7 Foto

Waschräume mit Schindel verkleidet, vorgemischt mit Mischungen, die das Verrotten blockieren. Einige Verbraucher verwenden Kunststoffplatten und sogar Polycarbonatplatten. Im Dampfbad gibt es keinen Platz für Nadelbäume, mit Ausnahme von Zedernholz. Unter den laubabwerfenden Arten entpuppt sich in erster Linie stets eine Linde, die bei Berührung nicht verbrennt und bei längerem Gebrauch nicht verblasst. Bei Haushaltsprojekten wird Espe und Erle bevorzugt.

Es ist möglich, einen Badziegelofen mit Hilfe von Fliesen zu dekorieren: diese Option ist die einfachste, billigste und gleichzeitig ermöglicht es, ein attraktives Aussehen zu bieten. Hängen Sie keine Fliesen an die Wand, sie sollten auf dem Boden des Ofens ruhen. Es ist wert, das einfache Verputzen zu verweigern, es gibt die anständigen Ergebnisse sogar in den trockenen Räumen nicht.Gute Ergebnisse bringen manchmal den Gebrauch von dekorativem Stein mit sich.

Wenn der Ofen nicht aus Ziegeln besteht, sondern auf Bestellung geliefert wird, sollten Sie die Lösung wählen, die Ihrem gewählten Stil entspricht.

8 Foto

Belüftung

Selbst die langlebigsten und zuverlässigsten Materialien halten nicht lange, wenn die Feuchtigkeit im Inneren stagniert. Ja, und die ständige Ansammlung von verbrauchter Luft wird niemanden Freude bereiten. All diese Probleme werden durch den Einsatz einer sorgfältig gestalteten Belüftung gelöst. In den meisten Fällen wird zwischen den Versorgungs- und Abluft- und natürlichen Systemen gewählt. Die Selbstzirkulation wird gewährleistet, indem der Lufteinlass in einer Höhe von 0,5 m vom Boden und der Auslass in etwa gleicher Entfernung unter der Decke platziert wird.

Es ist absolut inakzeptabel, dass beide Löcher gleich niedrig sind. Dies wird zu einer "Überlastung" der Luft führen - es wird Kälte in Bodennähe und unerträgliche Hitze auf dem Vordach geben.

Sie können den Auslass nur dann an der Unterseite anbringen, wenn Sie eine Zwangsbelüftung oder ein großes Lüftungsrohr verwenden. Die kalte Luft kann im Raum hinter dem Ofen und der Ausgang im Boden selbst organisiert werden.wenn der Keller mit Außenluft oder anderen Räumen belüftet wird. Für eingebaute Badehaus ist immer erforderlich, die Mittel der Zwangsbelüftung zu verwenden.

Was zu isolieren?

Qualitätsverlust und intensiver Luftaustausch bei fehlender Hitze im Bad ist unzumutbar. Fast immer ist die eigentliche Ursache des Problems eine schwache und qualitativ schlechte Isolierung. In den meisten Fällen verwendete Mineralwolleplatten. Aufgrund der großen Luftmenge behalten sie die Wärme perfekt und der hohe Schmelzpunkt macht es möglich, keine Angst vor Feuer zu haben. Oft ist die Rahmenwand mit Stimmplatten isoliert, die umweltfreundlich sind und ihre Aufgabe gut erfüllen.

Die Billigkeit von geschäumten synthetischen Materialien und ihre Leichtigkeit, Beständigkeit gegen Feuchtigkeit machen solche Schutzbeschichtungen zu den besten. Aber es ist wichtig zu verstehen, dass nicht alle Materialien dieser Serie gleichermaßen perfekt sind. Darüber hinaus darf eine solche Isolierung nur dort verwendet werden, wo starke Hitze ausgeschlossen ist.

Hitzeschutz muss vor Kontakt mit Wasser und Wasserdampf geschützt werden. Feuchte Dämmstoffe verschlechtern sich schnell und verlieren ihre positiven Eigenschaften.

Die klassische Herangehensweise an die Isolierung von Öfen und Umgebung ist der Einsatz von Asbest zum Schutz verschiedener Materialien. Es kann in Form von Platten oder Tüchern verwendet werden. Aber angesichts der Gefahr von Asbestfasern für den Menschen ist es ratsam, andere Methoden der Ausrüstung zu verwenden:

  • Basaltfaser;
  • Izolon;
  • Nadelmatten.

Hitze im Bad kann nicht nur durch die Wände gehen; Die meisten seiner Lecks treten durch Böden und Decken auf. Um einen Wärmeschutz in ihnen zu erzeugen, verwenden Sie manchmal Blähton. Es wird immer seltener in der Wandisolierung verwendet, da es im Vergleich zu herkömmlichen Pendants zu schwer ist (500 kg pro 1 m3). Darüber hinaus ist Lehm in Bezug auf Wärmespeicherung und Schaum und Mineralwolle signifikant schlechter, so dass die Dicke der wärmeisolierenden Schicht zunimmt. Und er nimmt langsam aber stetig Wasser auf, um das Material zu trocknen ist sehr schwierig.

Eine ziemlich lange Geschichte hat wärmende Rahmen Gebäude Sägemehl. Sie sind absolut umwelt- und gesundheitlich unbedenklich, aber ein solcher Hitzeschild wird nicht schnell herauskommen. Hackschnitzel werden nicht nur zum Erwärmen, sondern auch als Tierstreu, Dünger und in vielen anderen Fällen verwendet.Lieferanten geben es daher nicht kostenlos ab, sondern ziehen es vor, Geld für ein solches nachgefragtes Produkt zu erhalten. In einer Großstadt wird Sägemehl auch in Supermärkten verkauft, aber dort ist das Preisniveau sogar höher als in Sägewerken.

Nur Hartholzspäne sind geeignet für den Einsatz. Die maximal zulässige Luftfeuchtigkeit beträgt 20%, besser ist es, wenn sie noch niedriger ist. Sauberes Sägemehl wurde lange Zeit nicht auf Baustellen verwendet, da sie sich niedersetzen und Hohlräume bilden, in denen ein Pilz auftreten kann.

Achten Sie darauf, Rohstoffe mit Borsäure oder Kupfersulfat zu behandeln. Die Standardmischung enthält auch Ton oder Zement (wenn die Decke fertig ist), Kalk oder Gips.

Die Schicht des Sägemehls unter dem Boden sollte mindestens 200 mm betragen, und in den nördlichen Regionen der Russischen Föderation kann diese Menge um weitere 50% erhöht werden. Bei der Massenverlegung werden Holzabfälle mit zementartigen Materialien gemischt, dann wird die Zusammensetzung in Holzformen gegossen, auf denen der Boden verlegt wird. Der Untergrund ist mit Kraftpapier, Polyethylen und ähnlichen Materialien vor Feuchtigkeit geschützt. Die Zusammensetzung wird gleichmäßig über die gesamte Fläche verteilt, es ist nur in seltenen Fällen erforderlich, sie zu rammen.Die endgültige Bereitschaft der Isolierung wird in zwei Tagen erreicht.

Beispiele für fertige Gebäude

Schöne Rahmenbäder können in unterschiedlichsten Ausführungen ausgeführt werden. So sieht ein Bauwerk mit einem nicht zu steilen Dach aus, das über die Fassade geschoben wird. Vor der Tür befindet sich eine Art Plattform, auf die man eine kleine Leiter klettern muss. Das Designkonzept ist eindeutig im Sinne maximaler Natürlichkeit des Gebäudes gebaut. Viele Eckbadewannen, auf Rahmentechnik gebaut, sind mit Abstellgleis fertiggestellt.

Mit der richtigen Leistung, um sie von einfachen Blockhäusern zu unterscheiden, ist extrem schwierig. Der moderne Ansatz für Bäder beinhaltet oft die Verwendung von Minimalismus. Ein eindrucksvolles Beispiel ist auf dem Foto zu sehen - es gibt nur eine Überdachung, eine kleine Leiter und klatschte Wände und ein rechteckiges Fenster. Es ist möglich, eine solche Struktur so schnell wie möglich mit eigenen Händen zu bauen. Es ist einfach und bequem, irgendeine der vorgestellten Wascharten zu verwenden.

Um zu erfahren, wie man ein Rahmenbad baut, sehen Sie sich das folgende Video an.

Kommentare
 Kommentarautor

Die Küche

Kleiderschrank

Wohnzimmer