Finishing Bad: die Wahl der Materialien und die Erstellung eines Design-Projekts

Sich außerhalb der Stadt entspannen, im Bad entspannen und einen duftenden Kebab genießen - davon haben wir schon die ganze Arbeitswoche geträumt. Um einen Traum wahr werden zu lassen, müssen Sie Ihr eigenes Bad auf Ihrem Grundstück bauen und ein Erholungsgebiet in der Nähe einrichten. Sie können selbst zur Sache kommen. Um dies zu tun, müssen Sie lernen, wie Sie das Material für den Bau und die Fertigstellung des Bades auswählen, damit es zum Anziehungspunkt für den Haushalt und die Gäste wird.

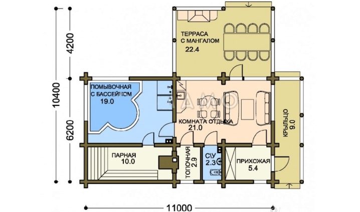
Lass uns versuchen, selbst ein Design-Projekt zu machen.

Wo soll ich anfangen?

Korrekt führen Sie das Design-Projekt des Bades wird Schritt-für-Schritt-Anleitung über die Technologie seiner Erstellung helfen. Es ist notwendig, Millimeterpapier vorzubereiten, um den Plan und die Fassaden der Struktur maßstabsgerecht zu zeichnen. Alle Zeichnungen sind mit Bleistift gemacht. Komplexe Projekte sind besser mit dem Architekten abgestimmt, die bei der Berechnung der Belastung von Fundament und Tragwerken helfen.

Getrennt werden die Pläne des ersten und zweiten Stocks gemacht, die Entwicklung aller inneren und äußeren Wände mit einer Anzeige der Veredelungsmaterialien und ihrer Zahl, ein Teil des Bodens zeichnen,Estrich mit der gewünschten Neigung zum Ableiten von Wasser, Wänden und Dach mit allen Schichten der Isolierung oder Abdichtung.

Der erste Schritt besteht darin, einen Ort auf der Website auszuwählen. Für den Bau Sie müssen den gleichmäßigsten Bereich wählenum keine Ressourcen für die Nivellierung oder die Lieferung von Erde auszugeben. In Gebieten mit einem ausgeprägten Relief können Sie diesen Faktor verwenden, indem Sie die Struktur der Struktur anhand der Neigung eines Hügels oder stufenförmiger Terrassen auswählen.

Es ist nicht wünschenswert, Tiefland für die Platzierung von Bädern zu verwenden, da Feuchtigkeit das Fundament zerstören wird, andernfalls wird ein Entwässerungssystem in die Bauarbeiten eingeführt.

Achten Sie bei der Inspektion auf die Umgebung, die Ausrichtung der Fenster und den Eingang des zukünftigen Bades. Die Fenster des Dampfbades können beliebig ausgerichtet sein, aber Fenster von Ruheräumen oder Terrassen sollten eine schöne Aussicht habenweil es viel angenehmer ist, einen Garten oder eine Wasseroberfläche vor Augen zu haben als die Scheune oder der Zaun eines Nachbarn.

Wir denken über das Nachverfolgen im Voraus nach. Sie benötigen ein Gerät, bequeme, ziemlich breite und rutschfeste Schienen mit Beleuchtung, da das Bad hauptsächlich abends genutzt wird.

Nachdem Sie sich für den Standort entschieden haben, denken Sie nach. In diesem Stadium werden basierend auf der Anzahl der Benutzer die Größe und die Anzahl der Stockwerke der Struktur berechnet.

Mit einem Bleistift bewaffnet, machen sie verschiedene Varianten von Projekten mit unterschiedlichen Prämissen. Basic Zimmer - Ankleide, Garderobe, Waschküche, Dampfbad. Zusatz - Ruheraum, Badezimmer, Terrasse.

Die Saunalandschaft kann einen Swimmingpool, einen Grillplatz unter einem Dach, einen Billardraum, Zimmer für Gäste und ein Spa umfassen. Diese Liste wird nach dem Ermessen des Eigentümers des Bades, seinen finanziellen Möglichkeiten und der Verfügbarkeit von Raum erweitert. Alle Zimmer befinden sich auf der gleichen Etage oder einem Teil des Aufzugs zum Dachgeschoss oder zweiten Stock. Die Nutzung eines Dachgeschosses verursacht zusätzliche Kosten für die Wärmedämmung.

Als nächstes die Frage der Saisonalität der Nutzung des Bades. Der ganzjährige Einsatz erfordert eine Gebäudedämmung, die Verwendung von Materialien mit hoher Festigkeit, Beständigkeit gegen extreme Temperaturen, geringe Wärmeleitfähigkeit, die Fähigkeit, die gewünschte Temperatur im Raum zu halten.

Im Vordergrund steht die Schaffung eines Heizsystems mit einem langen Brennofen,Entfernung der Brennkammer des Kamins im Warte- oder Ruheraum, Ankauf von Öfen mit Umluft- oder Wasserkreislauf.

Im Sommerbad in der Datscha werden Materialien mit geringer Wärmeleitfähigkeit und guten Isoliereigenschaften nur für den Bau des Dampfbades verwendet, der Rest des Gebäudes besteht aus leichten Materialien, die keine spezielle Isolierung benötigen.

Der nächste Schritt ist die Auswahl von Materialien für die Außen- und Innenausstattung. Die Anforderungen an Materialien für die Inneneinrichtung sind bei allen Planungsentscheidungen gleich: Natürlichkeit, Feuchtigkeitsbeständigkeit, Beständigkeit gegen hohe Temperaturen, Hygiene.

Die Außenfassade basiert auf dem Finish des Haupthauses, wenn sich das Bad in der Nähe befindet. An einem abgelegenen Ort kann der Badkomplex ein separates Design haben. In einem kleinen Gebiet ist es besser, an einer einzigen Stilentscheidung aller Nebengebäude festzuhalten.

Materialien werden entsprechend dem gewählten Stil ausgewählt. Es ist angemessen, für moderne Stile, klassisches Design oder Dekoration in einem ländlichen Stil zu klassifizieren.

Moderne Stile umfassen Beton, Metall, bearbeitetes gehobeltes Holz, Glas.Klassisch - Ziegel und Holz. Im ländlichen Stil passt natürliches oder künstliches Holz in allen Formen - Holz, Holz, gesägte und unbesäumte Bretter, Naturstein oder Ziegel.

Berechnen Sie die notwendigen Materialien und schätzen Sie ein, nehmen Sie Anpassungen vor. Der Kostenvoranschlag muss eine Entwässerungsvorrichtung und Verlegung der Kommunikation beinhalten: Wasserversorgung, Elektrizität.

Sommerbad auf dem Land kann die einfachste Ausrüstung für das Ablassen haben - den Abfluss zum unbenutzten Teil des Gartens. Die Abwesenheit von Elektrizität wird durch eine tragbare Laterne ersetzt, und die Wasserversorgung wird durch manuelles Füllen des Tanks mit Wasser aus einem Brunnen ersetzt.

Die letzte Stufe ist, eine der Bauoptionen beim Familienrat zu genehmigen. Sketches Bäder tun im Maßstab mit einem Bleistift in realen Größen. Für eine Basis nehmen Sie fertige Optionen oder stellen Sie sie selbst her.

Auswahl der Materialien

Materialien für den Bau von Bädern sind in konstruktive unterteilt, von denen das Fundament, Wände, Decken, Dachstuhl-System, das heißt für den Bau des Objekts selbst gebaut werden, Finishing - für die Verkleidung von Wänden, Boden und Decke außen oder innen, und technisch - für die Abdichtung und Wärmedämmung.Von der Wahl der Art der Konstruktion von Wänden und Dächern hängt die Wahl eines bestimmten Finish ab.

Lassen Sie uns versuchen, herauszufinden, was ein Bad zu bauen, was sind die Vor- und Nachteile bestimmter Baustoffe, aufgrund derer Sie sparen können.

Baum

In erster Linie von Baumaterialien für den Bau des Bades ist natürliches Holz. Es ist schwierig, die Vorteile dieses alten Baumaterials zu überschätzen. Viele Generationen von Bauherren haben die Technologie der Holzarchitektur zur Verbesserung entwickelt. Es ermöglicht Ihnen, komplexe architektonische Formen zu erstellen.

Eine schöne Zeichnung von Holzfasern erfordert keine zusätzliche Dekoration und ist ohne zusätzliche Vorarbeiten wie Kitt oder Gips einfach zu lackieren.

Dank seines geringen Gewichts benötigt es kein starkes Fundament. Ausreichend säulenförmig unter einzelnen Lagerelementen, die in diesem Bereich bis in die Tiefe der Frostdurchdringung verlegt sind, bilden unter dem Sockel auch ein flaches Streifenfundament.

Zu Konstruktionszwecken wird Holz in Form von Stämmen mit verschiedenen Profilen hergestellt: ein Kreis oder ein Oval. Der rechteckige Querschnitt des Holzes macht die Konstruktion des Gebäudes einfach und bequem.Holzkonstruktionen zeichnen sich durch Festigkeit und Dauerhaftigkeit aus, Schwindung tritt gleichmäßig auf, ohne Risse und Verzerrungen zu erzeugen.

Der Baum ist ein einzigartiger Naturheiler, der bei hohen Temperaturen, Dampfbädern und Badeverfahren sehr wichtig ist. Die poröse Struktur der Fasern behält Wärme gut, erfordert keine zusätzliche Wärmedämmung, mit Ausnahme der Jute-Schicht zwischen den Stämmen.

Holz ist langlebig, muss aber regelmäßig mit Ölverbindungen gegen Korrosion behandelt werden.

Einige Holzarten sind sehr widerstandsfähig gegen Feuchtigkeit, sie werden im Bauwesen verwendet.

Die zugänglichste Holzart für den Bau ist Kiefer. Dieses kostengünstige und übliche Material hat eine gute Festigkeit und Haltbarkeit aufgrund von Harzholz. Wenn es erhitzt wird, setzt es therapeutische Phytonzide frei, schafft ein angenehmes Aroma und zeichnet sich durch ein schönes Muster aus knorrigem Holz mit attraktiver gelber und brauner Farbe aus. Kiefer hat weiches Holz, das seine Verarbeitung erleichtert.

Zu den Nachteilen gehört eine geringe Beständigkeit gegenüber Luftfeuchtigkeit, die erfordert eine regelmäßige Rostschutzbehandlung, und eine starke Auswahl von hässlichen harzigen Flecken beim Erhitzen, so in den Dampfraum Kiefernwände mit einer anderen Art von Holz ummanteln.

In der Nähe seiner Eigenschaften zu den Kiefern Fichtenholz. Es ist weniger auf dem Markt zu finden, es hat weniger Widerstand gegen ungünstige Feuchtigkeitsbedingungen, und es ist oft notwendig, den Rahmen von Fichte mit Mitteln gegen Pilz und Zerstörung abzudecken.

Von Koniferen Baumaterialien ist es besser, Zedernholz zu bevorzugen. Seine Kosten sind viel höher, aber die Leistungsmerkmale weit übertreffen Kiefer oder Fichte. Die Gebäude aus Zeder sind sehr ästhetisch.

Diese Rasse hat fast keine Mängel, es ist die haltbarste, feuchtigkeitsbeständigste Art von Holz, sein dichtes Holz verformt sich nicht durch Temperatur- oder Feuchtigkeitsveränderungen, ist keinen Mikroorganismen und Pilzen ausgesetzt, was die Erhaltung der Struktur erleichtert.

Lärche In Bezug auf die Dauerhaftigkeit nimmt das Alter der Gebäude in mehreren Jahrzehnten ab und nähert sich der Lebensdauer von Ziegelbauten. Aber dieses Material ist teuer, wegen des dicken und zähflüssigen Harzes schwer zu bearbeiten, deshalb wird es selten für den Bau eines Blockhauses verwendet, oft als Außen- oder Innenwandverkleidung oder Bodenbearbeitung verwendet.

Mit einem unbegrenzten Budgeteinsatz das teuerste und haltbarste Material ist Eiche. Das daraus gebaute Bad wird nicht nur für Sie, sondern auch für Ihre Kinder, Enkel und möglicherweise Urenkel nützlich sein.

Aspen Badehäuser sind sehr beliebtObwohl der Baum keinen negativen äußeren Einflüssen standhält, ist er nicht so haltbar wie Nadelbäume oder Eiche.

Holzbäder erwärmen sich schnell und halten die Wärme für lange Zeit in Innenräumen.

Die Nachteile von Holzkonstruktionen sind geringer Feuerwiderstand, so dass sie nicht näher als 8 Meter von anderen Gebäuden entfernt gebaut werden können. Es ist notwendig, die Lücken in den Fugen der Stämme regelmäßig abzudichten und das Holz vor Insekten und Pilzen zu schützen.

Ziegelstein

Das zweitbeliebteste Baumaterial für die Umweltsicherheit ist Ziegel. Backsteingebäude haben eine schöne Erscheinung und Farbe, besonders wenn die Außenwände mit Verblendziegeln fertiggestellt werden. Aus diesem Material entstehen komplexe architektonische Formen mit hervorragender Stabilität.

Die Grundlage für solche Bäder ist aufgrund des großen Gewichts der Konstruktion Band oder Platte.

Die Lebensdauer von Backsteingebäuden beträgt ca. 100-120 Jahre.

Ziegel ist ein feuerfestes Material, das bei offenem Feuer im Ofen wichtig ist. Das Ziegelbad kann sich in unmittelbarer Nähe des Hauses und der Nebengebäude befinden.. Ziegelbäder erfordern aufgrund ihrer ästhetischen Struktur keine äußere Oberflächenbehandlung. Keine Notwendigkeit für Hydro- und Wärmeisolierung von WändenDas Material hat eine geringe Wärmeleitfähigkeit und eine gute Beständigkeit gegen Feuchtigkeit und schädliche Mikroorganismen.

Die Innenverkleidung solcher Gebäude ist sehr vielfältig: Schnittkanten und unbesäumte Bretter, Tapezierungen, Keramikfliesen, Kunststoffplatten, Malerarbeiten auf Putz.

Zu den Nachteilen gehören die hohen Kosten des Materials und die Notwendigkeit professioneller Fähigkeiten, um qualitativ hochwertiges Mauerwerk herzustellen. Ziegelkonstruktionen benötigen mehr Zeit zum Heizen als Holz. Die Kosten für die Innendekoration der Wände aller Räume können erheblich sein, geben jedoch dem Entwurfsplan Raum.

Blöcke

In letzter Zeit hat sich der private Blockbau verbreitet. Sie werden mit kleinen Variationen in der Zusammensetzung hergestellt und haben ungefähr die gleichen Qualitäten.

Porenbeton ist ein Material, das auf der Grundlage der chemischen Reaktion von Sand, Zement, Schaumbildnern und Wasser entsteht. Die Blöcke selbst werden in Autoklaven unter Druck und Dampfeinwirkung geformt.

Bei der Herstellung von Gas-Silikat-Blöcken werden Kalk und Aluminiumpulver zu der Zusammensetzung hinzugefügt, was ihnen zusätzliche Beständigkeit gegen Zerstörung verleiht, aber der Kalk in der Zusammensetzung macht die Gas-Silikatblöcke weniger widerstandsfähig gegen Feuchtigkeit.

Schaumblöcke haben ähnliche Eigenschaften, es ist eine kostengünstige Variante von Porenbeton, aber seine Beständigkeit gegenüber äußeren Einflüssen ist geringer als bei den ersten beiden Arten von Blöcken. Im Aufbau Schaumblock wird als zusätzliches Material für Kapitalstrukturen verwendet, aber mit der richtigen Erwärmung wird er diese Aufgabe gut bewältigen.

Schließlich ist das billigste Material Schlackensteine. Ein Cinderblock Bad ist nicht die beste Wahl.. Die Lebensdauer dieses Designs wird nicht mehr als 20 Jahre betragen, danach ist eine Überholung erforderlich.

Schlacke ist eine Verschwendung der Kohleindustrie. Die Zusammensetzung solcher Blöcke umfasst Zement und Kohle mit schäumenden Additiven.

Diese einfachen und preiswerten Materialien ermöglichen es Ihnen, in kurzer Zeit schnell ein Bad in Ihrem eigenen Bereich zu bauen. Die Konstruktion ist mit hochwertigen technischen Eigenschaften erhalten, braucht kein starkes Fundament, da es ein geringes Gewicht hat, hat eine leichte Schrumpfung.

Blöcke müssen gut abgedichtet werdenDa das Material sehr leicht Feuchtigkeit aufnimmt und dadurch zerstört wird.

Das Blockbad für den ganzjährigen Gebrauch muss isoliert werden, für den Sommerbetrieb ist eine Abdichtung ausreichend.

Die Konstruktion des Schaumblocks benötigt Futter und innen und außen. Die Wände sind mit kantigen oder unbesäumten Brettern, künstlichen oder natürlichen Blockhäusern ummantelt, um ein Holzblockhaus, Abstellgleis zu imitieren. Der Keller oder ein Teil der Wände ist mit dekorativen oder Naturstein ausgelegt, der Boden auf der Terrasse und in dem Raum ist mit einem Brett, Fliesen. Die Innenwände sind mit Mosaiken oder Fliesen verziert.

Bei der Erstellung eines Design-Projekts, unabhängig von der Wahl des Materials für den Bau des Bades, müssen Sie den Kauf von Abdichtungen berücksichtigen.Es wird für Bodenplatten und Wände des Dampfbades und des Waschraums oder der Dusche verwendet.

Imprägnierstoffe sind flüssig, gerollt und blech. Verwenden Sie im Dampfbad eine Schicht Folie zwischen der Verkleidung und der Wand für Dampfsperre. Dieses Material befindet sich in der oberen Etage, wenn es eine zweite Etage oder einen Dachboden gibt.

OSB-Platte wird oft für die Isolierung von Wänden und Dächern von innen verwendet., aber in Räumen mit hoher Luftfeuchtigkeit lohnt es sich, auf Schutz vor Feuchtigkeit zu achten.

Ideen für die Dekoration draußen

Wenn das Bad errichtet wird, beginnt der interessanteste Teil jeder Konstruktion - Außenverkleidung. In der Entwurfsphase eines Designprojekts wird ein Design-Stil erfunden, von dem die Art der Materialien für die Außendekoration abhängt.

Die äußere Oberfläche sollte eine hohe Beständigkeit gegenüber Feuchtigkeit, Frostbeständigkeit, Beständigkeit gegen Verformung und Korrosion aufweisen, um dauerhaft und ästhetisch zu sein.

Am beliebtesten ist es, die Fassade mit einem beschnittenen Brett zu ummanteln.als natürliches Holz beantwortet alle erklärten Qualitäten. Die Platte kann in verschiedene Richtungen angeordnet sein und die Formgebung der Fassaden beeinflussen. Die vertikale Position des Brettes erhöht visuell die Höhe des Gebäudes, die Horizontale macht das Haus breiter.

Modische Architekturstile bevorzugen einfache Geometrie, natürliche Farben, große verglaste Flächen.

Um einen künstlerischen Ausdruck zu geben, kombinieren sie ein Muster: der Giebel des Daches ist in einer Richtung und die Wände in der anderen Seite zusammengenäht. Es gibt eine große Vielfalt an verschiedenen Layouts des Brettes an der Außenwand: Fischgrätenmuster, diagonal, mit einer Umrandung.

Um der russischen Nationalfarbe eine einfache geradlinige Plankenwand oder ein Blockhaus zu geben, ist mit geschnitzten Schürzen, Grat und Platbands verziert. Durchbrochen geschnitzte Einsätze geben dem Gebäude Leichtigkeit und Leichtigkeit.

Sie können eine Vielfalt mit kontrastierenden Einlagen aus unbehandeltem Holz machen oder die Strukturelemente in einer anderen Farbe hervorheben.

Preiswerte Wanddekoration mit unbesäumten Brettern sieht sehr beeindruckend aus.

Die Platte wird von Rinde gereinigt, poliert, lackiert oder mit einer Ölzusammensetzung überzogen, während die natürliche Schönheit des Schnittes erhalten bleibt. Ungleiche, knorrige Kanten der Bretter verleihen der Struktur einen Hauch von Fabelhaftigkeit.

Sieht eine schöne Kombination von Materialien in der Gestaltung der Fassaden. Der beste Holzbegleiter für die Dekoration - Ziegel.

Die Säulen auf der Veranda, ein Teil der Mauer für den Außengrill unter dem Vordach, können bequem mit Ziegelsteinen, Kunst- oder Naturstein ausgelegt werden. Diese Technik gewährleistet die Einhaltung des Brandschutzes bei offenem Feuer und verbessert die Konstruktion. Ein Steinfuß verleiht dem Baum Festigkeit und visuelle Stabilität.

Das Gebäude wird brutal aussehen, wenn Sie die Fassade aus Stein komplett ergänzen.

Die grundlegende Squat-Struktur wird mit historischen Wohnungen in Verbindung gebracht. Das Dach ist in diesem Fall besser aus Fliesen oder aus Stroh zu wählen.

Moderne Technologien und Imprägnierung mit feuerfesten Mischungen erlauben Ihnen, ein zuverlässiges und haltbares Dach der Strohmatten zu verursachen. Plaque-Antiquität und Rustikalität geben dem Gebäude ein attraktives und stilvolles Aussehen und dienen als eine gute Wärmedämmung für das Bad.

Die Budget-Option wäre die Verwendung von Kunststoff-Verkleidungen für die Wandverkleidung.. Dieses Material ist leicht zu montieren, langlebig, keine Angst vor Feuchtigkeit, verblasst nicht in der Sonne, kältebeständig, hat ein vielfältiges Design und eine breite Farbpalette. Kunststoffplatten mit einem halbzylindrischen Profil schaffen eine Imitation eines Holzbottichs aus jeder Art von Holz, sogar exotischen.

Blockhaus aus natürlichem Holz reißt nicht und verformt sich aufgrund der Herstellungseigenschaften nicht.

Verputzte Wände mit strukturierten Fassadenputzen verziert oder einfach gestrichen. Aufgrund des Materials des Daches und der Fertigstellung der Fenster und der Eingangsgruppe ist es möglich, dem ukrainischen ländlichen Stil der Lehmhütten zu widerstehen oder ein Bad in der klassischen Version zu machen.

Auf dem Höhepunkt der Popularität heute das Gebäude im skandinavischen Stil. Hier müssen Sie die Wände in einem weißen Farbschema streichen und die Farbe der braunen Strukturelemente hervorheben.

Wir schaffen ein Interieur

Schritt für Schritt zur Schaffung des Innenraums muss man die Besonderheiten der Sauna berücksichtigen. Jedes Bad besteht aus mehreren Räumen mit unterschiedlichen Temperatur- und Feuchtigkeitsbedingungen.

Dampfbad

Das Herz des Bades ist ein Dampfbad, das ständig hohen Temperaturen, heißem Dampf und hoher Luftfeuchtigkeit ausgesetzt ist. Die Anforderungen für die Fertigstellung im Dampfbad - die Fähigkeit, diesen Faktoren standzuhalten.

Materialien müssen umweltfreundlich sein., denn während der Badeprozeduren findet eine Tiefenreinigung des menschlichen Körpers statt, gleichzeitig ist er mit nützlichen Substanzen aus der Umgebungsluft gesättigt.

Es ist nicht akzeptabel, synthetische und Farben zu verwenden.

Der Schaffung von rutschfesten Oberflächen wird große Bedeutung beigemessen, da unter dem Einfluss hoher Temperaturen die Aufmerksamkeit gedämpft wird. Ideal für Innenausstattung Dampfbad ist natürliches Holz.Es behält die Wärme gut, hat eine angenehme Textur, verbrennt nicht und schafft ein gesundes Mikroklima.

Wenn man das Futter für das Dampfbad wählt, ist es wünschenswert, den harzigen Koniferen aufzugeben. Beheiztes Harz produziert schwere ätherische Öle, daher eignen sich nur Zedernholz und Lärche für die Innenausstattung der Sauna.

Linden und Espe sind die am besten geeigneten und erschwinglichen Holzarten.. Sie sind sehr haltbar, haben heilende Eigenschaften, haben einen schönen, gleichmäßigen und angenehmen Lichtschnitt. Mit Schindeln werden Wände und Decken aus diesen Holzarten hergestellt und Regale gebaut, aber der Boden kann mit Lärchenholz verkleidet werden.

Kenner der Badeverfahren Einige Elemente des Dampfbades sind aus Abash-Holz. Wegen ihrer hohen Kosten werden sie das Dampfbad selten vollständig fertig stellen, häufiger ist es der Laden.

Die Holzschiene kann horizontal genäht werden - dadurch wird das Dampfbad breiter oder vertikaler, wodurch die Decke optisch angehoben wird.

Ein kleines Dampfbad ist besser in hellen Farben zu beendenes wird Raum und Frische geben. Der Durchgang zum Baldachin sollte frei sein.

Wenn sich die Feuerkammer im Dampfbad befindet, muss sie um eine Stein- oder Ziegelschutzwand gelegt werden.

Der Stein ist auch speziell ausgewählt, die beim Erhitzen nützliche Substanzen freisetzt.

Auf die Organisation der Beleuchtung sollte geachtet werden. Weiches gelbes Licht schafft eine komfortable und sichere Umgebung. Die Popularität von LED-Beleuchtung ist nicht vorbei und Saunen. Ungewöhnliche Einrichtung und futuristisches Design machen den Besuch im Dampfbad unvergesslich.

Hintergrundbeleuchtung in verschiedenen Farben bringt Farbe und positive Emotionen. während der Verabschiedung von Badeverfahren. LED-Streifen haben Helligkeits- und Farbregler, die je nach Stimmung eingestellt werden können.

Fortgeschrittene Bademeister verwenden ein einzigartiges Mineral in der Dekoration der Wände des Bades - Himalaya-Salz.

Transluzente Blöcke werden in die Wände eingefügt und von innen beleuchtet. Wenn ein solcher Salzblock erhitzt wird, setzt er Substanzen frei, die in ihrer Zusammensetzung der Seeluft ähneln.

Eine gute Option Planungslösung Dampfbad - ein Gerät der natürlichen Beleuchtung. Tageslicht macht Badeanwendungen noch angenehmer.. Die Sauna ist einfach und prägnant, und das Fenster erlaubt Ihnen, die Landschaft zu bewundern.

Diese Option erfordert Schutz vor Außenstehenden. Möglicherweise müssen Sie eine nicht transparente Verglasung verwenden.

Waschen

In den russischen Bädern des Dorfes wurde das Dampfbad mit dem Waschraum kombiniert, und bis heute funktionieren solche Bäder gut. Aber wenn ein neues Gebäude errichtet wird, ist es notwendig, einen Platz für eine Dusche zuzuweisen. Die Temperatur ist hier viel niedriger und die Luftfeuchtigkeit ist höher. Daher werden Materialien für die Endbearbeitung geeignet ausgewählt.

Das praktischste und haltbarste Material für Wand- und Bodenbeläge sind Fliesen.

Wenn nur ästhetische Konformität für Wände vorgebracht wird, dann Für den Boden werden nur Antirutschbeschichtungen verwendet.. Keramische Fliesen sind auf dem Verbrauchermarkt weit verbreitet - sowohl einzeln als auch im kompletten Satz von Wand und Boden, die Designer-Ensembles bilden. Das Zimmer wird manchmal von einem Pool ergänzt.. In diesem Fall verleiht ein einzelnes Design diesem Raum einen besonderen Charakter. Mosaik oder Fliese mit floralen Ornamenten werden einen orientalischen Geschmack hinzufügen.

Solidität und Adel geben der Dusche und dem Pool mit Natur- oder Kunststein oder Marmor einen Status. Die kompetente Organisation der Beleuchtung wird die Textur von Marmor hervorheben.Kupferfarbene Armaturen unterstreichen die luxuriöse Umgebung. Obwohl die Fläche des Raumes ziemlich klein sein mag, gibt ein interessantes Spiel der Farbe von Marmorplatten das Relief und die Fülle des Duschraums mit einem Pool.

Die Decke in der Dusche ist besser mit Kunststoffplatten zu nähen. Sie können Holz oder anderes natürliches Material nachahmen. Die Deckenpaneele, weiß mit gold- oder silbermetallisierten Einsätzen, sehen schön und praktisch aus.

Die ursprüngliche Lösung für eine Dusche mit einem Pool ist die Verwendung eines Decken- oder Wandpaneels mit einem Ornament oder einem Bild Ihres Lieblingsthemas. Erweitern Sie die Raumfenster, die eine Perspektive haben.

Ruheraum

Wenn das Dampfbad das Herz des Bades ist, ist der Ruheraum ihre Seele. Hier ruhen sie sich nach den Abläufen aus, trinken Tee und entspannen nach einer Woche Arbeit. Temperatur und Luftfeuchtigkeit sind normal, so dass Sie alle Materialien im Finish verwenden können.

Dieses Zimmer ist mit besonderer Liebe dekoriert und nach Ihren Wünschen eingerichtet. Im Vordergrund stehen praktische und pflegeleichte Hygienematerialien.

Im Inneren ist die Wand mit Holzlatten, Kunststoffplatten oder einem Blockhaus verkleidet, um ein Blockhaus zu simulieren. Wände können einfach gemalt werden oder mit Ziegeln gedeckt werden.

Tapeten sollten aufgrund der hohen Luftfeuchtigkeit nicht in Badezimmern verwendet werden.

Die Fußböden bestehen vorzugsweise aus Lärchen- oder Eichenholz, in einigen Fällen ist es angebracht, den Boden mit Granit oder Stein zu verlegen. Die Decke ist mit Kunststoff vernäht oder mit innenliegenden feuchtigkeitsresistenten Acrylfarben gebleicht.

Bei der Gestaltung des Ruheraums wird besonders auf die Möglichkeit der Einrichtung eines Kamins oder eines Ofens mit offenem Feuer geachtet. Das Spiel der Flammenzungen, angenehme Wärme schaffen eine gemütliche und entspannte Atmosphäre.

Zu diesem Zweck ist es möglich, die Feuerkammer des Ofens in den Ruheraum zu bringen, es wird angenehm sein, in einem trockenen, nicht heißen Raum zu ertrinken, und danach ist es bequem, Späne und brennende Produkte zu entfernen.

Der Ofen ist mit einem transparenten, hitzebeständigen Glas ausgestattet, das eine zusätzliche Heizung ermöglicht und Ihnen erlaubt, das Feuer zu bewundern. Handwerker können es sich leisten, im Ruheraum einen echten Ofen oder einen Kamin aus Stein und Ziegel zu bauen.

Moderne Badeöfen werden oft mit Gas oder Strom beheizt. In diesem Fall ist es sinnvoll, Zeit und Geld zu investieren und einen künstlichen Kamin auszustatten. Das Kaminportal besteht aus Gipskarton, es ist mit einer gefliesten Fliese oder einem dekorativen Stein verkleidet, ein Bio-Kamin oder eine elektrische Heizung mit Feuerimitation ist im Inneren installiert. Um der Struktur Festigkeit zu verleihen, ist der Schornstein schön zu erkennen.. Es ist auch aus Trockenbau gebaut.

Das Vorhandensein eines massiven Kamins im Ruheraum macht es zu einem Anziehungspunkt und künstlerischen Akzent. Interieur Chalet Stil. Dies ist der malerischste und schönste ländliche nördliche Stil.

Für ihn ist es obligatorisch, mit natürlichem Holz oder Stein, großen Fenstern oder Panoramafenstern mit einer natürlichen Landschaft hinter dem Glas zu beenden.

Der Raum ist mit komfortablen, hochwertigen Möbeln ausgestattet, die Wände sind mit Jagdtrophäen und Jagdszenen dekoriert. Hier ist es zweckmäßig, Leder und Häute zu verwenden.

Am nächsten an den nationalen russischen Traditionen sind Blockbohlenwände. Sie verleihen dem ländlichen Charakter einen besonderen Charme, besonders wenn Sie in einem Aufenthaltsraum ein Analogon eines russischen Ofens herstellen. Für den Bau eines echten Ofens mit einer Ofenbank müssen Sie einen Fachmann einladen, aber die Kosten werden sich lohnen, da dieser Raum als Sommerküche genutzt werden kann.

Dekorativer Ofen ist einfach mit eigenen Händen zu machen. Der Ofen ist weiß oder furniert mit Fliesen, die dem ganzen Raum die königliche Atmosphäre verleihen.

Zimmer im russischen Stil Ausgestattet mit Holzmöbeln, sind der Tisch und die Bänke oft aus Kiefer oder Eiche. Die Wände sind mit Gegenständen des bäuerlichen Lebens geschmückt.

Beeindruckend in der Dekoration von massiven Möbeln und Wänden aus gebackenem Holz. Diese Technik verleiht dem Material einen Hauch von Antike und verleiht dem Material Haltbarkeit. Verbranntes Holz wird gegen Schädlinge und Pilze praktisch unempfindlich, ist weniger anfällig für Feuchtigkeit und kann nicht nur für die innere, sondern auch für die äußere Haut verwendet werden.

Trendy Minimalismus geeignet für kleine Räume. Einfache geometrische Formen, Lattenrost, der Mangel an unnötigem Dekor zwingt uns buchstäblich dazu, uns auf die Ruhe zu konzentrieren.

Helle Farben, viel Licht und Luft, glatte Oberflächen erhöhen optisch den Raum. Transparente Trennwände dienen dazu, die Funktionszonen des Bades zu vereinen, wobei die gewünschte Temperatur und Luftfeuchtigkeit in jedem Raum gehalten wird. Die Bequemlichkeit und der Komfort des Minimalismus kann für das moderne Lebenstempo nicht überschätzt werden.

Eine sehr kleine Fläche wird für die Anordnung benötigt Lounges im japanischen Stil - Dies ist die Einfachheit und Askese der Situation, natürliche Materialien, strenge Formen.

Der Pflanzendekoration des Raumes wird große Bedeutung beigemessen. Dieses Thema ist im Bild auf Wandpaneelen oder Zubehör in Form von lebenden oder künstlichen Bonsai-Gärten.

Die Möbel können komplett fehlen, es wird durch einen sehr hochwertigen Bodenbelag ersetzt, auf dem sich die Camper befinden. Dies macht auch eine Art von exklusiven Badeprozeduren. Stein, Holz, Wasser - die notwendigen Attribute des japanischen Interieurs.

Für Leute, die in den Feinheiten des Designs der untersten Stile unerfahren sind, besser wähle moderne Klassiker. Die Wände sind verputzt und in hellen Farben gestrichen, sie nehmen leichte Möbel mit mit Kunstleder bezogenen Sitzen auf. Kamin machen ergonomische rechteckige Form, in seiner Dekoration können Sie einen dekorativen Stein oder einen stilisierten Ziegelstein hinzufügen.

Ein solches Design erfordert keine großen finanziellen Investitionen und erfüllt alle Anforderungen an Sicherheit, Hygiene und Benutzerfreundlichkeit.

Schöne Beispiele zur Inspiration.

Ein einfaches rustikales kleines Badehaus, in dem die Waschanlage mit einem Dampfbad kombiniert ist, eignet sich hervorragend für Badeanwendungen und Abendtee, wenn Sie einen Schuppen mit Terrasse, Bänke oder Korbsessel auf der Veranda anbringen, die dafür geeignet sind und einfach zu handhabende Kunststoffmöbel sind.Auf der Lichtung vor dem Bad können Sie einen Grillplatz oder einen kleinen Teich einrichten, der den Familienspaß sehr schmücken wird.

Ein antikes Bad im russischen Stil ist eine Win-Win-Option. Traditionell für kalte Klimate, sind die gedrungenen Gebäude mit einem kleinen Dampfbad und einem Waschbecken für bessere Wärmekonservierung bemerkenswert mit Hilfe von gebranntem Holz, Zeichen und Reliefkompositionen des Bad-Themas, Holzschnitzerei stilisiert. Ausrüstung mit hölzernen Eimern, Eimern und Wannen wird nationalen Geschmack hinzufügen.

Spektakuläre Gebäude werden durch Außenverkleidung erhalten. Die rechteckige Form des Badehauses mit glatten Wänden ohne Leisten mit einem üblichen Giebeldach verwandelt sich von einer langweiligen Konstruktion in ein stilvolles, modernes Bad nach einer Wandverkleidung mit einer hölzernen Lattung aus hellen Tönen und gegenüber der zentralen Fassade mit einem dekorativen Stein. Von den komplexen Elementen - nur die ungewöhnliche Form des Fensters, die die Monotonie der Fassaden brechen.

Minimalismus der Designmerkmale führt nicht zu zusätzlichen Kosten für die Dekoration und schafft mit kleinen Mitteln ein einzigartiges Designobjekt.

Mit ausreichenden Mitteln und der Hilfe von professionellen Designern und Bauherren,Sie können Eigentümer eines architektonischen Meisterwerks werden, das mit Hochtechnologie gebaut und ausgestattet wurde. Die wichtigsten Oberflächenmaterialien sind Glas, Metall, Kunststoff, Beton. Primärfarben - weiß, grau, metallisch.

Geräumigkeit, Komfort, futuristische Innenräume sind die charakteristischen Merkmale des High-Tech-Stils. Die energiegeladene und aktive Generation wird die Lounge in diesem Stil genießen.

7 Foto

Interessantes Designprojekt gehacktes Bad, siehe folgendes Video.

Kommentare
 Kommentarautor

Die Küche

Kleiderschrank

Wohnzimmer