Varianten von Badprojekten der Größe 6 mal 3 m

Bad - auf dem Land oder in einem privaten Haus - der Stolz eines jeden Besitzers. Dies ist eine wunderbare Gelegenheit, nicht nur den Körper in Ordnung zu bringen und seine Gesundheit zu verbessern, sondern auch nach einem Arbeitstag eine gute Erholung zu finden, um vor neuen Arbeitstagen neue Kraft zu tanken.

Viele Menschen ziehen es vor, sich mit dem Bau, der Auswahl der Materialien, der Schaffung des Interieurs zu beschäftigen, um das Schema auszuarbeiten - wo wird es sich befinden. Wenn der Platz für das Bad nicht zu groß in der Fläche ist, können Sie Optionen für ein 6 x 3 m Bad erwägen.

Vorbereitung für den Bau

Bevor Sie Materialien kaufen und ein Fundament bauen, müssen Sie sich über das Projekt eines 3x6 m großen Bades Gedanken machen und eine Zeichnung vorbereiten. Es ist nicht schwer, die Räume, die sich in einem Raum von 6 mal 3 Metern befinden, schematisch darzustellen.

Die Hauptsache ist, zu entscheiden, was vorzuziehen ist und zu welchem ​​Raum mehr Platz und zu welchem ​​weniger Platz.Ein wichtiges ist das geräumige Dampfbad und braucht keinen Ruheraum, der andere, im Gegenteil, benötigt einen Platz, wo Sie Gäste für Tee sammeln können, und das Dampfbad ist auch kompakt. Und der dritte Ruheraum beschließt, die Veranda zu ersetzen.

Wenn das Projekt definiert ist, müssen Sie über die Materialien des Finish nach innen und außen nachdenken. Die beste Option - der Bau eines Bades aus Holz. Wenn das Gebäude aus Betonblöcken oder Ziegeln gebaut wird, ist eine Plattierung erforderlich. Ob es sich um natürliche Materialien oder Nachahmung natürlicher Materialien handelt, hängt von den Mitteln ab, die für die Einrichtung des Bades aufgewendet werden sollen.

Hauptsache, alles wird qualitativ und unter Einhaltung der Technologie- und Sicherheitsvorschriften durchgeführt.

Benötigte Einrichtungen

Obligatorische Räumlichkeiten, sei es ein kleines Bad oder ein großes, sind das Dampfbad und die Garderobe. Die Hauptsache ist, den Raum im Dampfbad so auszustatten, dass genügend Regale vorhanden sind. In einem kleinen Raum müssen Sie sie in Form einer Leiter haben.. Der Raum muss mit Holz beendet werden. Der Ofen ist in der Ecke platziert, so dass Sie sich frei bewegen können, aber gleichzeitig sollte der Ofen bequem zugänglich sein.Wenn es sich zu nah an einer Holzwand befindet, ist es an dieser Stelle notwendig, einen Schutzschirm auszustatten oder Mauerwerk aufzutragen.

Die Beleuchtung sollte so durchdacht sein, dass sie bequem und sicher ist. Die Lampen müssen aus feuerfestem Glas bestehen oder durch zusätzliche Strukturen geschützt sein. Fülle den ohnehin schon kleinen Platz mit zusätzlichen Gegenständen, lohnt sich nicht.

Waschen kann klein gehalten werden. Die Hauptsache ist, dass es einen Platz für einen Container mit Wasser und freier Bewegung im Raum von mindestens zwei Menschen gab. Um Quadratmeter zu sparen, können Sie den Waschraum mit dem Dampfbad verbinden, obwohl Experten, die viel über das Badegeschäft wissen, dies nicht empfehlen..

Für die Lagerung der notwendigen Dinge werden Brennholz, Kohle, Badzubehör als Schuppen dienen. Brennholz kann in einer speziellen Box sein. In einigen Fällen werden Holz oder Kohle im Ofen direkt von dem im Haushaltsraum befindlichen Flügel zugeführt.

Ankleideraum ist in jedem Bad. Und in einem kompakten Raum kann es gleichzeitig als Ankleide und Lounge dienen. Es sollte ein Kleiderschrank oder bequeme Kleiderbügel sein.Hier können Sie auch einen kleinen Tisch mit Stühlen aufstellen, wo es angenehm ist, nach einem Bad zu sitzen und duftenden Tee mit duftenden Kräutern zu trinken.

Um Platz zu sparen, können Sie Schließfächer oder Regale für Handtücher, Gele, Shampoos, Öle zur Verfügung stellen. Hier, auf einem separaten Regal oder in einem Nachttisch, können Sie Teeblätter, Kräuter, Geschirr und Teekannen platzieren.

Die Räume, wo Sie einen Platz finden können, und Sie können ohne sie auskommen - ein Ruheraum oder eine kleine Veranda, die es ersetzt. Separate Räume für diese Zwecke sind praktisch, denn dort können Sie sich mit einem kleinen Familienkreis oder mit Gästen nach Badeschritten treffen und bei einer Tasse Tee unterhalten.

Erfolgreiche Projekte

Varianten von Projekten mit einer Gesamtfläche von 6x3 m sind wenige. Außerdem erfordert es mehr sorgfältiges Denken.

Dieses Zimmer ist für vier Personen ausgelegt. Dieser Bereich reicht aus, um sich bequem unterzubringen und sich nicht gegenseitig zu stören. Aber das ist die perfekte Option. Wenn nötig, kann das Unternehmen mehr sein.

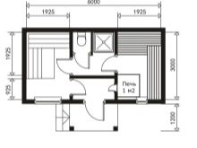
  • Projekt 1. In der kleinen Garderobe auf der linken Seite befindet sich eine Tür, von der aus man in den Ruheraum gelangen kann. Und schon vom Ruheraum aus kann man zum Waschbecken und dann ins Dampfbad gehen.Die Lounge und das Dampfbad sind gleich groß. In den Räumlichkeiten können Sie alles Notwendige platzieren. Es gibt genug Platz zum Waschen. Der Warteraum ist ebenfalls gut gelegen.

Die Hauptsache ist, alles in der Badewanne warm zu halten und nicht auf die Straße zu flüchten. Mit dieser Option können Sie dies tun.

  • Projekt 2. In diesem Fall wird der Umkleidekabine mehr als Meter gegeben, unter Berücksichtigung, dass es Möbel für Teetrinken geben wird. Von der Umkleidekabine gelangt man zum Waschbecken und von dort zum Dampfbad. Letzteres braucht mehr Platz.

In Zukunft, wenn Sie möchten, können Sie eine Terrasse befestigen, wo Sie im Sommer eine wunderbare Zeit haben können, und wenn Sie es glasieren und es gut wärmen, dann im Winter.

  • Projekt 3. Option, bei der alle Räume die gleiche Fläche erhalten. Und sie sind so angeordnet: Umkleideraum, Waschraum, Dampfbad. Das Ankleidezimmer bietet genug Platz, um sich dort auszuruhen und sich umzuziehen.

Mit einem kleinen Raum der Fantasie ist es nicht so leicht zu wandern, aber es ist durchaus möglich, ein komfortables, gemütliches und schönes Außen- und Innenbad zu schaffen. Sie müssen nur selbst bestimmen, welche Räume größer oder kleiner sein sollen und welche davon entfallen können.

Die Option, die es Ihnen ermöglicht, den Raum des Bades zu vergrößern, aber gleichzeitig auf demselben Grundstück zu bleiben - um das Dachgeschoss zu vervollständigen. Er wird zusätzliche Möglichkeiten geben, und seine Konstruktion wird nicht so problematisch werden.

Aber im ersten Stock ist mehr Platz. Sie können ein geräumigeres Dampfbad machen, einen Platz für einen Hauswirtschaftsraum finden und eine Duschkabine im Waschraum installieren. Dann wird der Raum unter dem Dach vollständig für Entspannung ausgelegt sein. Darin können Sie einen Tisch zum Tee trinken, ein gemütliches Sofa stellen und sogar eine Kochecke ausstatten.

Eine gute Ergänzung, die den Rest noch komfortabler macht, kann ein Fernseher, eine Stereoanlage, ein Karaoke-System sein. Bei Bedarf kann die zweite Etage ein Raum für Gäste sein.wer entschied sich für ein paar Tage zu bleiben. Wenn es vernünftig ist, den Raum zu verteilen, wird es einen Platz für ein gemütliches Sofa oder ein Klappsofa geben, das mit einem Bildschirm vom Teetrinkbereich getrennt werden kann.

Der Bau ist möglich, wenn sowohl ein Raum unter einem Dach als auch eine Veranda auf dem vorgesehenen Platz sind. Das Schema dieses Designs wird leicht zu durchdenken sein.Es basiert auf einem von drei Projekten, die zweite Etage beinhaltet ein freies Layout.

Wichtige Punkte

In jedem Bad - klein oder groß - ist das Hauptmerkmal der Ofen. Es kann Holz, Elektro, Gas sein, es ist für jemanden so praktisch. Aber Ideal für ein Bad ist natürlich ein Holzofen. Vor allem, wenn es ein Ziel gibt - sich an den russischen oder ländlichen Stil zu halten.

Wenn das Projekt ausgewählt wird, sind die Konstruktion und Dekoration zu Ende, es ist Zeit, sich um das Innere zu kümmern. Alles hängt vom gewählten Stil ab. Neben Russisch und Dorf, werden Provence und Chalets machen.. Moderner Stil ist auch angebracht, aber nur mit den notwendigen Elementen.

Da das Bad ein Ort ist, an dem überflüssige Dinge nutzlos sind, müssen Sie einen Stil wählen, der keine große Anzahl von Objekten beinhaltet, nur das Nötigste. Dann wird das Zimmer stilvoll und attraktiv aussehen, und vor allem wird es für jeden bequem sein - die Besitzer und Gäste.

Überblick über das Bad 3 auf 6 der Bar, siehe folgendes Video.

Kommentare
 Kommentarautor

Die Küche

Kleiderschrank

Wohnzimmer