Die beliebtesten Projekte von Garagen für zwei Autos

 Die beliebtesten Projekte von Garagen für zwei Autos

Heute hat fast jede zweite Familie, die in städtischen oder vorstädtischen Wohnungen lebt, ein eigenes Auto. Daher ist es nicht verwunderlich, dass Garagen sehr beliebt sind. Und vor kurzem begann eine spezielle Nachfrage, Garagen für 2 Autos zu verwenden. Sie ermöglichen es Ihnen, Autos zuverlässig vor allen Witterungsbedingungen und Dieben zu schützen.

Wir müssen jedoch bedenken, dass beim Bau eine Reihe von Anforderungen und Merkmalen beachtet werden müssen.

Besonderheiten

Eine gute Garage für 2 Autos ist ziemlich schwer zu bauen. Sie können es sicher mit der Konstruktion des Hauses vergleichen. Schließlich muss man bei der Gestaltung alle Normen und Normen beachten, und es gibt immer noch einige merkwürdige Nuancen. Besonders relevante Garage für mehrere Autos wird für Eigentümer von Berghütten sein.

Trotz der erheblichen Kosten für den Bau eines Doppelparkplatzes werden viele es mögen. Schließlich wird erlauben, die Garage, nicht nur die Eigentümer des Hauses, sondern auch ihre Gäste zu benutzen. Dies gilt insbesondere für nicht allzu gutes Wetter.

Eine Doppelgarage hat gegenüber einer normalen Garage einige Vorteile:

  • Erstens benötigt Baumaterial weniger als der Bau von zwei separaten Garagen;
  • Zweitens werden Kommunikationen einmal ausgeführt;
  • Drittens, wenn es in einer Familie zwei Autos gibt, dann sind beide geschützt.

Berücksichtigen Sie beim Entwurf einer Doppelgarage die Stärke. Schließlich wird die Struktur nicht nur zwei Autos halten. Es wird immer noch Platz für die Lagerung von Ersatzteilen, Werkzeugen, Geräten und anderen Dingen geben müssen. Es ist notwendig, im Voraus zu überlegen, ob es mit einer Krananlage ausgestattet wird oder ob es verschiedene Zylinder, brennbare und explosive Gase gibt.

Und auch vor Beginn des Entwurfs sollte klar sein, wie die Garage genutzt werden soll, wie das Gebäude in Zukunft verbessert werden kann, zum Beispiel kann es erweitert werden oder der Dachboden wird hinzugefügt. Beim Bau einer Garage in einer Garagengenossenschaft ist es notwendig, Informationen über benachbarte Gebäude zu sammeln, insbesondere was ihre Fundamente betrifft.

Stellen Sie sicher, in der Garage sollte eine Aussichtsgrube mit stationären Lampen sein. Standardgrubengröße - 0,9x4 Meter. Eine solche Grubengröße ermöglicht eine bequeme und sichere Autoreparatur. Es sollte beachtet werden, dass es in der Garage für zwei Autos besser ist, die Sichtgrube relativ zum Tor zu verschieben. Sie können eine Garage machen, in der der Schacht im Keller separat hergestellt wird, so dass es bequemer ist, Benzin, Reifen und so weiter zu lagern.

Es ist wichtig, dass das Gebäude einen guten Luftaustausch durch erzwungene oder natürliche Belüftung hat. Am besten entscheiden Sie sich für einen Axialventilator mit einer Leistung von 80-100 Watt. Es sollte auch auf das Vorhandensein von Rückschlagventilen im Ventilator geachtet werden.

Ein hochwertiges Fundament in der Garage ist sehr wichtig. Außerdem müssen das Geländeklima und die Bodeneigenschaften berücksichtigt werden. Die Wände werden erst errichtet, nachdem das Fundament vollständig geschrumpft ist.. Das Dach der Garage sollte so gewählt werden, dass es zuverlässig vor Witterungseinflüssen geschützt ist.

Es wird nicht überflüssig sein, im Voraus zu überlegen, welche Ausrüstung in der Garage sein wird. Schließlich werden einige Geräte mit 380 V betrieben, was bedeutet, dass Sie einen Transformator installieren müssen. Wichtig noch Achten Sie auf die Beleuchtung in der Garage, die sowohl Decke als auch Wand sein sollte.

Garage für 2 Autos kann mit einem oder zwei Toren ausgestattet werden. Ein besonders wichtiger Punkt in dieser Angelegenheit ist die korrekte Installation des Tors. Andernfalls werden sie sich neigen, und es wird Schwierigkeiten geben.

Und auch die Garage kann mit Heizung ausgestattet werden, so dass es in der kalten Jahreszeit bequemer wäre, das Auto zu reparieren. Oft unabhängige Heizung verwendet oder mit dem Haus geteilt. Die Art der Heizung wird basierend auf dem Standort der Garage relativ zum Haus ausgewählt.

Ein Platz unter dem Gebäude für die Lagerung von Autos wird gewählt basierend auf:

  • aus der Tiefe der Passage von Grundwasser und Kommunikation;
  • Feuchtigkeit und Fließfähigkeit des Bodens, Gefriertiefe;
  • Land Relief (vorzugsweise flaches Gelände);
  • Zufahrtsstraße Bequemlichkeit.

Materialien für den Bau

Oft ist eine Garage für zwei Autos in einer Haupt- oder Rahmenweise gebaut. Bei der Kapitalstruktur wird Beton oder Ziegelstein verwendet. Diese Methode zeichnet sich durch hohe Komplexität, den Einsatz von schwerem Gerät und individuelle Fähigkeiten aus. In jüngster Zeit gewinnen jedoch Rahmengaragen sowie Gebäude aus Porenbeton und Schaumstoffblöcken zunehmend an Popularität.

Um besser zu verstehen, welches Material noch besser zu wählen ist, lohnt es sich, deren Vor- und Nachteile näher zu betrachten.

Rahmen

Für Rahmenstrukturen verwendet Standard-Komponenten und Teile. Grundsätzlich werden bei Rahmenkonstruktionen Montagearbeiten durchgeführt. Von den Vorteilen von Rahmengaragen ist in erster Linie ihr geringes Gewicht zu erwähnen, da ihnen ein Betonfundament fehlt. Und die meiste Arbeit kann unabhängig voneinander erledigt werden.

Für eine gerahmte Garage werden am häufigsten schwimmende oder säulenförmige Fundamente verwendet, seltener ein Streifenfundament mit einer Tiefe von etwa 40 Zentimetern.

Die Vorteile des Rahmenbaus umfassen auch die Verwendung von meist natürlichen umweltfreundlichen Materialien, Einfachheit und Geschwindigkeit der Konstruktion, die Fähigkeit, Arbeit zu jeder Zeit des Jahres zu verrichten.

Ziegelstein

Ziegelgaragen sind eine der beliebtesten im Moment. Der Hauptnachteil einer solchen Garage ist natürlich ihr großes Gewicht. Für Ziegelstrukturen unbedingt verwendete Streifenfundament mit einer Tiefe von 0,6 bis 1,2 Metern. Außerdem sollte seine Breite mindestens 0,4 Meter betragen. Um dem Fundament eine höhere Festigkeit zu geben, wird zusätzlich Verstärkung oder Bruchstein verwendet.

Es sollte beachtet werden, dass es etwa drei Wochen dauert, um die Betonmischung vollständig zu setzen. Um den Trocknungsprozess zu beschleunigen, können Sie spezielle Additive hinzufügen. Um Risse zu vermeiden, sollte das Fundament regelmäßig angefeuchtet und mit einer Plane abgedeckt werden. Darüber hinaus muss die Basis des Fundaments isoliert und imprägniert werden.

Die Dicke der gemauerten Wände wird in der Regel in einem halben Ziegelstein gewählt. Stahlstäbe werden verwendet, um die Mauer an jeder vierten oder fünften Ziegelreihe zu verstärken. Sie sind in horizontalen Nähten verlegt. Vertikale Verstärkung wird verwendet, um Ecken mit Vorsprüngen zu verstärken.

Aus Schaumstoffblöcken

Garagen aus Schaumblöcken halten die Wärme perfekt, schnell und einfach gebaut, sie brauchen kein schweres Fundament. Gleichzeitig haben die Wände trotz ihres geringen Gewichts eine gute Schalldämmung, eine hohe Frostbeständigkeit und sind feuerbeständig und feuchtigkeitsbeständig. Schaumblöcke sind biostabil und umweltfreundlich. Zu den Vorteilen dieses Materials gehören auch seine geringen Kosten.

Trotz der großen Anzahl von Vorteilen hat dieses Material mehrere Nachteile. Das wichtigste von ihnen ist die Zerbrechlichkeit von Schaumblöcken, sie sind leicht geformte Chips. An zweiter Stelle steht die wahrscheinliche Schrumpfung der Wände, wenn viel Feuchtigkeit eindringt. Und auch die Wände aus Schaumstoffblöcken brauchen Dekoration. A Um etwas an einer solchen Wand aufzuhängen, benötigen Sie spezielle Befestigungselemente.

Aus Porenbeton

Garagen aus Porenbetonsteinen sind leicht, so dass kein massives Fundament verwendet werden kann. Und auch solche Blöcke unterscheiden sich in Haltbarkeit, Umweltfreundlichkeit, Wärme- und Schalldämmung. Außerdem ist Porenbeton widerstandsfähig gegen hohe Temperaturen und feuerfest. Es ist ganz einfach, aus Porenbeton wie im Folgenden zu bauen und zu nutzen.

Wie jedes Material hat Porenbeton einige Nachteile. Zum Beispiel Wenn Sie das Gebäude ohne Außenfassade verlassen, ist es innen sehr feucht. Dies ist auf die hohe Hygroskopie von Gasblöcken zurückzuführen. Porenbetonsteine ​​erfordern Spezialputz, nicht Zement mit Sand. Die Hauptnachteile sind die Zerbrechlichkeit der Blöcke und die Notwendigkeit, spezielle Vorrichtungen zum Positionieren zu verwenden.schwere dinge an den wänden.

Abmessungen

Bei der Gestaltung einer Garage für zwei Orte sollten Sie sich zunächst die Standards anschauen. Ihrer Meinung nach sollten die Abmessungen des Parkplatzes für ein Auto wie folgt sein:

  • die Länge - von 5,5 Metern;
  • Breite - von 2,3 Metern;
  • die Höhe - von 2,2 Metern, aber es lohnt sich, die Höhe des Autos zu berücksichtigen.

Wenn Sie diese Werte kennen, können Sie die Größe der Garage für zwei Autos einfach berechnen.

Bei der Wahl der Mindestgröße des Gebäudes für 2 Autos ist zu beachten, dass der Abstand zu den Seitenflächen mindestens 50 Zentimeter betragen sollte.

Berechnen Sie die Höhe der Garage, müssen Sie überlegen, wie komfortabel es sein wird. Damit die Höhe so angenehm wie möglich ist, lohnt es sich, die Höhe des größten Mannes der Familie zu nehmen und weitere 0,5 Meter hinzuzufügen. Es ist auch wichtig bei der Berechnung der Größe der Garage für zwei Autos und der Möglichkeit zu berücksichtigen, dass in Zukunft Autos mit anderen Abmessungen gekauft werden. Und auch in den Berechnungen ist es notwendig, die Dicke der Wände und Blindbereiche zu berücksichtigen. Dies ist auch notwendig, um die äußeren Grenzen der Struktur zu bestimmen.

In der Garage für zwei Autos Eintrittslänge sollte ca. 5,5 Meter betragen. Zum Beispiel ist die durchschnittliche Limousine 1,7 Meter breit und 4,5 Meter lang.So wird die Breite des Gebäudes für zwei Autos mindestens 3,4 Meter betragen. Bei der Berechnung ist zu überlegen, wie der Raum um das Auto herum angeordnet wird, damit sich Fahrgäste und Fahrer bequem setzen oder verlassen können.

Der Platz für ein Auto mit offenen Türen beträgt etwa zehn bis fünfzehn Zentimeter. Um die Länge zu messen, sollten Sie eine Bestandsaufnahme in eineinhalb Metern machen.

Bei der Planung eines Garagenprojekts ist zu berücksichtigen, dass damit beispielsweise eine Werkstatt, ein Dachboden realisiert wird. In diesem Fall sollten die Abmessungen deutlich erhöht werden. Es ist aber auch sinnvoll, den Platzbedarf für die Lagerung von Ersatzteilen und Werkzeugen zu berücksichtigen. Die optimale Fläche ist eine Doppelgarage von 50 m².

Projekt

Das Garagenbauprojekt wird viele Fragen klären. Es ist besonders notwendig für eine Doppelgarage. Beim Erstellen eines Projekts wird ein Bauplan erstellt, dessen Kosten geschätzt werden.

Es sollte angemerkt werden, dass sorgfältige Planung und Design Ihnen ermöglichen, ein Garagengebäude mit minimalen Kosten zu bauen. Außerdem wird das Projekt der Garage die Möglichkeit geben, die Arbeit vernünftig zu verteilen, wenn der Aufbau nicht mit seinen eigenen Händen gemacht wird.

Bezüglich der Möglichkeiten für Projekte von modernen Garagen gibt es viele. Angefangen von typischen einstöckigen Garagen mit Aussichtsplatz, Keller oder Schuppen bis hin zu zweistöckigen Wohnungen mit einem zweiten Wohngeschoss. Und auch der Garagenbau kann mit Werkstätten, Lagerräumen, Ruheräumen, Gästezimmern, Billardräumen und anderen zusätzlichen Räumlichkeiten ausgestattet werden.

Das Entwerfen einer Garage für zwei Autos kann sowohl unabhängig als auch mit der vorgefertigten Option durchgeführt werden. Unter den Projekten können Sie wählen, wie ein Modell, das eine große Menge bietet, und das Individuum vom Architekten.

Zonen

Das Projekt sollte die gewünschte Zone vorgeben. Schließlich ist der Garagenplatz oft nicht auf das Parken von Autos beschränkt. Es sollte eine kleine, aber sehr wichtige Landezone bieten.

Oft ist in der Garage ein Werkstattbereich. Sie muss mindestens den Platz für die Aufbewahrung von Werkzeugen und Ersatzteilen darstellen. Oft ist die Garage nicht nur mit einer Aussichtsplattform, sondern auch mit einem Aufzug ausgestattet. All dies muss im Laufe der Planung vorgesehen werden.

Wenn das Gebäude ein hozzlok ist, dann ist auch seine Zone eine Überlegung wert.Voraus gedacht haben, wie der Eingang zu ihr organisiert wird (von der Garage oder von der Straße). Wohnboden in der Garage wird meistens als Zweitplatzierung ausgeführtund es ist auch wert, einen bequemen Eingang zur Verfügung zu stellen. Erholungsgebiete werden auch oft im Voraus zur Verfügung gestellt.

Wenn Sie sich also im Voraus um den Garagenplatz kümmern, können Sie nicht nur einen funktionalen, sondern auch einen gemütlichen und angenehmen Platz bekommen.

Beispiele für Gebäude

Unter den Beispielen für Garagenkonstruktionen gibt es recht interessante moderne Versionen, die Aufmerksamkeit verdienen.

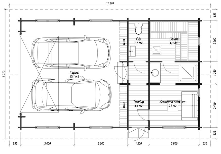
  • Garage für zwei Autos aus Schaumstoffblöcken 6x11 Meter groß mit einem Wirtschaftsblock. Für dieses Gebäude wurde eine monolithische Platte als Fundament gewählt, und Schaumblöcke wurden für die Wände verwendet. Das Dach der Garage besteht aus Dachstühlen, und als Dach wird eine Metallfliese gewählt. Die Wände der Garage sind mit Ziegeln ausgekleidet. Wie für das Tor sind sie automatisch Schnitt gemacht. Die Wirtschaftseinheit ist im gleichen Stil mit einer Garage gemacht. Das Einzige, wofür er auffällt, ist seine Größe. Der Eingang zum Hozblok, der von der Straße und aus der Garage gemacht wird, macht es noch bequemer zu benutzen.
  • Garage für zwei Autos 7x13 Meter mit einer Wohnetage und einem Wirtschaftsblock. Für dieses Gebäude wurde ein monolithisches Fundament und Wände aus Schaumstoffblöcken mit einer Dicke von 2 cm verwendet. Und die Wände haben eine Isolierung. Das Dach ist Giebel mit einem Neigungswinkel von 25 Grad. Da das Dach aus Metall ist. Die Wände sind mit Holzimitat dekoriert, was sie komfortabler macht. Tore in dieser Garage werden automatisch gerollt. In diesem Projekt nimmt die Garage eine kleinere Fläche ein als eine Wohnetage mit einem Versorgungsteil. Es ist kompakt mit einer komfortablen Fahrt gemacht. Der Zugang zum Haushalt direkt aus der Garage fehlt. Von außen ist es jedoch mit einem Visier bedeckt, das über dem ersten Stock hängt, wo sich der Haushaltsteil befindet. Die Wohnetage wird zweiter gemacht.

Dieses Layout ist ideal für einen kleinen Vorstadtbereich, wo ein großes Apartmenthaus nicht den Wunsch oder die Möglichkeit hat zu bauen. Alles, was Sie zum komfortablen Wohnen benötigen, kombiniert mit einer Garage und braucht nicht viel Platz.

  • Garage für zwei Autos Rahmen 6x10 Meter mit Dachboden auch eine interessante Option. Das Fundament ist eine monolithische Platte. Die Rahmenwände sind auf einer Seite der OSB ummantelt. Von der Garage bis zum Dachboden ist eine Holztreppe. Die flexible Fliese wirkt wie ein Garagendach.

Was das Äußere des Gebäudes betrifft, wird es durch Abstellgleis und dekorativen Stein dargestellt. Die Fenster der Garage sind mit Kunststoff-Doppelglasfenstern verglast.

Tore in diesem Projekt werden vom automatischen Rollen gemacht. Das Aussehen dieser Garage ist sehr einfach, aber im Inneren ist es geräumig, und es gibt einen Ort nicht nur für die Lagerung und Reparatur des Autos, sondern auch für die Ruhe. Diese Option wird eine großartige Lösung für ein Land Grundstück und für die Garage Community sein.

Im nächsten Video finden Sie einen Überblick über das Projekt einer Garage für zwei Autos mit einer zweiten Etage.

Kommentare
 Kommentarautor

Die Küche

Kleiderschrank

Wohnzimmer