Feinheiten der Anordnung der Garage: interessante und nützliche Ideen

Heutzutage kann sich kaum ein Autofahrer sein Leben ohne Garage vorstellen. Dieser wichtige Raum dient als Unterschlupf für Ihr geliebtes Auto und erfüllt gleichzeitig eine ganze Reihe von nützlichen Funktionen - eine Werkstatt, einen Lagerraum und oft Rastplätze.

Deshalb gibt es viele Feinheiten der Anordnung der Garage, deren Studium helfen wird, die Garage so organisch wie möglich zu machen.

Besonderheiten

Auf den ersten Blick mag die Anordnung der Garage sehr einfach erscheinen. Aufgrund der Tatsache, dass die Garage in der Regel ein kleiner Raum ist und einige ziemlich einfache Funktionen hat. Aus dem gleichen Grund tauchen jedoch eine Reihe von Merkmalen auf, die für diesen Raum einzigartig sind.

Die erste in Bezug auf die Anordnung ist die Frage der Brandschutzsicherheit um Situationen zu vermeiden, in denen Sie sowohl die Garage als auch das Auto sofort verlieren können.

Es ist notwendig, im Voraus zu bestimmen, welche elektrischen Geräte in der Garage verwendet werden, und nicht zu vergessen, die Beleuchtung hinzuzufügen.Muss alleine oder mit Hilfe eines qualifizierten Elektrikers durchgeführt werden. Berechnen Sie die Netzwerklast. Dies ist ein wichtiger Teil der Planung, der die Eignung eines Transformators und von Kabeln identifiziert.

Wenn Sie die Verkabelung und den Transformator ersetzen müssen, wäre die beste Option, ein dickeres Kabel für große Lasten mit einem Rand zu kaufen. Wenn der Besitzer der Werkstatt in Zukunft beispielsweise eine Schweißmaschine kaufen möchte, muss er diese Komponenten nicht wechseln.

Das zweite wichtige Merkmal der Anordnung der Garage ist die Isolierung. Basierend auf dem Klima der Region, in der sich die Garage befindet, wird ein ausreichendes Isolationsniveau berechnet. Sonst wird die Garage die meiste Zeit des Jahres nicht ihre direkte Funktion erfüllen können und das Auto wird einfach einfrieren.

Der Nutzen der Arten der Isolierung der Voraussetzungen ist jetzt mehr als genug. Sie werden individuell in Fachgeschäften ausgewählt. In diesem Fall Wie hoch sollte die Temperatur im Raum sein? Wie groß ist die Dicke der Wand und welches Material werden sie verwendet?und berücksichtigt auch die Notwendigkeit einer nachträglichen Fertigstellung dieser Wände.

Bei einer Erwärmung im Inneren können Sie eine einfache Isolierung der Wände mit Schaum machen. Dies wird für einen komfortablen Aufenthalt in der Garage ausreichen und es wird länger möglich sein, eine akzeptable Temperatur für das Auto beizubehalten.

Ein radikaler Weg, um Wärme zu bewahren, kann Heizdraht mit einem Thermostat sein.. In diesem Fall wird die konstante erforderliche Temperatur immer in der Garage aufrechterhalten.

Neben den offensichtlichen wichtigen Merkmalen der Anordnung der Garage lohnt es sich im Voraus zu entscheiden, für welche Zwecke die Garage genutzt wird. Wenn es nur als Unterschlupf für ein Auto, Lagerung von Reifen und Ersatzteilen dient, dann sollten Sie vielleicht nicht zu ernst mit der Verarbeitung sein.

In dem Fall, in dem die Garage auch für eine Reparaturwerkstatt ausgerüstet werden muss, besteht ein Bedarf für eine ausführlichere Anordnung und Dekoration.

Projekt

Nachdem entschieden ist, was genau in der Garage sein wird, ist es an der Zeit, das Projekt zu erstellen. Um dies zu tun, können Sie sich mit dem notwendigen Briefpapier bewaffnen und ein Garagenlayout erstellen. Und es ist auch möglich, das Projekt der Garage von Experten zu bestellen. Beide Optionen sind gut Die Hauptsache ist, dass beim Erstellen einer Skizze wichtige Punkte notiert werden:

  • Höhe, Länge und Breite des Raumes. Hier ist Genauigkeit wichtig, vernachlässigen Sie Zentimeter, können Sie später entdecken, dass ein wichtiger Teil der Möbel nicht dem verbleibenden Raum entspricht.
  • Bestimmen Sie, was genau darin sein wird, und machen Sie die Dimensionen dieser Dinge: Regale, Werkbänke, Regale und so weiter. Alles, was auf die eine oder andere Weise Platz beansprucht, sollte sich im Projekt widerspiegeln. Ansonsten kann es sein, dass der verbleibende Platz kaum für die Maschine selbst ausreicht. Natürlich ist die erste, auf die Dimensionen der Garage aufzubauen. Keine Notwendigkeit, Möbel und Ausrüstung für einen Durchschlag zu arrangieren, wie andere Besitzer.

Für eine 3x6 m große Garage würde eher eine Werkbank an der gegenüberliegenden Wand aufgestellt, was beim Arbeiten mit einem Motor sehr praktisch ist.

Bei einer 4 x 6 m großen Garage ist es bereits möglich, den Raum unter dem Auto leicht zu verschieben, wodurch die Seitenwand frei wird. Es gibt mehr Optionen für die Anordnung.

  • Der nächste Schritt ist, die ausreichende Breite der Gänge zwischen den Regalen, Regalen und dem Auto zu überprüfen, wenn es in der Garage ist. Es ist ratsam, diesen Gegenstand während der gesamten Projektentwicklung nicht zu vergessen. Dann ist es einfach, die korrekte Platzierung der Möbel zu verfolgen.
  • Schließlich wählen Sie das Tor.Alles hängt davon ab, wie viel Geld der Besitzer der Garage ausgeben möchte. Es gibt spezielle Tore mit erhöhtem Schutz. In der Regel werden sie mit mehreren Schlössern geliefert, sie sind zusätzlich mit Scharnieren ausgestattet, durch die ein Spezialkabel geführt wird. In diesem Fall wird ein Haken im Garagenboden angebracht, um das Kabel zu befestigen, das als zusätzlicher Schutz dient, wenn die Schlösser der Aufgabe nicht gewachsen sind.

Zusätzlich können die Tore der Garagen von innen weiter isoliert werden. Wenn das Projekt eine warme Garage vorsieht, ist dies notwendig, da es aus den Lücken zwischen dem Tor und dem Rahmen ausbricht. Aber auch als wärmende Garagentore können die Innenverkleidungsschindeln mitgehen.

Hier besteht jedoch die Gefahr, dass das Paneel aufgrund des Temperaturunterschieds führt und dass es notwendig ist, das Paneel an Ort und Stelle zu klopfen.

In der Projektphase wird über die Eignung der Inspektionsgrube entschieden (in Ermangelung dessen). Eine Alternative zur Grube kann als mobile Überführung dienen., der das Auto zum Öffnen nach unten drückt.

Nehmen wir als Beispiel eine Standardgarage von 6x3 m, dann gibt es in der Version mit einer Rampe ein offensichtliches Minus - das sind Dimensionen und dementsprechend der Platz, den sie in der Garage einnehmen werden. Im Gegensatz zu einer Garage von 6x4 m, wo ein extra Meter den nötigen Platz bietet.

    Unabhängig von der Größe des Raumes besteht immer die Möglichkeit, die Idee eines Kellers zu verkörpern. Somit wird zusätzlicher Platz für die Lagerung von Gegenständen oder selten genutzten Geräten zur Verfügung stehen.

    Außerdem, Der Keller spielt auch die Funktion einer Aussichtsgrube. Und auch genug Innenraum für mehr Graben und Keller. Dies ergibt einen großen Vorteil der Funktion und der Kosten beim Verkauf der Garage.

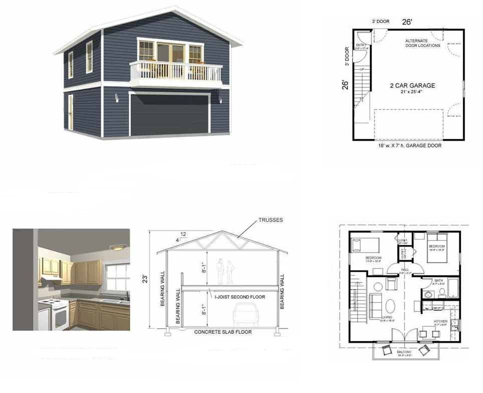
    Immer beliebter werden nun Garagen mit Wohnräumen.. In der Regel ist das Wohnzimmer ein Überbau über der Garage, mit Heizung und allem Notwendigen ausgestattet.

    Sie können diese Option für die Zukunft in Erwägung ziehen und in der Projektphase das Add-In mit allem berücksichtigen, was Sie benötigen, um Geld zu sparen.

    Fertig

    Von erheblicher Bedeutung ist die Inneneinrichtung. Material für Wände, Boden und Decke kann unterschiedlich sein. Vergessen Sie neben den offensichtlichen ästhetischen Qualitäten nicht die Praktikabilität und vor allem die Sicherheit. Heute, um die Garage zu verbessern, ohne Sicherheit und Funktionalität zu opfern, können Sie fast alle Materialien verwenden.

    Hauptsache, sie haben bestimmte Eigenschaften:

    • Flammwidrigkeit. Ein wichtiger Punkt, besonders wenn das Schweißen in der Garage geplant ist.
    • Beständigkeit gegenüber verschiedenen Chemikalien. Wenige Leute denken darüber nach, es für unwichtig zu halten. Die Wände oder der Boden, die mit der falschen Farbe gestrichen sind, können jedoch schnell abschälen, wenn sie mit Benzin oder Lösungsmitteln in Berührung kommen.
    • Beständigkeit gegen mechanische Beschädigung. Ein Beispiel für eine nicht erfolgreiche Option kann hier als Trockenbau dienen. Bei einem geringen Schutz gegen mechanische Einwirkungen wäre es unangemessen, sie an den Wänden anzubringen.
    • Verschleißfestigkeit und Haltbarkeit. Stimmen Sie zu, niemand möchte jedes Jahr einen neuen Putz oder eine neue Farbe auftragen. Daher ist es notwendig, diesen Gegenstand besonders an Orten mit rauem Klima zu betrachten.
    • Umweltfreundliche Materialien. Vergiss nicht, dass wir über Innendekoration reden. Durch die Verwendung von Materialien für die Außenlackierung als langlebiger und verschleißfester Materialien besteht die Gefahr, gesundheitsgefährdendes Material zu erhalten. Sie sollten die Gebrauchsanweisung vor der Auswahl sorgfältig studieren.
    • Schließlich sollten Materialien nicht schmutzig werden. Da Nuance jedoch auf die eine oder andere Weise in der Garage ist, wird es Kontakt mit den Wänden geben und so weiter. Daher ist es wichtig, darauf zu achten, dass das verwendete Material keine Spuren auf der Kleidung hinterlässt.

      Es gibt eine große Auswahl an Materialien auf dem Markt, die diese Anforderungen mehr oder weniger erfüllen. Und Sie können Innenverkleidungen mit Ihren eigenen Händen ohne viel Mühe leicht durchführen.

      Am häufigsten ist Gips. Diese Option wird wegen ihrer Effizienz, Haltbarkeit und Einfachheit am häufigsten für Wanddekorationen verwendet. Außerdem verputzen Wände viel schneller.

      Eine andere Sache, wenn Sie Gips verwenden, um die Decke zu beenden. Hier kann es zu offensichtlichen Schwierigkeiten bei der Arbeit kommen, und der Verbrauch steigt deutlich an.

      Außerdem soll man nicht vergessen, dass nach dem Auftragen des Putzes die Vorderfarbe aufgetragen werden muss. Andernfalls kann das Pflaster anfangen zu brechen.

      Das zweite Material mit ähnlichen Eigenschaften für die Ausrüstung ist Keramikfliesen. Sein Vorteil ist erhöhte Festigkeit, die es ermöglicht, für Bodenbeläge verwendet werden. Der offensichtliche Nachteil sind die Energiekosten für die Reparatur der eigenen Hände. Darüber hinaus benötigt es viel mehr Zeit zum Abschluss.

      Ein Pluspunkt kann Haltbarkeit sein, ein angenehmeres Aussehen und die Möglichkeit, einen Farbton und ein Muster für jeden Geschmack zu wählen.

      Ein interessantes Material für die Dekoration ist Holz.. Natürlich reden wir nur über Holzverkleidung Wände. Im Falle der hölzernen Ordnung gibt es ein großes Plus - die Feuchtigkeit, die sich innerhalb des Raumes anhäuft, wird die Wände übernehmen, die mit hölzernen Schindeln verziert sind. Dieses Finish schafft die günstigsten Voraussetzungen für die Lagerung des Autos.

      Es gibt Fälle, in denen komplett neue Autos in Garagen mit Holzverkleidung für mehr als dreißig Jahren gelagert wurden. Sie hatten überhaupt keinen Rost.

      Möbel

      Die Verbesserung der Garage kann nicht ohne Möbel abgeschlossen werden. Der erste Schritt besteht darin zu bestimmen, wie viel Geld für diesen Artikel ausgegeben wird. Auf dieser Grundlage sehen Sie die Notwendigkeit, die Garage mit Möbeln aus eigener Hand auszustatten. Aber Vergessen Sie nicht, dass das Hauptmaterial der Möbel immer noch Metall ist.

      So beruht alles auf dem Hauptattribut der Möbel - einer Werkbank. Die fertige Werkbank kostet je nach Modell und Größe viel Geld. Neue Werkbänke, in der Regel komplett aus Metall. Das macht sie fast ewig.

      Der offensichtliche Vorteil ist hier die Einsparung von Zeit - es wird ziemlich schwierig sein, eine solche Werkbank selbst herzustellen.

      Werkbänke haben eine unterschiedliche Anzahl von Ebenen und sind immer mit kleinen Schubladen ausgestattet, was sie sehr komfortabel macht. Alle Werkzeuge sind immer griffbereit und die Arbeitsfläche ist immer bereit.

      Aber die Eisenwerkbänke sind ziemlich schwer. Die Tischplatte und die Basis verstehen meistens nicht. Dies erschwert den Transport der Werkbank. Alternativ kann die Herstellung einer Werkbank manuell erfolgen.

      Das Hauptmaterial für den Ersatz von Metall ist Holz. Von diesem können Sie den Hauptrahmen der Werkbank, Schubladen und sogar die Tischplatte zusammenbauen. Dies wird das Gewicht der fertigen Struktur signifikant reduzieren und weitere Platzierung und Bewegung erleichtern. Aber vergessen Sie nicht, dass die Werkbank, da sie der Hauptarbeitsplatz ist, nachhaltig sein muss. Deshalb Das Design muss eine starke Basis haben.

      Die Tischplatte aus Holz muss mit Blech abgedeckt werden, sonst verliert die Werkbank ihre Funktionalität.

      Neben der Werkbank sind Regale die zweitwichtigsten Attribute von Garagenmöbeln. Alles ist hier viel einfacher. Es gibt eine große Anzahl verschiedener Regale aus Metall, die für die Garage bestimmt sind.

      Bereit Regal wird die bequemste Option sein.. Regale kommen in verschiedenen Größen, die einfach zu montieren sind. Es ist notwendig, nur über die Tatsache zu entscheiden, dass sie gelagert werden, und wählen Sie Racks mit Regalen für dieses Gewicht aus.

      So müssen Sie nicht für zusätzliche verstärkte Regale überbezahlen, oder umgekehrt werden Sie in der Lage sein, ein Regal aufzusammeln, das viel Gewicht aushält.

      Manchmal sind die Regale auch aus Holz. Jedoch Diese Option ist nur für kleine zusätzliche Regale geeignetfür jede Art von Wissen ausgelegt. Das Hauptregal aus Holz kann mit der Zeit schielen und instabil werden.

      Ausrüstung

      Es ist notwendig, das Vorhandensein und die Notwendigkeit verschiedener Arten von Ausrüstung zu berücksichtigen.

        Waschen

        Immer mehr Garagenbesitzer ziehen es vor, in der Garage eine Autowaschanlage zu haben. Natürlich wird es keine vollwertige Wäsche sein, aber es wird ausreichen, um das Auto zu waschen. Waschbecken werden als Fertigware verkauft, sie benötigen wenig Platz und sind einfach zu benutzen.

          Um die Garage mit einem Waschbecken auszustatten, müssen Sie nur Wasser zuführen und ablassen, wenn es nicht direkt auf der Straße möglich ist.

          Kompressor

          Wichtig ist der Kompressor.Optionen für den Einsatz in der Garage sind endlos. Angefangen von einer einfachen Reifenbefüllung bis hin zur Reinigung von Werkzeugen, Ausblasen von Autoteilen oder Reinigen der Ecken der Garage von unzugänglichem Staub.

            Schweißvorrichtung

            Bei der Wahl eines Schweißgerätes ist es im Voraus zu wissen, wofür es eingesetzt wird. Geeignet für konventionelle elektronische Schweißgeräte AC. Aber es ist nicht für Arbeiten am Körper geeignet, da es Löcher brennen kann. Für diese Zwecke wird eine Vorrichtung mit einer Wolframelektrode und einem Schutzgasmedium benötigt.

              Wasser-Ölabscheider

              Dieses Gerät wird für Malerarbeiten in der Garage benötigt. Ermöglicht das Reinigen der Luft von Wasser, Öl und anderen Elementen, die beim Lackieren ungünstig sind.

              Richtig ausgewählte Ausrüstung kann das Leben eines Autofahrers erheblich vereinfachen. Ausrüstungsoptionen, die in der Garage platziert werden können, eine ziemlich große Anzahl. Man muss sich nur an den begrenzten Platz in der Garage erinnern.

              Eine Zwei-Ebenen-Garage ist eine ausgezeichnete Option für diejenigen, die ihre Garage auf höchstem Niveau ausstatten wollen.

              Tipps und Tricks

              Diese Tipps sind eher für Besitzer von Betongaragen geeignet.Ideen für die Einrichtung einer solchen Garage.

              Aber neben der Idee selbst gibt es auch eine Reihe von kleinen, aber wichtigen Dingen, an die man sich erinnern sollte:

              • Es ist wichtig, auf das Dach der Garage zu achten. Neben einer guten Isolierung sollte es zumindest eine geringe Neigung für die Neigung des Wassers aufweisen. Die Kante des Daches, die über dem Tor ist, ist es besser, den Abfluss auszustatten. Somit wird geschmolzener Schnee oder Regenwasser nicht in die Lücke zwischen der Garage und dem Tor eindringen.
              • Außerdem sollte geprüft werden, wo und in welchem ​​Zustand sich die Schaltanlage befindet, von der aus Leitungen zur Versorgung der Garage mit Strom versorgt werden. Wenn sich der Schild außerhalb befindet, sollte der Abfluss so platziert werden, dass kein Wasser zum Schild fließt. Der Schild selbst muss vom Eindringen von Wasser isoliert sein - mit einer Kappe versehen.
              • Garage muss belüftet sein. Meistens in dieser Rolle sind Lüftungsöffnungen - kleine Löcher in den oberen Teilen der Wände. Im Winter müssen sie vor dem Eindringen von Schnee geschlossen sein. Im Sommer - offen, um den Entzug von Feuchtigkeit zu gewährleisten.
              • Wenn in der Garage Schweiß- oder Chemikalienarbeiten durchgeführt werden sollen, gibt es nur wenige Verkaufsstellen. Es ist besser, die Garage mit Abluftventilatoren auszustatten, wenn es unmöglich ist, mit einem offenen Tor zu arbeiten.Eine Alternative können Auspuffrohre sein, die an der Oberseite der Garage angebracht sind, und Lufteinlässe (unten in der Wand gegenüber den Rohren angebracht). Diese Methode ist jedoch nicht immer effektiv.
              • Der Zufahrtsteil der Garage sollte ebenfalls eine Neigung vom Tor haben. Dies gilt insbesondere für Garagen mit niedrigerem Niveau. Ohne eine ordnungsgemäße Neigung wird sich Regenwasser am Tor sammeln, was zu einem Durchsickern der unteren Decke führen kann. Dies führt in der Regel zur Zerstörung der Basis der Garage.

              Die Qualität der Garagenzufahrt ist nicht nur für mehrstufige Garagen wichtig. Zusätzlich zur Ansammlung von Feuchtigkeit, Falsche Neigung kann das Verlassen der Garage erschweren. Dies ist nicht sehr praktisch und kann sich im Winter nachteilig auswirken. Wenn das Auto noch nicht warm genug ist, ist es besser, es nicht zusätzlichen Belastungen auszusetzen.

              Schöne Beispiele

              Schließlich einige schöne Beispiele für die Anordnung von Garagen:

              • Organisches Layout aller wichtigen Werkzeuge. Werkzeuge sind immer zur Hand und sauber.
              • Es sieht einfach aus, aber funktionelle Anordnung der Möbel, so dass Sie den meisten Platz frei lassen können.
              • Die mutige Entscheidung, die große Ausgaben verlangt.Das Fenster bietet Zugang zu zusätzlichem Sonnenlicht, eignet sich aber eher für Garagen mit guter Sicht von der Rückwand.
              • Erfolgreiche Möbelauswahl für diejenigen, die das gesamte Werkzeug verstecken wollen, aber immer Zugriff darauf haben.
              • Ein Beispiel für eine einfache, hausgemachte Werkbank, auf der alle notwendigen Geräte leicht zu finden sind und an der man arbeiten kann.
              • Holzwerkbank mit Platz für dimensionale Dinge. Anstelle von Boxen, unter den Werkzeugen Platz an der Wand.

              Wie man die Garage ausrüstet, siehe nächstes Video.

              Kommentare
               Kommentarautor

              Die Küche

              Kleiderschrank

              Wohnzimmer