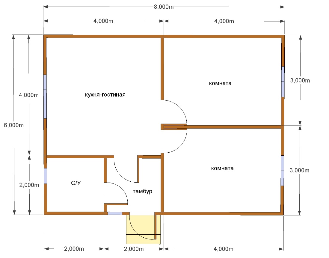
Das Projekt des Hauses ist 8x6 m oder 48 qm. mit einem tollen Layout

Die Besitzer eines privaten Grundstücks denken oft darüber nach, welche Art von Haus sie bauen wollen, denn dieses Gebäude ist seit vielen Jahren, also müssen Sie sorgfältig und ernsthaft nachdenken. Zuallererst ist es wichtig, ein Projekt zu wählen, das heißt, sich mit dem Layout eines 1- oder 2-stöckigen Gebäudes im Inneren, der Anordnung der Räume, ihrer Fläche und Menge auseinander zu setzen.

Dies ist keine leichte Aufgabe, die eine verantwortungsvolle Haltung erfordert. Aber wenn Sie die verschiedenen Optionen erkunden, werden Sie definitiv finden, was Sie mögen und auf alle Anfragen antworten.

Vorteile

Eine solche Wohnung kann als gemütlich und recht geräumig angesehen werden, wenn sie richtig genutzt wird. Und dazu ist es notwendig, alle Details zu berücksichtigen, die Räume optimal zu gestalten und alle Voraussetzungen für ein komfortables Leben zu schaffen. Es ist erwähnenswert, dass man in einem solchen Haus aufgrund der Leichtigkeit der verwendeten Strukturen eine Sanierung durchführen kann.

Sie werden eine große Vielfalt von Projekten sehen, sei es ein klassisches Haus aus Holz oder Ziegel, ein zweistöckiges Gebäude mit einem geräumigen Dachboden oder eine kompakte Wohnung mit zwei Schlafzimmern und einem großen Saal für die Aufnahme von Gästen.

Für das Layout ist es wichtig, zusätzliche Details zu berücksichtigen. Dazu gehören Panoramafenster, das Vorhandensein einer Terrasse, Veranda oder Balkon, ein Keller, und oft ist die Organisation einer Sauna mit einem Bad sehr gefragt.

Besonderheiten

Um nicht nur ein geräumiges, sondern auch ein komfortables Haus zu bauen, müssen bestimmte Regeln eingehalten werden. Natürlich möchte ich Platz auf der Website sparen, aber gleichzeitig hatte jeder genug Platz, es war gemütlich und warm. Das Projekt der Häuser von einer Bar 6 mal 8 m ist sehr gefragt, da sie viele Vorteile haben. Solche Strukturen sind kompakt, obwohl die Gesamtfläche als ziemlich beeindruckend betrachtet werden kann.. Was die Kosten betrifft, ist ein solches Gehäuse viel billiger als die Konstruktion von Beton oder Ziegeln.

Aber es hängt alles von persönlichen Wünschen ab, und wenn Sie mit dem Haus aus dem üblichen Holz nicht zufrieden sind, können Sie eine Rahmenoption wählen. Die Technologie der Konstruktion eines solchen Objekts ist anders konstruktive und andere Merkmale. Zunächst einmal ist es wichtig, eine bestimmte Art von Rahmen zu wählen, da sie in verschiedenen Versionen angeboten werden. Es wird empfohlen, Hilfe von einem qualifizierten Techniker zu suchen. wer kann Rat geben und nützliche Ratschläge geben.

Die Klassifizierung von Rahmenkonstruktionen hängt vom Prinzip der Montage von Elementen und Teilen ab. Darunter sind Fachwerk-, Frame-Shield-, Rack-and-Beam- und Panel-Modelle.

Es gibt andere Methoden, die häufig während des Aufbaus benutzt werden und ausgezeichnete Eigenschaften haben. Also, wenn Sie sich entscheiden, ein Haus 6x8 m zu bauen, wählen Sie zuerst das Projekt und entscheiden Sie über den Standort der Räume.

Layout von einstöckigen und zweistöckigen Gebäuden

Es gibt viele Möglichkeiten für Ferienhäuser mit solchen Parametern. Die beliebtesten sind Ferienhäuser mit zwei Etagen, die sich hervorragend für Familien mit Kindern eignen. Diese Unterkunft besteht aus mehreren geräumigen Zimmern. Natürlich ist das Haus mit hochwertigen Toiletten, Badezimmern und allen anderen Annehmlichkeiten ausgestattet.

Wenn wir über zweistöckige Projekte sprechen, gibt es oft "Service" -Zimmer am unteren Rand, aber es gibt immer ein Wohnzimmer und es kann eine Lounge geben. Das Layout umfasst zwei Schlafzimmer an der Spitze und ein zusätzliches Badezimmer, dessen Größe bescheidener sein kann.als auf der ersten Etage.

Wenn Sie an der Sanierung eines Privathauses interessiert sind, dann können Sie das ganz einfach und leicht machen. Bis heute verwenden viele in solchen Situationen spezielle Programme, dank denen Sie ein Projekt vorbereiten und sehen können, wie alles aussehen wird.

Das ist praktisch und vor allem können Sie Fehler vermeiden und alles richtig berechnen. Anordnung von Räumen in Wohnimmobilien kann sinnvoll und optimal sein.

Bei der Auswahl der Baustoffe sollte viel Aufmerksamkeit geschenkt werden, denn für die Gestaltung eines Holzhauses (umweltfreundliche Materialien) oder Ziegelhäuser gelten eigene Regeln.

Die innere Organisation des Raumes hängt ausschließlich von der Anzahl der Räume, ihren Parametern und ihrem Zweck ab.

Ein einstöckiges Haus von 6 bis 8 m ist ideal für kleine Familien, da es zwei Zwei-Zimmer-Wohnungen geben kann, zusätzlich können Sie sogar ein Bad und einen Heizraum einrichten. Um den Raum ergonomisch und komfortabel aussehen zu lassen, können Sie eine Veranda anbringen, die im Sommer zum Essen einlädt. Sie können das Projekt eines solchen Hauses mit einem Dachboden ergänzen, um den Raum zu vergrößernSolche Optionen sind sehr gefragt.

Die zweite Etage der Cottages ist in der Regel für Betten sowie Gästezimmer vorgesehen. Im Erdgeschoss befindet sich eine geräumige Küche, die mit einem Esszimmer sowie einer großen Halle kombiniert werden kann.

Die Kosten für ein Landhaus von 6 bis 8 Metern sind gering, daher sind diese Häuser gefragt. Ob es ein Ferienhaus ist, wo Sie nur für Ferien oder Wochenenden kommen, oder es ist eine komplette Wohnung, Die Hauptsache ist, das Projekt korrekt zu organisieren und auf die Hilfe von Fachleuten zurückzugreifen. Wenn Sie sich entscheiden, ein Haus mit zwei Etagen zu bauen, können Sie überlegen, ob Sie einen Balkon haben oder eine kleine Veranda im Obergeschoss bauen, vor allem, wenn Sie von dort eine atemberaubende Aussicht haben.

Projektvorbereitungsregeln:

  1. Entscheiden Sie sich für die Anzahl der Zimmer. Da es sich um eine Wohnung mit einer Fläche von 48 Quadratmetern handelt, gibt es vielleicht nicht zwei, sondern mehr Zimmer, eine geräumige Küche und sogar zwei Badezimmer. Die Größe der Räumlichkeiten hängt von Ihren Wünschen und Anforderungen ab.
  2. Die Art der Bedachung spielt eine wichtige Rolle und sollte bei der Planung besonders berücksichtigt werden, da es viele Varianten gibt.
  3. Die Form des Hauses ist wichtig, weil es die Parameter und die Lage der Räume beeinflusst.Sie können eine quadratische, rechteckige, facettenreiche Struktur nach Belieben bauen.
  4. Entscheiden Sie sich für die Art der Konstruktion, denn es gibt einige Unterschiede zwischen der Hütte und der Datscha oder Gästehaus.

Schöne Beispiele

Eine ausgezeichnete Lösung für ein Haus mit Parametern von 6 bis 8 Metern wird ein Haus mit einer geräumigen Küche sein. Wenn man aus dem Haus kommt, kann man die Treppe sehen, und das Wohnzimmer kann zum Beispiel in der Nähe liegen. Ein Badezimmer kann in der Nähe des Eingangs ausgestattet werden. Wenn Sie sich entscheiden, eine Wohnung mit einem Dachboden zu bauen, wird es möglich sein, drei Schlafzimmer in das Layout aufzunehmen, und dies ist eine gute Option für eine große Familie.

Wenn wir über den Bau eines Gartenhauses sprechen, kann das Projekt kein Badezimmer beinhalten. Nach der Planung wird das Gebäude nur ein Schlafzimmer, ein großes Wohnzimmer und eine ziemlich gemütliche Küche haben, die in das Esszimmer verlegt wird. Wenn es möglich ist, ein Mansardenzimmer zu bauen, wird es zu einem Schlafzimmer. Eine Vergrößerung des Raumes, wie oben erwähnt, ist möglich. auf Kosten der Veranda, die sowohl offen als auch geschlossen sein kann, Alles hängt von Ihren persönlichen Wünschen ab.

Die folgende Option ist ideal für Gebiete mit schöner Natur.Und wenn sich von Ihrer Webseite die ungeheure Aussicht öffnet, ist nötig es vorteilhaft zu verwenden. Architekten können ein interessantes Layout anbieten, das eine Terrasse einschließt, in der Sie die Landschaft genießen können. Wenn Sie das Haus betreten, befinden Sie sich in einem kompakten, aber gemütlichen Flur.

Von hier aus führt der Korridor in eine Halle voller Sonnenlicht, gefolgt von einer riesigen Küche oder einem kleinen Platz zum Kochen und Essen. Es kann mehrere Ausgänge von der Halle geben - zwei zu den Schlafzimmern und eins zum Badezimmer. In Anwesenheit des Dachbodens kann es ein Bett oder ein Kinderzimmer machen.

Zusammenfassend lässt sich sagen, dass vor jeder Konstruktion zuerst das Projekt vorbereitet werden muss. Sie können es selbst tun, wenn Sie Erfahrung mit solchen Problemen haben, oder professionelle Hilfe von qualifizierten Architekten suchen. Erfolge!

Überblick über das Projektrahmenhaus 8x6 Quadratmeter, siehe folgendes Video.

Kommentare
 Kommentarautor

Die Küche

Kleiderschrank

Wohnzimmer