Das Layout der Hausgröße 8x10 m: Beispiele für das Design

Die Planung sogar eines kleinen Landhauses mit einer Fläche von 8x10 Metern gibt der Phantasie viel mehr Spielraum als dem Bau von Gebäuden mit kleinerer Fläche. Diese Größen eignen sich aufgrund ihrer Kompaktheit und Geräumigkeit am besten für Vorstadthäuser. Und außerdem passt es perfekt in die Größe eines kleinen Abschnitts. Dieses Haus eignet sich nicht nur für saisonale Feiertage, sondern auch für Daueraufenthalte.

Entwickeln Sie einen Plan für ein kleines Häuschen und denken Sie in einem regelmäßigen rechteckigen Gebäude über das Innere bis ins kleinste Detail nach. Die Planung eines Ferienhauses in dieser Gegend wird keine Schwierigkeiten bereiten. Ungewöhnliche Räume, Innenecken und diagonale Anordnung erschweren das Projekt des Hauses. Deshalb Gebäude von 8 x 10 Metern werden weniger raffiniert, aber funktioneller im Vergleich zu attraktiven, geräumigen Ferienhäusern mit Erker, geschlossenen Terrassen und geräumigen Balkonen.

Besonderheiten

Das erste Kriterium für die Verbesserung der Hütte ist ihre Größe.Ein Haus von 8x10 Metern mit einer einfachen rechteckigen Form wird als eine ziemlich gute und profitable Lösung angesehen. Wenn die Nutzfläche 80 Quadratmeter Wohnfläche ohne Balkon, Veranda, Heizung und Technikräume beträgt, dann ist eine Etage eine geräumige Vierzimmerwohnung. Aufgrund der großen Anzahl von Nebengebäuden ist der nutzbare Wohnraum jedoch reduziert.

In jedem Fall ist es bei der Entwicklung eines Landhauses wichtig, die Interessen und Vorlieben jedes Familienmitglieds zu berücksichtigen. Kinder wollen ein geräumiges Spielzimmer, Eltern wollen ein gemütliches Schlafzimmer und kreative Menschen eine gemütliche Werkstatt.

Natürlich ist das keine geräumige Villa, aber jedes Familienmitglied wird seinen eigenen Platz haben.

Der Hauptvorteil eines kleinen Hauses ist moderate finanzielle Kosten für den Bau und die anschließende Wartung. Sie können auch eine kleine Grundsteuer angeben. Beim Bau der Stützkonstruktionen eines einstöckigen Hauses ist keine größere Verstärkung der Wände erforderlich, so dass Sie viel sparen können. Aber für eine große Familie sind solche Häuser nicht immer geeignet, und dazu ist es notwendig, das Projekt mit einer zusätzlichen Verstärkung der Fundament- und Stützstrukturen auszuarbeiten.

Ein einstöckiges Haus mit einer solchen Fläche kann mit einem Dach- und Kellergeschoss ausgestattet werden. Jeder Raum wird den nutzbaren Lebensraum vergrößern. Die unterirdische Zone hat keinen nominellen Einfluss auf die Anzahl der Stockwerke, ermöglicht aber eine vollständige Erweiterung des Wohngeschosses. Im Erdgeschoss finden Sie einen Platz nicht nur für Haushalts- und Haushaltsräume mit Geräten, sondern auch für einen kleinen Fitnessraum, Sauna, Werkstatt oder Billard.

Und mit einem Mansardendach können Sie den Wohnraum vergrößern und ein zusätzliches kleines Schlafzimmer, ein Kinderzimmer, eine Lounge oder ein Arbeitszimmer platzieren. Bei Bedarf können Sie zusätzlich einen Platz für eine Speisekammer und ein Ankleidezimmer finden. Ein solches Layout eignet sich gut für ein Landhaus. Die Gesamtkosten für den Bau eines Dachbodens oder eines einfachen Hochdaches mit zwei Steigungen sind nicht viel anders. Darüber hinaus haben die Zimmer im Dachgeschoss einen besonderen Charme.

Aber ein solches Layout erfordert zusätzliche Heizung und Strom.

Aber gleichzeitig ist das Minus eines Landhauses das Es hat direkten Zugang zur Straße und impliziert keinen warmen ZugangDaher unterscheiden sich das Layout einer Berghütte und einer Wohnung erheblich.Es ist wichtig, einen Vorraum, eine geschlossene Veranda oder einen zusätzlichen warmen Korridor in der Nähe der Eingangstür einzurichten, der Sie vor dem kalten Straßenschmutz schützt und Ihnen Platz für Schuhe spart. Und es ist auch notwendig, zusätzlichen Raum für Kesselausrüstung zuzuweisen.

Das detaillierte Design sollte Kommunikationsnetze umfassen. Wenn das Haus für dauerhafte Unterkunft bestimmt ist, Es ist notwendig, das Layout und den Standort von Engineering- und Kommunikationsnetzwerken sorgfältig zu erarbeiten. Zusätzlich zur Heizung sollten die Wasserversorgung, das Abwassersystem und die Elektrizität in der Hütte reibungslos funktionieren. Die Bindung der Hütte an die Netze sollte in Übereinstimmung mit den Hygiene- und Hygienestandards erfolgen.

Idealerweise ist es notwendig, Notstromquellen, wie einen Generator, einen Feststoffkessel, sowie eine unabhängige Energiequelle - einen Sonnenkollektor auf dem Dach - auszustatten.

Innenausbau

Die komfortable Unterkunft hängt von der Lage des Hauses auf dem Gelände, der Lage der Kommunikationsnetze, der durchdachten Aufteilung und der Inneneinrichtung ab. Wände, Decke und Boden sind direkt vom Material des Hauses abhängig.In der Flachbauweise kommen verschiedene Materialien zum Einsatz: Holz, Ziegel, Schaumstoffblöcke, Stein. Und jeder hat seine Vor- und Nachteile.

In Vorstadtbau bevorzugen meist Holz. Das Holzhaus ist kostengünstig und umweltfreundlich für zukünftige Mieter. Ein wichtiger Faktor ist auch eine lange Lebensdauer und moderne Holzverarbeitungstechnologien machen das Leben in einem solchen Haus komfortabler.

Die sparsamsten sind die Hütten von gazoblokov. Ein Betonblock ermöglicht es Ihnen, ein Haus in kurzer Zeit und zu geringen Kosten zu bauen. Der Ziegel ist eine Art Klassiker, der keine besonderen Ideen erfordert.

Bei der Gestaltung eines privaten Hauses ist es wichtig, sich an einige Regeln zu erinnern:

  • Räume und Räume sollten durch gemeinsame Netzwerke verbunden sein. Zum Beispiel ist die Küche und das Badezimmer besser in der Nachbarschaft gelegen. Dies reduziert die Kosten für Engineering- und Kommunikationsnetzwerke und vermeidet zusätzliche Kosten.
  • Die Anordnung des Hauses und die Lage der Räume und Räume hängt direkt von den Himmelsrichtungen ab. Die Fenster des Wohnzimmers sollten nach Süden oder Osten zeigen. Und das Wohnzimmer und Kinderzimmer - auf der Südseite.Auf der Nordseite ist es besser, eine leere Wand oder ein Nichtwohngebäude mit kleinen Fenstern zu entwerfen. Diese Platzierung von Wohnräumen wirkt sich positiv auf das Mikroklima und die natürliche Belüftung des Hauses aus.
  • Fenster mit Zugang zu einer geschlossenen Terrasse oder einem warmen Balkon sind mit Fenstertüren zum Boden sinnvoller zu machen. Dies wird den Raum mit natürlichem Licht und Luft füllen.
  • In einem einstöckigen Landhaus können Sie einen Elektrokessel mit kleiner Kapazität, einen warmen Boden und einen Kamin im größten Raum als integrierte Heizung nutzen.
  • Windströme sollten in die Hänge der Dächer gerichtet werden, um die Belastung der Struktur mit starken Böen zu reduzieren. Und es ist wünschenswert, die Schuppen und Flugzeuge auszurüsten, um die Wände vor Wind und starkem Regen zu schützen.

Zonierung

Ein gut durchdachtes Projekt muss alle Wünsche und Anforderungen an Komfort erfüllen. Es bietet einzigartige Möglichkeiten für verschiedene Layouts und die Organisation des Innenraums. Für eine Fläche von 8 x 10 m ist es wichtig, die Haupt- und Nebenräume und -räume korrekt zu gestalten. Und trotz der kleinen Wohnfläche, kann es eine einzigartige und bequeme Anordnung haben.

Der Raum kann in einzelne kleine isolierte Zonen unterteilt werden oder umgekehrt, um keine Partitionen zu haben, um freien Raum zu erhalten.

Sie können leicht die Hauptgebäude einer geräumigen Stadtwohnung einrichten: eine Küche, ein Wohnzimmer, ein Schlafzimmer und ein Kinderzimmer. Und wenn Sie die Küche und das Wohnzimmer kombinieren, dann gibt es zusätzlichen freien Platz für ein weiteres Schlafzimmer oder Arbeitszimmer.

Für die Zonierung eines Landhauses, das nur im Sommer und am Wochenende genutzt wird, ist es besser, ein offenes Layout mit einer Mindestanzahl von Trennwänden zu wählen.

Bei der Gestaltung des Layouts spielt die Lage des Hauses auf dem Grundstück eine Schlüsselrolle, die sich auf die Platzierung der Fenster und die Lage der Räume auswirkt. In der Berghütte muss ein Platz für das Schlafzimmer sein, wo Sie sich nach einem langen Tag bequem ausruhen können. Nun, wenn die Fenster auf die Ost- oder Südostseite blicken. Wenn das Haus nur in der Sommersaison und am Wochenende genutzt wird, Sie können Räume nicht nach der Anzahl der Mieter, sondern nach Funktionalität verteilenZum Beispiel ein gemeinsames Kinderzimmer für alle jungen Familienmitglieder.

Bei der Zoneneinteilung sollte besonderes Augenmerk auf das Wohnzimmer gelegt werden, da Haushalte und Verwandte in diesem Raum die meiste Zeit verbringen. Daher sollte das Zimmer einen zentralen Platz im Haus einnehmen, eine gute Beleuchtung haben, warm und gemütlich sein.

Sie können den Wohnraum auf Kosten von zusätzlichen Trennwänden zugunsten des offensten Raumes erweitern und das Wohnzimmer mit der Küche in der Art von Studio kombinieren.

Wenn das Haus zweistöckig ist, ist es besser, die Zimmer wie folgt einzurichten. Räumlichkeiten im Erdgeschoss sollten dem gemeinsamen Bereich - Wohnzimmer, Küche, Flur und Badezimmer gegeben werden. Und die zweite Etage ist für die Schlafzimmer isoliert Zimmer und ein zusätzliches Badezimmer verwendet. Nicht schlecht neben dem Gästezimmer.

In einem eingeschossigen Gebäude genügt es, ein gemeinsames Badezimmer zu stellen. Und wenn das Haus nur im Sommer und am Wochenende statt einer Badewanne genutzt wird, ist es besser, Platz zu sparen, um einer Kompaktdusche den Vorzug zu geben, die in einem Landhaus mehr gefragt ist.

Schöne Beispiele und Optionen

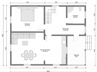
Die beste Option für ein einstöckiges Haus ist es, ein Wohnzimmer und eine Küche zu kombinieren.Gleichzeitig scheint der Raum größer zu sein, obwohl er zwei funktionale Zonen enthält. Für große Familienessen, Treffen mit Familie und Freunden werden ausreichend Platz von 10-12 Quadratmetern sein.

Es ist sinnvoller, die Eingangstür in der Mitte oder in der Ecke des Gebäudes anzuordnen. Dann können Sie rund um den Flur und Flur mit Treppe in den zweiten Stock organisieren.

Natürliche Straßenbeleuchtung von jedem Zimmer ist vernünftiger von mehreren Seiten zu organisieren. Zum Beispiel das Projekt der ersten Etage des Hauses, wo das Wohnzimmer und die Küche von drei Seiten beleuchtet werden, und das Schlafzimmer von zwei.

Einstöckiges Haus kann mit dem Dachboden komfortabler und funktionaler gemacht werden. Zusätzliche Räume können für Freizeitbereiche, eine Bibliothek oder ein Kinderzimmer genutzt werden. Von der funktionalen und architektonischen Seite macht der Dachboden das Haus attraktiver und interessanter.

Eine weitere Möglichkeit, den Wohnanteil zu erhöhen - die Basis auszustatten. In diesem Fall dient die untere Etage als zusätzliches Fundament und ermöglicht es, dort alle Nutzräume und technische Ausrüstung zu bewegen. Auch der Keller kann als Keller genutzt und dort gelagert werden.

In einem Landhaus kann mit einer Garage ausgestattet werden, die Hauptsache - um es von der Hauptwand des Wohnzimmers zu trennen. Es ist wichtig, nicht nur den äußeren Eingang der Straße, sondern auch den inneren durch das Haus zu machen, so dass der Autobesitzer nicht auf der Straße einfrieren oder bei Regen oder Schnee nass werden muss, wenn Sie zur Garage laufen müssen.

Kleine kompakte Häuser fügen sich perfekt in die Landschaft ein. Und die Nutzung aller drei Elemente: Garage, Dachboden und Keller - wird das Leben in einem einstöckigen Haus komfortabler und bequemer machen.

Ein interessantes Hausprojekt mit einem Dachboden, siehe unten.

Kommentare
 Kommentarautor

Die Küche

Kleiderschrank

Wohnzimmer