Portal for the fireplace of plasterboard do it yourself

In the modern world, people are trying to arrange their home as beautifully as possible, to create in it an island of comfort, where it is so nice to take a break from everyday fuss. Very popular for decorating the interior in recent years are fireplaces. The huge variety of types and models allows to place them even in urban small-sized apartments. However, to achieve the perfect harmony of the fireplace with the design of the room, it is necessary to build a portal for it - an external decorative box in which the fireplace is installed.

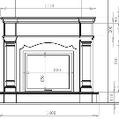
7 a photo

Kinds

Depending on the type of hearth, fireplace portals are divided into:

  • Open firewood portals;
  • Portals with closed wood burning;
  • Portals for electric fireplaces;
  • Portals for false fireplaces.

If you decide to build a portal yourself, then you need to be very careful when choosing the material from which you plan to construct it.His choice depends on the type of fireplace for which it is intended. So remember:

  • For electric and decorative fireplaces in the construction of the portal, you can use drywall, plastic, polyurethane, wood;
  • For wood fireplaces used marble, sandstone, granite, brick, natural and artificial stone. You can also use drywall and wood, but you need to build additional thermal protection.

The most simple and cheap option for making a portal for the fireplace with your own hands is drywall. However, when designing it, the following nuance should be taken into account - this structure is created at the planning stage of the room; further movements and adjustments are not allowed. Therefore, careful coordination of dimensions and other necessary attributes, such as the presence of ventilation holes and space for wiring, is necessary. The advantage of drywall is its plasticity, with its help, the fireplace portal can be given any shape.

Design

  • First, select the type of fireplace for which you intend to build a drywall portal.If you live in a city apartment, it is best to choose an electric or biofireplace;
  • Decide on the shape and size of the portal. The selected fireplace should fit in it. It is also necessary to correlate the desired size of the portal with the parameters of the room, do not make it too large or too small;
  • Next, we prepare a detailed scheme, on which we indicate the dimensions of all elements of the portal, calculate the number of materials required for construction. Consider all the nuances and recheck the data several times - it is much easier than reworking something already in the design process.

How to make

  • In the selected location of the fireplace, transfer to the walls and floor drawing of its main elements;
  • Construct the frame of the metal profile (it is recommended to use the guide and rack profile), attach it to the wall;
  • Next, build from the profile the so-called “podium” - the bottom of the portal, after which you can form the framework of the portal itself with a firebox. The frame must be reinforced; to do this, we fix transverse beams from the rack profile every 15–20 cm over its entire area;
  • In the prepared box insert electric heater.Such a preliminary “fitting” is very important, because at this stage of construction there is still an opportunity to correct possible flaws, for example, if the fireplace is tight, then you need to increase the size of the firebox - unscrew the profile, move it to the desired distance and screw it again;
  • Before covering the frame with plasterboard sheets, you will have to make the holes in them from the inside of the portal opposite the exhaust ducts in the electric fireplace body;
  • The next stage is to cover the box with sheets of drywall. Use screws, not more than 2.5 cm long and finely carved, preferably black. It can be sheathed both in one and in two layers - it depends on the choice of materials for decoration. A simple decor can be made with a single-layer plating, while the complex (for example, decorating a portal with an artificial stone, plaster moldings) will require a double layer;
  • We take a deep penetration primer and thoroughly saturate the entire drywall surface;
  • Before applying decorative elements, the surface of the portal must be covered with a layer of putty; to protect the corners, choose a perforated corner profile;
  • Your further actions depend on the chosen method of decoration. If you are going to paint your portal, sand the surface to achieve perfect smoothness, then paint it. If your goal is facing a portal with tiles or other decorative elements, then simply glue them onto the prepared surface with the help of special glue;
  • On top of the portal, a so-called mantel is being constructed from a double layer of gypsum board - it is on it that you will put your frames with photos and other knick-knacks. Since a certain load will fall on it, it is necessary to strengthen it with an additional profile and attach it to the wall. Visually, the shelf should look like one with the overall construction of the portal;
  • For a more spectacular look, you can complement the design of the portal with sidewalls and footstool, which are made using plaster, stone or other decoration materials.
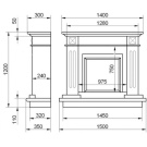
7 a photo

The above plan for the step-by-step installation of the gypsum board portal for the electric fireplace is also suitable for making a false fireplace, but it will require additional decoration in the form of a mirror on the back wall,imitations of fire, beautifully laid firewood in the hearth, etc. Your imagination will be the best assistant at this stage of finishing.

Design

By style, portals are as follows:

  • In classic style. The most common type of portals. Their distinctive feature is the rigor of design, the clarity of lines. As a rule, they do not require any additional decorations. Paint the portal with white paint, you can add a little gilding;
  • In country style. If you want to choose this design for your portal from gypsum, decorate it with tiles under natural stone or brick. As jewelry, place bronze knick-knacks on the mantelpiece;
  • In high-tech style. Generally, such portals are made of steel and glass, but if you are set up to fulfill your portal in this style, paste it with a black self-adhesive glossy film, add mirror or glass inserts, put glass on the mantelpiece. From above you can hang the TV;
  • In modern style. A distinctive feature of this type of portals is a mixture of classic and modern research. Such portals are suitable for almost any interior.
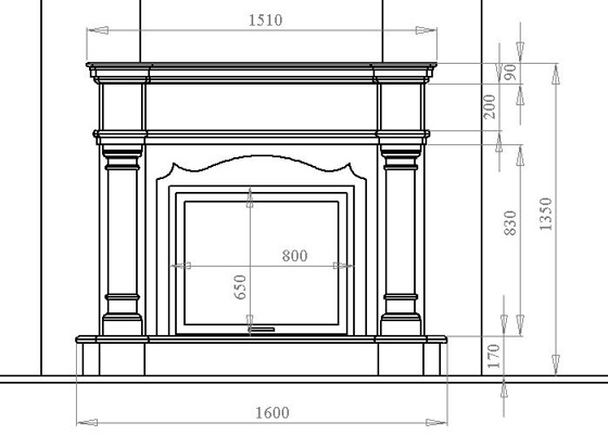
11 a photo
Comments
 Comment author

Kitchen

Wardrobe

Living room