Wie mache ich einen Stuhl mit eigenen Händen?

 Wie mache ich einen Stuhl mit eigenen Händen?

Handgefertigte Möbel sind immer sehr praktisch und ungewöhnlich. Es lässt sich am besten an Ihre Bedürfnisse anpassen und gleichzeitig Gäste, Freunde und Verwandte mit einem originellen Produkt angenehm überraschen oder einfach komfortabel platzieren. So ist es in fast jedem Interieur unmöglich, auf schöne und bequeme Stühle zu verzichten, sei es eine Wohnung oder eine Berghütte.

Darüber hinaus ist es nicht so schwierig, sie selbst herzustellen, sondern es ist sogar angenehm und interessant, da Sie mit diesem Verfahren Ihre gestalterischen Fähigkeiten voll und ganz offenbaren können.

Materialauswahl

Das erste, worüber man bei der Gestaltung von Sitzmöbeln nachdenken sollte, ist das Material.Die richtigen Ideen können spontan kommen - zum Beispiel kann ein altes und unbenutztes Holzbett in einem Landhaus als guter Ausgangspunkt für mehrere neue Stühle dienen. Und tatsächlich ist Holz vielleicht die praktischste und bequemste Möglichkeit, Sitze zu schaffen. Sie können Eiche und Kiefer und viele andere Arten verwenden. Welches zu wählen ist eine Frage des Geschmacks und Könnens. Also Eiche oder Buche ist schwierig zu verarbeiten, aber Produkte aus ihnen sind strukturiert, solide und zuverlässig..

Der selbstgemachte Stuhl aus dem Massiv eines Baumes wird perfekt sowohl auf einer Land Datscha, als auch in vielen Stadtinnenräumen, besonders stilisiert Halbantike aussehen. Darüber hinaus ist es eine der einfachsten Möglichkeiten. Einfacher als Holz kann ein Stuhl nur aus Sperrholz, Spanplatten oder Spanplatten hergestellt werden. Sie können es von der Wandverkleidung machen.

Bei der Herstellung von Holzstühlen können Bretter, Stämme, Holz und andere Gegenstände nützlich sein. Wicker Stühle sind in der Regel aus Korbgeflecht. Neben anderen beliebten Materialien - Wandverkleidung, Profilrohre, Pappe. Möbel können aus Polypropylen oder geformten Rohren hergestellt werden. Die Verwendung von Paletten und sogar Reifen ist erlaubt.

Zu den komplexeren Optionen gehören Glas und Metall. Um ein geschmiedetes Produkt herzustellen, bedarf es bestimmter Fähigkeiten sowie der Verfügbarkeit von Schweißgeräten und dementsprechend einer schützenden Gesichtsmaske. Gefälschte Sitze sind sehr stark und zuverlässig, aber bei der Arbeit an ihnen sind maximale Konzentration, Klarheit und hohe Professionalität wichtig, da die kleinste Ungenauigkeit in den Berechnungen den Stuhl "lahm" oder unangenehm macht, und es wird schwierig sein, diesen Fehler zu beheben.

Glass Stuhl ist auch eine interessante Option, aber es ist noch delikater Arbeit. Solche Produkte sehen in modernen und modernen Innenräumen gut aus.

Sie können Materialien kombinieren. Zum Beispiel, ein Sitz aus Metall, Sperrholz oder Spanplatten, die Beine der Bars, die Rückseite - der Bretter. In Grenzen Oberflächen unterschiedlicher Muster können in der Phase des Lackierens und Dekorierens ausgeglichen werden. Die Hauptsache ist, nicht in exzessiven Eklektizismus zu verfallen.

Es ist jedoch besser, die Vorstellungskraft nicht einzuschränken. Bei der Herstellung des Sitzes können Sie fast jedes verfügbare Werkzeug verwenden. Die Handwerker machen schöne Hanfmodelle, alte Baumstämme, fast alles!

Hauptsache bequem sein und sanft sitzen. Vergessen Sie nicht, dass spezielle Bettwaren und weichmachende Materialien oft verwendet werden, um die letztgenannte Eigenschaft zu organisieren, die sogar die Oberfläche "nivellieren" kann.

Zweck

Sitzplätze, unabhängig organisiert, können in verschiedenen Innenräumen verwendet werden. Meistens sind diese Stühle gemacht, um ein Landhaus zu geben, weil sie perfekt in die stilistischen Besonderheiten dieser Räume passen.

Darüber hinaus werden Ungenauigkeiten in der Arbeit oder Materialmängel oft zu Vorteilen, da sie Natürlichkeit und Natürlichkeit betonen. Daher, als Grundlage für geeignete und alte Boards, und Protokolle, unnötige Geräte. Warum zum Beispiel eine alte und wackelige Trittleiter oder Leiter nicht zerlegen und nicht mehrere Stühle für einen Bauerntisch gleichzeitig daraus machen.

Der Sitz kann jedoch für jeden anderen Raum hergestellt werden - die Hauptsache ist, eine vernünftige und machbare Idee zu finden und die geeigneten Materialien dafür zu wählen:

  • Für die Küche. Küchenstuhl ist sehr unscheinbar. Es kann nicht sehr hoch gemacht werden. Oft gibt es Modelle ohne Rücken.Viele Materialien sind dafür geeignet: von Kunststoff bis Holz. Es ist wünschenswert, dass das Design leicht und haltbar geworden ist. Sie können mit Beschichtung und Färbung experimentieren. Viele Menschen mögen helle Farben. Wenn die Küche groß ist, ist es sinnvoll, an den Projekten der Barmodelle zu arbeiten. Das ist schwieriger - solche Modelle sind höher und mobiler, Sie müssen spezielle Mechanismen und Federn installieren, um die Rotation zu organisieren.

Fügen Sie das jedem Küchenstuhl hinzu, können Sie Räder anbringen. Im Essbereich, besonders wenn Sie mit Kindern leben, ist es sehr praktisch.

  • Für das Bad Es ist vorzuziehen, Holz zu verwenden. Es ist wichtig, das Holz gut zu polieren, da der Stapel aufgrund der erhöhten und instabilen Feuchtigkeit und Temperatur im Raum aktiv ansteigt.
  • Für den Arbeitsraum Es ist einfacher, Stühle zu kaufen, aber in einigen Fällen ist es sehr ratsam, sie selbst zu machen. Zum Beispiel, wenn wir über einen Stuhl für einen Studenten sprechen. Kinderstuhl "Schule" kann an die Körperhaltung des Kindes angepasst werden. Kinder wachsen auch ständig, und der Stuhl kann jederzeit neu gestaltet werden, um sein Wachstum zu ändern. Dies ermöglicht es, viel zu sparen, ohne jedes Jahr neue Möbel zu kaufen.
  • Für das Schlafzimmer und Wohnzimmer. Normalerweise machen sie entweder ein kleines Bett, einen Hochstuhl oder einen Schaukelstuhl. Die letztgenannte Option erfordert gut entwickelte Fähigkeiten in der Tischlerei, da für die unteren Teile der Struktur abgerundete Teile ausgeschnitten werden müssen, die die "Mobilität" solcher Möbel ermöglichen.

Selbstgemachte Stühle können nicht nur zum Sitzen, sondern auch zum Schlafen und Entspannen genutzt werden. Schaukelstuhl, Chaiselongue, Hängematte - all das sind recht realistische Projekte.

Konstruktionen

Es gibt einige grundlegende Arten von hausgemachten Stühlen. Zum Beispiel kann ein Stuhl mit einer Rückenlehne gefaltet, stationär usw. sein. Betrachten Sie die wichtigsten Designmerkmale:

  • Mit oder ohne Rückenlehne. Im ersten Fall ist der Rücken etwas, auf das man sich verlassen kann, die zweite Option ist einfach eine Fläche mit einem Sitz - ein Hocker. Es ist am einfachsten zu machen. In der Tat ist jeder Stub bereits ein Prototyp dieser Idee. Die Hauptsache ist, auf die Basis zu achten.

Möbel mit einem zurück zu machen ist nicht so einfach. Erstens werden viel mehr Details für den Rahmen benötigt, und zweitens ist es wichtig, ein Gleichgewicht zwischen der Stabilität des Fundaments und den Möglichkeiten hinsichtlich des Drucks gegen den Rücken zu finden, so dass er nicht umkippt oder fällt. Die Rückseite kann gefaltet werden.

  • Falten und Falten. Klappmodelle verwenden typischerweise einen speziellen Metallstab oder ein anderes Element, das eine Produktflexibilität bietet. In der Regel bedeutet Faltung, den Sitz zur Rückseite zu bewegen. So lassen sich beispielsweise auf dem Land Klappstühle platzsparend nebeneinander an die Wand stellen.

Bitte beachten Sie, dass die Basis auch faltbar sein sollte und dementsprechend nicht fest fixiert werden sollte.

Es gibt aber auch interessantere Produkte, die jedoch eine höhere fachliche Qualifikation für ihre Herstellung erfordern. Auf diese Weise verändern die Trafositze während des Betriebs ihr Design: Höhe, Rückbiegung und andere Elemente und passen sich in einigen Fällen sogar an die anatomischen Merkmale der Figur an. Solche "wachsenden" und manchmal komplett zusammenklappbaren Modelle sind für Kinder und Jugendliche gut geeignet.

  • Mit oder ohne Drehen. Screw Drehstühle sind weit verbreitet in Büroräumen, aber sie können überall verwendet werden. Zusätzliches Element - Räder. Möbel auf Rädern sind mobil und praktisch.
  • Sattel oder flache Oberfläche. Im ersten Fall divergieren die Beine in einem Winkel.Es ist schwierig, ein solches Produkt selbst herzustellen, da es wichtig ist, seinen Hauptvorteil nicht zu verlieren - die richtige Belastung der Wirbelsäule zu gewährleisten. Nach einigen medizinischen Untersuchungen sind die Vorteile des "Sattels" jedoch fraglich. Tatsache ist, dass die Haltung eines Reiters zur Verletzung der natürlichen Zirkulation in den Beckenorganen beiträgt und zur Entwicklung von Prostatitis und anderen Krankheiten führt.
  • Mit und ohne Armlehnen. Für die Herstellung von Armlehnen werden mehrere zusätzliche Bänder benötigt, aber es wird dem Produkt Bequemlichkeit geben.
  • Mit oder ohne Beinstreifen. Zusätzliche Überlappung kann in einem Abstand von 10-20 cm von der Bodenfläche installiert werden.
  • Suspendiert oder statisch. Abgehängte Einrichtungsgegenstände erfordern Halter und Seile, mit denen sie an der Decke oder einer anderen Oberfläche befestigt werden. Der einfachste Weg, um ein solches Modell in Form einer Hängematte zu schaffen. Sie können einen Stuhl weben oder ein Holzmodell in eine Korbform einbetten. Die Hauptsache, dass das Design weich geworden ist.

Es gibt immer noch eine große Anzahl von Variationen. Design-Experimente hier sind praktisch nichts, außer die ultimative Bequemlichkeit und Zuverlässigkeit des Produkts, sind nicht begrenzt.

Vorbereitung von Werkzeugen

Für die Herstellung von Holzmodellen wird ein klassisches Arbeitsarsenal mit einem Schwerpunkt auf Schreinerarbeiten benötigt. Nägel, Schrauben, Bolzen, Schrauben, Schraubendreher, Hämmer, Holzleim, Schleifwerkzeuge, ein Schraubstock, sowie eine Mühle und ein Meißel, Werkbank und Stichsäge.

Beim Arbeiten mit einer Handmühle sollten Schutzhandschuhe und eine Maske verwendet werden. Wenn der Stuhl aus Metall und Glas besteht, benötigen Sie die entsprechenden Messer. Messgeräte werden ebenfalls benötigt: Lineale, Muster, Winkelmesser und andere.

Alle Werkzeuge sind wichtig, um im Voraus vorzubereiten. Es ist besser, nicht zu sparen, da sie Ihnen erlauben, in Zukunft viele Stühle zu schaffen, und sie werden auch benötigt, wenn Sie etwas im fertigen Modell reparieren müssen. Hochwertige Ausrüstung sorgt zudem für maximale Sicherheit am Arbeitsplatz. Beziehen Sie auch mit elementaren Arzneimitteln - Jod oder grün bei Schnitten, Watte und Bandagen.

Genauso wichtig ist die Vorbereitung von Materialien. Bei der Arbeit an einem Holzprodukt ist es wichtig, die Bretter, Balken, Spanplatten oder laminierten Spanplatten der gewünschten Größe zu wählen. Für einen funktionellen Stuhl mit Armlehnen müssen Sie bis zu 20 Komponenten montieren: Beine, Lehnenteile, Seitenleisten, Fußböden,der Sitz selbst. Es ist besser, das Material immer mit einer Marge zu nehmen - seien Sie Überschüsse, anstatt etwas nicht genug.

Berechnungen und Zeichnungen

Bevor Sie mit der Arbeit beginnen, bereiten Sie ein Projekt vor. Es ist am besten, eine genaue Zeichnung mit einer Angabe aller Größen zu machen. Ihre Wahl ist rein individuell, aber es gibt noch einige Standards.

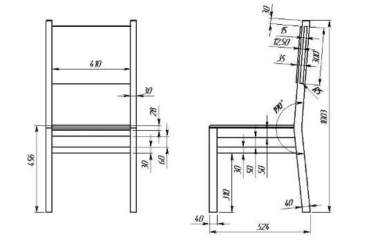
Die Höhe des Stuhls von der Unterseite des Beines bis zum Sitz kann von 40 bis 60 cm variiert werden, bis zu 20 cm sollten bis zu den Armlehnen entfernt werden. Die Summe dieser Zahlen bestimmt die Länge der Stange für die Beine. Die Breite und Länge der Basis sind ebenfalls variabel. Die durchschnittlichen Maße sind 40 * 40 oder 50 * 50 cm, die Höhe der Rückenlehne beträgt weitere 40-50 cm, und es ist besser, sich auf den Sitz und nicht auf die Armlehnen zu verlassen.

Es ist sinnvoll, die Überlappung für den Rücken ein wenig höher zu legen, so dass sie bis zu 15 cm "leer" bleibt - der Körper ruht in der Regel nicht auf diesem Bereich.

Das Modell der angegebenen Größen wird sowohl für die Ruhe als auch für die Arbeit geeignet sein. Wenn das Material nicht erlaubt, ist es möglich, Möbel von kleineren Dimensionen zu machen. Im Falle eines Stuhls besteht die Hauptsache darin, seine Höhe zu bestimmen.

Eine weitere klassische Variante stellt ein Stuhl mit 45 cm hohen und 60 cm hohen Beinen dar. Im Gegensatz dazu können Bar oder hohe Gegenstände bei relativ kleinen Sitzgrößen, etwa 30 * 30 cm, eine Höhe von 90-100 cm erreichen.

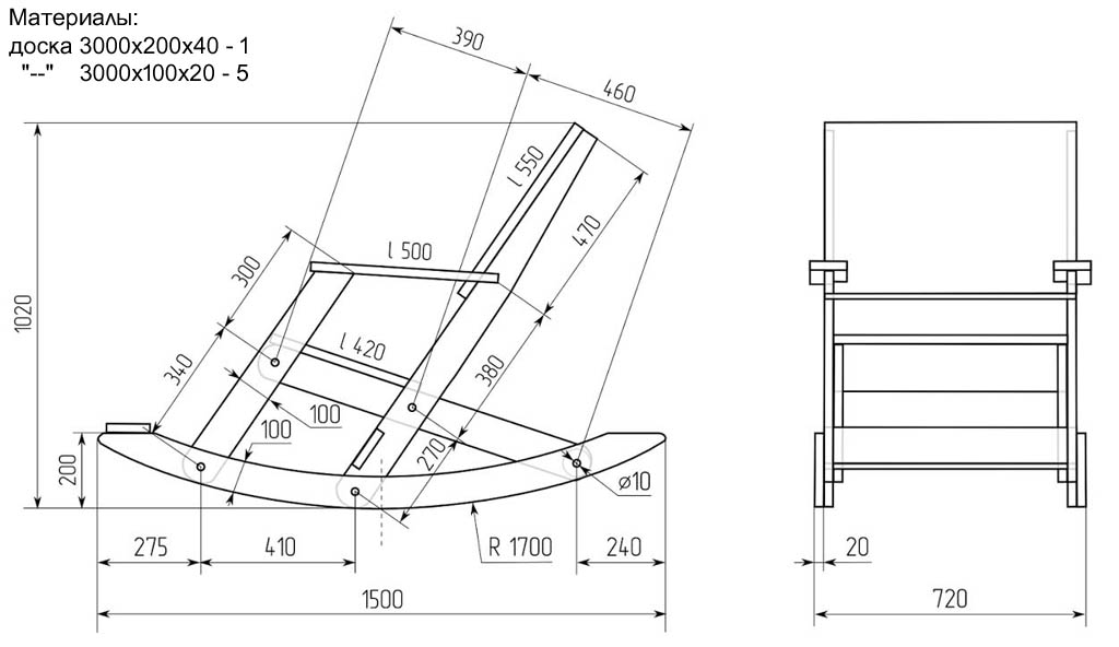
Wenn Sie an einem Schaukelstuhl arbeiten, benötigen Sie ein Stück. Da das Projekt Kurven und bogenförmige Linien verwendet, Sie müssen ihren Radius und Neigungswinkel genau berechnen.

Berechnungen sollten so genau wie möglich und nicht auf das verfügbare Material abgestimmt sein. Strategien im Geiste: "Die Bar ist natürlich lang, obwohl ihre Länge noch ein bisschen fehlt, also werde ich im Projekt darauf hinweisen und dann kompensieren" sind zum Scheitern verurteilt. Aber wenn mit einem Baum einige Varianten und spätere Verbesserungen noch möglich sind, dann sind Korrekturen in Bezug auf Glas und Metall manchmal schwieriger.

Manchmal ist es unmöglich etwas zu wiederholen. Es ist also besser, sofort eine zuverlässige Zeichnung zu machen.

Technologiefunktionen

Einen Stuhl zu machen ist kein sehr zeitaufwendiger Prozess, aber es erfordert Konzentration von Aufmerksamkeit und Genauigkeit. Ein einfaches kleines Holzwerk erfordert die Vorbereitung von Bars und Möbelplatten. Basis und Rückseite müssen nicht monolithisch sein.. So kann der Sitz aus 3-5 Brettern bestehen: die Abstände zwischen ihnen sollten klein sein - dann können diese Hohlräume durch weiche Einstreuungen ausgeglichen werden. Eine ähnliche Situation mit dem Rücken. Jede der Platten sollte poliert werden.

Gebogene Teile von Produkten (für Schaukelstühle) sollten sorgfältiger als üblich ausgewählt werden. Lesen Sie beim Kauf die Anweisungen aufmerksam durch, in denen die Neigungswinkel und andere Merkmale angegeben sind.

Unter anderen technologischen Merkmalen heben wir den Aspekt der Gleichmäßigkeit und Stärke hervor. Wenn Zweifel an der Zweckmäßigkeit des Produkts bestehen, ist es besser, ein Layout vorzuentwickeln und erst dann mit den Details zu arbeiten.

Herstellungsprozess

Also, alle Materialien sind gesammelt, die Werkzeuge sind zur Hand, es ist Zeit, zur Arbeit zu kommen. Zum Beispiel werden wir den Sitz aus Holz machen. Es gibt einige grundlegende Techniken, aber wir geben nur einige Tipps, zumal die Erstellung eines bestimmten Produkts ein kreativer Prozess ist und nicht in den Rahmen strenger Standards "getrieben" werden kann.

In der ersten Phase der Arbeit ist es besser, die Beine zu schneiden. Betrachten Sie dies am Beispiel eines Stuhls, bei dem die Beine auch den Rückenlehnenrahmen bilden. In diesem Fall kann ihre Länge bis zu einem Meter variiert werden, aber es ist besser, dass der Stuhl höher war. Nehmen Sie die Bars mit einer Reserve, um sie zu verlängern oder zu wiederholen, ist es unwahrscheinlich, erfolgreich zu sein. In Bezug auf die Dicke werden 40 mm ausreichen. Die Vorderbeine werden weniger tun - sie werden nur zum Sitz gehen.

Wir machen polierte Bars und probieren uns gegenseitig an. Schleifen ist besonders wichtig, wenn das Produkt für Kinder konzipiert ist. Ihre Haut ist zart, und selbst kleinste Unebenheiten und Häufchen können sehr unangenehme Empfindungen hervorrufen.

Dann solltest du die Befestigungspunkte bestimmen und die Spikes machen. Nach der Messung ist es notwendig, die Nuten zu bilden, die es ermöglichen, das Produkt in eine monolithische Struktur zu verbinden.

Lassen Sie uns zuerst das Modell nach passenden Teilen prüfen, ohne zu kleben. Wenn alles in Ordnung ist, können Sie die Riegel befestigen, die die Rückseite bilden. In unserem Fall werden wir fünf kleine Bretter auswählen und die mittlere etwas breiter machen als die anderen.

Eine schöne Lösung wäre die Verwendung einer Figurtafel. Es ist jedoch bequemer, aus einer einzigen Matrix Material zurück zu machen, aber es hängt davon ab, was Sie zur Hand haben.

Die nächste Stufe - die Herstellung von Seitenwänden und Bogenstürzen. Alles muss streng auf die Größe abgestimmt sein. Nach dem Kleben und Kleben kann die Struktur mit zusätzlichen Schrauben verstärkt werden. Überprüfen Sie es auf Gleichmäßigkeit, so dass Sie nichts wiederholen müssen. Achten Sie auch darauf, dass einige Elemente des Produkts nicht unangenehm überlagert sind: Selbst kleine Fehler in der Zukunft können zu schnellem Verschleiß und Bruch führen.

Sie können das Design mit zusätzlichen Riemen verbessern. Zum Beispiel installieren Sie einen Querträger, um die Beine an der Unterseite zu platzieren. Es ist am besten, es in einer Höhe von 10-20 cm vom Boden zu machen. Sie können Sitz- und Armlehnen hinzufügen, neu gestalten, anheben oder absenken und den Neigungswinkel ändern.

Und noch ein paar Tipps zum Machen. Verwenden Sie beim Fräsen Stäbe Gehrungssäge, für die Arbeit auf der Rückseite ist nützlich Puzzle. Besondere Aufmerksamkeit sollte der Verbindung des hinteren Beines mit dem Sitz gewidmet werden. Die dritte Ecke dieses Dreiecks ist die Rückseite. Die Stärke der Verbindung dieser Knotenpunkte bestimmt die Zuverlässigkeit, Stärke und Qualität des Produkts. Um die Werkstücke während der Bearbeitung fester halten zu können, sollten Sie nicht zögern, beim Schleifen und Ausschneiden bestimmter Teile einen Schraubstock zu verwenden.

Wenn du willst Mach einen KlappstuhlSie benötigen zusätzliche Holzleisten und eine Metallstange, für die Sie separate Löcher bohren müssen. Es wird in den Aussparungen der Beine befestigt werden. Es ist sinnvoll, mehrere Bestimmungen vorzubereiten. Denken Sie daran, dass ein solcher Stuhl mindestens Rücken- und Vorderbeine bewegen sollte.

Wenn Sie an einem Schaukelstuhl arbeiten, können Sie einen vorgefertigten Stuhl verwenden. Es wird notwendig sein, spezielle bewegliche Läufer und Armlehnen hinzuzufügen.

Wenn die oben beschriebenen Handlungen Selbstzweifel und Angst auslösen, beginnen Sie es ist möglich, Metallarbeitserfahrung mit einem elementaren Stuhl zu sammeln. Es ist am einfachsten, es zu machen, und in der Zukunft können Sie einen Stuhl in einen vollwertigen Stuhl verwandeln.

Es dauert 4 Bars. Die Länge der Stangen - bis zu 450 mm. Abschnitt - 4 * 4 cm Es wird notwendig sein, 8 Jumper zu machen. Vormaterial sollte poliert werden. Der Sitz selbst kann aus Vollmaterial oder aus einzelnen Brettern bestehen, sie müssen jedoch gut befestigt sein. Die erste Option für einen einfachen Stuhl ist vorzuziehen.

Die Rillen in den Stäben reichen in einer Höhe von 25-30 cm vom Boden. Ihre Tiefe beträgt bis zu 2 cm, also werden die Beine mit einem "Viereck" der Stockwerke wie in zweifacher Ausführung - etwa in der Mitte und am Sitz - aneinander befestigt. Überprüfen Sie auf Gleichmäßigkeit und befestigen Sie alle Details. Der einfachste Stuhl ist fertig.

Wie man einen Holzstuhl mit eigenen Händen macht, sehen Sie das nächste Schritt-für-Schritt-Video.

Montage und Veredelung

Klären Sie mehrere Aspekte in Bezug auf die Montage.In der Regel ist dies die letzte Stufe, aber auch hier können ohne wesentliche Kenntnis wesentliche Fehler gemacht werden.

Der Hauptpunkt - um einen rechten Winkel beim Verbinden von Teilen zu erhalten. Wenn dies visuell nicht sicher ist, fragen Sie nach einer anderen Person oder verwenden Sie Messgeräte. Ein Produkt zu befestigen ist besser mit Schrauben.

Aber eine erfolgreiche Montage bedeutet nicht, dass die Möbel fertig sind. Für die endgültige Inbetriebnahme ist es noch nicht fertig. Hab keine Angst, es selbst zu tun. Es gibt viele Möglichkeiten.

Überprüfen Sie zunächst das Material auf Unregelmäßigkeiten und Rauhigkeiten. Erst danach können Sie die Oberfläche lackieren und streichen. Oft müssen Produkte aus grobem Holz zweimal lackiert werden, da nach dem ersten Verfahren Zacken entstehen. Anstelle von Lack können Sie andere Substanzen verwenden - Acryl auf Wasserbasis Imprägnierung.welche nicht nur die Textur des Materials heller hervorheben, sondern auch die Oberfläche oft wirksamer vor übermäßiger Feuchtigkeit und anderen negativen Auswirkungen auf die Produkteffekte der äußeren Umgebung schützen.

Darüber hinaus kann der Stuhl bemalt werden, legen Sie eine weiche Einstreu darauf - sowohl auf dem Rücken als auch auf dem Sitz.Auf der Höhe der Mode ist jetzt auch der Kutscherverschluss relevant - Polsterschmuck, der wie Knöpfe in Materie ertrinkt. Es ist weich, ästhetisch und schön. Am häufigsten ist die vierseitige Krawatte auf den Rückenlehnen der Stühle zu sehen. Sie gibt ihnen sowohl Strenge als auch visuellen Reichtum. Dieses Finish ist jedoch nicht für alle Innenräume geeignet. Im Loft, Hi-Tech, Minimalismus ist es besser, weniger strukturierte Lösungen zu beschränken.

Dressing

Um einen schönen Stuhl zu machen, ist es am besten, die Arbeit mit Hilfe von Dekoration zu vervollständigen. Technologien und Designtechniken erlauben es, das Produkt auf jeden, sogar sehr raffinierten Geschmack zuzuschneiden.

Bevor Sie eine geeignete Technik wählen, achten Sie darauf, dass Viele arbeiten besser zu Hauseum die umliegenden Möbelstücke nicht zu verderben und zu beflecken, sowie um Schaden für die eigene Gesundheit zu vermeiden. Varnish kann sehr riechen, und für viele ist es ein extrem unangenehmer Faktor, der manchmal allergische Reaktionen hervorruft. Daher ist es besser, einen Stuhl in einem Schuppen oder in einem Landhaus, in Räumen mit guter Belüftung, oder auf Wasserbasis zu lackieren. Der Geruch von Farbe ist jedoch immer noch nicht zu vermeiden.

Zum Dekorieren können Sie die folgenden Methoden verwenden:

  • Holzschnitzerei - Das älteste und häufigste Kunstgewerbe der Welt. Im Idealfall müssen Sie die Herstellung des geschnitzten Stuhls sofort planen. Aber das Plus dieses Ansatzes ist, dass sogar der gewöhnliche Stuhl in geschnitzt werden kann. Abgenutzte und zerkratzte Überlappung oder die Oberfläche der Beine - keine Sorge. Im Gegenteil, es ist ein Grund, aus ihnen etwas Schönes und Originelles zu machen.

Dies kann mit einem normalen Messer zum Schnitzen von Holz gemacht werden.

Dieser Stil eignet sich für klassische Interieurs, Formate "antik". Mit der monumentalen Herangehensweise werden die Möbel durch die Carving-Technik solider, und wenn Sie im Gegenteil das Innere "ausladen" müssen, wird ein sauberes und dünnes Schnitzen den Stuhl und den Raum insgesamt Leichtigkeit und Leichtigkeit verleihen.

  • Decoupage. Meistens wird dieses Wort in Bezug auf Flaschen Champagner verwendet, aber Sie können alles und jedes entkoppeln. In der Tat ist dies einfach Dekoration, indem man in der Regel eine Zeichnung oder ein Ornament an ein Objekt anbringt, gefolgt von einer Lackierung. Zuerst müssen Sie die Oberfläche des Sitzes polieren und kitten, dann malen Sie es mit weißer Acrylfarbe.besser in mehreren Schichten.Jetzt können Sie (z. B. mit PVA-Kleber) auf der Oberfläche des Bildes kleben, z. B. auf einem Heimdrucker. Die Umrisse der Zeichnungen können weiter geschnitten und dann mit Acryllack überzogen werden.

Das Ornament auf dem Stuhl kann beliebig sein - florale und marine Kompositionen sehen vorteilhaft aus. Farben - von hellgrün bis schwarz. Eine gute Idee ist es, nur die Hälfte des Sitzes zu entkoppeln. Wenn Sie zwei solche Möbelstücke (von verschiedenen Seiten) auf den Tisch stellen, die in der gleichen Farbe dekoriert sind, können Sie sehr günstige Farbkombinationen erzielen.

  • Malerei. Vielleicht die offensichtlichste Option, aber hier gibt es eine Reihe interessanter Lösungen. So können Farben kombiniert und mit Epoxid gemischt werden. Dies wird Oberflächensättigung und Farbe, Frische von Blumen hinzufügen. Sie können die Wirkung von "schäumendem Kaffee" auf "schmelzendes Eis" erreichen oder das Thema Marmor oder Glas stilisieren.

Ursprüngliche Ideen

Und schließlich - ein paar ungewöhnliche Ideen für die Herstellung von Stühlen mit ihren eigenen Händen.

Wenn es alte Stümpfe im Land gibt, können Sie sie in Stühle umwandeln. Es wird ausreichen, um Sitze und Rücken an ihnen zu befestigen. Wenn du entwurzelte Stümpfe transferierst, stärke ihre Basis,die beste Option - kreuzweise angeordnete Stämme oder Bretter zu verwenden.

Nicht weniger praktische Idee - die Herstellung des Stuhlschritts. Es wird einem hohen Barhocker ähneln, aber gleichzeitig zusätzliche und reiche Funktionalität haben. Es ist genug, zwei Schritte zu machen, und statt der dritten, um den Sitz zu reparieren. Seine Breite sollte etwa das Doppelte der Stufen betragen. Diese Regaltechnik ist nah am üblichen Hocker, nur hoch.

In Anwesenheit von Polypropylenrohren ist es möglich, einen Hochstuhl von ihnen zu montieren. Für den Sitz werden etwa 10 Rohre benötigt, für den Rücken reicht 3-4. Die Beine sollten aus dickeren Rohren bestehen, um die Produktstabilität zu gewährleisten.

Eine andere Idee ist ein Stuhl, der auf einem alten Baumstamm basiert. Wir müssen die Oberfläche nivellieren und die Rückseite anbringen, damit sie dem Faltformat näher kommt. Von den Minuspunkten eines solchen Modells ist die Schwierigkeit, die Höhe zu kontrollieren. Solch ein Stuhl ist kaum geeignet für langes Sitzen, aber er kann kleinen Kindern wirklich gefallen - er wird ein unentbehrliches Spielzeug für sie werden.

Ein weiterer Blick auf das Design - der maximale Minimalismus. Der Stuhl kann in Form eines unfertigen Rechtecks ​​hergestellt werden - der untere Rand, wo er mit dem Boden in Kontakt kommt, bleibt offen.Nur drei rechteckige Bretter werden für seine Herstellung benötigt: zwei von ihnen werden Beine, einer - ein Sitz. Dieses Design ist sehr zuverlässig im Betrieb.

Und das letzte Beispiel ist ein Landsitz mit einem unebenen Modell zurück. Die Platten für seine Herstellung werden unterschiedliche Längen haben und sich leicht in Textur und Farbe unterscheiden. Es ist wichtig, die richtige Farbkombination zu finden. - wechseln und kombinieren Sie helle (weiß, beige) und dunkle (grau, braun, schwarz) Farbtöne. Der Sitz wird wie ein Teil oder der Anfang des Rückens sein. Die Armlehnen mit diesem Design können ziemlich hoch gemacht werden. Wenn der Stuhl breit ist, muss er mit der dritten mittleren Beinreihe "gesichert" werden.

Wie die Erfahrung von volkstümlichen Handwerkern und professionellen Designern zeigt, sollte man bei der Herstellung eines transformierenden Stuhls vor allem von der eigenen Phantasie ausgehen und keine Angst davor haben, kreativ zu sein. Sitze können aus praktisch jedem verfügbaren Werkzeug hergestellt werden. Die Hauptsache ist, sie so bequem, bequem und zuverlässig wie möglich zu machen.

Kommentare
 Kommentarautor

Die Küche

Kleiderschrank

Wohnzimmer