Installation der Decke "Armstrong"

Abgehängte Decken "Armstrong" sind eine bequeme und funktionelle Lösung für Räume mit einer Höhe von 3 m und mehr. Oft wird eine solche zellulare Dekoration an öffentlichen Orten verwendet: Schulen, Büros, medizinische Einrichtungen und Fitnessstudios. In seltenen Fällen ist ein solcher Ansatz für die Anordnung der Decke in Privathäusern möglich.

Die Einzigartigkeit der abgehängten Armstrong-Decke liegt in der Tatsache, dass es ist sehr einfach, es selbst zu installieren. Auch wenn dies zum ersten Mal gemacht wird. Unter Hinweis auf den Designer der Kinder sammelt sich leicht sein Gerüst, und Platten werden erfolgreich in die gebildeten Zellen eingefügt. Schauen wir uns alle Hauptkomponenten dieser universellen Wunderdecke genauer an.

Gerät und Zubehör

Der Hauptteil der Konstruktion besteht also aus einem Metallrahmen, der an der Decke und an den Wänden des Raumes befestigt wird. Diese Box hat folgende Komponenten:

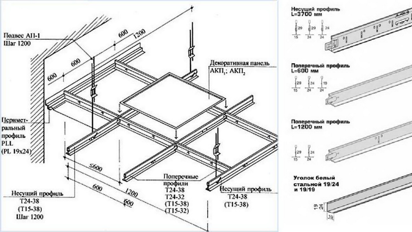
  • Wand (eckiges) Profil, manchmal auch Perimeter genannt, weil es direkt an der Wand um den Umfang der zukünftigen Decke montiert ist. Meistens ist es ein L-förmiges Profil.
  • Trägerprofil - Die parallel zum Wandprofil angebrachte Metallschiene hat eine Länge, die der Länge des Raumes möglichst nahe kommt. Sie fungieren als Führer der gesamten Struktur.
  • Transversales T-Profil wirkt als Verbinder für parallele Trägerschienen und bildet so Armstrong-Deckenplatten.
  • Suspensionen Sie sind zwei Metallstäbe, die durch eine Schmetterlingsfeder verbunden sind. Eine Stange neigt sich nach oben, endet in einer engen Schleife, die am Befestigungsknoten befestigt ist. Die zweite - stürzt nach unten, endet mit einem Haken, klammert sich an die Trägerschiene. Dank der Feder können Sie die Länge der Aufhängungen einstellen: während des Zusammendrückens können die Stangen auseinander bewegt und so weit wie nötig verschoben werden; Wenn Sie den "Schmetterling" loslassen, werden Sie die Haken fest genug befestigen. Hersteller melden die Anwesenheit von drei Varianten dieser Komponente: Standard einstellbar von 120 mm bis 150 mm, verkürzt - von 75 mm und verlängert - bis zu 500 mm.Grundsätzlich wird bei der Montage einer abgehängten Decke eine Standard-Eurofederung verwendet.
  • Befestigungsknoten - der gewöhnliche Dübel, an dessen Ende ein Haken ist. Bei einer solchen Rolle kann je nach Material dieser Decke und der geplanten Belastung der Knoten selbst eine Schraube oder eine Metallhülse sein.
  • Platten - direkt funktionierender Teil der Decke "Armstrong". Bisher verwendete Beschichtung in zwei Größen - 120 cm x 60 cm und 60 cm x 60 cm. Heute sind die ersteren Geschichte, und quadratische Platten werden verwendet, um die Decken zu entwerfen.

Ausführlicher wäre es wünschenswert, auf der Deckung zu stoppen. Also gibt es sechs Arten von "Armstrong":

  • Wirtschaftlich. Die billigste Art von Ofen, der Feuchtigkeit sehr leicht aufnehmen kann, auch wenn der Raum nur hohe Luftfeuchtigkeit hat. Aus diesem Grund können sie schnell ihre Form verlieren oder sich verbiegen.
  • Luxus - "Prima". Langlebiger als die vorherige Form, feuchtigkeitsbeständig, haben eine erhöhte Schalldämmung.
  • Feuchtigkeitsarm "Armstrong" spricht für sich selbst. Du kannst dich nicht davor fürchten, von den Nachbarn oben zu überfluten. Die Platte ist nicht verformt und wird unter dem Gewicht der Feuchtigkeit nicht schwerer.
  • Akustisch - bietet die maximale Schalldämmung. Am häufigsten in lauten Umgebungen eingesetzt: Einkaufs- und Spielräume.
  • Hygienische Sicht Deckenplatte, konzipiert für den Einsatz in Bereichen mit hohen hygienischen Anforderungen: Catering, medizinische Einrichtungen.
  • Designer Armstrong nicht sehr häufig, aber auch in seltenen Fällen bleibt es sehr beliebt. Spiegel, Glas, Holzplatten und Platten mit Anwendung von 3D-Bildern - die perfekte Lösung für Räume mit einem originellen Design.

Sprechen von Materialien, die die Platte für eine abgehängte Decke bilden kann erwähnt Metalle, Kunststoffe, mineralische Fasern (Mineralwolle), Polycarbonat, Holz, Stahl und Aluminium sein.

Bevor auf den Kauf von Material und die Installation der Decke, sollten Sie ein paar wichtige Eigenschaften von Gewebe betrachten, machen alle notwendigen Berechnungen und Messungen und einen Plan Diagramm des Einbaurahmens entwickeln

Abmessungen

eine Standard-Plattengröße ceiling „Armstrong.“ - 60 x 60 cm Stärke Platten von 0,8 cm bis 2,5 cm sein, was die Wahl eines Web auswirkt. Da die Zwischendecke von 10-15 Zentimetern zumindest verringert wird, soll diese Option sorgfältig untersucht werden, so dass sie mit der Höhe des Raumes zu vergleichen. Das Gewicht der Deckenplatten wird auf der Grundlage eines Quadratmeter Materials berechnet. Im Durchschnitt variiert diese Zahl zwischen 2,5 und 8 kg.

Diese individuellen Eigenschaften wie Feuchtigkeitsbeständigkeit und Schalldämmung sind für jedes einzelne Modell völlig einzigartig. Es ist erwähnenswert, dass dies die Grunddimensionen der Platte in keiner Weise beeinflusst. Wenn Sie die grundlegenden Parameter von Armstrong Deckenplatten kennen, können Sie mit der Berechnung der Materialmenge für den Kauf fortfahren.

Materialberechnung

Es gibt ein ganzes System zur Berechnung der Materialmenge, die zur Abdeckung der Decke benötigt wird. Wie zum Beispiel aus der Tabelle ersichtlich ist, variieren die Verbrauchsraten von Platten und Komponenten in Abhängigkeit von der Raumfläche.

Die gesamte nachfolgende Berechnung wird durchgeführt, indem die notwendigen Werte in der Formel ersetzt werden:

  • Um die Anzahl der Platten zu berechnen, die erforderlich sind, um die gesamte Deckenfläche zu bedecken, müssen Sie die Fläche des Raums mit einer konstanten (konstanten Wert) - 2,78 multiplizieren.
  • Eckprofile werden berechnet, indem der Umfang des Raums mit 3 multipliziert wird.
  • Bearing Lamellen oder Führungen werden in einer Menge gekauft, die der Fläche des Raumes multipliziert mit 0,23 entspricht.
  • Die Anzahl der zu kaufenden Querprofile entspricht dem Produkt der Raumfläche um 1,4.
  • Suspensionen sollten 0,7 Stück pro 1 m2 gekauft werden.

Auch die notwendigen Verbrauchsmaterialien für die Anordnung einer Zwischendecke können mit Hilfe verschiedener Online-Rechner gezählt werden.

Beim Kauf von Platten für die Decke "Armstrong" vergessen Sie nicht die Ersatzquadrate. Fachleute empfehlen, 10-15% mehr zu erwerben, als Sie kalkuliert haben, um unangenehme Situationen mit Engpässen, mechanischen Beschädigungen und anderen Dingen während des Installationsprozesses zu vermeiden. Dank einer angemessenen Speicherkapazität können Sie auch jederzeit eine Zelle durch eine andere ersetzen, ohne nach einer geeigneten Leinwand suchen zu müssen, den Master anrufen und so weiter.

Installieren Sie eine abgehängte Decke "Armstrong" selbst, achten Sie auch auf die Verfügbarkeit der notwendigen Mittel für eine komfortable und maximale Genauigkeit.

Benötigte Werkzeuge

Es gibt eine Meinung, dass die Installation der Armstrong-Decke nicht mehr als 1 Tag Tageslicht (mit Platz bis zu 15 Quadraten) dauert. Und diese Meinung ist nicht falsch, wenn Sie alle notwendigen Werkzeuge zur Hand haben, um den Einbau der Platten so einfach, bequem und genau wie möglich zu machen. Du brauchst also:

  • Gebäudeebene;
  • Maßband;
  • bohren oder stanzen, wenn sie in einem Betonraum installiert werden. Wenn die Decke in einem Holzrahmen installiert werden soll, können alle Profile mit gewöhnlichen Nägeln befestigt werden. Beim Arbeiten mit Gipskartonbeschichtungen werden Schrauben verwendet;
  • Kreuzschlitzschraubendreher oder Schraubendreher;
  • Scheren für Metall;
  • Schrauben, Dübel, Schrauben, Ankerbolzen und andere Kleinigkeiten, die am häufigsten im Arsenal eines Heimwerkers zu finden sind.

Der angenehmste positive Moment bei der Installation der Armstrong-Decke ist das Alle ihre Komponenten sind universell. Das heißt, dass alle Details, wenn sie in Ihrem Haus sind, perfekt zu ihnen passen.

Installation und Fertigstellung der eigenen Hände

Die Installation einer beliebigen Decke beginnt mit einer Zeichnung. Nachdem Sie Ihren zukünftigen Armstrong auf Papier gezeichnet haben, können Sie direkt an der Decke zeichnen. Zunächst müssen Sie entscheiden, wie weit sich die suspendierte Struktur von der letzten befindet. Dieser Indikator wird von einem Hauptfaktor beeinflusst: dem Vorhandensein zusätzlicher Elemente in der Zwischendecke. Dies können Lampen, Lüfter, Split-Systeme oder auch nur Kabel sein, die nicht funktionierten, nicht wollten und nicht funktionierten, um in den Wänden versteckt zu sein.

Wir fangen an, die Decke zu markieren.Mit Hilfe des Levels machen wir Markierungen in den Ecken des Raumes in der gewünschten Höhe. Dann werden diese Markierungen mit einem Tracer oder Infrarot-Ebene mit geraden Linien verbunden. Fachleute raten auch, den Abstand vom Boden des Raumes zu den Kerben zu messen. Somit wird der niedrigste Punkt bestimmt, auf den die abgehängte Decke fallen wird. Jetzt ist alles vorhanden, um den Armstrong Rahmen richtig zu montieren.

Wenn die Markierung fertig ist, beginnen wir mit der Montage des Umfangs- oder Winkelprofils. Das Hauptmerkmal dieses Prozesses ist die Befestigung in der Form eines Regiments. Und die obere Kante des Profils fiel nur auf den gezogenen Streifen. Die notwendigen Befestigungen sind in einem Abstand von 40-50 cm voneinander installiert. Alle Winkel sind in einem Winkel von 45 Grad geschnitten.

Weitere Anweisungen schlagen vor, Suspendierungen zu installieren. Dazu müssen Sie Löcher in die alte Decke bohren, in die die Befestigungselemente eingesetzt werden. Der Abstand zwischen den Dübelhaken sollte 1,2 m nicht überschreiten, und von jeder Wand sollten sie sich 60 cm bewegen, ebenso sollte die Belastung des Rahmens der Decke berücksichtigt werden. Je größer es ist, desto näher sollten die Ankerhaken zueinander sein, an denen Sie sofort die Kleiderbügel aufhängen sollten. "Butterfly" passt die Länge des Teils an. Es ist wichtig sicherzustellen, dass ihre Enden bündig mit dem Umfangsprofil sind.

In der ungefähren Karte der Installation von Aufhängungen können Sie sehen, in welcher Entfernung und in welcher Menge sie platziert werden sollten. Hier sind die grünen Kreuze die Hauptbefestigungseinheit und die beige sind optional, die bei Bedarf installiert wird.

Der nächste Schritt wird die Anordnung der Stützprofile oder Führungen sein, die parallel zu der Eckschiene einer Seite des Raums angeordnet sein sollten. Viele Fachleute raten dazu, Zellen für die Platten zu Beginn zu sammeln, aber manchmal ist dies bei der Sammlungstechnologie nicht möglich. Jetzt müssen Sie die Schienen genau an den Haken der Aufhängungen befestigen.

Querprofile müssen in Schritten von 60 cm auf dem Träger montiert werden, um eine quadratische Zelle für das zukünftige Netz zu bilden. Sie können sie nicht perfekt glatt, aber unter der Diagonale installieren.

Es sollte daran erinnert werden, dass das Montieren einer falschen Decke einer solchen nicht standardmäßigen Form nur für Fachleute möglich ist. Das technologische Merkmal der Armstrong-Decke erlaubt nicht immer eine spezielle Installation.

Wenn die Montage des Rahmens der abgehängten Struktur abgeschlossen ist, können Sie direkt mit der Installation von Platten fortfahren.Die Regeln der Sammlung von "Armstrong" sind, dass die Leinwand befestigt werden muss, indem jedes Blatt in die zugeteilte Zelle eingefügt wird. Die ersten, die die Platten mit einer gewissen Funktionalität versehen: mit eingebauten Leuchten, Lüftungsgittern und Split-System. Fahren Sie dann mit blinden Quadraten von der Mitte des Raumes fort und bewegen Sie sich allmählich zu den Rändern hin.

Leichte Bewegungen der Hände der Platte werden in den Zwischenraum eingeführt und passen in die Zelle. Wenn die Bahn nicht ausreichend mit der Zelle verbunden ist, ist es unmöglich, sie von oben zu drücken. Sie müssen vorsichtig die Ecken des Quadrats unter drücken.

Stellen Sie beim Installieren neuer Decken sicher, dass die alten nicht nass, lose oder fehlerhaft sind. Schließlich hängen die Langlebigkeit und das Erscheinungsbild der abgehängten Armstrong-Decke direkt vom Zustand der Basis ab. Der Rat von Fachleuten, die nicht nur während der Installation, sondern auch im weiteren Betrieb hineinpassen, wird helfen, maximale Effizienz bei der Montage eines solchen Designs zu erreichen.

Hilfreiche Ratschläge

Eine Vielzahl von Materialien, die für die Herstellung von Armstrong-Deckenplatten verwendet werden, ermöglicht Ihnen die Auswahl des für jeden Raum am besten geeigneten Modells.Natürlich können Sie universelle Leinwände verwenden, aber nicht nur die optischen Eigenschaften der Decke, sondern auch ihre funktionellen Merkmale können darunter leiden. Experten empfehlen beispielsweise feuchtebeständige Platten in Räumen mit hoher Luftfeuchtigkeit: Schwimmbäder, Fitnessstudios.

In großen Einkaufszentren, Restaurants und Nachtclubs sind Panels angebracht, die den maximalen Klang absorbieren. Design-Optionen sind am besten für die Inneneinrichtung von Privathäusern mit hohen Decken oder kulturellen Einrichtungen.

Da es für tragende Schienen am besten ist, eine feste Schiene zu verwenden, deren Länge mit der Länge des Raums übereinstimmt, sind an den Enden solcher Profile spezielle Schlösser erhältlich. Dank ihnen sind die Latten leicht erhöht. Ein formbares Metall wird sehr leicht mit einer Metallschere auf die gewünschte Größe zugeschnitten.

Bei der Installation des Armstrong-Aufhängungssystems muss ein detailliertes Montageplan erstellt werden. Es ist nötig, alle Hauptkomponenten des Rahmens der neuen Decke, die Verlegung der Kommunikationen, die Stellen für die Montage der Lampen und der Blindplatten zu zeigen.Dies hilft Ihnen, die benötigte Menge an Verbrauchsmaterialien auszuwählen und die Details des zukünftigen Designs visuell zu beurteilen.

Wenn Sie die abgehängte Decke reparieren müssen, sollten Sie sich an die Grundregeln des Rückbaus halten:

  • vor allem werden die Blindplatten entfernt;
  • die zweite Stufe ist die Trennung aller elektrischen Geräte und die Entfernung dieser Strukturen von der Decke;
  • die folgenden sind Längs- und Querprofile entfernt;
  • Die letzte Phase der Demontage ist das Entfernen der Lagerschienen.

Wenn Sie sich entscheiden, die Armstrong abgehängte Decke für immer loszuwerden, dann ist ein weiterer Schritt die Demontage der Eckprofile und Kleiderbügel mit Befestigungseinheiten.

          Wenn Sie eine Wohnung als Raum für eine solche Konstruktion wählen, dann sollten Sie sofort den Standard Euro hängen lassen. Wie wird dann die Decke festgelegt? Galvanisierte Ecken kommen mit einem Paar Löcher auf den selbstschneidenden Schrauben zur Hilfe, die Befestigungsknoten werden.

          Als Aufhängungen müssen Kupferdrähte verwendet werden. Es sollte berücksichtigt werden, dass ihre Länge auch nicht die Höhe der Lücke zwischen den Decken überschreiten sollte. So sparen Sie bis zu 5-7 cm Raumhöhe.Bedenken Sie jedoch, dass es in diesem Fall viel schwieriger ist, Deckenleuchten zu installieren und diesen Raum als eine Art Kabelkanal zu nutzen.

          Installationsanweisungen für die Armstrong-Decke finden Sie im folgenden Video.

          Kommentare
           Kommentarautor

          Die Küche

          Kleiderschrank

          Wohnzimmer