Projekte von Rahmenhäusern mit Dachboden

Heute wird der individuelle Wohnungsbau immer beliebter. Dies ist der gegenteilige Effekt des Urbanisierungsprozesses, der sich im letzten Jahrhundert entwickelt hat. Die meisten Stadtbewohner bevorzugen ein privates Haus in den Vororten der Metropole für den saisonalen oder dauerhaften Aufenthalt. Solche Wohnungen sind im Vergleich mit der Stadtwohnung sehr günstig.

Erstens, Umweltfreundlichkeit: Der private Sektor ist in der Regel weit über die Grenzen der Autobahnen, Industriekomplexe, sowie eine Priorität für den Bau von Hütten aus Holz und anderen natürlichen Materialien.

Zweitens, Kosteneffizienz: eine relativ geringe Kosten für Baumaterialien, eine kurze Zeit für den Bau von Wohnungen.

Drittens, Komfort: Ein privates Haus oder Cottage kann nach einem individuellen Plan gebaut werden, und es wird viel geräumiger sein, im Gegensatz zu einer Stadtwohnung, die für das gleiche Geld erworben wurde.In diesem Artikel werden wir besonders auf den Bau von Rahmenhäusern mit einem zusätzlichen Element in Bezug auf die Ergonomie des Raumes - ein Dachboden - achten.

Eigenschaften von Rahmenhäusern mit Dachboden

Familien wachsen - das ist ein natürlicher Prozess, so dass in den letzten zehn Jahren die Nachfrage nach dem Bau von Ferienhäusern mit zusätzlichem Wohnraum - dem Dachgeschoss - zugenommen hat. Der Dachboden ist ein zusätzlicher Bereich, der auf dem Dachboden als Wohnraum genutzt wird. Seine Fassade wird in der Regel von der Dachfläche (dreieckig schräg oder schräg) gebildet.

Nach dem derzeitigen SNiP die Grenze des Schnittpunkts der Dachebene und der Wand eines Gebäudes sollte nicht mehr als eineinhalb Meter von der Dachbodenlinie entfernt sein. Die Höhe des Dachbodens selbst darf nicht weniger als zweieinhalb Meter betragen und sollte mindestens die Hälfte der Fläche des gesamten Raumes einnehmen (siehe Abbildung unten).

Die Wände des Dachgeschosses bestehen aus zwei Elementen: der untere Teil ist streng vertikal, der äußere und der innere sind mit der gleichen Oberfläche ausgeführt wie der erste Stock. Der obere Teil kann eine geneigte Ebene sein, deren Basis die Linien sind.Im Inneren ist die Dekoration entweder im gleichen Stil wie der Hauptteil der Wand oder kontrastiert unterschiedlich und bildet einen sanften Übergang zur Decke. Dachmaterialien werden als das Äußere verwendet.

Berücksichtigen Sie die Vorteile von Rahmenhäusern dieser Art.

  • Erhebliche Einsparungen. Ein Haus mit einem Dachboden ist im Vergleich zu einem gewöhnlichen zweistöckigen Gebäude kostenmäßig rentabel, obwohl nach städtebaulichen Normen ein Dachboden als zweiter Stock erkannt wird, der solche Gebäude tatsächlich ausgleicht. Einsparungen werden erzielt auf Kosten von Veredelungsmaterialien: je größer die Oberfläche des Rahmens der geneigten Wände der Sparren, desto größer die Einsparungen!
  • Funktionalität. Der Zweck des Dachbodens ist sehr vielfältig: Es kann ein Schlafzimmer oder ein Kinderzimmer, ein Arbeitszimmer, ein Atelier, eine Werkstatt oder ein Ankleidezimmer sein. Aber auf jeden Fall ist das nicht nur ein Dachboden, es ist ein zusätzlicher Wohnraum, der das ganze Jahr genutzt werden kann.
  • Kurze Bauzeit. In letzter Zeit gewinnt der Rahmenbau an Bedeutung. Die Bautechnik der Privathäuser löst somit das Problem der Wohnungsbeschaffung in relativ kurzer Zeit - meist in einer Saison.Vom Entwurf über den Bau des Fundaments bis hin zur Umsetzung der Inneneinrichtung dauert es nicht mehr als drei Monate!
  • Einfachheit Erektion erreicht durch Leichtbau des Rahmens selbst. Sie müssen keine Arbeitskräfte einstellen - Sie können mit der Konstruktion selbst fertig werden.
  • Einfach zu pflegen. In der Rahmenkonstruktion eines Hauses mit einer Mansarde haben Sie immer leichten Zugang zur Verlegung der Verbindung, zum Ersetzen der Isolierung und zum Reparieren des Daches.
  • Einzelprojekt Sie haben die einzigartige Möglichkeit, das Layout und Design eines Gebäudes mit einem Dachboden im Gegensatz zu Standarddesigns unabhängig zu modellieren. Schräge Wände verleihen dem Design Eleganz und Eleganz.
  • Raffinesse und Ausdruckskraft von Häusern mit Dachboden. Die Schrulligkeit einer solchen architektonischen Struktur ist im Vergleich zu Standardhäusern vorteilhaft. Kompetente Dekoration erlaubt Eigentümern, sich wie die Eigentümer eines fabelhaften Herrenhauses zu fühlen.
  • Schnelle Demontage. Im Falle der Notwendigkeit für den Verkauf oder die Reorganisation des Aufstellungsortes oder den Umzug an einen neuen Platz, kann Rahmengehäuse leicht auseinandergebaut werden und transportiert werden.

Häuser mit einem Dachgeschoss haben jedoch ihre Nachteile. Bei der Gestaltung eines zukünftigen Landhauses sollten Sie auf jeden Fall auf diese Momente achten.

  • Kleine Dachgeschossfläche. Die gewünschten Quadratmeter sind durch schräge Wände verdeckt. Um den zusätzlichen Platz unter dem Dachstuhlsystem zu "fahren", müssen wir den Bereich willentlich reduzieren.
  • Anordnung der Treppe. Um den Zugang zum zusätzlichen Geschoss zu gewährleisten, ist eine fachgerechte Installation einer Leiter mit einem Standardneigungswinkel und die Einhaltung von Sicherheitsanforderungen erforderlich. Richtig installierte Treppen verbergen Quadratmeter des Erdgeschosses. Der gestaltete Raum unter der Treppe dient in den meisten Fällen als Garderobe oder Garderobe.

Zusätzlich ist eine zusätzliche Verstärkung von Strukturen, die die Decke tragen, an der Stelle erforderlich, an der der Ausgang zum zweiten Stockwerk gebildet wird.

  • Um zu natürliche Beleuchtungsanordnungen Wir müssen spezielle Fenster verwenden, die in die Dachfläche eingebettet sind, was die Dachkosten erhöht. In anderen Fällen sind die Fenster auf dem vertikalen Teil der Wand des Dachbodens angeordnet, aber dazu ist es notwendig, die Form des Dachs zu Trapez zu ändern, was zusätzliche Komplexität in der Installation der Struktur mit sich bringt.
  • Die Komplexität der Anordnung des Lüftungssystems. Die Dunstabzugshaube im Dachraum wird aufgrund der geringen Höhe des Kanals keinen ausreichenden Luftaustausch ermöglichen. Daher wird es auf der zweiten Etage immer stickige Luft geben.
  • Gefühl von geschlossenem Raum. Aus psychologischer Sicht "belasten" eine schlechte Beleuchtung, eine niedrige Decke und schräge Wände eine Person und entwickeln Stressbedingungen.

Es sei jedoch darauf hingewiesen, dass dieser Effekt aufgrund der sachgerechten Anordnung von natürlichem und künstlichem Licht, Spiegeln, Möbelanordnung und Wanddekoration leicht beseitigt werden kann.

  • Zusätzlicher Sound, Wärme und Wasserdichtigkeit. Das Dach des Dachgeschosses sollte ein komplexes Entwässerungssystem haben. Der Dachboden ist bei schlechtem Wetter am stärksten betroffen. Um den Außenlärm zu minimieren und alle Kältebrücken zu eliminieren, müssen die Eigentümer von Fachwerkhäusern mit Dachgeschoss erhebliche Investitionen in den Kauf von Wärmedämmstoffen tätigen.

Wenn wir also von den Merkmalen der Skelettkonstruktion von Häusern mit einer Mansarde sprechen, haben wir die Hauptvorteile und Hauptnachteile identifiziert. Nach der Überprüfung aller Funktionen und der Schätzung des Budgets muss der zukünftige Eigentümer des Vorstadtgebiets eine informierte Entscheidung treffen - bauen oder nicht bauen.Wenn Sie dennoch in kurzer Zeit ein eigenes Economy-Class-Haus erwerben möchten, das nach individuellen Vorlieben gestaltet wurde, überlegen Sie sich einige Projekte und deren stufenweise Konstruktion.

Projekte

Jedes Haus in einem Land Grundstück sollte harmonisch aussehen, denn neben der Wohnung selbst sollte der Eigentümer des Landes das umliegende Gebiet verbessern. Bevor mit dem Bau begonnen wird, ist es wichtig, ein Modell für den zukünftigen Standort zu erstellen, wo neben dem Projekt eines privaten Hauses kompakte Nebengebäude, Gartendekorationselemente und dergleichen vorhanden sind.

Sie können das Grundstück selbst modellieren, oder Sie können fertige Projekte verwenden, die für ein bestimmtes Gebiet entworfen wurden. Die Form kann verschiedene Arten von Vorstadtgebieten unterscheiden: quadratisch, rechteckig (schmal, lang), unregelmäßige Form. Davon hängt direkt die Größe der Fläche des Hauses ab. Betrachten Sie die Zeichnungen einiger von ihnen.

Für kleine Parzellen können Sie einen vorgefertigten Plan für kleine Landhäuser von 4x4, 4x6 Größen verwenden.

Wenn Sie möchten, können Sie eine große Auswahl an 6x4-Projekten mit vorgefertigten Layouts finden.Um den Freiraum im Raum zu vergrößern, können Sie die Trennwand zwischen Küche und Wohnzimmer entfernen und so ein geräumiges Studio bilden. Das Bogengerät ist in diesem Fall ratsam, um die Träger zu verbergen, die das zweite Stockwerk tragen.

Aber ein interessantes 5x6 Projekt mit einer Veranda, wo sich alter Müll, Sommerküche, Hausgarten oder Naherholungsgebiet befinden kann:

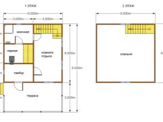
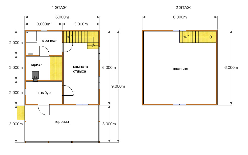
Für Parzellen mittlerer Größe ist es ratsam, geräumigere Hütten von 6x6, 7x7, 6x7, 7x8 zu bauen. Im Dachgeschoss können Sie bereits zwei Schlafzimmer organisieren:

In Projekten von Häusern des Typs 6 für 8, 7 für 8 ist es möglich, zusätzliche Gebrauchsräume (Lagerraum, Garderobe) unterzubringen.

Es ist schwieriger, längliche Häuser mit den Maßen 6x9, 6x10, 4 mal 10 zu entwerfen. Aber hier können Sie drei volle Räume oder eine Garage unterbringen. Sie bauen Häuser 6 bis 9 für Familien "für Wachstum": junge Paare warten auf Ergänzung, oder reife Familien mit Kindern und Enkelkindern.

Auf großen Grundstücken entstehen geräumige Häuser mit den Maßen 8x8, 9x9 oder 7x9, 8x10. In der Regel sind dies eher teure Projekte für eine große laute Familie. Sowohl außen als auch innen sehen solche Häuser luxuriös aus und sind die Hauptattraktion der gesamten Vorortsiedlung.

Wenn Sie möchten, dass Ihr Haus so ist, können Sie dieses Projekt in Betrieb nehmen und es nicht mit einem Budget überziehen!

Interne und externe Dekoration

Besondere Aufmerksamkeit bei der Konstruktion von Rahmenhäusern sollte dem Finish gewidmet werden. In erster Linie für Wohnräume, die sowohl für den saisonalen als auch für den dauerhaften Aufenthalt genutzt werden, ist die Fähigkeit, Wärme zu speichern, wichtig. Um zu jeder Jahreszeit eine angenehme Temperatur im Haus zu erhalten, ist es notwendig, Materialien für dekorative Außenbehandlungen sorgfältig auszuwählen. Die Priorität ist die Verwendung von natürlichen umweltfreundlichen Materialien: Holz, Wandverkleidungen, Stein, Ziegel.

Wenn die Fassade des Gebäudes von außen mit Mauerwerk oder Holzpaneelen dekoriert wird, wird dies die Zuverlässigkeit der Konstruktion gewährleisten. Diese Materialien sind jedoch relativ teuer. In einer wirtschaftlicheren Version kann die moderne Penoplex-Isolierung als Abdeckung und von außen - Verkleidung mit Verkleidungsplatten oder Abstellgleis verwendet werden. Diese Art der Oberflächenbehandlung verursacht ein Minimum an Kosten und sieht so gut aus wie natürliche Materialien.

Wie für die Innenwände der unteren Etage und Dachboden,hier sind die Wände auf der Dämmung (meist Mineralwolle) mit Holzspanplatten (FBD), Holzfaserplatten (Faserplatten), Schindeln oder Sperrholzplatten ummantelt, auf die eine dekorative Putzschicht aufgetragen oder Tapeten geklebt werden können.

Die Eigentümer von Privathäusern bevorzugen das System "Warm Floor" als zusätzliche Wärmequelle. Mit dieser Technologie können Sie zu jeder Jahreszeit eine angenehme Raumtemperatur aufrechterhalten. Eine Bodenfliese wird über einen warmen Boden gelegt, oder es wird ein Laminatboden verlegt. So wird maximaler Komfort und Gemütlichkeit Ihres Landhauses erreicht, und es wird für dauerhaften Wohnsitz geeignet.

Um den Raum des Dachgeschosses visuell zu vergrößern, schlagen Designer bei der Schaffung eines architektonischen Projekts vor, ein Loft mit einem Erkerfenster zu verwenden. Erkerfenster ist ein Teil des Raumes, der für die Ebene der Fassade des Gebäudes selbst steht und den inneren Bereich des Gehäuses erweitern kann. In der Regel verfügt das Erkerfenster über eine Panoramaverglasung, wodurch der Dachboden maximal natürlich beleuchtet wird.

Die Form des Erkerfensters kann sehr unterschiedlich sein: ein Halbkreis, ein Rechteck, ein Polyeder, was zur Anmaßung Ihrer architektonischen Struktur beiträgt.

Schöne Beispiele

Wenn Sie sich dazu entschließen, Eigentümer eines Fachwerkhauses mit einem Loft zu werden, wissen Sie, dass dies eine gute Wahl ist! In den letzten Jahrzehnten hat der Rahmenbau in unserem Land an Fahrt gewonnen. Das Wichtigste ist, dass Sie selbst zum Autor Ihres einzigartigen Projekts werden können, indem Sie Ihr Traumhaus bauen! Im Folgenden finden Sie Fotos von glücklichen Besitzern abgeschlossener Projekte.

Um zu erfahren, wie man einen Dachboden richtig baut, sehen Sie das folgende Video.

Kommentare
 Kommentarautor

Die Küche

Kleiderschrank

Wohnzimmer