Projekte von Häusern in der Größe 7 von 9 mit einem Dachboden: die beliebtesten Optionen

Nach dem Erwerb eines Baugrundstücks stehen wir vor der Frage der Hausplanung. Ich möchte, dass es groß und hell ist, mit separater Küche, Bad, Bad und Schlafzimmern. Aber nicht immer ist die Seite groß genug, um alles zu beherbergen.

Ein Haus mit Dachgeschoss ist eine ausgezeichnete Lösung nicht nur für den Landbau, sondern auch für den Städtebau.

Besonderheiten

Haus 7x9 Quadratmeter. m mit einem Dachboden wird in diesem Fall eine ausgezeichnete Wahl sein. Bei der Planung der Konstruktion ist besonders auf die Wärmedämmung zu achten.weil der Dachboden extremen Temperaturen ausgesetzt ist. Dachmaterialien und Dachsystem, Isolierung und Abdichtung, Materialien von Wänden und Fenstern - all das erfordert volle Aufmerksamkeit. Verpassen Sie keines dieser Objekte und dann wird das Haus wirklich warm.

Ein charakteristisches Merkmal der Häuser 7 bis 9 mit einem Dachboden ist ihre Fläche - bis zu 120 Quadratmetern. mEs hängt direkt von der Anordnung des ersten Stocks und des Dachsystems des Dachbodens ab. Die beliebtesten Dächer für Dachböden sind gebrochen, mehrzüngig, Walm-und Walmdächer.

  • Die erste ist die häufigste Option. Es wird auch das Mansardendach genannt. Seine Hänge haben einen großen Neigungswinkel. Aufgrund dessen, was die Größe der Nutzfläche auf dem Dachboden fast auf die Größe des ersten Stocks erhöht.
  • Die zweite Option ist eher für polygonale Gebäude geeignet. Ohne die Hilfe von Experten ist es sehr schwierig, ein solches Modell zu planen und zu bauen. Aber wenn alles klappt, werden das Äußere des Hauses und die Inneneinrichtung sehr originell.
  • Die letztere Option hat viele Varianten. Ihr Unterscheidungsmerkmal ist, dass alle vier Seiten mit Dachmaterial bedeckt sind. Der sogenannte Giebel existiert einfach nicht. Diese Version des Daches ist berühmt für seine Beständigkeit gegen Niederschlag und Wind.

Natürlich werden auch andere Arten von Dächern für den Dachboden verwendet, aber in diesem Fall ist seine Fläche stark reduziert.

Projekte

Wenn Sie sich für ein Projekt des zukünftigen Hauses entscheiden, müssen Sie sich für drei Aspekte entscheiden:

  • für den dauerhaften oder vorübergehenden Aufenthalt wird es verwendet;
  • wie viele Leute er aufnehmen kann;
  • Erektionsmaterial.

Der erste Punkt bestimmt das Niveau von Erwärmung und Komfort. Wenn das Haus nur für Ruhe und gelegentliche Übernachtungen benötigt wird, wird es viel weniger erwärmt..

Kapazität mehr bezieht sich auf Häuser für den ständigen Aufenthalt. Für eine große Familie braucht man mehr Räume und Wohnraum. Aber auch dieser Punkt ist auf die Annahme "saisonaler" Gäste zurückzuführen. Viele Menschen schicken ihre Kinder zu Verwandten zu Besuch.

Der dritte Punkt ist vielleicht der schwierigste. Eine Menge Materialien für den Bau des Hauses:

  • ein Baum;
  • Blöcke;
  • Ziegelstein

Häuser sind Schild, Rahmen usw. Jedes dieser Elemente kann in mehrere andere unterteilt werden, weil die Technologie nicht still steht.

Blockhäuser und Holzhäuser gelten als die beliebtesten.. Block ist für die Geschwindigkeit der Konstruktion und Wärmedämmung Eigenschaften geschätzt. Laut Statistik sind 33 Prozent der Privathäuser aus Holz. Sie gelten als die umweltfreundlichsten und wärmsten, benötigen keine zusätzliche Isolierung.

Ein großes Minus des Baumes ist seine Entflammbarkeit, Anfälligkeit für Fäulnis, Schimmel und Pilze.

Die beliebtesten Projekte von Häusern 7x9 mit einem Dachboden haben eine Fläche von 123,8 Quadratmetern. m und 113,5 qm. m

Im ersten Fall befindet sich:

  • Küche von 13,8 Quadratmetern. m;
  • Badezimmer 4,6 Quadratmeter. m;
  • Halle 7.8 Quadrat. m;
  • Hauswirtschaftsraum 5,2 Quadrat. m;
  • Wohnzimmer mit einer Treppe zum Dachboden von 20,1 qm. m;
  • Schlafzimmer 9.1 Quadratmeter. m

Attic eines solchen Projekts beinhaltet:

  • Korridor 11,1 Quadrat. m;
  • Badezimmer 6,0 qm. m;
  • Schlafzimmer 14,6 Quadratmeter. m und zwei 13,1 Quadratmeter. m

Das zweite Projekt zeichnet sich durch die Größe der Räume sowie eine Verringerung des Wohnraums aus. Betrachte es:

  • Küche 12,5 Quadratmeter. m;
  • Badezimmer 4,2 Quadratmeter. m;
  • Halle 6,8 Quadratmeter. m;
  • Hauswirtschaftsraum 5,2 Quadrat. m;
  • Gemeinschaftsraum mit Treppe 27.5 qm. m

Auf dem Dachboden dieses Projekts befinden sich:

  • Korridor 9,7 Quadrat. m;
  • Badezimmer 6,0 qm. m;
  • ein Schlafzimmer 12,8 qm. m und zwei 12,0 Quadratmeter. m

Wie aus diesen zwei Beispielen ersichtlich ist, ist das Layout solcher Häuser im Allgemeinen ähnlich, aber wenn Sie möchten, können Sie etwas eigenes machen.

Schöne Beispiele

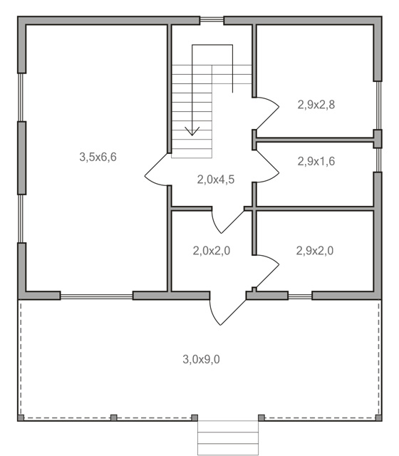
Rahmenhaus 7x9 mit einer Terrasse. Die äußere und innere Auskleidung eines solchen Projekts wird unter dem Baum durchgeführt. Die 3x9 Terrasse befindet sich vor der Eingangstür.

Es folgt ein Vestibül von 2x2, von dem eine Tür direkt in einen Raum mit einer Treppe von 2x4,5 und die andere - rechts in einen Raum von 2,9x2 Quadratmetern führt. Drei Türen führen vom Zimmer mit der Treppe. Einer - im Zimmer 3.5x6.6. Zwei - in Räumen 2,9x6 und 2,9x2,8, beziehungsweise.

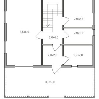
Dachgeschoss dieses Projekts umfasst drei Räume. Korridor 2x5, wo die Treppe vom ersten Stock und zwei Zimmer auf beiden Seiten davon führt, 3,5x5 und 2,9x5.

Tiled (einschließlich Terrasse) Projekt sieht sehr gut aus. Dieses Haus kann ein großartiger Ort zum Leben und Entspannen sein.

Natürlich, viele Optionen. Sie können ein schlüsselfertiges Gebäude bestellen oder mit Ihrem Architekten zusammenarbeiten, um Ihre eigene Version zu entwickeln, die auf Ihrem Wunsch basiert.

Eines der Beispiele für den Bau eines solchen Hauses mit Dachboden ist im folgenden Video zu sehen.

Kommentare
 Kommentarautor

Die Küche

Kleiderschrank

Wohnzimmer