Modernes Design einer Dreizimmerwohnung

Aufgrund des hohen Bautarifaufkommens von Mehrfamilienhäusern gibt es heute eine große Vielfalt an Wohnungen aller Arten von Grundrissen. Die gängigste und beliebteste Wohnung ist jedoch ein Drei-Zimmer-Apartment für große oder mittelgroße Familien. Schauen wir uns das moderne Design solcher Häuser an.

Besonderheiten

Eines der Merkmale einer Drei-Zimmer-Wohnung ist die Anwesenheit einer Passage. In modernen Häusern ist die Planung von 3-Zimmer-Wohnungen aufgrund der hohen Decken sehr komfortabel geworden.

Solche Wohnungen in den fünfstöckigen Gebäuden von Chruschtschow werden oft eigenständig saniert. Der Grund dafür sind kleine Bereiche einzelner Wohn- und Nichtwohngebiete, Durchgangszimmer etc.

Es sollte gesagt werden, dass Sie in Anwesenheit einer bestimmten Phantasie in der Gestaltung und dem Wunsch, Ihr Haus irgendwie zu verwandelnSie können immer ein einzigartiges und unnachahmliches Design und Layout aus scheinbar vertrauten und Standard-Apartments erstellen. Zum Beispiel könnte eine der Varianten einer solchen Konstruktion die Verbindung eines verglasten Balkons mit dem gesamten Wohnraum sein, indem er isoliert und ein Teil der Wand abgerissen wird.

Es sollte angemerkt werden, dass bei der Wahl eines Drei-Zimmer-Gehäuse Räumlichkeiten am meisten gefragt sind. mit getrennten und voneinander getrennten Zimmern. Im Allgemeinen, unter den typischen Layouts solcher Wohnungen kann eine Vielzahl von Optionen, angrenzende, gemischt, isoliert, offen (Studios) festgestellt werden. Durch das Setzen von Fenstern unterscheiden sich lineare Wohnungen, "Westen" und enden.

Die moderne Standardplanung von Drei-Zimmer-Wohnungen unterliegt oft individuellen Änderungen. Kombinieren Sie dazu oft mehrere Räume, ein Zimmer mit Balkon oder ein Zimmer mit Korridor.

Optionen

Eine der Optionen bei der Wahl einer neuen Drei-Zimmer-Wohnung ist die Anordnung für den Komfort der Unterbringung großer Familien. Die beste Option wäre in diesem Fall, ein Studio mit einem kostenlosen Layout zu kaufen. In der Tat, in diesem Fall 100 Quadratmeter oder mehr. mSie können mehrere Zimmer für jedes Familienmitglied arrangieren.

In der modernen, verbesserten Serie von Drei-Zimmer-Wohnungen versuchen sie derzeit zu entwerfen isolierte Zimmer, Balkone oder Loggien in jedem Zimmer und kombinierten Badezimmern.

Eine der Optionen für die alte Art von Wohnungen ist eine komplette Sanierung mit dem Abriss der Wände, die nicht tragen. In diesem Fall können Sie die Funktionalität der Räume ändern und den Raumbereich erweitern.

Dies verwendet oft mehrere Optionen. Einer von ihnen ist die Umwandlung eines Raumes in ein Studio, der andere ist eine teilweise Kombination von zwei benachbarten Räumen, zum Beispiel einem Wohnzimmer und einem Balkon. Bei einer grundlegenden Neugestaltung versuchen sie auch, alle Räume voneinander zu isolieren.

In einer Drei-Zimmer-Unterkunft hängt der Zweck jedes Zimmers von der Anzahl der Personen in einer Familie und von den Arbeitsbedingungen ab. Wenn einer der Familienmitglieder zu Hause arbeitet, kann eine solche Wohnung in diesem Fall nicht ohne eine Studie auskommen. Die Größe der Dreizimmerwohnungen kann von 56 bis 80 und mehr Quadratmeter variieren. Eine kleine Wohnung nimmt 60-63 m2 ein.

7 Foto

Die Lage der Zimmer in den "neuen Gebäuden"

Derzeit befindet sich das Badezimmer in der Regel in der Nähe der Küche. Auch in modernen Grundrissen kann ein offenes Gehäuse verwendet werden, wenn keine Räume voneinander isoliert sind, was nicht gerade bequem ist.

Die Flächen von Dreizimmerwohnungen in modernen Neubauten sind sicherlich größer geworden als im alten Wohnungsfonds der 80er und 90er Jahre. Sie erschienen geräumige Balkone oder Loggien.

Drei-Zimmer-Gehäuse können auch eine Ecke haben. In diesem Fall wird einer der Räume zur Eingangshalle und wird normalerweise in ein Wohnzimmer umgewandelt. In diesem Fall sollte eine solche Wohnung oft saniert werden. Oft in neuen Häusern werden die Räume ohne Trennwände gemietet, zukünftigen Eigentümern werden geräumige Studios zur Verfügung gestellt, mit der anschließenden Planung solcher Wohnungen nach ihrem Ermessen.

Ganz zu schweigen von dem typisch tschechischen Layout einer Dreizimmerwohnung. Sie ist sehr nachdenklich, aber ohne Originalität. In diesem Fall können Sie jedoch immer eine Sanierung vornehmen, da nicht alle Wände darin liegen.

Die Merkmale einer solchen Wohnung sind Schränke und enge Korridore. Die Standardfläche beträgt 64 m2. Aber Balkone und Loggien in ihnen werden normalerweise groß gemacht.

Derzeit können moderne Wohnhäuser die unterschiedlichsten Raumaufteilungen nutzen. Neue Arten von Drei-Zimmer-Wohnungen Layouts erscheinen ständig, die die unterschiedlichsten Geschmäcker der zukünftigen Wohnungseigentümer befriedigen können.

In Plattenhäusern

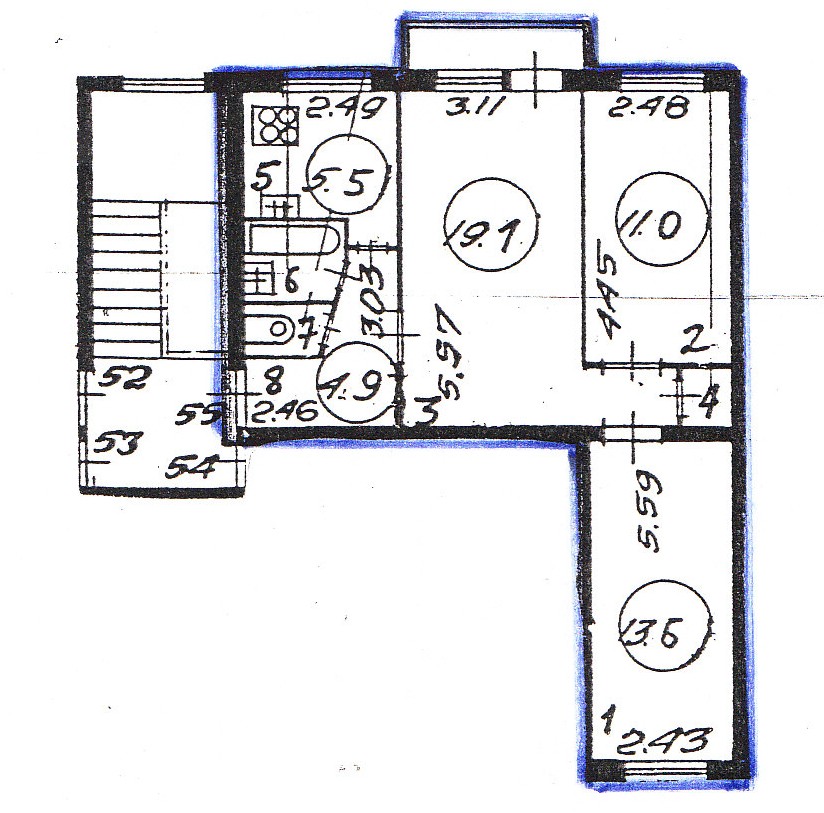
Eines der üblichen Layouts für ein Fertighaus ist eine Dreizimmerwohnung eines Durchgangs. Mit Hilfe von erfahrenen Designern können alte typische Layouts in Plattenhäusern immer wieder zu etwas Neuem und Modernem werden, was das Aussehen der Wohnung drastisch verändert.

Was die Wohnungen im fünfstöckigen "Chruschtschow" betrifft, so versuchen sie nun, eine komfortablere Sanierung zu wählen. Zum Beispiel wird eine Speisekammer in einer solchen Wohnung in eine Umkleidekabine für die Gastgeberin verwandelt. Eine andere Möglichkeit ist, ein Studio-Apartment aus Chruschtschow zu machen.

Auch eine teilweise Vereinigung der Räumlichkeiten, zum Beispiel ein Balkon mit einem Schlafzimmer oder eine Küche mit einem Wohnzimmer. Der Boden in einer solchen Wohnung wird durch Fliesen ersetzt und der alte Holzboden und die Estriche entfernt.

Eine der interessanten Optionen ist die Neuentwicklung einer typischen Drei-Zimmer- "Weste" in neunstöckigen Gebäuden zu einer Wohnung mit einer kombinierten Wohnküche und zwei isolierten Räumen. In einem der Räume erlaubt der Bereich, einen Mini-Ankleideraum zu bauen, und in der Sackgasse des gebildeten Korridors können Sie eine kleine Speisekammer abgrenzen.

Es sei darauf hingewiesen, dass die Dreizimmerwohnungen in den fünfstöckigen Gebäuden nicht ganz erfolgreich waren. Angrenzende Zimmer und kleine Bereiche der Zimmer waren nicht sehr komfortabel. Zur Verbesserung der Lebensbedingungen wird daher derzeit eine radikale Sanierung der Wohnung genutzt.

Erfolgreiche Beispiele und beste Optionen.

In der modernen Stadt in der heutigen Zeit mit dem Bau neuer Nachbarschaften mit Wohnhäusern, erscheint eine große Vielfalt von Wohnungsgrundrissen. Am beliebtesten sind die drei Zimmer. Sie sind so konzipiert, dass sie sowohl in Paneelen als auch in repräsentativen Ziegelhäusern gebaut werden können.

Die beste Option ist ein Studio mit einem freien Layout. Diese Nicht-Standard-Wohnung ermöglicht es Ihnen, Ihre eigene Designer-Fantasie zu zeigen und sich selbst die erfolgreichste Option für einen komfortablen Aufenthalt zu modellieren.

Die Pläne von Drei-Zimmer-Business-Class-Apartments können hohe Decken sowie mehrere Badezimmer umfassen. Natürlich ist die Gesamtfläche einer solchen Wohnung auch größer als üblich.

Es ist auch anzumerken, dass der Kauf einer Dreizimmerwohnung eine lohnende Investition ist, da die Preise für solche Wohnungen ständig steigen.

Ein wichtiger Faktor bei der Wahl der besten Wohnmöglichkeit ist das richtige und effektive Verhältnis der Gesamtfläche zum Wohngebiet.

7 Foto

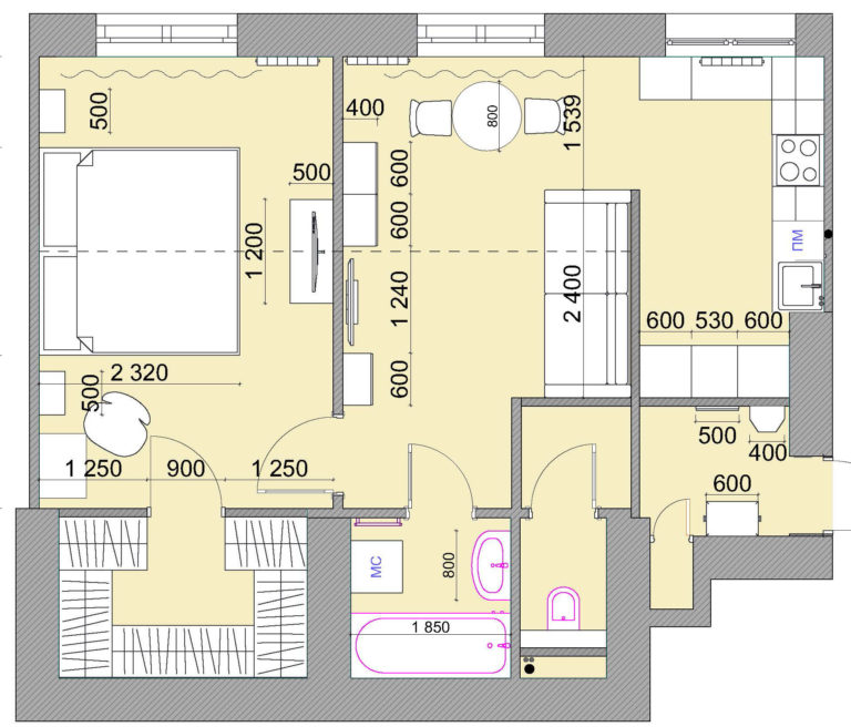
Betrachten Sie die Beispiele von Drei-Zimmer-Wohnungen. Hier ist der Grundriss einer neuen Dreizimmerwohnung. Es gibt eine große und geräumige Flurhalle, in der sich Schränke für Kleidung, Schuhe und Bettwäsche befinden.

Alle Räume sind voneinander isoliert. Auf der rechten Seite befindet sich ein separates Badezimmer und eine Küche. Auf Wunsch kann das Badezimmer kombiniert werden, wo eine Waschmaschine aufgestellt wird. Auf der linken Seite befinden sich zwei Schlafzimmer - eins mehr, das andere kleiner. In der Mitte befindet sich das Wohnzimmer, das mit der Küche kombiniert werden kann und so den gesamten Raum optisch und physisch vergrößert.

Im Allgemeinen ein ziemlich erfolgreiches und modernes Layout für eine Familie von drei oder vier Personen.

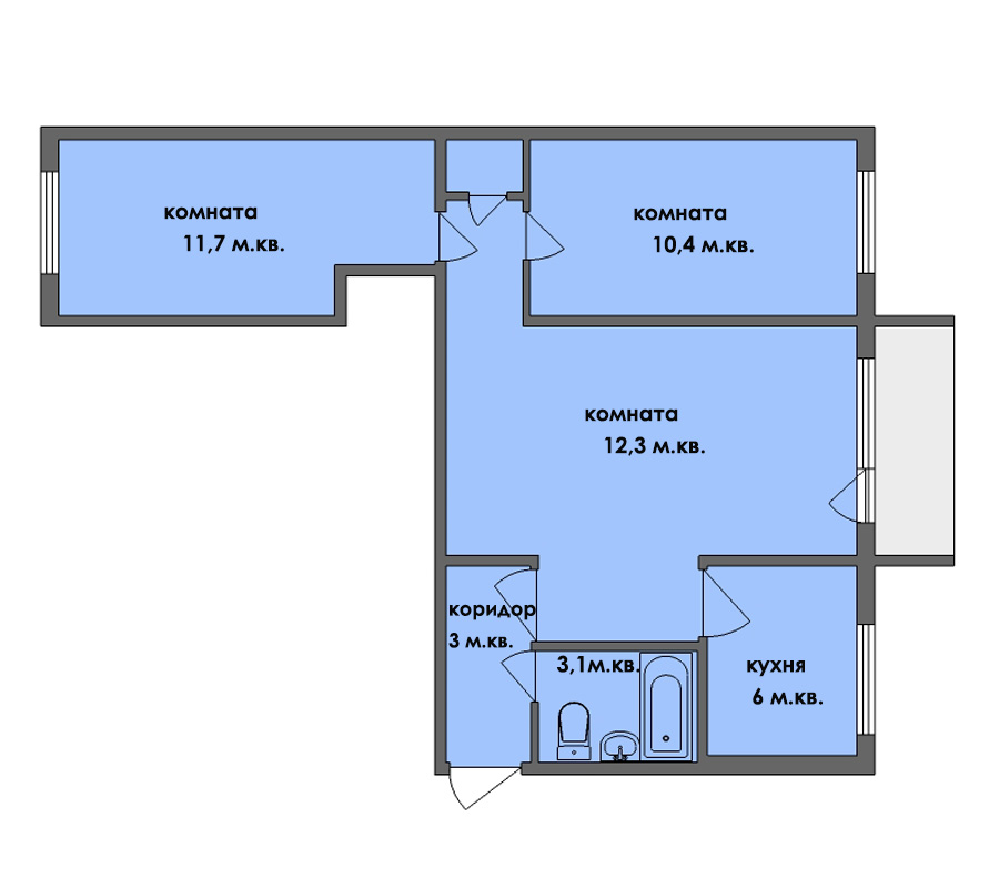
Eine weitere Option für die Planung einer Dreizimmerwohnung. Es gibt einen Korridor in der Form des Buchstaben G.Aber ein separates Badezimmer wird mit all den Wünschen schwer zu kombinieren sein, da die Badezimmer und Toiletten in verschiedenen Teilen des Korridors liegen.

Das Wohnzimmer ist recht geräumig und hat einen Balkon. Durch den Gang kommen wir in die Küche. Am Ende des Ganges auf jeder Seite des Badezimmers befinden sich links und rechts zwei Schlafzimmer.

Alle Räume sind voneinander isoliert. Die Variante dieser Wohnung ist im Großen und Ganzen recht gut, aber auf Wunsch kann sogar eine radikale Sanierung von Räumen mit Wandabriss vorgenommen werden.

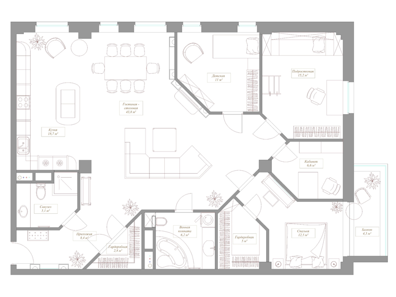
Stellen Sie sich eine andere Möglichkeit vor, eine Dreizimmerwohnung zu planen, die kleine Unterschiede zu den vorherigen Möglichkeiten aufweist.

Alle Räume sind voneinander isoliert. Beim Betreten der Wohnung befinden wir uns sofort in einem langen und geraden Korridor. Zu seiner Linken sind drei Schlafzimmer. Die ersten beiden haben einen Balkon. Im dritten, geräumigeren Schlafzimmer befindet sich ein eigenes Ankleidezimmer.

Toilette und Badezimmer sind voneinander getrennt und weisen wie in der zweiten Ausführungsform keine angrenzenden Wände auf. Auf der rechten Seite des Korridors, gegenüber der Toilette, befindet sich eine große und geräumige Wohnküche. Es hat auch Zugang zu einem sehr großen Balkon, wo Sie bequem eine ganze Firma unterbringen können.Im Allgemeinen ist das Layout gut genug und weist eine Reihe von Merkmalen und Vorteilen auf.

Abschließend möchte ich das derzeit sagen Priorität hat nicht nur Komfort und Luxus der Wohnung, sondern auch Zweckmäßigkeit und Funktionalität. Daher wird der Schwerpunkt in modernen Gebäuden darauf gelegt. Wenn Sie den alten Bestand, zum Beispiel "Chruschtschow", bequemer unterbringen wollen, dann ist es möglich, ein Sanierungsprojekt mit der Hilfe eines Designers zu machen. Es wird das neue Layout der Räume angezeigt.

Mit diesem Plan wird es einfacher für Sie, sich das zukünftige Interieur vorzustellen, und Sie können Reparaturen selbst durchführen.

Im folgenden Video erfahren Sie mehr über das moderne Design von Dreizimmerwohnungen.

Kommentare
Kommentarautor

Die Küche

Kleiderschrank

Wohnzimmer