Phasen der Sanierung und wie man sie legitimiert

 Phasen der Sanierung und wie man sie legitimiert

Sehr oft greifen Eigentümer von städtischen Quadratmetern, die ihren Lebensraum verändern wollen, auf Sanierungen zurück. In dieser Hinsicht sind die Räumlichkeiten erheblich erweitert, aber es besteht die Gefahr des Einsturzes des Gebäudes, und um dies zu vermeiden, ist eine offizielle Genehmigung erforderlich. Wir werden versuchen, dieses Problem zu verstehen.

Was ist erlaubt und was ist verboten?

Bei der Durchführung von Großreparaturen in einem Mehrfamilienhaus müssen Sie sich an den Wohnungskodex halten, es gibt einen speziellen Bereich, der diesem Thema gewidmet ist. Nach der Wohnungsordnung ist der Abbruch von Tragwerken, einschließlich der teilweisen Zerstörung, streng verboten.Es ist unmöglich, die tragenden Wände zu verdünnen, es kann die Struktur des ganzen Wohngebäudes negativ beeinflussen. Übrigens, bevor Sie mit der Reparatur beginnen, müssen Sie das Datenblatt für eine Wohnung sorgfältig prüfen. In der Regel sind die tragenden Wände durch eine dicke Linie oder eine spezielle Beschattung gekennzeichnet.

Es ist nicht erlaubt, die Tragkonstruktionen ohne Genehmigung der Aufsichtsbehörde zu belasten.

Es besteht auch ein Verbot der Nutzung der allgemeinen Hauskommunikation in ihren eigenen Interessen. Zum Beispiel, einen wasserbeheizten Boden an die Zentralheizung oder Heizungsanlage Ausgang an die Loggia anschließen. Solche Aktionen können zu einer erhöhten Belastung des Zentralsystems führen, in Verbindung damit kann das Wasser in der Armatur für einige Mieter verschwinden.

Eingriffe in Lüftungsanlagen sind strengstens untersagt.Dies gilt auch für Rohre, durch die Wasser zirkuliert. Eine Unterbrechung des Gasversorgungssystems ist nicht erlaubt. Es ist jedoch zu beachten, dass Sie die Küchenwand teilweise abbauen können, jedoch nur, wenn Sie einen Elektroherd, keinen Gasherd benutzen. Es ist auch erlaubt, eine zusätzliche Öffnung von sowohl Fenstertyp als auch Türtyp zu montieren.

Die Gesetzgebung erlaubt es nicht, die Fläche von Nichtwohnräumen, wie zum Beispiel einen Lagerraum oder einen Korridor, auf Kosten von Wohnräumen zu vergrößern. Tatsache ist, dass der Wohnungskodex das Filmmaterial pro Person - 8 Quadratmeter - eindeutig vorschreibt. m, die nicht reduziert werden kann. By the way, und Heizung mit Beleuchtung in diesem Gesetz gilt direkt für Wohnräume. Es ist inakzeptabel, dass die Räume ohne Licht oder Heizung bleiben.

Installieren Sie keine Kanalisation über den Wohnvierteln der Nachbarn unten. Also, Bäder, Waschbecken und Duschen sollten ihren Standort nicht ändern. Zur gleichen Zeit erlaubt die Erweiterung des Badezimmers auf Kosten von Lagerräumen und Fluren.

Die Zusammenlegung von Wohnungen auf verschiedenen Etagen durch Abbruch oder Teilabbruch von Fußböden ist untersagt. Bewohner der ersten Stockwerke dürfen den Keller unter dem Balkon nicht ausstatten und zusätzliche Räume hinzufügen. Es ist nicht akzeptabel, Trennwände aus festen Materialien in den Räumen zu bauen. Es ist verboten, technische Schränke zu demontieren, es ist nicht erlaubt, technische Schränke mit Tapeten zu überkleben, da dies den Zugang zu Rohren und Zählern verschließt.

Keine Notwendigkeit, die Renovierung zu koordinieren - Installation von Boden-, Decken-, Klebe- oder Malerwänden, Austausch von Innen- und Außentüren. Die Demontage von Einbaumöbeln ist erlaubt, sofern danach keine neuen Räume in der Wohnung entstehen.

Die Installation von Satellitenantennen, Moskitonetzen und Klimaanlagen ist erlaubt, aber Sie müssen bedenken, dass auf kommunaler Ebene einige Einschränkungen gelten können.

In den meisten Fällen ist keine Genehmigung für die Verglasung des Balkons, die Demontage der Türöffnung, die Installation von leichten Trennwänden, die die Decke nicht beeinträchtigen, erforderlich.

Bei der Ausführung der folgenden Arbeiten müssen entsprechende Kennzeichnungen in den technischen Pass aufgenommen werden:

  • Ersatz Sanitär.
  • Anordnung der Badezimmer und Küchen.
  • Neuinstallation von verschiedenen Geräten, einschließlich Gas-und Sanitär-Typ.
  • Ersetzen oder Verlegen des Netzteils.

Welche Aktionen erfordern Koordination?

Sanierung ist die Installation einer Duschkabine anstelle eines Bades, da diese Arbeiten die Verlegung von Rohren, Spülbecken sowie die zusätzliche Organisation der Wasserableitung beinhalten. Ein solcher unbefugter Eingriff in das allgemeine Haussystem erfolgt nur nach Genehmigung.

Wenn ein Gassystem im Plattenhaus installiert wird, muss der Austausch von Öfen durch elektrische koordiniert werden.

Gleichzeitig ist es notwendig, im Voraus alle Vor- und Nachteile eines solchen Ersatzes abzuwägen, ob es profitabel sein wird, ob es möglich ist zu sparen.

Wohnungen, in denen Balkone oder Loggien vorhanden sind, können theoretisch erweitert werden, indem der Balkonblock und ein Teil der Mauer abgebaut werden. Aber dafür müssen Sie einen Spezialisten anrufen, der die Situation einschätzen und entscheiden soll, ob solche Eingriffe und Erweiterungen zu Konsequenzen führen, wenn die Nachbarn weniger Wärme bekommen. Wenn sich die Befürchtungen bestätigen, wird eine Ablehnung folgen.

Bei der Neuplanung eines "stalinka" oder "brezhnevka" ist es möglich, einen langen Korridor mit einem der Räume zu kombinieren, um die Küche und das Wohnzimmer oder die Küche und den Flur zu vereinen - es gibt viele Möglichkeiten, aber das erfordert eine Genehmigung. Wir werden in den folgenden Abschnitten über die Fusionsoptionen sprechen.

Besonderheiten

In einfachen Worten, Sanierung ist eine Änderung der Planung, die Erlaubnis erfordert. Um herauszufinden, welche Behörde dieses Verfahren genehmigt, ist es notwendig, sich mit einer entsprechenden Anfrage an die Bezirksverwaltung zu wenden.

Nach der Klärung aller Fragen, die Sie benötigen, um die Dokumente vorzubereiten:

  • Original oder notariell beglaubigte Kopie der Eigentumsurkunde.
  • Registrierungszertifikat für die Wohnung.
  • Grundriss
  • Erklärung.
  • Abgeschlossener Antrag mit Angabe der geplanten Arbeit.
  • Projektplan

Übrigens kann es Schwierigkeiten bei der Sanierung alter Gebäude geben, da einige Häuser von kulturellem oder historischem Wert sind. In diesem Fall benötigen Sie spezielle Expertise.

Heutzutage entwickeln viele Unternehmen einen Entwurf, aber es ist bemerkenswert, dass sie viel Geld für ihre Dienstleistungen benötigen. Und manche bieten sogar schlüsselfertige Jobs an. In diesem Fall übergibt das Unternehmen das Paket an Unterlagen im Namen des Kunden an die Aufsichtsbehörde.

Wie machst du dich selbst?

Um einige Menschen zu retten, entwickeln sie eigenständig einen Plan für das zukünftige Projekt. Für eine Probe können Sie den Projektplan von Freunden, Verwandten oder einen im Internet gefundenen Plan verwenden. In der Regel sollten in typischen Häusern die Lage der Räume und die Abmessungen der Räumlichkeiten gleich sein. Aber die beste Option ist der originale Apartmentplan, denn er hat bereits tragende Wände, Kommunikation und exakte Abmessungen.

Wenn das Gehäuse nicht Standard ist oder es keinen ursprünglichen Plan gibt, dann müssen Sie alle Messungen selbst durchführen, es ist wichtig, die tragenden Wände richtig zu bestimmen, Ventilation zu finden

Übrigens können Sie Dokumente wiederherstellen, indem Sie sich an den BTI wenden.

Danach werden die demontierten Bereiche - Wände, Trennwände mit einem roten Stift und Innovationen grün markiert. Sie müssen den resultierenden Bereich der neuen Räumlichkeiten angeben. Beachten Sie, dass der maximale Flächenzuwachs 25 Prozent nicht überschreiten darf, ansonsten wird eine Ablehnung ausgesprochen.

Es sollte verstanden werden, dass die Kommission den Bereich der Wohnung nicht berücksichtigt, es kann mindestens 30 Quadratmeter sein. m, mindestens 64 Quadratmeter. m, und Berechnungen der Festigkeit, thermische Berechnung und Einhaltung der Standards der Housing Code.

Warum brauchst du ein Projekt?

Leider haben nicht alle Leute eine technische Einstellung, in dieser Hinsicht glauben sie, dass die Skizze des zukünftigen Projektes von einem Fachmann durchgeführt werden sollte. Dies ist ihr Recht, zumal das Projektbüro viele Nuancen kennt, die bei der Erstellung eines Planentwurfs berücksichtigt werden müssen. Über sie zu einem Fremden zu wissen und nicht unbedingt.

Die Projektgesellschaft berücksichtigt bei der Erstellung des Plans unter anderem das architektonische Erscheinungsbild der Stadt.Wie bereits erwähnt, ist es in einigen Gemeinden verboten, Satellitenantennen und Klimaanlagen an Häusern in der Nähe von Gastwegen zu senden. Und da moderne Häuser ohne die Vorteile der Zivilisation undenkbar sind, müssen wir einen Ausweg aus dieser Situation finden.

So können beispielsweise in einem monolithischen Haus bereits in der Bauphase ein Kabelfernsehsystem oder Kabel von Internetbetreibern, die Zugang zu IPTV bereitstellen, eingerichtet werden. Aus diesem Grund ist es möglich, Satellitenausrüstung zu verweigern.

In der Planungsphase können die Planungsbüros die Situation objektiv beurteilen und selbst anpassen.das wird sich positiv auf die Genehmigung auswirken, und die Wohnungskontrolle wird eine Genehmigung für die Sanierung erteilen. Wichtig ist auch, dass die Planungsgesellschaft selbst die Sanierung mit Rospotrebnadzor, Brandinspektion, SES und der Architektur- und Planungsabteilung koordiniert.

Bedingungen der Prüfung und Gründe für die Ablehnung

Gemäß den Artikeln des Housing Code sind bis zu 45 Tage für die Prüfung des Antrags zugeteilt. Während dieser Zeit untersuchen die Mitarbeiter der Aufsichtsbehörde die Unterlagen einschließlich des Plans für die künftige Sanierung und vergleichen sie mit den geltenden Vorschriften.

Beachten Sie, dass das Gesetz die Zahlung von staatlichen Gebühren für die Ausstellung eines neuen technischen Passes vorsieht. Leider ist die Sanierung nicht billig, aber Sie können sicher sein, dass es keine negativen Folgen hat. Dazu gehören die Zahlung von Geldstrafen für illegale Sanierung.

Nach dieser Frist erteilt die Wohnungskontrolle entweder eine Genehmigung oder eine Verzichtserklärung.

Die Gründe für die Ablehnung können folgende Verstöße sein:

  • Störung der Integrität der Außenwände.
  • Installation eines wasserbeheizten Bodens.
  • Die Übertragung von Wasserversorgungssystemen, wodurch die Bäder oder Küche über den Wohnräumen der Nachbarn liegen.

Jede Verweigerung kann versucht werden, durch das Gericht abzusagen, aber Experten, um Geld und Zeit zu sparen, empfehlen, auf die Vorbereitung eines neuen Entwurfsplans zu zurückgreifen, der alle Kommentare in Betracht zieht.

Manche Menschen machen bewusst oder unbewusst zuerst größere Reparaturen und versuchen dann, sie zu legitimieren.

Aber denken Sie daran: Wenn Sie versuchen, auf diese Weise zu sparen, können Sie in Schwierigkeiten geraten.

Wie legalisiert man?

Wie bereits erwähnt, ist es möglich, die Sanierung zu legitimieren, indem Sie die Aufsichtsbehörde mit einem Dokument oder durch ein Gericht kontaktieren.Es sollte bemerkt werden, dass in den megalopolises die Wohnungsinspektion, um die Bezirksgerichte nicht zu überlasten, häufig geht, um die Einwohner zu treffen, die unerlaubte Sanierung und Ausgabengenehmigungen gemacht haben. Aber in diesem Fall sprechen wir von einfachen Eingriffen, in allen anderen Fällen werden Gerichtsverfahren und Geldstrafen verhängt.

Die Inbetriebnahme von Wohnungen, in denen die tragenden Wände demontiert wurden, ist strengstens untersagt. Kein Wohnungsinspektor wird solch ein Risiko eingehen, es ist mit dem Einsturz von Fußböden und möglicherweise dem ganzen Eingang belastet.

Zimmer, die saniert wurden, müssen legalisiert werden, danach können Sie eine Wohnung weiterverkaufen, spenden oder erben. Daher ist es nicht wert, dieses Problem zu verzögern.

Sie können Dokumente in das multifunktionale Zentrum einreichen - das MFC. Denken Sie daran, wenn mehrere Personen in der Wohnung registriert sind, dann benötigen Sie eine Zustimmungserklärung für die Sanierung von jedem von ihnen. Haben Sie das ganze oben genannte Papier zur Hand, vergessen Sie nicht die technische Schlussfolgerung, die sich auf die Sicherheit der Sanierung bezieht. Vergessen Sie nicht, eine Quittung für den Empfang von Dokumenten zu erhalten.

In einigen Fällen, wenn kein Dokument vorhanden ist,dann kann die Aufsichtsbehörde - SES, Feuerinspektorat oder Rospotrebnadzor unabhängig es durch Abteilungspost anfordern.

Folgen von nicht autorisierten Änderungen

Der Staat erlaubt die Sanierung zu legalisieren, indem er eine Klage beim Gericht einreicht. Um dies zu tun, müssen Sie eine Weigerung haben, eine Generalüberholung zu genehmigen Der Antrag wird beim Amtsgericht für Ordnungswidrigkeiten eingereicht. Dies muss innerhalb von 90 Tagen nach Erhalt der Ablehnung geschehen. Vergiss nicht, die staatliche Pflicht zu bezahlen.

Aber häufig appelliert die kontrollierende Autorität an das Gericht und belastet das folgende corpus delicti - ungesetzliche Umgestaltung und die Wahrscheinlichkeit der Beschädigung des allgemeinen Eigentums, einschließlich Ventilations-, Gas- oder Wasserdrucksysteme.

Das Gericht muss dokumentieren, dass Kapitalreparaturen die Rechte und Interessen der Nachbarn nicht beeinträchtigen, keine Gefahr für ihr Leben und ihre Gesundheit darstellen und dass sie in Übereinstimmung mit den Bauvorschriften und Gesetzen durchgeführt werden.

Die Entscheidung des Gerichts richtet sich entweder auf die gesetzlichen Anforderungen der Wohnungskontrolle, oder das Gericht verlangt eine technische Überprüfung, um den Eigentümer der Wohnung zu beweisen.

Bedenken Sie, dass die finanzielle Belastung der Prüfung auf die Person entfällt, die den Antrag vor Gericht gestellt hat.

Im Falle einer gerichtlichen Entscheidung zugunsten des Beklagten ist es mit der Entscheidung des Gerichts erforderlich, sich an die Katasterbehörde zu wenden, um Korrekturen vorzunehmen und die Sanierung zu legalisieren. Aber Sie müssen auf die Frist für die Berufung warten. Es ist normalerweise gleich einem Monat.

Der Katasterexperte bereitet einen neuen technischen Pass vor, mit dem es notwendig ist, sich an die Katasterbehörde und das Föderale Register des Staatsregisters zu wenden. Gemäß den geltenden Rechtsvorschriften wird die Bearbeitung der entsprechenden Änderungen eine gewisse Zeit in Anspruch nehmen, nach der Sie über die Immobilie frei verfügen können.

Arten und Optionen

In der Regel geht es bei der Sanierung um die Vereinigung eines Raumes mit einem anderen aufgrund des vollständigen oder teilweisen Abrisses von Wänden. Und solche Veränderungen erfordern Koordination. Aber zum Beispiel sind Durchgangsräume, die auch "Wagen" oder "Straßenbahn" genannt werden, in "Chruschtschow" am häufigsten durch Trennwände getrennt.

Die Trennwand kann aus einem Metallrahmen mit Platten aus Trockenbau,In diesem Fall ist eine solche Neuplanung jedoch nicht erforderlich.

Oft demontieren die Besitzer von städtischen Quadratmetern die Balkonblöcke und einen Teil der Wand darunter. Dank dieser Technik ist es möglich, die Loggia mit dem Raum zu verbinden und somit zu erweitern. Auf dem erwärmten Balkon können Sie einen Arbeitsplatz organisieren, einen Schminktisch oder einen Schreibtisch stellen.

Wohnungen, die im Volksmund als "Westen" bezeichnet werden, haben jeweils einander gegenüberliegende Räume und die Fenster in diesen Räumen sind in unterschiedliche Richtungen ausgerichtet. Als Alternative zur Sanierung ist es möglich, die Installation einer Tür oder eines Fensters, das die Küche mit dem Raum verbindet, zu bemerken, jedoch nur unter der Bedingung, dass der Raum nicht mit einem Gasherd, sondern mit einem elektrischen Ofen ausgestattet ist.

In einem linearen Layout befinden sich alle Räume auf derselben Seite. Im Sommer ist diese Wohnung fast unmöglich zu lüften.

Bevor Sie ein zukünftiges Apartment entwerfen, sollten Sie die vorhandene Erfahrung sorgfältig überprüfen. Leider übertreiben es manche Leute und schaffen durch das Aufbrechen der Türen einen "Hof". Denken Sie daran, dass zumindest im Schlafzimmer eine Tür sein muss, da dies ein Raum für Privatsphäre ist.

Sowohl Besitzer einer 3-Zimmer-Wohnung als auch Besitzer einer Vier-Zimmer-Wohnung bemühen sich, ihre Wohnungen durch ein Atelier zu modernisieren. Auf der einen Seite ist es bequem - durch die Kombination der Küche mit dem Wohnzimmer verschwindet der zusätzliche Aufwand, der mit der Streuung der Speisen verbunden ist. Dies ist sehr wichtig in Fällen, in denen Gäste oft sind. Auf der anderen Seite muss jedoch berücksichtigt werden, dass der Abbruch der Mauer ein mühsamer Prozess ist, der mehrere Wochen dauern kann. Die ganze Zeit wird es Lärm, Staub und Schmutz in der Wohnung geben.

Betrachten wir die Sanierungsmöglichkeiten für verschiedene Wohnungen.

Ein Zimmer

Es scheint, na ja, was kann man mit einer Einzimmerwohnung machen, wenn es zu einer Familie gehört, die kleine Kinder hat? Die Aufgabe mit solchen Bedingungen wird nur gelöst, indem man eine Einraumwohnung in eine Zweizimmerwohnung umbaut.

In den meisten Fällen genügt es, eine Partition zu platzieren und den Raum zu zonieren. Um dies zu tun, benötigen Sie möglicherweise Tapeten mit einer anderen Farbe oder einen bestimmten Farbton. Trennwände können aus Kunststoff, Metall geschmiedet, in Form von Vorhängen oder Vorhängen sein. Aber meistens sind sie aus Milchglas. In diesem Fall sind sie mit einem speziellen Mechanismus ausgestattet, mit dem Sie die Tür mit einer leichten Bewegung der Hand bewegen können.

Für ältere Kinder empfehlen die Designer, mit Hilfe eines Podiums in die Ecke zu gehen.Bedenken Sie jedoch, dass das Podium die Höhe des Raumes erheblich reduziert, gleichzeitig aber mit Schubladen, Schließfächern - zusätzlichen Stauraum - ausgestattet werden kann.

Um zu sparen, können Sie einen Raum mit verschiedenen Bodenbelägen einrichten, im Kinderzimmer ist ein helles Laminat und im Hauptraum eine Bodenplatte möglich. Moderne Dichtstoffe können die Fugen zwischen den verschiedenen Beschichtungen so maskieren, dass sie praktisch nicht sichtbar sind.

Für die Errichtung von Wänden aus einem mit Trockenbauwänden ausgerüsteten Metallrahmen ist keine Genehmigung erforderlich. Wenn Sie diese Option wählen, können Sie den Raum nicht nur teilen, sondern auch mit dem Hintergrund übermalen oder bemalen.

Ein kleiner Tipp: Wenn Sie Fiberglas verwenden, ist das Tapezieren schneller.

Alternativ können Sie eine Ziegel- oder Nut-und-Feder-Platte empfehlen. Die Nut-und-Feder-Platte ist eine Neuheit auf dem Baumarkt, aber überraschenderweise ist die Konstruktion billiger als aus Ziegeln, und gleichzeitig ist ihre Installation schneller und einfacher. Es erfordert keinen Metallrahmen, die Verbindung wird mit Klebstoff hergestellt.

Trotz der Tatsache, dass die Dicke der Platte ungefähr fünf Zentimeter beträgt, besteht der Hauptnachteil von GWP darin, dass es aus Gips besteht. Daher ist es nicht empfehlenswert, in Räumen mit hoher Luftfeuchtigkeit zu installieren - in Badezimmern, in Küchen.

Ein Schlafzimmer

In den Apartments mit zwei Schlafzimmern können Sie die Küche und das Wohnzimmer kombinieren. Dank ihm erweitert sich der Raum visuell. Und wenn Sie den Essbereich ins Wohnzimmer verlegen, ist in der Küche mehr Platz. Dies ist sehr wichtig für die Menschen, deren Küchen klein sind. Der freigewordene Raum kann zur Bewegung genutzt werden, so dass der Übergang von der Spüle zum Kühlschrank oder zum Arbeitsbereich keine Barrieren in Form eines Küchentisches aufweist.

Zusätzlich können Sie ein Zimmer und einen Flur oder Küche auf Kosten der Speisekammer mit einem Flur kombinieren. Dazu müssen Sie einen Teil der Mauer abreißen. Es ist am einfachsten, die Gipskartonwände abzureißen, besonders wenn sie in den sowjetischen Jahren gebaut wurden. Zu dieser Zeit wurde der Metallrahmen praktisch nicht verwendet, so dass sie leicht zu demontieren sind. Aber wenn die Reparatur vor ein paar Jahren gemacht wurde, dann ist die Trockenbauwand auf den Schrauben befestigt, sie sind einfach mit einem Schraubenzieher zu verdrehen. Wird nur das Metallprofil demontieren.

Schwieriger ist die Situation bei der Demontage einer Ziegel- oder Stahlbetonwand, wobei zu beachten ist, dass bei einer Wandstärke von über 120 mm diese tragend ist.

Ein Stanzer, eine Brechstange, ein Vorschlaghammer, ein Winkelschleifer werden von den Werkzeugen benötigt, zusätzlich kann ein Nagelzieher und ein Meißel verwendet werden. Ein Nagelzieher wird benötigt, um die Holzleiste zu demontieren.

Um einen elektrischen Schlag zu vermeiden, wird der Raum im Voraus freigeschaltet. Die elektrische Verkabelung kann innerhalb der Wände erfolgen, und um sie zu finden, müssen Sie sich den Aufbau des Kabelsystems ansehen. Das Kabel geht gewöhnlich über die Schalter und die Stecker, nach der Besichtigung der Wand und der Entdeckung des Drahtes, man muss es nehmen und, die Enden isolieren.

Ähnliche Aktionen werden mit der Wasserversorgung durchgeführt - das Steigrohr ist verstopft, Schleifer schneiden die Rohre ab und ihre Enden sind mit Stopfen verschlossen.

Möbel, Geräte und dekorative Elemente müssen mit einem dichten Material bedeckt sein, es kann eine unnötige Bettdecke, Polyethylen oder verschiedene Lumpen sein. Dies geschieht, um sicherzustellen, dass Staub und Ablagerungen nichts verderben.

Der letzte Schritt in der Schritt-für-Schritt-Anleitung in der Vorbereitungsphase ist die Demontage von Sockelleisten, Tapeten, Farben, Innentüren.Es muss eine Kiste übrig bleiben, wenn es um den Lagerraum geht, dessen Wände schließlich mit einem Perforator abgerissen werden.

Denken Sie daran, dass Zementstaub gesundheitsschädlich ist. Deshalb müssen Sie Sicherheitsvorkehrungen treffen und persönliche Schutzausrüstung wie Schutzbrille, Atemschutzmaske, Handschuhe und spezielle Kleidung tragen.

Aus Sicherheitsgründen die Wand von oben abbauen. In diesem Fall tritt die Wahrscheinlichkeit eines Zusammenbruchs nicht auf. Experten empfehlen das Verschrotten in kleinen Teilen, dank dem Teile leicht transportiert werden können. Ähnliche Aktionen können beim Erweitern der Türöffnung erforderlich sein.

Die Oberfläche muss mit Wasser benetzt sein. In diesem Fall wird sich der Staub absetzen und nicht durch die Wohnung streuen. In Stahlbetonkonstruktionen wird die Armatur mit einem Winkelschleifer geschnitten.

Wenn die Trennwände im Raum aus Ziegelsteinen sind, müssen Sie zuerst zur Naht kommen. Mit einem Meißel und einem Hammer wird der erste Stein ausgeschlagen, die Handlungsabfolge wiederholt sich bis zum Abschluss der Arbeiten.

Drei Zimmer

Zusätzlich zu den früher geäußerten Sanierungsoptionen empfehlen die Designer für eine Drei-Zimmer-Wohnung, Loggien oder Balkone aus einem der Räume zu kombinieren.Ein solches Vorgehen kann einerseits den Raum erheblich vergrößern, was besonders bei kleinen Wohnungen wichtig ist, andererseits können Sie auf dem Balkon einen Arbeits- oder Erholungsbereich einrichten.

Leider ist es unmöglich, Heizkörper auf den Balkon zu bringen, das ist gesetzlich verboten. Bevor Sie mit der Demontage der Balkonblöcke und -wände beginnen, müssen Sie daher die Loggia glasieren. Es ist sehr wichtig, in diesem Fall ein Dreikammer-Doppelglasfenster und ein Kunststoff-Fünfkammerprofil zu verwenden, aber eine solche Konstruktion wird die Basis schwerer machen und muss verstärkt werden.

Als Isolierung können Mineralwolle, expandiertes Polystyrol, extrudierter Polystyrolschaum oder Polyethylenschaum verwendet werden. Mineralwolle ist ein natürliches Material, es ist Stein, Schlacke und Fiberglas. Minwatu ist einfach zu installieren, es ist leicht mit einem normalen Messer zu schneiden. Mineralwolle hält die Wärme perfekt und lässt keine anderen Geräusche in den Raum, und dies ist sehr wichtig, wenn der Balkon die Auffahrt überblickt.

Beachten Sie, dass Sie mit Glaswolle in persönlicher Schutzausrüstung arbeiten müssen, da es sonst zu Juckreiz und Irritationen nicht nur der Haut, sondern auch der Schleimhäute kommen kann.

Polyfoam beeinträchtigt nicht die menschliche Gesundheit, aber es ist leicht zu schneiden und zu montieren. Es hat gute schallabsorbierende Eigenschaften, speichert Wärme. Mit diesem Material können Sie sogar die Oberfläche nivellieren, so dass weitere Maler- oder Klebewände keine Schwierigkeiten bereiten.

Extrudierter Polystyrolschaum und Polyethylenschaum sind neue Produkte auf dem Baumarkt. Letzteres hat übrigens eine zusätzliche Folienschicht, durch die die Wärme für lange Zeit innen gespeichert wird.

Nachdem die Isolierung gewählt wurde, ist es notwendig, den Holzboden zu demontieren, Restfarbe, Beton oder Zement zu entfernen und die Oberfläche von Schmutz und Ablagerungen zu reinigen. Es ist sehr wichtig, nicht nur ein feuchtes Tuch, sondern auch einen Staubsauger zu benutzen. Nach der Reinigung müssen die Risse repariert werden. Wenn die Risse klein sind, werden sie auf einen Zentimeter ausgedehnt, dann wird Dichtungsmittel oder eine spezielle Lösung gegossen. Und der Spalt zwischen den Decken muss mit Schaum versiegelt werden.

Nach dem Trocknen wird der Überschuß mit einem Papiermesser abgeschnitten und die Oberfläche mit einer Grundierung behandelt.

Der nächste Schritt ist die Verlegung der Abdichtungsschicht.

Dachmaterial, spezielle Imprägnierung oder Flüssigkautschuk können als Abdichtung dienen. Die Wahl wird nur von der Basis abhängen - wenn es Beton ist, dann wird Imprägnierung verwendet, und wenn Fliesen - Gummi.

Allmählich isolierte Decke, Wände und Boden. Befestigen Sie die Isolierung mit Holzlatten und Trockenbauplatten. Auf ihnen wird die abschließende Deckung später befestigt sein. Als Beschichtung können Holzbretter oder Sperrholzplatten verwendet werden, auf die später Tapeten aufgeklebt werden. Die Fixierung ist auch auf dem Metallprofil erlaubt.

Experten empfehlen den Einsatz von Infrarot-Fußbodenheizung. Es ist einfach zu installieren und verbraucht wenig Energie. Da die Loggia nicht groß ist, wird ihre Installation nicht viel Zeit in Anspruch nehmen. Aber bevor der Balkonblock und ein Teil der Mauer abgebaut wurden, ist dieser Vorgang bereits früher beschrieben worden, so dass es keinen Sinn macht, dort anzuhalten.

Es ist wichtig zu wissen, dass in einigen Reihen von typischen Häusern die Schwellen Teil der Bodenplatte sind, deshalb ist ihr Abbau strengstens verboten. In dieser Hinsicht wird den Designern empfohlen, ein kleines Podium zu machen. In monolithischen Häusern kann die Schwelle entfernt werden, ohne die Wärmedämmeigenschaften oder die Integrität des Gebäudes zu beeinflussen.

Leider gelingt es nicht allen Leuten, die Unterfenstereinheit zu entfernen, für solche Fälle wird empfohlen, diesen Platz für die Montage eines Aquariums oder eines Bartresen zu verwenden. Und bei der Gestaltung eines Wintergartens kann die Fensterbank mit Pflanzen vergossen werden.

Vier Zimmer

Aber vor allem können Sie Ihre Fantasien in einer Mehrzimmerwohnung verwirklichen. Dies kombiniert den Korridor mit einer Speisekammer zu einem großen Flur und einer Küche aus dem Wohnzimmer, um den Raum in ein Studio zu verwandeln, die Balkoneinheit zu demontieren und diese Zone mit einem der Räume zu verbinden und Bad und Toilette zu kombinieren.

Übrigens, auf dem kombinierten Badezimmer: es kann auf Kosten von Nichtwohnräumen erweitert werden - Korridore und Lagerräume, oder vollständig übertragen. Es ist wichtig, dass die Übertragung in Nicht-Wohngebäuden durchgeführt wurde, Belüftung wurde zur Verfügung gestellt, Abdichtung von Böden.

Es sollte berücksichtigt werden, dass bei der Durchführung von Klempnerarbeiten die Wahrscheinlichkeit besteht, dass Nachbarn von unten überschwemmen. Daher sollte diese Arbeit von einem Spezialisten durchgeführt werden.

Eine weitere Phase der Sanierung kann als Abbruch von Zwischengeschossen und Einbauschränken bezeichnet werden. In den Jahren der Sowjetunion ergaben sich viele Wohnhäuser.Es war ein geräumiger Ort für die Aufbewahrung von Oberbekleidung, Einrichtungsgegenständen und unerwünschten Gegenständen.

Aber heute sind diese Entwürfe veraltet, sie wurden durch modulare Schränke und Kleiderschränke ersetzt. Das Entresol nimmt insgesamt große Flächen ein und verringert dadurch die Höhe der Decken im Flur. Und in einigen Häusern ist es Teil der Türöffnung, was bedeutet, dass, wenn das Zwischengeschoss demontiert ist, die Tür auch entfernt werden kann.

In der Regel in Vierzimmerküchen großer Größe, aber die ungünstige Lage der Tür. Um die Situation zu beheben, müssen Sie die Türöffnung übertragen. Zum Beispiel können Sie eine zusätzliche Tür herstellen, die die Küche und einen angrenzenden Raum verbindet, und die alte Tür schließen. Solche Änderungen ermöglichen es, die Beilage und den Essbereich in eine andere Reihenfolge zu bringen, was den Raum erheblich erweitert. Aber noch einmal möchte ich darauf hinweisen, dass die Küche einen Elektroherd haben sollte, bei einem Gasherd ist eine solche Sanierung inakzeptabel.

Bei der Kombination eines Raumes mit einer Küche sollte berücksichtigt werden, dass auch in diesen Raum Fremdgerüche einfließen, da die Belüftung in alten Häusern nicht gut funktioniert.Die Küche kann zusätzlich mit einer modernen Dunstabzugshaube ausgestattet werden.

Oft sind die ersten Stockwerke Loggien entzogen. Die Eigentümer solcher Wohnungen haben eine vernünftige Frage, ist es möglich, es selbst zu machen und die Sanierung zu legitimieren? Bei Beantwortung dieser Fragen wird die Antwort positiv sein. Aber es ist wichtig, die Erlaubnis von Nachbarn und der kontrollierenden Behörde zu erhalten. Der Balkon wird in diesem Fall hängend - auf Konsolen oder aufklappbar - auf einem Metallrahmen verwendet.

Mit Erlaubnis zur Hand sind das Fenster und ein Teil der Mauer demontiert, eine Balkontür ist installiert, die in den Raum mündet. Der Rahmen ist an der Wand befestigt und ummantelt. Zur Herstellung von Verglasungen, Isolierungen und Verkleidungen des Balkons oder nicht - die Wahl bleibt beim Eigentümer des Raumes.

Denken Sie daran, eine solche Sanierung ist nicht billig, also müssen Sie alle Vor- und Nachteile abwägen, bevor Sie einen Entwurfsplan bestellen und die Überholung koordinieren.

Wichtige Tipps

Jeder Mensch ist Designer im Herzen, und Millionen wollen ihre Ideen zum Leben erwecken, das gilt auch für die Sanierung. Es spielt keine Rolle, es ist eine kleine Wohnung oder eine Berghütte. Wo soll ich anfangen?

Designern wird empfohlen, mit einem Plan zu beginnen. Zu diesem Zweck wird eine Skizze der Wohnung erstellt, auf der der Gemeinschaftsbereich zugeordnet ist. Die Hauptzone wird auf das Schema angewendet - es kann sowohl Wohn-und Nicht-Wohngebäuden sein, die in einem bestimmten Gebiet verbrachte Zeit ist von grundlegender Bedeutung. Zum Beispiel, wenn eine einzelne Frau am häufigsten in der Küche ist, dann ist für sie der Hauptbereich die Küche.

Das Projekt markiert Erholungsgebiete, einen Flur, einen Balkon, ein Badezimmer und eine Toilette. Und danach ist es notwendig, die geplanten Änderungen auf einem Blatt Papier zu skizzieren. Dies kann eine Erweiterung des Flurs, die Kombination eines Badezimmers, die Vereinigung des Wohnzimmers mit der Küche sein.

Es ist wichtig, die Bewegung der Haushalte zu berücksichtigen. Wenn Sie die Tür öffnen oder schließen, sollte es keine Beschwerden geben. Dies ist besonders wichtig, wenn eine ältere Person in der Wohnung lebt. Die Skizze sollte eine skizzenhafte Zeichnung Möbel und Geräte sein, vergessen Sie nicht den Bereich der Wohnräume, Beleuchtung, Lüftung, Wasserversorgung und Heizung.

Oft ist die Skizze ausreichend, vorausgesetzt, es werden keine Änderungen an der Lüftung vorgenommen, das Gassystem und die tragenden Wände brechen nicht. Übrigens kann diese Skizze auch in Abstimmung mit der Wohnungsinspektion verwendet werden.

Schöne Beispiele

In diesem Abschnitt sehen Sie Fotos von realen Veränderungen, einschließlich in einer Gemeinschaftswohnung. Das Design dieser Sanierungen wurde nicht nur von Fachleuten, sondern auch von normalen Bürgern entwickelt.

Details zur Legitimierung der Sanierung finden Sie im folgenden Video.

Kommentare
 Kommentarautor

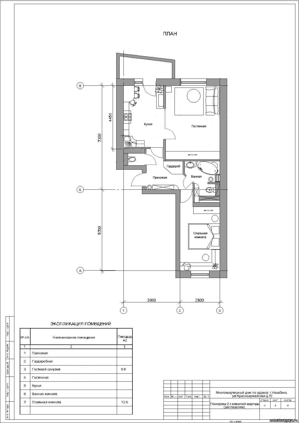
Die Küche

Kleiderschrank

Wohnzimmer