Die Feinheiten der Sanierung "Chruschtschow"

"Chruschtschow" nannte die Wohnung Mehrscheiben- und Ziegelhäuser, die während der Regierungszeit N. Chruschtschows zu bauen begannen. Der Bau umfasst den Zeitraum von Ende der 50er bis 80er Jahre des letzten Jahrhunderts. Dann wurde angenommen, dass dies eine vorübergehende Unterkunft für Bürger sein würde, die aus ländlichen Gebieten in große Städte zogen.

In vielen Städten unseres Landes gibt es noch solche Häuser mit kleinen Wohnungen. Der Hauptnachteil solcher Wohnungen ist ein kleiner Bereich. Wenn es keine Möglichkeit gibt, den Wohnraum für einen moderneren zu ändern, versuchen die Bewohner von "Chruschtschow" mit Hilfe von Sanierung und Reparatur den Raum optisch zu vergrößern. Alle Nuancen solcher Änderungen werden in diesem Artikel diskutiert.

Besonderheiten

Chruschtschow unterscheidet sich von anderen kleinen Häusern. Die Layouts solcher Wohnungen sind unterschiedlich, aber es gibt gemeinsame Details:

  • Deckenhöhe von ca. 2,5 m, manchmal 2,7 m;
  • kleiner Küchenbereich;
  • enge Korridore;
  • das Vorhandensein von kleinen Einbauschränken und Zwischengeschossen;
  • Durchgangsräume;
  • schlechte Isolierung (in Fertighäusern ist es schlechter als in Ziegel).

In der umgeplanten Wohnung versuchen sie all diese Nachteile zu berücksichtigen und zu minimieren. Hier sind die Grundideen, um den üblichen Standard Chruschtschow zu machen in einem schönen, geräumigen und funktionellen Gehäuse:

  • Durch die Kombination von Bad und WC wird der Raum optisch vergrößert und die notwendigen Gegenstände (Waschmaschine, Haushaltsaccessoires) erfolgreich untergebracht.
  • Tragetüren, um von begehbaren Räumen wegzukommen.
  • Der Abriss von Vorhangfassaden und die Errichtung von Leichtbaustrukturen wird einen kleineren Raum voluminöser machen.
  • Die Kombination eines Balkons mit einem Zimmer ist manchmal sehr angemessen.

Zonierungsregeln

Interior Designer verwenden oft eine solche Technik wie Zoning. Sein Wesen liegt in der Tatsache, dass in einem gemeinsamen Raum ein Funktionsbereich von einem anderen durch verschiedene Techniken getrennt wird: Licht- und Farbakzente, Möbelstücke oder Dekoration (Boden, Wände, Decke). Die häufigsten Fälle, in denen eine Zoneneinteilung erforderlich ist:

  • Küche kombiniert mit Wohnzimmer. Der Ruhebereich von der Kochzone ist durch eine Bar getrennt, die als Esstisch dienen kann. Oder verwenden Sie verschiedene Materialien oder unterschiedliche Farbtöne von Böden und Wänden.
  • In der Eckwohnung befindet sich ein Raum mit zwei Fenstern. Ein solcher Raum kann erfolgreich in zwei geteilt werden, unter Verwendung von Trockenbauwänden, Sieben oder Gestellen.
  • Zwei benachbarte Zimmer sind miteinander verbunden (ein Zimmer, ein Abstellraum, ein Zimmer-Balkon). Egal wie absurd es klang, aber wenn man zwei benachbarte Räume in Chruschtschow miteinander verbindet, ist es wünschenswert, dass ihre Funktionalität erhalten bleibt. In solchen Fällen wird häufig das Podium benutzt.

Bevor Sie sich für ein schönes Bild mit einem neuen Layout entscheiden, ist es besser, die Bewertungen in verschiedenen Bauformen zu lesen und zu hören: Manchmal sind Änderungen schwierig zu erreichen, und das beträchtliche Alter der Khrushchev-Häuser kann zusätzliche Kosten für Reparaturen verursachen. Die Wahl eines Designers wird am besten auf der Grundlage des Ansehens getroffen.

Es ist erwähnenswert, dass nicht alle Änderungen in der Fläche Ihrer Wohnung in einem Mehrfamilienhaus zulässig sind:

  • es ist verboten, die Fläche der Küche oder des Badezimmers aufgrund der Quadratmeter des Wohnbereichs um mehr als 25% zu vergrößern;
  • Sie können nicht die Küche mit einem anderen Raum mit Hilfe eines Bogens kombinieren, wenn der Gasherd (aber eine solche Aktion ist nicht im Fall eines elektrischen Ofens verboten);
  • Eingriffe in die Tragkonstruktionen (Wände, Trennwände) sowie deren Entfernung sind nicht erlaubt;
  • Änderungen in den Systemen der allgemeinen technischen Kommunikation sind verboten;
  • Sie können die Küche nicht ins Wohnzimmer verlegen;
  • Es ist inakzeptabel, ein Badezimmer in Bereichen einzurichten, in denen Nachbarn ein Wohnzimmer darunter haben; Ausnahmen sind Duplex-Apartments, in denen sich Ihr Wohnzimmer unter einem Badezimmer befinden kann;
  • Es ist verboten, Batterien für Zentralheizungen auf Balkone und Loggien zu verlegen, auch wenn diese verglast und isoliert sind;
  • Nutzung von Dachboden als Wohngebiet ist ausgeschlossen.

Zusätzlich zu den oben genannten Punkten sollte daran erinnert werden, dass eine Sanierung die bisherigen Lebensbedingungen nicht verschlechtern sollte.

Wie und wo man zustimmt

Bevor Sie sich mit dem Verfahren zur Legalisierung der Sanierung befassen, sollten Sie sich überlegen, welche Veränderungen in Ihrem Haus registriert werden müssen und welche nicht.

Renovierung, Ersatz alter Fenster und Türen durch neue, zusätzliche Podien und Einbauschränke müssen nicht in speziellen Diensten registriert werden.

Und hier alle Aktionen, die nach der Reparatur Änderungen in der Konfiguration des Raums nach sich ziehen (Erhöhung und / oder Verringerung der Anzahl und der Quadratmeterzahl von Räumen, Anordnung von zusätzlichen Räumen, Übertragung von Türen und Trennwänden), sowie Änderungen in der technischen Kommunikation (in elektrischen Leitungen, Rohrleitungen, Lüftung, Schaffung neuer oder Änderungen in bestehenden Sanitäranlagen) muss im technischen Pass des Zimmers aufgezeichnet werden.

Eine gewissenhafte Haltung gegenüber der Wohnungsgesetzgebung entlastet Sie von Strafen, Schwierigkeiten beim Verkauf dieser Immobilie, Notsituationen.

Schon bevor die Reparatur beginnt, sollten Sie sich mit den Spezialisten der folgenden Unternehmen beraten, gleichzeitig den Entwurf der Änderungen zur Verfügung stellen:

  • Wohnungsinspektion;
  • Abteilung des Kapitalbaus der Stadt;
  • auf Immobilienfragen spezialisierte Anwälte (solche Vertreter sind in der Regel Immobilienagenturen);
  • Bau- und Reparaturunternehmen, Designunternehmen.

Bei der Beratung werden keine Genehmigungen erteilt, Sie können nur die Frage beantworten, ob diese Änderungen vorgenommen werden können. Wenn Sie nach der Sanierung genehmigt wurden, wird der Algorithmus für die weitere Vorgehensweise ungefähr wie folgt lauten. Der erste Schritt besteht darin, von der Staatlichen Wohnungsinspektion (GZHI) einen Auftrag für das Recht auf Reparaturarbeiten zu erhalten, Dies erfordert die folgenden Dokumente:

  • Titel Dokument für eine Wohnung (Kaufvertrag, Privatisierungsvertrag, Recht auf Erbschaft), nur das Original oder eine notariell beglaubigte Kopie wird anerkannt.
  • Technischer Pass der Wohnung, in der die Reparatur geplant ist. In Ermangelung eines technischen Passes sollte das Bureau of Technical Inventory Ihrer Stadt (BTI) kontaktieren. In diesem Fall hängen die Kosten der Dienstleistungen von der Dringlichkeit der Produktion, dem Umfang der Arbeiten für die Untersuchung ab. Der Mindestpreis für solche Dienstleistungen beträgt 900 Rubel.
  • Die Erklärung, die die Neuentwicklung der etablierten Probe anzeigt. Das Formular kann direkt beim Einreichen der Dokumente empfangen und ausgefüllt werden.
  • Zustimmung zur Sanierung aller in einer Wohnung lebenden registrierten Personen.
  • Direkt das Projekt selbst Sanierungswohnung.Es ist besser, wenn es von einer Projektorganisation erstellt wird, die ein SRO-Zertifikat besitzt. Die Kosten solcher Dienstleistungen variieren und können zwischen 15.000 und 30.000 Rubel liegen. Der Plan der neuen Räumlichkeiten kann eigenständig vorbereitet werden, wenn es zu geringfügigen Änderungen kommt, die die Tragstrukturen und die technische Kommunikation nicht beeinträchtigen (zum Beispiel die Konstruktion der Trennwand).
  • Identitätsdokument

Die obige Liste ist die vollständigste, die im gesamten Gebiet der Russischen Föderation angeboten wird. Über diese Liste von Dokumenten hinaus sind Vertreter von Kontroll- und Genehmigungsbehörden nicht berechtigt, dies zu verlangen. Sie können Dokumente direkt durchreichen GZHI oder MFC in deiner Stadt. Die letztere Option ist bequemer, da es Aufzeichnungsfunktionen gibt.

Auch wenn die bevorstehenden Änderungen in der Wohnung nicht signifikant sind und keine speziellen Legalisierungsgenehmigungen benötigen, ist es notwendig, solche Änderungen im technischen Pass der Immobilie vorzunehmen.

In den Häusern des alten Gebäudes können Reparaturen schwierig sein, da das Gebäude zum historischen Erbe der Stadt gehört. In solchen Fällen müssen Sie eine neue Genehmigung in der Abteilung für Denkmalschutz einholen.Alle eingereichten Dokumente (Name und Nummer) müssen auf dem Beleg vermerkt sein, den Sie erhalten, wenn Sie sich an den MFC wenden. Begriff der Berücksichtigung der Anwendung 30 Tage ab dem Datum der Einreichung der Dokumente.

Als Ergebnis der Prüfung des Antrags wird ein Dokument entweder zur Genehmigung oder zum Verbot der Sanierung ausgestellt. Im ersten Fall können Sie sicher mit der Reparatur fortfahren. Im zweiten Fall überprüfen Sie das Dokument sorgfältig Es kann drei offizielle Gründe für die Ablehnung geben:

  • Der Entwurf wurde mit Fehlern erstellt und / oder enthält unzulässige Änderungen der Räumlichkeiten.
  • Ein unvollständiger Satz von Dokumenten wird zur Verfügung gestellt, oder ihre Echtheit ist zweifelhaft.
  • Der Antrag mit den Begleitdokumenten wurde den Behörden vorgelegt, die sich nicht mit diesen Fragen befassen. Sie können diesen Fehler vermeiden, wenn Sie sich an das MFC wenden: Sie liefern die Dokumente selbst an die richtige Stelle.

Wenn die Gewissheit besteht, dass die Verweigerung unangemessen erfolgt ist, können Sie dies vor Gericht anfechten.

Der zweite Schritt ist, den Raum selbst zu reparieren, Beachtung der Regeln und Vorschriften des Gesetzesund in voller Übereinstimmung mit dem Projekt zur Verfügung gestellt. Jegliche Abweichung vom Plan kann zur Unterbrechung des gesamten Verfahrens der Legalisierung der Sanierung, zu einer Erhöhung der Reparaturzeit und -kosten führen.

Nach Abschluss der Sanierung müssen Sie den Act auf die abgeschlossene Reorganisation erhalten. Dieses Dokument kann auch über den MFC oder direkt von der Wohnungsinspektion bezogen werden. Für die Registrierung benötigen Sie:

  • Unterschreibe die Handlung in der Reparaturfirma (sie muss eine SRO haben), wenn die Reparatur von Dritten durchgeführt wurde; wir brauchen Marken der Konstruktions- und Konstruktionsabteilung;
  • Vorgeschriebene Handlungen versteckter Arbeiten vorbereiten, wenn eine technische Kommunikation infolge einer Reparatur verborgen ist; in den Akten müssen Zeichen von Bauherren und Designern sein.

Nach Erhalt aller notwendigen Unterschriften und Marken wird die Handlung der autorisierten Stelle vorgelegt. Der Inspektor der Wohnungsinspektion wird die Räumlichkeiten auf Einhaltung der Neuplanung prüfen. In Ermangelung von Kommentaren erhält der Vermieter eine genehmigte Handlung mit einem Zeichen der Wohnungsaufsicht.

Nach Abschluss aller Reparaturen und Genehmigungen, die Ergebnisse der Sanierung muss im technischen Pass gemacht werden. Dies wird sich mit BTI befassen. Wenn Sie einen neuen Reisepass beantragen, vergessen Sie nicht, dem Wohnraum die Eigentumsurkunde beizulegen.

Ein Techniker wird in der Einrichtung ankommen und alle notwendigen Messungen vornehmen. Nach 25 Tagen können Sie einen neuen technischen Pass bekommen. Die Kosten der Dienstleistungen hängen wieder von der Raumfläche, der Dringlichkeit der Dienstleistungen in Ihrer Region ab. Im Durchschnitt betragen diese Kosten 2000-4000 Rubel.

Als nächstes müssen Sie Änderungen am Katasterpass des Objekts vornehmen. Sie müssen entweder den MFC Ihrer Stadt oder die Abteilung des Federal Registration Service kontaktieren. Bereiten Sie die folgenden Dokumente vor:

  • technischer Plan der Wohnung; es wird Ihnen in BTI ausgestellt (es ist besser, sowohl auf Papier als auch auf elektronischen Medien zu bestellen);
  • neuer technischer Pass;
  • Antrag auf Änderungen im Katasterplan;
  • Ausweisdokument;
  • zahlen Sie eine staatliche Gebühr von 200 Rubel für einen Papierpass und 150 Rubel für ein elektronisches Dokument.

Die letzte Phase: Änderung der Eigentumsurkunde. Reichen Sie das erforderliche Dokumentenpaket an Rosreestr (neues Registrierungszertifikat und Katasterplan, Identitätsdokument, bestehendes Zertifikat für eine Wohnung, Erhalt der Zahlung der staatlichen Gebühr) ein und erhalten Sie nach 25 Tagen ein neues Eigentumszertifikat.

Das Verfahren zur Sanierung ist mühsam und kostspielig, aber notwendig. Wenn dies nicht alleine möglich ist, können Sie den Mitarbeitern von Bau- oder Anwaltskanzleien vertrauen, sie werden alle erforderlichen Dokumente gegen eine Gebühr ausstellen.

Sanierung

Wir wenden uns nun dem angenehmsten Teil einer so schwierigen Aufgabe wie der Sanierung zu und überlegen, wie wir den "Chruschtschow" durch den Wiederaufbau des Raumes verbessern können.

Einraum

Die durchschnittliche Fläche von Chruschtschow-Odnushki 28 bis 32 Quadratmeter. m, mit einer sehr kleinen Küche im Bereich von 6-7 Quadrat. m, Wohngebiet 15-19 Quadratmetern zugeordnet. Es gibt sowohl mit als auch ohne Balkon. In 1-Zimmer-Wohnung ist es schwierig, den Raum zu vergrößern. Aber auch auf 30 qm. m kann mit einem gemütlichen und funktionellen Bereich für zwei oder drei Personen ausgestattet werden. Am häufigsten in solchen Wohnungen:

  • Vereinigen Sie das Badezimmer, wenn es getrennt war. Durch den vergrößerten Platz können Sie die notwendigen Geräte (Waschmaschine, Trockner) betreten. Manchmal ersetzen Sie die übliche Badezimmerdusche, reinigen Sie die Spüle.
  • Tragen Sie die Küche / Zimmertür. Die kombinierte Küche und der Raum sind durch Abtrennung mit einer Trennwand getrennt, die als Tisch oder Bartheke dient. In einigen Fällen ist es zweckmäßig, den Schweller zur Küchenarbeitsfläche zu machen.Apartments, in denen ein Einzelzimmer mit einer Küche kombiniert ist, nennt man Studios.
  • Der Balkon kann auch als funktioneller Raum dienen, aber es ist besser, Glasur und Wärme (denken Sie daran, dass es nicht möglich ist, Heizkörper zu übertragen, aber die Verlegung von beheizten Fußböden ist zulässig). Sie können die Seitenwände taub machen, Schränke bauen und einen bequemen Aufbewahrungsraum für Dinge finden. Und Sie können einen Schreibtisch installieren und ein Studium bekommen. Oder ein Erholungsgebiet einrichten.

Zwei Zimmer

In einer Zweizimmerwohnung erstreckt sich die Gesamtfläche von 40 bis 46 Quadratmetern. m, leben 26-30 Quadratmeter. m, und die Küche in der Regel nicht mehr als 6-7 Quadratmeter. m. In diesem Fall ist der Spielraum für Fantasie ein wenig mehr. Die häufigsten Gründe für die Sanierung in diesem Fall:

  • Der kleine Küchenbereich von "Chruschtschow" führt in der Regel zur Vereinigung mit dem angrenzenden Raum. Das Ergebnis ist ein Wohnzimmer mit Essbereich.
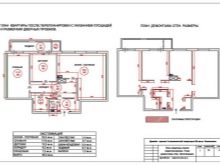
  • Oft wird in der "Zwei-Zimmer-Wohnung" saniert, um die beiden Räume zu trennen.

Für Wohnungen, in denen beide Räume Fenster zu einer Seite haben, verwenden sie oft ein Schema: Sie tragen eine Tür gegenüber dem Eingang vom Flur und machen den Durchgang zum zweiten Raum durch den Lagerraum und durchqueren den Raum getrennt durch eine Gipskartonwand, ein Regal oder einen tauben Kleiderschrank.

Wenn das Layout im Stil von "Tram" ist, dh die Räume mit Fenstern auf verschiedenen Seiten, ist es zweckmäßig, im Eingangsbereich eine Trennwand zu bauen, so dass sich der Bereich des Flurs vergrößert. Dadurch wird zwar die Raumfläche des Raumes etwas reduziert, aber in dem gebildeten Flur ist es sinnvoll, Regale und Regale zur Aufbewahrung von Gegenständen und Büchern anzuordnen und die Wohnräume nicht mit sperrigen Möbeln zu überladen.

  • Das Badezimmer fällt auch unter die Reparatur: es ist bequem für jemanden, ein Gelenk zu haben, und für andere ist es bequemer, zwei getrennte Räume zu haben.

Drei-Zimmer

Gebiet "treshki" in den Häusern des Chruschtschow-Gebäudes erreicht ungefähr 60 Quadratmeter. m. Aber die Probleme und Merkmale sind daher immer noch dieselben Sanierung zielt in der Regel auf:

  • Erhöhung der Küche;
  • das Badezimmer vergrößern;
  • Abfahrt von passierenden Zimmern;
  • Schaffung von 3 kleinen Zimmern 2 große.

Vier-Zimmer

Glückliche Besitzer einer Vierzimmerwohnung haben bereits 62-72 Quadratmeter zur Verfügung. Die Sanierung zielt in der Regel darauf ab, die Küche zu vergrößern und große komfortable Räume zu schaffen.

Schöne Innenausstattung

Wenn Sie ein Design für kleine Wohnungen in Khrushchev-Häusern wählen, sollten Sie helle Farbtöne (Weiß, Grau, Sand, Beige,Creme), Spiegel- und Glasflächen, und der Stil des Innenraums, um eine Ruhe zu wählen, ohne unnötige Details, zum Beispiel, klassisch, Land, High-Tech.

Die am weitesten verbreiteten Grundrisse von Zweizimmerwohnungen mit dem Wohnwagen sind die erfolgreichsten, und sie haben die geringsten Probleme mit dem Design. Auch ohne Sanierung können Sie die Möbel im Eingangsbereich funktional arrangieren und der Raum wird sich spürbar verändern.

Alle Details von perplanirovka "Chruschtschow", sehen Sie das folgende Video.

Kommentare
Kommentarautor

Die Küche

Kleiderschrank

Wohnzimmer