Attische Treppe: Arten von Strukturen

 Attische Treppe: Arten von Strukturen

Moderne Privathäuser sind so ausgestattet, dass sie jeden Quadratzentimeter nutzen. Selbst wenn das Haus einstöckig ist, gibt es immer einen zusätzlichen Platz für die Lagerung unter dem Dach. Daher ist es sehr wichtig, einen angemessenen und bequemen Zugang zum Dachzimmer zu bieten, was durch die Dachgeschoßtreppe erleichtert wird.

9 Foto

Besonderheiten

Welches Design ist besser für den Einsatz in einem Privathaus zu wählen, die Frage ist individuell und sogar ein wenig kontrovers. Das Endergebnis wird in der Regel durch die Verfügbarkeit von Freiräumen sowohl im Untergeschoss als auch unter dem Dach selbst beeinflusst. Und auch wichtig ist die Häufigkeit der Nutzung des Dachbodens. Es gibt solche Räume, die aufgrund mangelnder Wärme- und Dampfdämmung ausschließlich in der warmen Jahreszeit als Räume genutzt werden.

Heute gelten einstöckige Häuser mit einer Mansarde im zweiten Stock als sehr modisch und praktisch. Bequemlichkeit liegt in der Tatsache, dass das Fundament des Hauses braucht keine Stärkung bei der Schaffung zusätzlicher Unterkunft unter dem Dach. Von hier aus begannen bequeme, kompakte und relativ kostengünstige Dachtreppen zu entstehen.

Bei der Auswahl eines solchen Designs sollten eine Reihe von Merkmalen, die nicht nur technischer sondern auch physiologischer Natur sind, berücksichtigt werden.

Zum Beispiel müssen Sie darüber nachdenken, wie bequem es für das schwerste Mitglied der Familie ist, auf den Dachboden zu klettern, wie sicher die Treppe in Bezug auf die kleinsten Mieter oder Haustiere sein wird. Diese und andere Faktoren bestimmen, welche Art von Bodentreppe sollte in Ihrem Haus installiert werden.

Arten

Ein einzigartiges Merkmal der Treppe für den Dachboden ist die Möglichkeit der Installation sowohl im Inneren als auch von der Straße. Die Straßenstruktur ist gut, da draußen viel mehr Platz ist, so dass Sie stationäre Modelle sicher installieren können. Aber um in der kalten Jahreszeit auf den Dachboden zu gelangen, musst du dich anziehen und nach draußen gehen.Darüber hinaus kann das Anheben im Falle von Frost traumatisch sein. In jedem Fall hängt die Wahl des Designs nur vom Verbraucher ab.

    Es gibt drei Haupttypen von Bodentreppen, die den Zugang zu den Räumlichkeiten ermöglichen.

    • Stationär. Treppen, die immer an Ort und Stelle sind, verschraubt mit dem Boden, der Decke oder der Wand. Sie werden sich niemals rühren. Meistens in Räumen mit einer großen Fläche installiert. Die Wendeltreppe gilt als die dimensionalste und bequemste zu verwenden. Solche Designs gelten als die sichersten und nachhaltigsten.
    • Tragbar. Dies sind in der Regel temporäre Leitern. Viele Besitzer von Privathäusern, die nicht oft auf den Dachboden klettern müssen, haben sogar eine spezielle versteckte Nische für die Leiter erfunden. Um beim Klettern nicht weit in den Schrank zu rennen, ist es immer griffbereit, man muss nur in einen falschen Schrank neben dem Loch in der Decke schauen. Tragbare Bodentreppen sind von zwei Arten: Hilfs- und Trittleitern. Jedoch haben weder die erste noch die zweite ausreichende Sicherheit.
    • Falten. Die häufigste Form von Bodentreppen in Häusern mit einer kleinen Fläche,wo es unmöglich ist, ein stationäres zu setzen. Faltbare Designs sind Scheren, Teleskop, Falten und Falten.

    Es lohnt sich, auf die neuesten beliebten Modelle einzugehen. Faltoptionen für Treppen sind kostengünstig, einfach zu bedienen und sehr langlebig. Das durchschnittliche Gewicht, dem sie leicht standhalten können, beträgt 150 kg. Heute haben die Hersteller eine Vielzahl von Designs erfunden, die helfen, nutzbaren Platz bequem, schön und stilvoll zu sparen.

    Scheren Dachkammer Leiter hat wissentlich einen solchen Namen. Sein Klappmechanismus ist ein bisschen wie dieses Briefpapier. In der Regel sind dies Metallstrukturen, deren vertikale Führungen paarweise durch Enden miteinander verbunden sind. Die Schritte sind an den Schnittpunkten festgelegt.

    Wenn sie gefaltet ist, ähnelt die Treppe einem Akkordeon. Wenn Sie einen Schritt ausführen, werden sich alle anderen nacheinander entfalten.

    Attische Treppen mit einer Scherenmechanik haben sehr kompakte Abmessungen, sind bequem in der Luke montiert, widerstehen einer maximalen Belastung von 150 kg. Sie sind sehr stark und langlebig, manchmal mit Klappgeländer ausgestattet.

    Das teleskopische Design wird in Analogie zu einem Teleskop benannt. Die Führungen jedes Abschnitts haben einen kleineren Durchmesser gegenüber dem nachfolgenden, leicht ineinandersteckbar, wodurch ein gefaltetes Metallrohr mit Querstreben gebildet wird. Dies ist das leichteste Modell, das oft aus Aluminium besteht. Es nimmt im Vergleich zu anderen Modellen den geringsten Platzbedarf ein. Das Design ist stabil, stark und langlebig. Jedoch unsicher für ältere Menschen und Kinder.

    Klapp- oder Schiebedachtreppen sind heute sehr gefragt. Die Einzigartigkeit dieses Designs liegt darin, dass es komplett hinter der Dachbodenluke versteckt ist und sich oben befindet. Meist ist es eine dreiteilige Leiter, die jeweils durch ein spezielles Befestigungselement verbunden ist. Dies ermöglicht das Stapeln von Abschnitt eins zu eins, nicht Akkordeon wie in der ersten Ausführungsform.

    Der Deckenteil ist fest mit dem Deckel der Luke verbunden, die zum Dachboden führt. Daher sollte die Leiter im gefalteten Zustand die gleiche Fläche wie die Innenfläche der Luke haben.

    Der faltbare Dachbodenentwurf unterscheidet sich vollständig von vorherigen Typen. Sie versteckt sich nicht in der Luke und wirkt manchmal sogar als zusätzliches Stück Innenausstattung. Zu den Vorteilen gehört eine Art der Montage an der Wand.Im zusammengeklappten Zustand ähnelt es einer vertikalen Feuerleiter. Zerlegt wird es zu einem Standard-Marsch-Design mit einem Abhebewinkel von nicht mehr als 45 Grad.

    Bei der Wahl einer faltbaren Dachgeschoßtreppe sollten Sie eine Reihe von Merkmalen berücksichtigen, die sowohl das Design selbst als auch äußere Faktoren betreffen, die die komfortable Bedienung beeinflussen.

    Zum Beispiel, wenn der Dachboden kalt ist und hauptsächlich als Lagerhaus benutzt wird, sollten Sie darauf achten, dass der Lukendeckel, der nach oben führt, isoliert werden muss. Um es für einen unerfahrenen Baumeister ganz einfach zu machen.

    Eine der wichtigen Nuancen in der Wahl der Treppe für den Dachboden ist das Material, aus dem es gemacht ist.

    Materialien

    Die beliebtesten Materialien für die Herstellung von Bodentreppen sind Holz und Metall. Mit diesem sogar verschiedene Designs beinhalten die Verwendung der einen oder der anderen oder sogar beide Arten von Rohstoffen.

    • Scheren und Teleskopleitern können nur aus Metall hergestellt werden. Aluminiumrohre des zweiten Typs sind leicht, aber nicht stark genug, so empfehlen Experten die Verwendung der teleskopischen Option, bei der es nicht notwendig ist, das Dachgeschoss täglich zu besuchen.Die Stahlprofile der Scherendachkonstruktion haben eine sehr starke Struktur und sind praktisch keiner mechanischen Beschädigung ausgesetzt. Es sollte daran erinnert werden, dass die Metallleiter viel härter ist, aber auch haltbarere Geräte aus anderen Materialien.
    • Falt- und Faltoptionen werden meistens aus Holz hergestellt. Obwohl es Metallmodelle gibt. Die hölzerne Klappleiter gibt angenehmere Tastempfindungen. Der Baum selbst ist ziemlich warm, so dass Sie das Design auch ohne Schuhe verwenden können.

    Kombinierte Treppe ist weniger üblich, hat aber ihre Popularität in engen Kreisen. Seine Hauptvorteile schließen die folgenden ein:

    • maximale Haltbarkeit und Festigkeit der Struktur. Dank Metallführungen und Holzstufen steht es im aufgeklappten Zustand fest auf dem Boden und lässt sich leicht zusammenklappen, indem es sich am Deckel der Dachbodenluke festmacht;
    • Holzstufen können im Schadensfall einfach ausgetauscht werden.

    Das Minus der kombinierten Dachbodenleitern besteht nur im Preis. Im Allgemeinen sind Benutzer, die dieses bestimmte Modell gewählt haben, mit der Übernahme zufrieden.

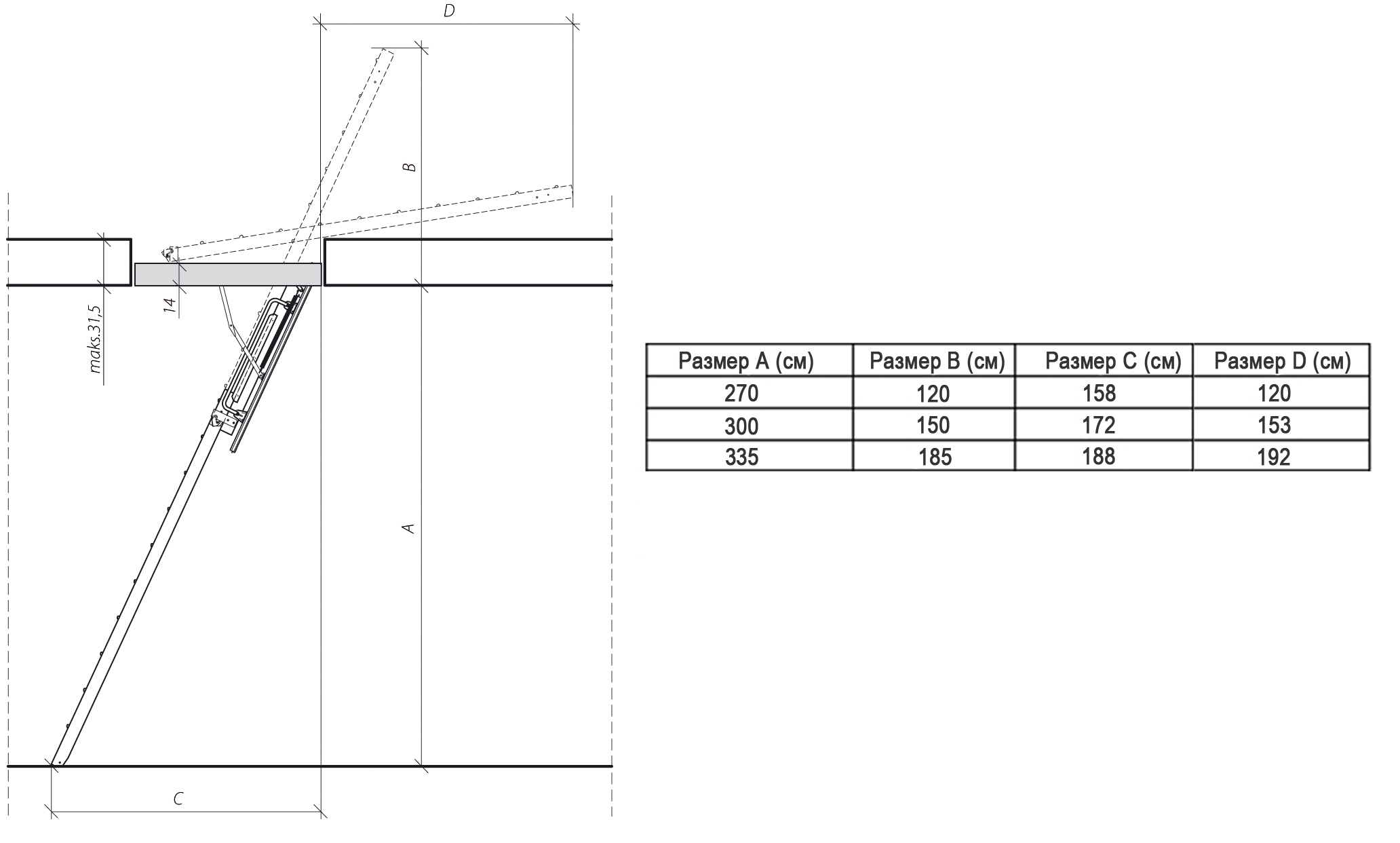
    Abmessungen

    Um die ausgewählte Bodentreppe richtig zu installieren, ist es notwendig, genaue Messungen durchzuführen. Und auch auf einige der Nuancen zu achten, die für das Gerät der Klappleitern notwendig sind, die an der Decke der Luke befestigen.

    • Die Parameter der Deckenöffnung, die mit einer Leiter eingelassen werden, sind sehr wichtig. Die Wahl des Standortes sollte sich sowohl auf die Größe der zusammenklappbaren oder stationären Struktur selbst als auch auf die Fläche und Höhe des Dachbodens konzentrieren. Für Standardleitern wird normalerweise ein Loch mit einer Größe von 0,7 x 1,2 m hergestellt.
    • Die maximale Länge der Klappleiter beträgt 3,5 m. Alles weitere wird bereits die Grundlage für den Bau einer stationären Struktur sein. Dieser Parameter wird direkt von der Höhe der Decke im Haus beeinflusst.
    • Tiefe und Abstand zwischen den Schritten wird individuell ausgewählt, je nach den Präferenzen und Möglichkeiten der Ausbeutung durch alle Familienmitglieder. In diesem Fall sind die empfohlenen Abmessungen für die stationäre Treppe 26 cm bzw. 20 cm. Was das Faltdesign betrifft, gibt es keine solchen starren Regeln. Die minimale Tiefe kann jedoch 15 cm und die maximale - 22 cm betragen.Der Abstand zwischen den Stufen sollte so gewählt werden, dass in der gesamten Struktur nicht mehr als 16-18 Stücke vorhanden sind.
    • Der Winkel der Treppe hängt auch von der Konstruktion und dem Raumangebot ab.auf dem es platziert ist. Empfohlen für stationäre Modelle ist der Winkel von 45 Grad. Für Faltoptionen kann er 60 und sogar 75 Grad erreichen. Die Größe dieses Parameters wählend, ist es auch notwendig, von der Sicherheit des Anhebens zum Dachboden in solch einem Winkel anzufangen.

    Bei der Auswahl einer Klappstruktur sollten Sie auf den Mechanismus zum Anheben und Absenken der Leiter achten.

    Automatik

    In der Regel wird der Klappmechanismus von Dachkonstruktionen durch eine Handbewegung gesteuert. Normalerweise genügt es, den Griff der Luke oder einen speziellen Hebel zu ziehen, um die Tür zu öffnen. Und auch manuell ist es notwendig, den unteren Teil der Leiter zu ziehen, dank dessen sich die ganze Struktur entfaltet und fest auf dem Boden wird. Spezielle gummierte Spitzen an den "Beinen" der Leiter ermöglichen es, sie in der gewünschten Position zu fixieren und keine Rutschgefahr zu haben.

    Das manuelle Öffnen und Schließen der Dachbodenluke ist durch Gelenk- und Federmechanismen möglich. Aber es gibt noch eine andere, nicht weniger populäre Art: an der Schnur - es sind haltbare Stoffstreifen, die den Schachtdeckel mit dem oberen Stock verbinden und ihn nicht zusammen mit der Treppe auf den Boden fallen lassen.Aber moderne Hersteller begannen, automatische gleitende Leitern zu verkaufen.

    Um das Wundergerät zu starten, müssen Sie nur das äußere Sonnendach als Knopf drücken.

    Die gesamte Struktur wird sich leicht zersetzen und einsatzbereit sein. Attische Treppen sind selten mit einem elektrischen Antrieb ausgestattet, der durch den Einsatz einer Fernbedienung gesteuert wird.

    Tipps und Tricks

      Kundenbewertungen von fertigen Modellen von Faltdesigns sind mehrdeutig. Viele befürworten den Kauf einer solchen Leiter und argumentieren, dass man keine Zeit damit verschwenden muss, nach Materialien und deren Herstellung zu suchen. Und eine Standardkonstruktion in eine Standardöffnung zu integrieren, wird überhaupt kein Problem sein. Unter den Minuspunkten der anderen Hälfte der Befragten das gleiche Argument. Vorgefertigte Standardtreppen passen nicht gut in das Nicht-Standard-Interieur und die originale Deckenöffnung.

      Um die Leiter möglichst lange und besser bedienen zu können, sollten Sie folgende Hinweise von Spezialisten im Reparatur- und Baugeschäft beachten:

      • bevor mit dem Kauf und der Installation fortgefahren wird, ist es notwendig, sorgfältig über das zukünftige Design nachzudenken und einen Plan mit allen notwendigen Dimensionen zu zeichnen;
      • Achten Sie darauf, zu entscheiden, oder müssen Sie die Luke auf dem Dachboden zu erwärmen. Dadurch können Sie sofort das erforderliche Isoliermaterial erwerben.
      • die minimal möglichen Parameter für die Dachbodenluke sollten ausgewählt werden. Je größer die Öffnung, desto niedriger die Isolierung. Wenn der Dachboden unbeheizt ist, wird es im Haus wegen eines großen Lochs in der Decke kühl sein, selbst wenn es mit einer erwärmten Luke bedeckt ist;
      • Je nach dem Bereich, in dem Sie zählen können, müssen Sie den Typ der Struktur bestimmen.

      Um die Konstruktionsmerkmale von Faltdachgeräten besser zu verstehen und den Installationsprozess zu erleichtern, ist es sinnvoll, die stufenweise Installation von zwei Arten von Treppen zu berücksichtigen.

      Die Installation der einfachsten Klappstruktur erfordert kein Schiebedach und wird in mehreren Stufen ausgeführt.

      • Sie müssen eine fertige Holztreppe kaufen. Seine Länge sollte 30-40 cm größer sein als die Deckenhöhe im Raum.
      • Zwei kurze Holzbalken, deren Länge der Breite der Deckenöffnung entspricht, sollten mit Schrauben am oberen und unteren Ende der dahinter liegenden Treppe befestigt werden.
      • Es ist notwendig, die Leiter in zwei Teile zwischen den Stufen zu schneiden, so dass der obere Teil 25% länger ist als der untere.Unten befestigen Sie beide Segmente mit Kartenschlaufen.
      • Auf der Rückseite der Leiter müssen Sie die Diagonalstäbe um 15-20 cm länger als die Struktur befestigen, um dem gesamten Gerät Steifigkeit zu verleihen.
      • Es ist notwendig, eine Leiter an die Deckenöffnung zu legen und das obere kurze Holz an einer der Seiten des Lochs zu befestigen. Ein Anker eignet sich am besten für dieses Verfahren. In extremen Fällen können Sie dieselben Kartenschleifen verwenden.
      • Die Schlaufe ist mit einer der Führungen der Leiter verschraubt. Das Design entwickelt sich.
      • Ein Haken sollte an der Wand befestigt werden, die später mit der Schleife verbunden wird.

        Die Bewertung für die beliebteste Dachbodenklapp- lade drückt die dreiteilige Schiebekonstruktion auf den ersten Platz. Es kann auch mit der Luke unabhängig voneinander zu Hause mit Schritt für Schritt Anweisungen gemacht werden.

        • Bereiten Sie die Öffnung für die Installation vor. Wenn noch kein Loch in der Decke ist, muss es gemacht werden. Messen Sie den ungefähren Umfang des Mannlochs und addieren Sie etwa 10 mm zu der erhaltenen Figur. Machen Sie einen Schnitt entlang der gezeichneten Kontur mit Zulagen. Der innere Umfang der Öffnung entspricht der Größe der zukünftigen Luke.Wenn eine Erwärmung der Abdeckung erforderlich ist, müssen Sie sofort alle Verfahren durchführen, um dies sicherzustellen. Achten Sie auf Dampf- und Wärmeisolierung.
        • Arbeiten mit fertigen Holzleiter. Es ist notwendig, es in drei gleiche Teile zu schneiden und sie bereits mit Hilfe von Vordächer-Ecken zu verbinden. Um die Struktur zu falten und sauber auf die Lukenabdeckung zu passen, müssen Sie die Befestigungen an einer Stelle auf der einen und auf der anderen Seite anbringen.
        • Installieren und reparieren Sie den Hebemechanismus. Es ist notwendig, die Treppen- und Deckenkonstruktionen zu kombinieren. Um dies zu erreichen, sollte der obere Teil der Leiter an der starren Basis der Luke anliegen. Verbinden Sie die oberen Teile der Tragbalken mit der Türunterseite. Um alle Schrauben zu reparieren.

        Dies sind die Hauptpunkte in der Installation, auf die man besonders achten muss, da die Bodentreppen während der Installationsphase nicht viel Mühe bereitet haben. Und auch, um ihre Leistung für eine lange Zeit zu erfreuen.

        Schöne Beispiele

                  Manchmal möchten Sie nicht nur eine Qualität, sondern auch ein sicheres, praktisches und praktisches Produkt wählen. Es ist sehr wichtig, die ästhetischen Parameter und Komponenten zu berücksichtigen.Dies wird helfen, eine kleine Auswahl an schönen Optionen Dachboden Treppen, sowohl faltende und stationäre.

                  Die klassische dreiteilige Holzleiter mit der Luke sieht sehr winzig und sogar sanft aus. Aber es ist absolut stabil, langlebig und langlebig.

                  Kombiniertes Klappmodell sieht streng, aber prägnant aus. Metallführer übernehmen die Hauptlast. Holzstufen machen diese Konstruktion umweltfreundlich und ermöglichen es, die Treppe auch barfuß zu erklimmen.

                  Die faltbare Dachkonstruktion mit einem Scherenmechanismus ist komplett aus Metall gefertigt. Es hat bequeme breite Stufen, widersteht schweren Lasten. Um es erfolgreich befestigt ein kleines Griff-Geländer.

                  Die einfache Konstruktion der Teleskop-Dachleiter aus Aluminium ermöglicht es, sie ohne besondere Probleme und Energiekosten zu falten und zu entfernen. Das Material ist ungewöhnlich leicht, kann aber auch sehr empfindlich sein. Es ist nicht für häufigen Gebrauch geeignet.

                  Vollmetall-Standard-Klappleiter an der Dachbodenluke angebracht, hat ein sehr strenges Aussehen und bedroht den langfristigen Betrieb.Die ursprüngliche schmale stationäre Leiter besteht aus zwei Materialien: Metall und Holz. Die Basis für die Stufen ist in Form einer Umkehrleiter aus Metallrohren mit kleinem Durchmesser ausgeführt. Ungewöhnliche Geländer passen sehr harmonisch in das Innere des Raumes. Es gibt praktisch keinen freien Platz unter der Treppe, aber das hindert Stühle und einen Kleiderbügel nicht ein wenig näher an der Nische.

                  Die Wahl der Bodentreppe für heute ist sehr groß. Aber nach Abwägung aller Tipps, persönlichen Wünsche, ästhetischen Vorlieben und der funktionalen Belastung der zusätzlichen Wohnstruktur, können Sie ganz einfach wählen, was bequem und angenehm ist, um auf den Dachboden zu gelangen. Und der Rat bei der Installation von Treppen wird ein hervorragendes Werkzeug für die unabhängige Arbeit am Projekt und für die einfache Kontrolle des Arbeitsablaufs sein.

                  Wie man die Dachbodentreppe Fakro mit eigenen Händen installiert, erfahren Sie im nächsten Video.

                  Kommentare
                   Kommentarautor

                  Die Küche

                  Kleiderschrank

                  Wohnzimmer