Wählen Sie ein Projekt für einen Pavillon mit Grill

Arbor mit einem Kohlenbecken wird jeden Vorstadtbereich schmücken, ein funktionales Element der Anordnung des lokalen Gebiets. Damit das fertige Ergebnis nicht nur mit Funktionalität, sondern auch ästhetisch ansprechend ist, müssen Sie bei der Konstruktion der Welle in der Bauphase besonders vorsichtig sein.

Funktionen und Vorteile

Pavillons mit Grill zu entwerfen unterscheidet sich von den Analogien des traditionellen klassischen Typs. Die Anwesenheit von Grill macht die Erweiterung gastfreundlicher, ermöglicht es Ihnen, Ihren Aufenthalt an der frischen Luft so angenehm wie möglich zu machen. Mit dieser Funktion kann der Pavillon die Sommerküche leicht ersetzen, denn auf dem Grill können Sie nicht nur Fleisch braten, sondern auch andere Gerichte kochen. Damit die Struktur die notwendigen Anforderungen der Vorschriften erfüllt, muss das Projekt jedoch eine Reihe von Nuancen berücksichtigen.

Zunächst müssen Sie das Recht auswählen Platz für zukünftige Pavillon.Es sollte in sicherer Entfernung vom Haus sein, aber nicht zu weit entfernt sein, weil die Annäherung an das Haus bequem sein sollte. Du kannst es nicht in einem Tal bauenSonst wird es nach dem Regen im Wasser liegen.

Bei der Auswahl eines Standorts berücksichtigt das Design sowohl den Boden als auch die Last, je nach Art des Gebäudes und den Baumaterialien.

Anhand der Daten erstellen sie eine Zeichnung in mehreren Projektionen, auf der sie alle Nuancen der Konstruktion bis hin zur Platzierung von Elementen der inneren Anordnung markieren.

Die Option mit einem Kohlenbecken bedeutet eine besondere Herangehensweise an das Material für den Bau, die Platzierung von Möbeln, die Wahl der Materialien, da in diesem Fall besonders die Anforderungen des Brandschutzes berücksichtigt werden müssen. Wählen Sie den richtigen Fundamenttyp, der der gewünschten Gewichtsbelastung standhält, sowie umschließende Konstruktionen und Dacheindeckungen. Berechnen Sie die Menge an Materialien, Verbrauch und Kosten der gesamten Struktur.

Besondere Aufmerksamkeit wird der Art des Mangal Designs gewidmet. Z.B, Es kann mit einem Steinofen mit einem gusseisernen Kessel, Kamin, Grill oder Grill ausgestattet werden. Brazier kann nicht nur stationär sein: auf Wunsch des Kunden Konstruktion kann tragbar sein. Die Wahl der Sorte hängt vom Material der Produktion, von den Merkmalen des Landschaftsdesigns sowie von finanziellen Möglichkeiten und Kundenpräferenzen ab. Mangalna Das Design sollte sich harmonisch in das Gesamtkonzept der Stilistik einfügenSieh schön aus mit der Situation.

Basierend auf der Art der Pavillons wird ein Kohlebecken der erforderlichen Größe ausgewählt, so dass das Design in Sicherheitsstandards passt, und außerdem gibt es noch freien Platz.

Der Grill sollte benutzerfreundlich sein und mögliche Verletzungs- und Brandrisiken beseitigen.

Sie denken über die Art des Daches nach, das den Pavillon vor Niederschlägen und Windböen schützt, die Saisonabhängigkeit der Struktur und den Bau von bequemen Wegen vom Haus aus, so dass der Zugang zum Pavillon bequem, sicher und ästhetisch von der Landschaftsplanung her attraktiv ist.

Vorteile und Nachteile

Die Pavillons mit Grill haben viele Vorteile. Sie sind gastfreundlicher, da das Vorhandensein von Barbecue Leckereien vorschlägt, was einen angenehmeren Aufenthalt im Inneren des Gebäudes bedeutet. Je nach Art des Pavillon selbst kann er die Funktionen der Küche übernehmen, was besonders in der Hitze wichtig ist, wenn überschüssige Wärme im Haus unerwünscht ist.In diesem Gebäude können Sie ein Erholungsgebiet schaffen, in dem Sie nicht nur essen, sondern auch entspannen können.

Die Anwesenheit von Grill ermöglicht es Ihnen, den Pavillon als Ort für die Durchführung von lauten Partys oder Tagungen in einem informellen Rahmen zu verwenden. Ein Pavillon mit einem Kohlebecken kann ein ganzes Design-Projekt sein, das die Funktionen einer Küche, ein Schutz vor dem Wetter, ein kleines Gästehaus kombiniert. Die besten Projekte haben Strom und Heizung, sie sind mit Mini-Bars ausgestattet und haben sogar Hängematten im Erholungsgebiet.. Bei Bedarf können Sie auf der Basis spezieller Programme im Online-Modus ein Projekt erstellen, mit dem Sie auf Wunsch zurechtkommen.

Projekte unterscheiden sich in der Größe und erlauben eine effiziente Nutzung des verfügbaren Platzes. Andere Wahlen von Gebäuden mit einem Kohlenbecken erinnern Wohnzimmer. Gleichzeitig ist es eine positive Sache, dass Sie eine Laube in einem bestimmten Stil ausführen können, die nicht nur im Außenbereich, sondern auch im Inneren des Gebäudes schön aussieht. Dies kann sich nicht nur in der Form der Struktur, sondern auch in ihrer Architektur widerspiegeln.

Zum Beispiel können sie eine bestimmte Epoche anzeigen, die sich in der Form der Fensteröffnungen und ihrer Gestaltung unterscheidet,außergewöhnliche Lösung von Dächern und das Vorhandensein einer Schwelle mit einer Veranda. Abhängig von der Art der Laube Es kann mit Landschaftsgestaltung dekoriert werdenDas bringt eine besondere Atmosphäre nach außen. Darüber hinaus ermöglicht das Design, an Außenbeleuchtungs-Pavillons mit Grill zu denken, so dass Sie am Abend Schaschliks oder andere Gerichte zubereiten können. Außerdem Composite-Beleuchtung Pergola draußen wird es eleganter machen, wird die Ansätze von zu Hause aus markieren.

Die innere Anordnung solcher Pavillons ist ebenfalls bemerkenswert. Wenn genügend Platz vorhanden ist, können sie mit einem bequemen Sofa und einem Fernseher ausgestattet werden. Es gibt einen Platz für Zubehör, mit dem Sie die Hobbys der Besitzer des Hauses, ihren Status in der Gesellschaft und einen Sinn für Geschmack angeben können. Jedoch Nicht jede Grillart kann in einer bestimmten Gartenlaube installiert werden. Oft hängt die Wahl des Designs von der Form der Struktur selbst ab.

Da die Form und die Größe des Grills unterschiedlich sein können, muss das Design sehr sorgfältig angegangen werden, da nicht jede Art von Kohlenbecken für eine bestimmte Welle geeignet ist. Außerdem, muss jede Art von Abschlussmaterial durchdenkenDas reduziert das Brandrisiko.

Es ist wichtig, über die Belüftung nachzudenken, um den Grad der Verbrennung und die Ablagerungen an der Decke zu reduzieren, was leider nicht vermieden werden kann, da das Essen am offenen Feuer zubereitet wird. Das Vorhandensein von Auspuff ist ein obligatorischer Faktor in den Gebäuden des geschlossenen Typs.

Darüber hinaus muss sich der Boden aus dem Material des feuerfesten Typs ausbreiten und eine zusätzliche Belastung des Fundaments verursachen, und es wird hochwertiges Material benötigt, das die Verformung und Schrumpfung während des Betriebs verhindert.

Arten

Herkömmlicherweise können alle Arten von Pavillons mit Grill unterteilt werden in:

  • offen;
  • halb geschlossen;
  • geschlossen.

Die Art bestimmt die Saisonalität der Nutzung und den Grad des Komforts.

Z.B, offene Konstruktionen Da keine Wände und Fenster vorhanden sind, muss das Feuer vor Niederschlag und Wind mit Stein- oder Metallelementen geschützt werden. Diese unbequemste Gebäude, und Sie können sie nur im Sommer verwenden. In den meisten Fällen haben sie nicht das ursprüngliche interne Design, das in halbgeschlossenen und geschlossenen Strukturen erstellt werden kann.

Geschlossene Pavillons bemerkenswert darin, dass sie eine ganzjährige Ausbeutung implizieren.Diese Projekte haben oft nicht nur ein Heizsystem und Licht, sondern auch eine Wasserversorgung. Überdachte Einrichtungen das zuverlässigste und langlebigsteSie sind im Inneren bequem und ähneln kleinen Landhäusern, besonders wenn sie mit einem Satz von Möbeln, einem Mangalan-Bereich mit einem großen Tisch und einer Haube, einem Herd und allen Kommunikationsmitteln ausgestattet sind. In solchen Konstruktionen sind auch Designlösungen mit einem Tandoor-Kohlenbecken von sphärischem oder krugähnlichem Aussehen zum Kochen verschiedener Nahrungsmittel relevant.

Halbgeschlossene Optionen sind Strukturen mit einer oder zwei Wänden, sowie Geländer. Sie sind nicht für den ganzjährigen Gebrauch konzipiert.als warme Winterpavillons, jedoch halten sie das Feuer von Regen und Wind besser an als Analoge des offenen Typs. Der im Garten halb geschlossene Gartenpavillon ist praktisch, weil es im Sommer nicht heiß ist. Wenn gewünscht, können Sie eine Wand umwandelbar machen, um das Gebäude vor Niederschlägen zu schützen. Zum Beispiel können Sie es aus gehärtetem Glas "Akkordeon" machen.

Überprüfung der Materialien

Heute sind die beliebtesten Materialien für den Bau von Lauben Ziegel, Holz und Metall. Stein wird hauptsächlich zur Dekoration verwendet.Jede Art von Material hat seine eigenen Vorteile und Leistungsmerkmale. Zum Beispiel ist Holz das üblichste und beliebteste Material, es ist umweltfreundlich, äußerlich attraktiv und hat kein großes Gewicht.

Holz ist ein warmes und ästhetisch attraktives Material. Solche Dorne aus Stämmen und Furnierschichtholz. Das Array wird jedoch im Laufe der Zeit zerstört, benötigt Behandlung von Nagern und Insekten, regelmäßige Malerei oder Lackierung. Außerdem stellt Holz eine Brandgefahr dar, daher erfordert die Anordnung des Grills in einem solchen Pavillon das Ergreifen von Maßnahmen, um ein Feuer zu verhindern.

Ziegel und Stein sind zuverlässige Baumaterialien.. Sie ermöglichen es Ihnen, eine ziemlich solide Konstruktion zu bauen, während sie nicht brennen, widerstandsfähig gegen Zerstörung und widrige Wetterbedingungen sind. Die Pflege solcher Gebäude ist nicht mühsam, die Art der Dorne dieser Materialien ist schön. Sowohl Stein als auch Ziegel erlauben heute, die besten Designprojekte von Lauben mit Grill, während bedeckt, zu schaffen.

Solche Gebäude können mit verstärktem Glas ergänzt werden.wenn nötig, holt er sich einen speziellen Film, der Wärme speichert.Glasierte Ziegellaube erlaubt, wenn notwendig, Gäste darin zu ordnen.

Der Nachteil dieses Rohstoffes ist sein Gewicht, da es ein verstärktes Fundament erfordert. Außerdem braucht man Styling-Fähigkeiten, die etwas Erfahrung erfordern, sonst sieht das Gebäude nicht schön aus.

Neben Ziegel-, Stein- und Holzrohstoffen, Dorne sind aus Metall. Metallbau ist eine überwiegend offene Bauweise. Seine Vorteile sind Haltbarkeit, Feuerbeständigkeit und Attraktivität, da die Struktur in den meisten Fällen aus Schmieden besteht. Schmieden passt gut zu allen Materialien für den Bau von LaubenSie bringt Leichtigkeit und Leichtigkeit in das Projekt.

Die Nachteile solcher Rohmaterialien sind ihre hohen Kosten und ihre anspruchsvolle Pflege.

Es ist notwendig, jährlich geschmiedete Schnürsenkel zu streichen, damit die Struktur anständig aussieht und nicht korrodiert.

Außerdem kann das Metall die Benutzer vor dem Wind nicht schützen, so ist es öfter ein Element der Dekoration solcher Gebäude. Ja, und machen Sie sich eine ähnliche Option, nicht jeder kann. Für seine Herstellung benötigt professionelle Fähigkeiten.

Planungsideen

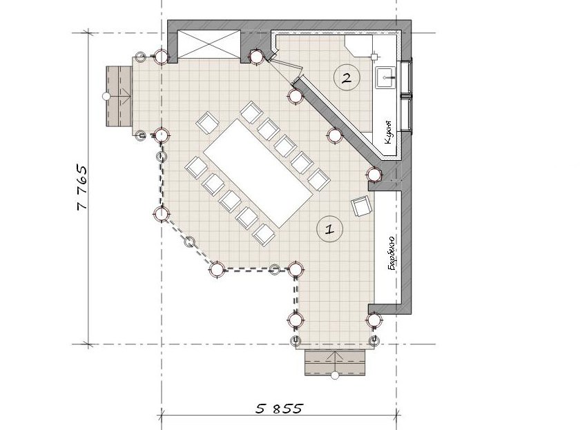
Der Grundriss des Pavillons mit Grill hängt von seiner Form und Größe ab. Wenn es zum Beispiel eine Okta- oder Sechseckform hat, kann das Kohlenbecken in der Mitte oder in der Nähe einer der Wände angeordnet sein. Eine der Aufgaben des Designs ist maximaler innerer Komfort und schafft eine Atmosphäre des häuslichen Komforts. In diesem Projekt berücksichtigt einen bestimmten Stil des Interieurs.

Zum Beispiel Das Chalet hat einen großen Dachüberhang und hat voluminöse Gesimse. In den rechteckigen Gebäuden finden Sie einen Platz zum Kochen und Essen. Brazier kann um den Umfang von einem Tisch mit einer Arbeitsplatte aus Stein umgeben sein, auf einem der Ebenen Waschbecken platziert, den Eingang zum Röster verlassen. Sie können zwischen zwei funktionalen Bereichen der Trennwand in Form eines Gitters oder eines durchbrochenen Schmiedes unterscheiden.

Wenn das ist klassische rustikale Art minimalistischen StilDie Anordnung der inneren Anordnung kann einerseits aus einem Kohlebecken, andererseits aus einem Tisch mit zwei Bänken bestehen. Eine interessantere Anordnung ist möglich mit einem Entwurfsprojekt mit einem Ofen in der Nähe einer der Wände, in dem ein Pavillon von 8 Seiten, zusätzlich zu dem Dach, Stützsäulen, schmiedeeiserne Barrieren und einen Steinboden hat. Hier ist es besser, Korbmöbel in die Mitte zu stellen.

Die beste Planungsmethode ist die Zonierung, die sich beim Zeichnen einer Zeichnung im Plan widerspiegelt.. Dies wird es ermöglichen, den für jeden Funktionsbereich benötigten Platz zu verstehen, wodurch eine klare Organisation eingeführt wird. Wenn im Pavillon genügend Platz ist, kann dieser in den Speise- und Gästebereich aufgeteilt werden.

Wenn es viel davon gibt, wird der Platz in ein Erholungsgebiet, Spiele, gebracht. Zum Beispiel können Sie einen Billardtisch, eine Kinderspielecke und sogar ein Sofa darin platzieren.

Manchmal erinnert die Laube an ein Esszimmer. Wenn das Kohlebecken in der Mitte der oktaedrischen Struktur installiert ist, können Sie Bänke mit einem Tisch umstellen.

Es ist besser, die 2 Zonen zu trennen, weil es beim Kochen heiß wird, was eine gewisse Unannehmlichkeit mit sich bringt. Sie können eine kleine Terrasse vor dem Eingang machen. Auf diese Weise können mobile Kunststoffmöbel installiert werden, um Ruhe und Mahlzeiten außerhalb des Gazebo zu genießen.

Ein interessantes Projekt kann mit einer leeren Wand erstellt werden, indem ein Kohlenbecken daneben platziert wird. In diesem Fall können Sie unter den anderen Stützen ein Geländer bauen und Mauerwerk ausführen. Es ist besser, den Laden dicht an die Wand zu stellen, und daneben steht ein Tisch.Gegenüber dem Grill können Sie einen anderen Laden installieren, um das Feuer zu bewundern oder einfach nur im Freien zu entspannen.

Abmessungen

Die Parameter von Pavillons mit Grill sind unterschiedlich und hängen vom Wunsch und den finanziellen Möglichkeiten des Kunden ab. Wenn nicht viel Platz zum Bauen ist, gibt es kaum Platz für einen Grill, eine Bank und einen kleinen Tisch. Z.B, mit den Parametern der Mangalnoy Laube 3.5h2.5, 3x5 m Sie können einen Grill in der Nähe der Wand mit einer Tischplatte ausstatten und den verbleibenden Raum mit einem Tisch und Stühlen füllen.

Die Standardoption ist ein 4x4 m Projekt. Es erlaubt Ihnen, den Raum rational zu organisieren und einen Platz darin nicht nur für Mahlzeiten, sondern auch für Erholung zu finden. Hier kann der Tisch bereits rund sein, und entlang der Wand mit einem Kohlenbecken können Sie das Design mit einer Spüle vervollständigen.

Wenn für den Pavillon wird noch mehr Platz zur Verfügung gestellt (zB 5,3x5,4, 6x6 m)Eine der Wände kann unter der Kochzone angeordnet werden, wo an dieser Stelle eine Spüle, ein Kessel, eine Räucherschale, ein Kohlenbecken und ein Kochtisch angebracht werden. Freiraum kann mit zwei Sofas und einem großen Tisch gefüllt werden. Stattdessen können Sofas in den mobilen Kunststoffmöbeln installiert werden, die bei Bedarf für mehr Komfort auf der Straße herausgenommen werden können.

Manchmal ist mehr Platz für die Konstruktion (6x8 m). Zum Beispiel kann ein solcher Pavillon einen vollwertigen Speisesaal, einen Ruhebereich und einen geräumigen Mangalbereich umfassen.

Unabhängige Konstruktion

Um einen Pavillon mit Grill auf der Datscha zu bauen, können Sie es Schritt für Schritt selbst durchführen. Berechnen Sie zunächst die Gesamtanzahl der Materialien, bestimmen Sie den Ort und skizzieren Sie seine Kontur. Zum Beispiel kann die Basis oktaedrische Konstruktion von Ziegeln genommen werden. Das Fundament wird mit Sand und Spannbeton mit frostbeständigen Eigenschaften für Beton eingegossen.

Das Fundament muss solide und verstärkt sein.

Dann müssen Sie die Wände des Gebäudes mit einer Mischung aus feuerfesten Typen verlegen. Der Eingang der Laube sollte auf den Eingang des Hauses schauen. Verbreiten Sie 8 Reihen von Ziegeln um den Umfang: Es wird Zäune sein. Dann führen sie das Verlegen durch, bauen Unterstützungen, und dann sind sie in einem Fachwerksystem von einem Array beschäftigt. Baue eine Holzkrippe aus Ziegelsteinen, dann Brennkammer und Tischplatte.

Nach Belieben eine Nische für Geschirr machen. Für Kessel benötigen Sie einen Teller. Dies kann eine Option mit abnehmbaren Ringen sein. Nach der Herstellung der Basis zum Grillen ausgebreitete Tischplattenschamotte. Dann organisieren sie den Schornstein und bilden einen Kanal für die Räucherei, Die Reihen sind mit Draht verstärkt. Dann beschäftigen sie sich mit einem Ofenbogen, legen die Wände aus und prüfen sie gleichzeitig durch eine Ebene. In diesem Fall kann die Rückwand außerhalb der Kontur verlängert sein.

Bei der Verlegung ist es wichtig, die Genauigkeit der Arbeit zu beachten, da Ungenauigkeiten die Qualität und das ästhetische Erscheinungsbild der Konstruktion beeinträchtigen.

Dann installieren Sie die Türen der Räucherkammer, beenden Sie die Verlegung der Bögen über den Grill, Herd zum Kochen und Herd. Nach der Verbindung durchführen. Über den Fliesen können Sie das Gitter aus Edelstahl befestigen. Es ist nützlich für Gerichte, Trocknen von Beeren, Pilzen. Es bleibt übrig, das Dach zu nähen, Wasser in die Spüle zu bringen und den Bodenbelag zu verlegen. Für eine stabile Traktion ist es besser, ein Drei-Kanal-Rohr zu machen.

Schöne Beispiele zur Inspiration.

Schließlich können Sie interessante Designprojekte sehen:

  • Option halbgeschlossene Art von Ziegel, massiv und Ziegel.
  • Halbgeschlossener Pavillon aus Stein und Holz mit einem massiven Dach.
  • Laube geschlossener Typ, angepasst an ein gemütliches Wohnzimmer.
  • Die Konstruktion der oktaedrischen Form mit dem Zusatz von verstärktem Glas.
  • Original Stilisierung in Form von Fanza, in der Nähe des Reservoirs.
  • Option mit einem Schneidetisch, Stauraum für Holz, einem Kessel und einem russischen Ofen.
  • Lakonische Lösung aus Holz und Glas. Platzieren von Grill in der Mitte des Gebäudes.
  • Beispiel mit der Lage der Bar und einem zusätzlichen Platz für Mahlzeiten.
  • Eine halbgeschlossene Struktur mit einem Mangal-Design-Bereich, in dem ein komplexer Ofen mit einem Tandoor, einem Grillplatz platziert werden kann.
  • Eine stilvolle Entscheidung, den Grill im geschlossenen Pavillon zu schmücken.
  • Kleiner, aber gemütlicher Pavillon mit Grill, der auf dem Tisch in der Mitte steht.

Wie man einen Pavillon mit Grill mit eigenen Händen macht, sehen Sie das folgende Video.

Kommentare
 Kommentarautor

Die Küche

Kleiderschrank

Wohnzimmer