Zweigeschossige Pavillons: Gestaltungsmerkmale und Gestaltungsmöglichkeiten

Komfortable Erholung im Freien ist ein gutes Mittel zur Beruhigung, Erholung, Ablenkung vom stressigen Alltag. Die Besitzer von Sommerparzellen und Privathäusern mit Hofgebiet sind nur glücklich. Schließlich haben sie die Möglichkeit, einen Platz zum gemütlichen Beisammensein und Entspannen mit der Familie oder guten Freunden zu finden. Ein Pavillon auf einer Landseite ist keine Seltenheit, aber eine zweistufige Struktur dieser Art ist selten anzutreffen. Der Artikel wird die Eigenschaften von zweistöckigen Gebäuden für die Erholung betrachten: ihre Vorteile, Nachteile und Möglichkeiten der Anordnung.

Funktionen und Vorteile

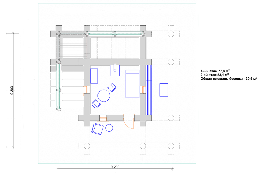
Der Hauptunterschied dieses Designs ist seine erhöhte Gesamtfläche. Zusätzlich kann der zweite Stock eine zusätzliche Funktion erfüllen. Dort können Sie beispielsweise ein Kinderareal errichten, eine Außenterrasse bauen, um die Umgebung zu bewundern, oder in den Sommermonaten eine Liegewiese anlegen.

Es ist möglich, ein Design für den ganzjährigen Gebrauch zu bauen. Um dies zu tun, bleibt eine der Ebenen geöffnet, um sich bei warmem Wetter auszuruhen. Und die andere Etage ist isoliert und ausgestattet, um in der kalten Jahreszeit am Kamin zu entspannen.

Es gibt mehrere positive Unterschiede und Vorteile eines zweistöckigen Gebäudes zur Erholung.

  • Das Design ist in der Lage, die Leistung mehrerer Funktionen zu kombinieren. Die erhöhte Fläche und das Vorhandensein von zwei Stockwerken ermöglichen es, den Pavillon in mehrere Zonen aufzuteilen, die je nach Zweck und Verwendungszweck eingerichtet werden.
  • Ein großer 2-stöckiger Pavillon lässt viel mehr Menschen zur Ruhe kommen. Alle Gäste können bequem unterbringen und werden nicht durch den kleinen Platz eingeschränkt.
  • In dem Fall, wenn die Landfläche nicht groß genug ist und Platz benötigt wird, ist ein zweistufiges Design eine gute Lösung.
  • Der zweistöckige Pavillon sieht ästhetisch und gründlich aus. Sie wird in der Lage sein, das Grundstück jeder Größe zu dekorieren. Es ist nur notwendig, das optimale Design und geeignete Parameter für das Design auszuwählen.

Die Nachteile von Zwei-Ebenen-Dornen

    Beim Bau eines zweigeschossigen Gebäudes zur Erholung entsteht der Bedarf an zusätzlichen Bauarbeiten und Manipulationen.

    • Besondere Aufmerksamkeit muss der Stiftung geschenkt werden, da die gesamte Struktur ein ziemlich großes Gewicht haben wird.
    • Und es erfordert auch zusätzliche und dauerhafte Verstärkung von Böden, Trägern und Trägern. Arbor sollte nachhaltig sein und der Belastung von Gartenmöbeln und einer beträchtlichen Anzahl von Menschen standhalten.
    • Arbor mit einem Kohlenbecken erfordert zusätzliche Anordnung des Schornsteins.
    • Wenn die Konstruktion das ganze Jahr hindurch genutzt werden soll, müssen Sie Zeit, Mühe und Geld aufwenden, um einen Kamin, Schornstein und Wand- und Deckendämmung zu bauen.

    Materialien für den Bau

    Neben einer Konstruktion kann der Dorn aus verschiedenen Materialien ausgeführt werden. Die häufigste Option ist eine Holzkonstruktion. Eine Holzkonstruktion zu bauen ist vielleicht die einfachste.

    Darüber hinaus bevorzugen viele Menschen dieses natürliche Material wegen seiner ästhetischen und natürlichen Erscheinung. Der Geruch von Holz ist eine angenehme Ergänzung zur Erholung im Freien.

      Erholungsgebäude können mit Stein und Mauerwerk gebaut werden. Solche Optionen sind monolithischer und solider. Sehen Sie perfekt die Dorne aus einem Stein auf großen Seiten mit einem japanischen oder gotischen Interieur.

      Bei der Auswahl eines Materials sollten verschiedene Faktoren eine Rolle spielen.

      • Die gewünschten Dimensionen des Designs.
      • Merkmale der Verwendung dieser Struktur. Es ist ratsam, im Voraus zu entscheiden, ob der Pavillon das ganze Jahr oder nur in der Sommersaison genutzt wird. Im zweiten Fall müssen keine teureren Materialien verwendet werden, um die Wände zu schließen und einen der Böden zu isolieren.
      • Die geschätzte Belastung des Gebäudes sollte bewertet werden. Das Design Design hängt auch von diesem Artikel ab. Wenn Sie beabsichtigen, eine große Anzahl von Gästen auszuruhen, sollte darauf geachtet werden, die Struktur zu stärken und zu stärken. Insbesondere der Aufbau einer starken Grundlage.
      • Externe Design-Stil Pavillons beeinflusst direkt die Wahl des Materials für die Konstruktion. In diesem Fall sollten Sie sich von der allgemeinen Design- und Stilentscheidung des Gartengrundstücks leiten lassen.

      Selbstbau

      Trotz der Anwesenheit von zwei Stockwerken ist ein Gartenpavillon zur Erholung immer noch nicht so eine komplizierte Struktur. Es ist durchaus möglich, seine Konstruktion selbst durchzuführen. Es ist nicht schwierig, ein solches Projekt selbst zu machen, unter Berücksichtigung Ihrer Wünsche und Besonderheiten. Sie können aber auch vorgefertigte Projekte verwenden.

      In der ersten Entwurfsphase ist es notwendig, alle wichtigen Punkte zu überdenken und zu identifizieren.

      • Der richtige Ort für die Lage des Gebäudes.
      • Gewünschte Konfiguration und Parameter. Dieser Artikel kann die Größe der Struktur, ihre Abmessungen, Form, das Vorhandensein der Basis, Wände und Dach, Außenstil, Material für den Bau.
      • Sie sollten im Voraus über den Grad und die Methode der Beleuchtung innerhalb der Struktur, sowie der Umgebung nachdenken. Eine zuverlässige Option ist die Lieferung von Strom aus der Hauptquelle und die Installation von Beleuchtungskörpern und -dosen. Wenn dies nicht möglich oder schwierig ist, bleibt die Option der autonomen Beleuchtung von batteriebetriebenen Geräten oder Fackeln auf Solarbatterien.
      • Als nächstes sollten Sie den Verbrauch von Materialien für das Vorprojekt schätzen.Da zu diesem Zeitpunkt ist es möglich, die ungefähren Kosten für den Bau der Struktur zu berechnen und, falls erforderlich, das Projekt anzupassen.

      Laube von einem Baum

        Um eine Holzkonstruktion zu bauen, muss zuerst ein Betonfundament gegossen werden. Die Schalung wird in den vorbereiteten Graben eingebaut und der Mörtel wird gegossen.

        Nach der vollständigen Erstarrung wird die untere Umreifung durchgeführt, die Verlegung der Bretter für den Boden der unteren Etage und die Errichtung von Wänden (falls vorhanden). Wände können als ein Protokoll von kleinen hölzernen Protokollen gemacht werden. Für eine einfachere Option können Sie Boards verwenden, die vertikal oder horizontal installiert sind.

        Wenn das Obergeschoss offen ist, sollten Sie darauf achten, die Decke der unteren Etage abzudichten. Für diese Abdichtung wird das Material unter dem Boden der zweiten Ebene verlegt. Für einen besseren Schutz können Sie die Abdichtung im zweiten Stock verlegen.

        Wenn die zweite Ebene des Pavillon geschlossen ist, wird ein Dach gebaut, das mit jeglichem Dachmaterial bedeckt ist.

        Die Konstruktion für das Geben von anderen Materialien wird durch denselben Algorithmus errichtet. Bei der Konstruktion der Laube aus dem Stein und dem Ziegel ist die tiefere und starke Basis notwendig.Die Verlegung des Materials erfolgt nach dem Projekt der zu errichtenden Konstruktion

        Zusätzliche Arbeit

        Ein zweistöckiger Pavillon erfordert eine größere Anzahl von Operationen im Vergleich zu einem einstöckigen.

        • Um in die zweite Etage zu gelangen, müssen Sie eine Treppe bauen. Sie können eine fertige Treppe bestellen oder selbst aus den Brettern zusammenbauen. Die Treppe ist in der vorbereiteten Öffnung zwischen den Stockwerken des Gebäudes befestigt.
        • Um Treppen sicherer zu steigen, ist es wünschenswert, sie mit Geländern auszustatten. Gewöhnliche polierte Stäbe funktionieren gut für ihre Produktion.
        • Anstricharbeiten fertige Gebäude werden bei trockenem Wetter durchgeführt. Farbe auf Alkydharzen ist am besten geeignet. Es ist resistent gegen äußere Einflüsse und Temperaturänderungen.

        Anordnung und Design

        Neben seiner unmittelbaren Funktion sollte ein Pavillon zur Entspannung ein ästhetisches Vergnügen sein. Daher sollten Sie nach dem Bau des Gebäudes selbst ernsthaft über sein äußeres und internes Design nachdenken.

        Eine sehr gute Option ist es, das Erscheinungsbild der Struktur in einem einzigen Thema mit der Gestaltung des Gartengrundstücks zu stilisieren.

        • Der Innenraum sollte den Funktionsbereichen des Pavillons entsprechend angeordnet sein. Es ist notwendig, auf ausreichende Beleuchtung zu achten, da sich die Erholung im Freien oft bis zur dunklen Tageszeit verzögert.
        • Sie sollten den Raum des Gebäudes nicht unnötig mit Möbeln und großen Dekorationsgegenständen überladen. Dies ist jedoch kein geräumiges Haus, sondern ein Ort, um sich von der Hektik der Stadt und den alltäglichen Angelegenheiten zu erholen.
        • Neben dem Pavillon ist es angebracht, Ziersträucher und Blumen zu pflanzen. Dekorieren Sie den Rastplatz Kletterpflanzen, Hecken, Weinreben. Sie können gewöhnliche Hopfen neben dem Gebäude landen. Dies ist eine immergrüne unprätentiöse Pflanze, die den ganzen Sommer über die Wände des Gazebo mit dicken und saftigen grünen Blättern bedeckt.
        • Im Innenbereich können Sie auch verschiedene Pflanzen mit dekorativen Töpfen, Töpfen und Blumentöpfen platzieren. Blumentöpfe können auf kleinen Regalen entlang der Wände einer geschlossenen Struktur angeordnet werden.
        • Wenn Sie einen Urlaub mit Ihren Kindern planen, können Sie einen kleinen Spielplatz für sie einrichten. Dies geschieht am besten auf der zweiten Ebene. Wenn die Abmessungen des Gebäudes es erlauben, kann ein Teil des zweiten Stocks als kleiner Spielplatz genutzt werden.
        • Wenn der Bereich des zweiten Stocks offen bleibt, kann er zum Sonnenbaden, zum Sonnenuntergang oder zum Sternenhimmel genutzt werden. Es sollte auf der zweiten Stufe bequeme Gartenstühle, kleine Tische aufgestellt werden.
        • Stilvolle Wandlampen, LED-Bänder, Gartenlaternen, dekorative Lampen werden als Leuchtmittel verwendet.

        Wie man einen zweistöckigen Pavillon macht, sehen Sie das folgende Video.

        Kommentare
         Kommentarautor

        Die Küche

        Kleiderschrank

        Wohnzimmer