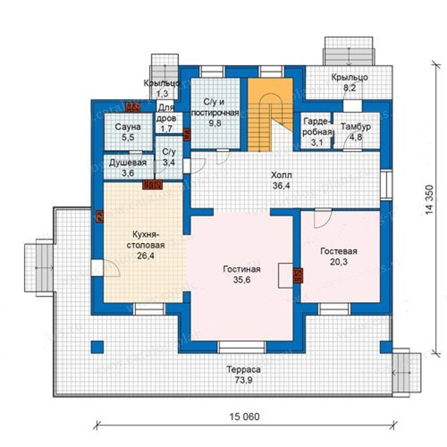
Eigenschaften der Geräte- und Designbäder

Aufrechterhaltung der Sauberkeit und Hygiene ist sehr wichtig für alle. Darüber hinaus ist es logischer, ein Bad einzurichten, wenn Menschen auf dem Boden arbeiten oder außerhalb der Stadt leben. Es wird auch für diejenigen nützlich sein, die einfach ein Fan von Badekultur sind.

Um richtig zu baden und ein ordentliches Ergebnis zu erzielen, müssen Sie alle Nuancen sorgfältig untersuchen und die Struktur eines solchen Raumes verstehen. Es tut nicht weh, die Feinheiten des Designs zu verstehen.

Besonderheiten

Der Aufbau einer Sauna unterscheidet sich vom Hausbau vor allem dadurch, dass im Dampfbad regelmäßig hohe Temperaturen nach haushaltsüblichen Standards erzeugt werden müssen. Gleichzeitig ist selbst in den "trockenen" Varianten die Luftfeuchtigkeit unweigerlich von großer Bedeutung. Daher müssen Sie darüber nachdenken, wie Sie eine hochwertige Belüftung und die Freisetzung von Luft aus überschüssiger Flüssigkeit herstellen können.

Um dieses Problem zu lösen, werden Optionen verwendet, die niemals in Wohngebäuden, insbesondere in Wirtschaftsräumen, verwendet werden.

Und alle Ausrüstungsmaterialien, alle elektrischen Geräte müssen solche außergewöhnlichen Bedingungen in Ruhe und ohne unerwünschte Folgen aushalten.

Projekte

Neben den traditionellen russischen und finnischen Bädern werden auch andere Bade- und Waschplätze immer beliebter. Die Leidenschaft für den Hammam ist in den letzten Jahren gewachsen.

Ein kleiner Bereich des türkischen Standard-Badehauses geht davon aus, dass sie höchstens zweimal pro Stunde 10-20 Minuten eindringen. Ein bescheidener Bereich ist vorzuziehen, da sonst ein sehr leistungsstarker Dampferzeuger benötigt wird. Für vier Personen ist ein Volumen von 250 x 250 cm ausreichend..

Aber es gibt eine Ausnahme: In einem kleinen Hammam wird es nicht funktionieren, einen Massagetisch zu stellen. In jedem Fall muss berücksichtigt werden, dass die äußere Oberfläche, die Wände und die Isolierung mindestens 7-10 cm dick sind. In den Hammams flache Sitzflächen, sowie Plattformen zum Liegen entwerfen. Die Sitze müssen mit Rückenlehnen ausgestattet sein.ist es wünschenswert, anatomische Sitze, Sonnenliegen zu verwenden.

Dampfaustritt durch die Düse sollte am sichersten Punkt zum Waschen erfolgen.

Die Decken der türkischen Bäder sind größtenteils gewölbt, weil eine solche Lösung am einfachsten ist.

Wenn Mittel zur Verfügung stehen, können Sie Designer anlocken und ein originelles Projekt entwickeln:

  • normaler oder spitzer Bogen;
  • "Umschlag";
  • Hemisphären.

Sie sollten nicht erwarten, dass die Anordnung des türkischen Bades, sogar mit einer Gesamtgröße von 3 x 4 m, Ihnen erlauben wird, drastisch Geld zu sparen. Achten Sie darauf, dass Sie zum Beispiel eine Schale aus Marmor brauchen - ein unentbehrliches Attribut für jedes Hamam. Es ist notwendig, für die Bildung einer isolierten technischen Einheit zu sorgen, in der der Dampferzeuger untergebracht ist. Meistens sind 1-1,5 Quadratmeter einem solchen Fach zugeordnet. m

Wenn ein türkisches Bad an einem Haus befestigt ist, muss es vollständig davon isoliert sein., weil die Feuchtigkeit von 100% schnell beginnen wird, Schaden an den grundlegenden Strukturen zu verursachen.

Hammam wird immer sofort und für den gesamten Nutzungszyklus gebaut. Um es zu wiederholen, ist es sehr schwierig, fast unmöglich. Daher kostet die Gestaltung des Gebäudes viel Geld und wird ausschließlich von ausgebildeten Fachkräften ausgeführt.

In der Innenarchitektur wird empfohlen, ausschließlich natürliche Materialien zu verwenden.. Gleichzeitig sind jedoch nicht alle von ihnen in der Lage, längerer Exposition gegenüber absoluter Feuchtigkeit standzuhalten.

Es wird nicht möglich sein, auf die Absaugung zu verzichten, und in der Entwurfsphase werden notwendigerweise dreidimensionale Modelle verwendet.

Viele Leute denken, dass der Bau einer Sauna mit einem Pool viel einfacher sein wird. Ja, die kulturelle Tradition, die dazu geführt hat, ist für die Einwohner der Russischen Föderation näher und weniger exotisch als der türkische Ansatz. Aber gleichzeitig gibt es Feinheiten und Nuancen, die sicherlich berücksichtigt werden sollten. Zunächst müssen Sie entscheiden, ob der Pool offen oder geschlossen ist.

Das offene Bad ist immer mit einem Baldachin bedeckt, damit es nicht in verschiedene Trümmer hineinfallen kann.

Laut Marktforschungsdaten bevorzugen die meisten Konsumenten nun Cascade-Format-Pools. Eine Reihe von Schalen ermöglicht es Ihnen, die Temperatur des Badens systematisch zu reduzieren und erleichtert die Organisation der Härtung.

Der offensichtliche Nachteil ist, dass Sie viel Platz benötigen, und Sie werden nicht viel Wasser im Vergleich zu einem Einkammer-großen Pool sparen können. Klassische eingebettete Lösungen können in einer sehr unterschiedlichen Konfiguration ausgeführt werden; Bei der Herstellung ihrer eigenen Hände wäre die praktischste Option ein klassisches Rechteck.Landbäder sind etwas anders als diejenigen, die in Wohngebäuden in der Stadt gebaut werden.

Es ist zwingend notwendig, das Gebäude an den Himmelsrichtungen auszurichten - wenn der Ausgang nach Süden ausgerichtet ist, schmilzt der Schnee im Frühjahr schneller, und Sie müssen weder den Boden aufräumen noch entlang der Pfütze laufen.

Fast alle Leute gehen nachmittags ins Bad, wenn die Dinge vorbei sind. Daher sind Fenster nach Westen, die die Sonnenstrahlen aufnehmen, die beste Wahl. Es ist sehr wichtig zu wählen, ob das Bad autonom oder an das Haus angeschlossen ist.

Die Praxis vieler Menschen zeigt, dass die angehängte Version, wenn sie gut isoliert ist, den Zustand der Wohnung nicht beeinflusst. Wir können keine Angst haben, dass es feucht wird oder zu heiß wird. Aber es gibt noch andere Überlegungen: Zum Beispiel ist ein freistehendes Gebäude im Brandfall sicherer. Und wenn sie dort Urlaub machen, dann können Sie Lärm machen, Lieder singen und dergleichen, ohne Angst zu haben, den Rest, der im Haus bleibt, noch einmal zu stören.

Die Größe des Landbades ist besser nicht zu groß, weil dann weniger Platz für andere Gartenbedürfnisse und Gebäude zur Verfügung steht.

Badehäuser werden oft durch eine offene Veranda ergänzt - aber auch hier gibt es Nuancen und Tricks. Also, es wird empfohlen, mehr Aufmerksamkeit auf die Ausrüstung der Veranda, die breit sein sollte, zu zahlen.Es ist sehr wichtig, zu der Zeit des Designs zu entscheiden, wie der Eingang zur Terrasse gebildet wird. Es ist entweder starr oder an einer Wand befestigt.

Zu Ihrer Information: Für den Aufbau der Veranda wird das gleiche Grundmaterial wie für das Bad selbst verwendet.

In den meisten Fällen wird Holz verwendet und Handläufe hergestellt. Eine weitere Option ist eine flache (2 x 4 m) Veranda; Teetrinken ist dort kaum möglich, außer für ein oder zwei Personen. Aber es ist durchaus möglich, Brennholz anzusammeln und andere notwendige Dinge im Haushalt zu lagern.

Wenn die Veranda größer ist, kann sie auf der einen Seite mit mehreren Fenstern und auf der anderen Seite mit einer geschlossenen Wand ausgestattet werden. Dann wird es sich herausstellen, Orte für Erholung und Feiern zu isolieren.

Ein sehr wichtiger Punkt - der Unterschied zwischen dem einstöckigen und dem zweistöckigen Bad. Eine Konstruktion mit einer einzigen Etage wurde lange Zeit als klassisches Format anerkannt, und dies sind die am häufigsten verwendeten Gebäude.

Die Gründe liegen auf der Hand:

  • Einsparungen beim Volumen von Baumaterial und Arbeit;
  • vereinfachte Fundamentkonstruktion;
  • Geld sparen bei der Verwendung.

Wenn das Bad eine Fläche von 6 bis 8 Metern einnimmt, ist es einfach, sowohl ein Dampfbad als auch einen Waschraum von ausreichender Größe darin zu platzieren und sogar einen komfortablen Warteraum einzurichten. Es ist auch ratsam, über den Raum für Freizeit nachzudenken.Wenn genug Platz auf der Baustelle ist, ist es ratsam, sie mit einer Sanitäreinheit und / oder einer Küche auszustatten.

Auf einer waschbaren sollte von 1 Quadrat sein. m des Raumes, und um das Waschen bequem zu halten, sollte dieser Indikator anderthalbmal vergrößert werden.

Machen Sie ein einstöckiges Bad für eine Firma von 4 Personen oder mehr nicht funktionieren, wenn seine Fläche weniger als 50 m² ist.

Wenn auf dem Grundstück nicht genug Platz ist, reicht ein Stockwerk nicht aus, Sie müssen das fehlende Territorium kompensieren, indem Sie die Höhe erhöhen. Die Situation ist anders, wenn es darum geht, soviel Platz wie möglich freizumachen, und auch ein einfaches einstöckiges Bad ist nicht geeignet. Dann sollten Sie über seine Lage im Keller eines Privathauses nachdenken.

Ein weiterer Vorteil dieser Lösung ist, dass Sie bei jedem Wetter waschen können, direkt aus dem Wohnzimmer. Der Bau des Kellerbades ist, mit gebührender Sorgfalt, für jedermann zugänglich, auch ohne besondere Ausbildung.

In den Kellern, wo früher etwas anderes war, musst du folgendes neu erstellen:

  • Kanalisation;
  • Wasserversorgung;
  • Belüftung.

Unabhängig davon, ob das Haus von Grund auf neu gebaut wird oder seit einiger Zeit genutzt wird, müssen Sie ein Projekt vorbereiten.Besondere Aufmerksamkeit sollte den Kaminen geschenkt werden, da sie bei dieser Ausführungsform große Schwierigkeiten bereiten. Alle Drähte sind unter dem Boden gezogenim Extremfall - nur leicht über den Boden heben. Wie in jedem anderen Bad benötigen Sie in der Kellerversion nur hitzebeständige Lichtquellen und Elektrogeräte.

Es ist ratsam, sich nicht auf die gleiche Belüftung zu verlassen, sondern auch Lufttrockner zu verwenden - im Übrigen ist dies für Kellerbäder mit Schwimmbecken in der Regel eine zwingende Voraussetzung.

Lufttrockner

Es wird notwendig sein, das Gebäude von allen Seiten zu erwärmen, da hohe Luftfeuchtigkeit nicht vermieden werden kann. Und es muss ein unüberwindliches Hindernis auf dem Weg zu den Wänden, dem Boden des ersten Stocks, dem Fundament, finden. Der Lufttunnel von der Wand bis zur Isolierung sollte 0,1-0,2 m betragen - Wenn Sie es mehr machen, werden die Kosten prohibitiv wachsen, und das Ergebnis wird sich nicht rechtfertigen.

Stark unzulässige Isolierung von Badewannen mit Schaumkunststoffneigt dazu, beim Erhitzen giftige Dämpfe freizusetzen. Es wird empfohlen, die Wände mit Naturholz zu beschichten, aber nicht zu lackieren oder zu lackieren.

Um das Kellerbecken mit Wasser zu versorgen und Schmutzwasser nach außen abzuleiten, lohnt es sich, eine Pumpstation zu benutzen.

Einsparungen an Abdichtungsmaterialien sind nicht erlaubt. Von den Räumlichkeiten sollte ein separater Ausgang nach außen erfolgen; Ein weiterer Notausgang ist im Hauptgebäude vorbereitet. Berücksichtigen Sie alle Details und Probleme, wie es ohne Hilfe nicht funktionieren sollte. Daher ist es sehr wichtig, eine professionelle Baufirma zu kontaktieren.

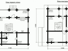
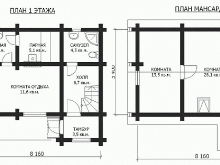
Sowohl zu Hause als auch auf dem Land gelegen, sind die Bäder oft mit einem zweiten Stock ausgestattet. Eine solche Entscheidung ist gerechtfertigt, nicht nur Platz zu sparen, obwohl es sehr wichtig ist. Dank ihm, es stellt sich heraus, um nicht einheitliche Räume zu unterscheiden und (Dampf) auf einer Reihe zu waschen, und sich dann auf dem zweiten auszuruhen.

Bei den meisten Projekten ist die erste Ebene den Wasch- und Heizräumen vorbehalten.und im Obergeschoss einen Ruheraum; Dies ist der praktischste Weg. Es gibt nur sehr wenige Menschen, die Benzin und Wasser in den zweiten Stock heben möchten.

Viele Projekte zielen darauf ab, den zweiten Stock wohnlich zu machen. Obwohl einige Leute versuchen, dort eine Werkstatt oder einen anderen Wirtschaftsraum zu finden.

Es ist äußerst wichtig, die geeigneten Abmessungen der Struktur zu bestimmen, um die Anzahl derjenigen zu berechnen, die sich im Bad waschen. Und hier noch einmal der Vorteil der Konstruktion von zwei Etagen. Selbst wenn seine Größe weniger als 6 x 8 m beträgt, wird es möglich sein, ein solches Gebäude für Firmen mit vier oder fünf Personen zu nutzen.Aber in Fällen, in denen es definitiv mehr Besucher geben wird oder der obere Teil als Wohngebiet geplant ist, ist es ratsam, das Gebäude geräumiger zu gestalten.

Die Umkleidekabine befindet sich immer im Erdgeschoss, am gleichen Ort werden meistens das Dampfbad und der Waschraum vorbereitet. Was das Oberlappen betraf, war das neueste Quietschen der architektonischen Mode die Ausrüstung der SPA Halle mit vibrierenden Massagegeräten und Trainingsgeräten.

Nun, diejenigen, die es sich nicht leisten können, Es ist ratsam, dort ein kleines Lager mit Ausrüstung und diversem Zubehör zu bauen. Die Konstruktion des Dachbodens ermöglicht es, die Konstruktion zu vereinfachen und die Bauzeit insgesamt zu reduzieren, Geld zu sparen und die Arbeit mit dem Fundament zu vereinfachen.

Gesondert gesagt, sollte man über die Saunaöfen sprechen, bzw. über deren korrekte Lage. Unter dem Ofen ist immer mit einem autonomen Fundament ausgestattet. Es ist besser, das ganze Gebiet unter ihnen und um sie herum aus Stein oder Ziegeln zu machen. Ein Stahlblech, das auf einem Holzboden in einem Wohngebäude verlegt wird, bietet zwar einen zuverlässigen Schutz gegen Feuer, aber in der Badewanne wird es nicht genug von dieser Lösung geben.

Der Abstand zu Wänden, Geländern, Bänken und Regalen sollte mindestens 30 cm betragen.

Und selbst unter dieser Bedingung ist es erforderlich, einen äußeren Schutz vor feuerfesten Materialien vorzusehen.

Sie können kein Bad in der Nähe des Wassers oder wo die Springflut kommen kann. Zweistöckige Gebäude erheben sich am natürlichsten auf erhöhten Stellen, wo ein natürliches Gefälle den Durchgang von Abwasser erleichtert. Diese Abflüsse können nicht in Gewässer abgeleitet werden., sowohl natürlich als auch künstlich.

Ein zweistöckiges Gebäude stellt in der Regel hohe Anforderungen an das Fundament. Die besten Öfen, so die Fachleute, sind aus Ziegelsteinen.; Wenn es notwendig ist, muss im Winter auf zwei Etagen geheizt werden.

Materialien

Nachdem Sie sich mit den Eigenschaften der Projekte beschäftigt haben, können Sie sich Materialien vorstellen, die für den Bau des Bades geeignet sind. Eine der attraktivsten aktuellen Lösungen ist die Verwendung von CIP-Paneelen, die in niedrigen Gebäuden zunehmend nachgefragt werden.

Diese Designs sind ein Paar von orientierten Spanplatten, deren Zwischenraum mit Polystyrolschaum gefüllt ist. Durch die Leichtigkeit der Konstruktion kann auf ein schweres, kompliziertes Fundament verzichtet werden und alle Arbeiten schnell erledigt werden. Gleichzeitig ist die Wärmeisolierung der Wände sehr hoch, sie ist viel besser als Ziegel und Schlackensteine.

CIP-Platten

Sandwichplatten sind schlechtdas mit ihren eigenen Händen, um die Arbeit mit ihnen zu machen, wird nicht funktionieren. Das Framework sollte nur von ausgebildeten Technologieexperten durchgeführt werden.

Ein weiterer wichtiger Punkt ist Sie müssen die Innenwände aus wasserdichtem Material, dem besten duktilen, abdecken. Verwenden Sie Folie und lassen Sie eine Lücke zwischen ihnen und den Wänden. Ganz eigenständig kann ein Saunahaus aus Holz gebaut werden.

Sandwichplatten

Dies ist ein zutiefst traditionelles Material, das seit mehr als einem Jahrhundert im Badebau verwendet wird. Holz wird jedoch durch mindestens mehrere Schlüsselsorten repräsentiert. Holz aus Nadelholz, am häufigsten verwendet. Es behält seine Form, hält es warm - und leidet oft unter Schrumpfung. Die äußere Oberfläche muss außen und innen ummantelt sein, um das ästhetischste Aussehen zu erzielen.

Die profilierte Holzart ist teurer als geklebt und hat zunächst exakte geometrische Konturen.

Massivholz
Profiliertes Holz
Brettschichtholz

Die Kälte ist innen nicht erlaubt, und die Wände werden weniger nass, wenn Sie solches Material verwenden. Wie für die Probleme warten bis das geerntete Rohmaterial austrocknet; selbst nach dem Bau ist es notwendig, darauf zu warten, dass sie sich setzt.

In einigen Fällen werden Bäder aus Brettern, Ziegeln, Porenbetonblöcken und einer Reihe anderer Materialien gebaut.

Von einer Bar
Von den Brettern
Aus Backstein
Aus Porenbetonsteinen
Aus dem Container

Gerät

Bath kann zu einem sehr angenehmen und komfortablen Raum werden - aber dafür ist es nicht genug richtige Auswahl der Materialien und die Wahl von ein oder zwei Etagen. Jedes echte Bad, selbst wenn es hausgemacht ist, muss richtig geplant werden. Die Aufmerksamkeit auf diesen Moment wird nicht nur erhebliche Unannehmlichkeiten verursachen, sondern kann auch den Menschen schaden.

Typisches Layout impliziert:

  • Wartezimmer;
  • Umkleideraum (manchmal mit einem Ankleidezimmer kombiniert);
  • Waschraum;
  • Dampfbad-Fach.

In den eingebauten Bädern und an den Häusern befestigt fehlt oft eine vorläufige Trennung. Im Falle einer autonomen Struktur ist es jedoch notwendig, da sichergestellt wird, dass kalte Luft beim Öffnen der Tür nicht den ganzen Raum erzwingt. Ein Warteraum wird immer so gewärmt, wie er sollte. Wenn man bedenkt, dass Badeprozeduren hauptsächlich abends stattfinden, lohnt es sich, auf eine solide und zuverlässige Beleuchtung zu achten.

Im Eingangsbereich ist es wünschenswert Platz zu schaffen für:

  • Besen (Besenstiel);
  • Wassereimer;
  • Holz oder Kohle;
  • Kleiderbügel;
  • Schuhregal oder Schrank;
  • Bänke.

In komplexeren Fällen ist dieser Raum mit Tischen und Fernsehern, Kaminen und Kühlschränken ausgestattet - alles, was die Eigentümer wünschen. Die einzige Bedingung ist Platz und finanzielle Möglichkeiten.

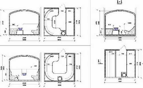
Der Waschraum ist anders ausgestattet, je nachdem, wie die Menschen hygienische Verfahren durchgeführt haben. Duschen und Tabletts, ein einfaches Zimmer mit einem Boiler (Herd) und Eimer, exotische Optionen für Schwimmbäder oder ein Schwimmbad - alles nach persönlicher Wahl. Zusätzlich können Regale, Aufsätze für Reinigungsmittel, Handtuchhaken und Bademäntel vorhanden sein.

      Es ist wünschenswert, das Dampfabteil von dem Waschraum zu trennen, da die notwendigen Temperatur- und Feuchtigkeitsbedingungen in ihnen unterschiedlich sind. Dampfbad warm erwärmtum zu schnelles Abkühlen zu vermeiden. Zusätzlich zur Isolierung müssen Sie Polster aus Holz (Wandverkleidung) verwenden.

      In Dampfbädern ist es empfehlenswert, Öfen vom Typ des Ofens zu installieren, wenn Sie Typen und Modelle wählen, die folgende Faktoren berücksichtigen:

      • viel Platz;
      • Art der verwendeten Energie;
      • benötigte Heizleistung.
      Erwärmung
      Polsterschindel

      Wichtig: Dampfräume sollten nicht höher als 230 cm sein, sonst wird zu viel Dampf verschwendet.

      Im Inneren legen sie die Regale in zwei Ebenen: Sie sitzen auf einem, sie liegen auf dem anderen. Das Wachstum der oberen Regale ist ungefähr gleich dem Wachstum der Benutzer.

      Eine wesentliche Voraussetzung für ein modernes Dampfbad ist der Einsatz von Thermometern. Es ist besser, Quecksilbergeräte zu verweigern, sie sind in einem solchen Raum zu gefährlich; im Gegenteil, das zusätzliche Hygrometer ist sehr nützlich.

      Wie man schürt?

      Ein sehr wichtiger Punkt bei der Auswahl eines Badehausprojekts und während seiner Konstruktion ist die Heizoption.

      Verschiedene Brennstoffarten können Wasser und Luft den notwendigen Wärmeimpuls verleihen:

      • Brennholz;
      • Pellets;
      • elektrischer Strom;
      • Kohle;
      Brennholz
      Pellets
      Elektrisches System
      Kohle
      • Erdgas;
      • Wärmekonvektoren;
      • warme Böden;
      • Infrarotheizungen.
      Gaskessel
      Wärmekonvektor
      Warmer Boden
      Infrarotheizung an der Decke

      Praktisch alle Öfen, die Holz verwenden, erlauben Wärme und Kohle. Der Nachteil dieser Option ist jedoch die Unmöglichkeit der Automatisierung.Es wird nur durch das traditionelle Engagement einer großen Anzahl von Menschen gehalten.

      Pellets sind in diesem Sinne einfacher und bequemer, aber selbst die längste Wäsche dauert nur wenige Stunden. Daher können sie ihren Hauptvorteil nicht offenbaren - langes Brennen.

      Die Verwendung von Erdgas zur Beheizung des Bades ist nicht immer möglich. Dies erfordert eine teure Infrastruktur und strengste Einhaltung der Sicherheitsstandards. Die Koordination all dessen mit Regierungsbehörden wird eine teure Angelegenheit sein.

      Elektroheizung erfordert keine derart komplexen Aussagen, ist aber gleichzeitig teurer als Gas und beinhaltet eine leistungsstarke Versorgungsleitung oder eine leistungsstarke Stromquelle.

      Infrarotheizung ist für diejenigen geeignet, die sofort eine große Menge aufbringen können, um später zu sparen.

      Die Verwendung von warmen Fußböden im Bad ist in der Regel von untergeordneter Bedeutung - zumal sie kein heißes Wasser für Badeverfahren und "Nachgeben" von Dampf bereitstellen.

      Unabhängig von der verwendeten Methode müssen Sie die Regeln des Brandschutzes strikt einhalten. Liebhaber von russischen und anderen traditionellen Bädern haben keine besondere Wahl: Sie müssen klassische Holzkamine benutzen.Selbst die besten Nachahmungen schaffen nur das Aussehen des Originals, können aber keine attraktive Atmosphäre im Bad schaffen.

      Im Allgemeinen müssen Sie in diesem Fall Ihren eigenen Geschmack, finanzielle und technische Fähigkeiten berücksichtigen.

      Zoneneinteilung

      Die Aufteilung des Bades in getrennte Räume ist unvermeidlich. Wenn man jedoch darüber nachdenkt, in Zonen einzuteilen, müssen die wichtigsten Planungsnuancen berücksichtigt werden. Es ist ratsam, in allen Räumen niedrige Auskleidungen und hohe Schwellen zu verwenden.um den Wärmeentzug zu reduzieren.

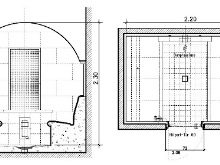
      Ein Dampfbad kann auch in einem 4 x 4 Quadratbad bequem gemacht werden, aber Sie sollten nicht mehr als 5 Quadratmeter darunter geben. Für die Zoneneinteilung der einzelnen Räume im Inneren ist es notwendig, Regale verschiedener Ebenen zu verwenden.

      Stiftung

      Nach der Planung des Designs und des Layouts, der Auswahl der Materialien, ist es Zeit, sich auf den Bau eines Bades vorzubereiten. Und der erste Schritt in dieser Arbeit ist der Aufbau der Stiftung. Fast immer wird es säulenförmig oder mit Klebeband hergestellt - die Wahl wird durch die Art des Materials und das Gesamtgewicht des Gebäudes bestimmt.

      Pillar Basis ist vorbereitet in Fällen, in denen:

      • Auf der Website wurde ein Höhenunterschied festgestellt.
      • bei Hochwasser oder Starkniederschlägen besteht die Gefahr von Überschwemmungen;
      • der Boden enthält lehmige Bestandteile oder groben Sand oder feinen Kies.

      Auf einem flachen Grundstück mit erdigen Böden sind die Pflasterböden viel besser manifestiert. Für Quarz, für felsige Gesteine ​​oder gut verdichteten Sand ist die Wahl des Fundaments nicht wichtig.

      Unabhängig von der Stiftung, die erstellt wird, müssen Sie alle Abfälle entfernen und Sträucher, Bäume, Gras, alte Wurzeln entwurzeln. Fruchtbarer Boden muss vollständig entfernt werden, indem er um 10-15 cm entfernt wird.Die Plattform wird immer gründlich nivelliertvorstehende Fragmente werden abgeschnitten und Löcher und Löcher werden gefüllt.

        Vor der Markierung des Fundamentes muss die Art des Abwassers gewählt werden. Weder Klärgruben noch noch einfachere Senkgruben sollten in unmittelbarer Nähe zu ausländischen Grundstücken, Stauseen oder Wasserentnahmestellen liegen. Wenn Sie beabsichtigen, das Abwasser in das zentrale Abwassersystem zu leiten, ist die Auswahl eines Badeortes nicht begrenzt.

        Schalungsbandfundamente mit einem Anstieg von 45 cm über dem Graben. Für ihre Herstellung verwenden sie solche Befestigungselemente, die dann leicht entfernt werden können, ohne den gefrorenen Beton zu verformen.

        Rahmen

        Ein großer Teil der Grundbesitzer bevorzugt die Rahmen- und Rahmenschildbäder gegenüber allen anderen. Wenn es richtig gemacht wird, kann das Design die Wärme sehr gut speichern.Unter dem Rahmen Badehaus verstecken oft die Säulenfundamente. Der Rahmen selbst besteht aus einem Paar Riemen und Wandelementen.

        Die Platte wird mit Querabmessungen von 3,8 x 10 oder 3,8 x 14 cm aufgenommen.

        Wenn der Rahmen aus einem Holz zusammengesetzt ist, können Details von 10 x 10, 12 x 12 oder 15 x 15 cm verwendet werden.Die Abdichtung der Wände wird manchmal mit Fliesen und Dachpappe versehen, obwohl diese Materialien bereits altern.

        Es wird empfohlen, Strukturen mit Nägeln oder Schrauben zu befestigen. Die meisten Bauherren machen die Frontverkleidung von der Ecke und montieren sie in einem Kreis. Aber es wird viel sicherer sein, die Umreifung zuerst auf die zwei längsten Seiten und dann auf die gekürzte zu legen.

        Nach Abschluss der Arbeiten und Überprüfung des Ergebnisses mit Hilfe einer Ebene können Sie die Säulen und die obere Verkleidung aufnehmen. Zwischengestelle sind in einem Abstand von 60 cm zueinander angeordnet; Eine Ausnahme gilt nur für Orte, an denen sich Fenster und Türen befinden sollten.

        Die obere und untere Begrenzung der Öffnungen wird mit Hilfe von Schrauben erreicht, die an den vertikalen Teilen angebracht sind. Vor dem Erstellen der oberen Leiste müssen die Racks mit Hilfe von temporären Klammern befestigt werden, die aus unnötigen Elementen bestehen.

        Dach

        Irgendwelche Wände, sei es gerahmt oder von irgendeiner Art, stützen das Dach des Bades.Es ist entweder Giebel oder Single-Slope. Nur gelegentlich über den Saunahäusern kann man die exotische Dachkonstruktion sehen. Selbst der Dachboden ist nicht immer ausgestattet, in vielen Fällen beschränkt auf die Schaffung der Decke unter der Dachpaste.

        Shed Dächer sind vor allem in dem Fall, wenn das Bad in der Nähe des Hauses ist ausgestattet; Ihr Vorteil ist auch die Möglichkeit, die Kosten drastisch zu reduzieren.

        Einzelne Bar
        Giebel

        Zwei Hänge sind weit verbreitet, um Log-Bäder zu decken. Wenn die Hänge hoch genug sind und die Decke richtig ausgearbeitet wurde, ist es leicht, einen Hilfs- oder Wohndachboden in der Unterdachlücke zu organisieren.

        Die Höhe der Skates wird durch die ästhetischen Absichten des Besitzers bestimmt und ob der Dachraum genutzt werden soll oder nicht. Erhöhen Sie den Winkel, verbessern Sie die Sammlung von Niederschlägen. - Gleichzeitig erhöhen sich aber die Montagekosten und das Risiko des Einbruchs schwerer Dachbeschichtungen steigt. Als Stütze des Daches verwenden sie entweder die oberen überlappenden Träger, oder sie sind an der oberen Verkleidung der Kraftplatte befestigt.

        Die zweite Option wird hauptsächlich an den Wänden gefordert von:

        • Ziegelsteine;
        • Schaumbeton;
        • Porenbeton;
        • Asche;
        • Sandstein Beton.

        Um die oberen überlappenden Balken in ein Holzbad zu legen, sind die Ränder strikt auf gleicher Höhe mit Steckdosen ausgestattet. Es ist sorgfältig zu prüfen, ob die vorbereiteten Kerben deutlich auf der horizontalen Linie liegen. Die Ausgabe der Strahlen über die Wände des Bades hinaus ist erlaubt, aber ohne Stützsäulen darf sie nicht mehr als 50 cm betragen.

        Für die Herstellung von Sparren können Sie fabrikfertige Fertigblöcke verwenden oder Teile aus Holz mit einem Durchmesser von mindestens 12 cm selbständig montieren.

        Wände

        Die Gestaltung des Rahmens - nicht die einzige Möglichkeit, die Wände im Bad so zu gestalten, wie es sollte. Es gibt andere Wege, jeder von ihnen hat seine eigenen Feinheiten und mögliche Probleme. Holzkonstruktionen werden oft bevorzugt, da sie "atmungsaktiv" sind und natürliche Belüftung bieten.

        Dies bedeutet nicht, dass auf spezielle Lüftungslösungen verzichtet werden kann.

        Darüber hinaus muss das Holz mit Imprägnierungen, Antiseptika und Flammschutzmitteln fertig werden.

        Die besten Arten sind Fichten- und Kiefernholz. aus den nördlichen Regionen des Landes. Ein guter Ersatz für sie ist Kalk, außerdem ist dieses Material auch billiger als Nadelholz.In jedem Fall sollten Sie den Baum, der viele harzige Taschen enthält, sowie knorriges Material aufgeben.

        Beim Verlegen der Stämme arbeiten, so dass das dicke Ende jedes Baumstammes mit dünn überlappt, umgekehrt. Der ernsthafteste Gegner von natürlichem Holz ist die Ansammlung von Feuchtigkeit in seiner Anordnung.

        Neben dem Ruberoid und Pergamin bietet der Polymerfilm einer speziellen Probe und Aluminiumfolie Schutz vor ihm. Sie werden auf die Isolierung, die Befestigung oder kleine Nägel oder einen Hefter gelegt. Ziegel und Bausteine ​​im Inneren sind mit Schindeln ausgekleidet, und im Abstand von dieser zur Hauptwand ist Hitzeschutz gelegt.

        Partitionen werden in ½ oder ¼ Ziegel hergestellt. Bei der Verlegung des Kellers über die Abdichtung werden Hohlziegel verwendet.

        Clampboard Verkleidung
        Hohlziegel

        Ziegelwände erfordern auf jeden Fall eine Isolierung. Weit verbreitete Platte isoliert Materialien. Es gibt keine besonderen Unterschiede zwischen ihnen, abgesehen von kleinen Nuancen. Wichtig: Von der Wärmeschicht zur Außenwand muss der Luftspalt verlassen werden.

        Die Abdichtung auf dem Ziegel wird durch Malen oder Kleben hergestellt.Im ersten Fall werden Bitumenmastix oder Grundierungen spezieller Zusammensetzung verwendet, die mit antiseptischen Komponenten verstärkt sind.

        Beim Verputzen aufgetragener Lösungen einer Mischung aus Kalk und Zement unter Zusatz von Bimsstein, Blähton und anderen Leichtfüllstoffen. Eine Putzschicht kann auf die äußere Oberfläche aufgebracht werden, aber es muss auch das Futter verwendet werden. Diese Technik gewährleistet die höchste thermische Stabilität.

        Im Inneren aktiv verwendet Kork aus Holz, in der Verlegung selbst eingebettet.

        Diese Kappen sind viel einfacher und einfacher, die Latten als direkt an den Ziegel zu befestigen.

        Gips
        Kork aus Holz

        Paul

        Die Ausrüstung des Fußbodenbodens in den Bädern ist nicht weniger verantwortlich, als die Arbeit mit den Wänden und der Decke. Diese Strukturen müssen stabile Feuchtigkeit tolerieren und Sicherheit beim Betreten gewährleisten. Oft sind sie eines der Elemente des Abwassersystems, und wenn das Bad nur während der warmen Zeit betrieben wird, sollten sie auch Frost vertragen.

        Es ist schwieriger und länger, ein Fundament mit Beton zu füllen als Holz zu verlegen. Die Lebensdauer der Beschichtung übersteigt jedoch 50 Jahre.

        Beton
        Lagi

        Wenn jedoch Holz verwendet wird, müssen sie in 7-9 Jahren geändert werden.Sie können natürlich stärkere Hölzer verwenden - nur die Kosten sind fast gleich wie bei Beton und Sie werden immer noch nicht in der Lage sein, seine Eigenschaften zu erreichen.

        Bei der Wahl einer Bodenkonstruktion sollte sofort zwischen durchlässigen und nicht durchlässigen Varianten unterschieden werden. Der erste Typ wird empfohlen, wenn es möglich ist, Abflüsse direkt in die Entwässerungsgrube zu leiten.versteckt unter der Basis des Bades.

        Wasserdurchlässig
        Wasserdicht

        Daher sind sie ausgestattet mit:

        • Badehäuser in den südlichen Regionen;
        • oder saisonal verwendet werden;
        • oder verlassen zu kalten Gebäuden in Privathäusern (im Winter werden sie etwa einmal pro Woche geheizt).

        Um einen Boden auszustatten, der überhaupt nicht undicht wird, wird es viel mehr Anstrengung erfordern. Der Bodenbelag der Stämme wird aus einem gerillten Material (streng Lärche oder Kiefer) gebildet und sorgt dafür, dass auch unbedeutende Lücken nicht erhalten bleiben. Unter dieser Schicht befindet sich immer ein rauher Boden. Manchmal wird seine zusätzliche Erwärmung praktiziert. Die Neigung der Bodendielen drängt auf jeden Fall bis zu dem Punkt, an dem sich die Abflüsse sammeln und in den Abwassergraben oder in die Klärgrube fließen.

        Grober Boden

        Vor dem Betonieren wird der Boden verdichtet und verfestigt, und die erste Mörtelschicht sollte 50 mm betragen.Dann wird Wärmeisolierung eingesetzt, hauptsächlich Filz oder Blähton; darüber befindet sich eine Verstärkungsschicht mit einem Netz Kaninchen und Nivellierschicht. Nur dann können Sie eine Deckschicht auftragen. Die Steigungsrate ist die gleiche wie für Holzprodukte - es ist 10 Grad.

        Die Kenntnis dieser einfachen Anforderungen ermöglicht Ihnen, viele Probleme während des Badbetriebs zu vermeiden.

        Betongießen
        Isolierung mit Blähton
        Mit Mesh-Netz
        Frontabdeckung

        Belüftung

        Egal wie solide und solide die Konstruktion ist, welche Art von Boden- und Wanddekoration gewählt wird - all das kann in wenigen Monaten nutzlos werden. Um solche negativen Entwicklungen zu vermeiden, hilft eine durchdachte Belüftung.

        Kohlendioxid und Wasserdampf sammeln sich ständig in der Badluft an und der Sauerstoffgehalt nimmt allmählich ab. Daher ist die Anpassung des Luftaustauschs mit der äußeren Umgebung auch ein Anliegen für Ihre eigene Gesundheit und Sicherheit.

        Gleichzeitig wird durch eine gut konzipierte Lüftung der thermische Zustand nicht gestört und führt nicht zu einem zu starken Wärmeverlust.

        Der Abfluss der Abluft nach außen erfolgt durch den Kanal, der diagonal vom Einlass zu installieren ist. Es ist notwendig, nicht nur das Dampfbad, sondern auch alle anderen Räume des Bades zu belüften..

        Spezielle Gitter an den Luftkanälen helfen, das Eindringen von Nagetieren und Insekten zu vermeiden. Der Ofen ist so aufgestellt, dass der Boden über dem Gebläse steht.: Mit dieser Technik können Sie es als Kapuze verwenden. Der Unterbodenbelüftungsdurchlass wird auf dem Metallblech platziert, dann wird das Risiko der Entzündung auf Null reduziert.

        Äußeres Ende

        Das Bad innen und außen zu beenden, ist für die Eigentümer gleichermaßen wichtig. Aber für Außenstehende ist in erster Linie immer noch das Äußere. Es ist ratsam, sich auf das Designkonzept eines Bades und Ferienhauses (Landhaus) als Ganzes zu einigen.

        Am häufigsten für den Außenbereich verwendet:

        • Futter;
        • verschiedene Arten von Fliesen;
        • Abstellgleis
        Schindel
        Fassadenfliesen
        Abstellgleis

        Wichtig: Gehackte Gebäude sind nicht erwünscht, um etwas zu schließen.

        Ihre Ästhetik ist autark, sie kann sogar eine architektonische Dominante auf der Website werden. Stark unerwünschte Kunststoffe und andere hochmoderne Materialien. Auch wenn der gesamte Raum konstruktivistisch gestaltet ist, lassen Sie ihn zumindest an einer Ecke frei von hochmodernen Köstlichkeiten bleiben.

        Der ursprüngliche Zug: "ein Bad zu machen, das nicht als Bad erkannt wird" - eine Imitation eines Wohnhauses oder anderer Strukturen lässt Sie einen angenehmen Eindruck machen. Wenn die Oberfläche matt ist (z. B. vorgefertigte Blöcke), ist eine hinterlüftete Fassade von unschätzbarem Wert.

        Gehacktes Holzbad

        Metallverkleidungen entzünden sich nicht und werden zu Recht als eine der besten Lösungen für kleine Bäder angesehen. Die derzeit im Handel erhältlichen Platten können in einer Vielzahl von Farben lackiert werden, aber die meisten Verbraucher bevorzugen Creme- und Schokoladenfarben.

        Man muss sofort an die Montage der Paneele denken, denn die Fehler können zu einer schnellen Beschädigung des Materials führen.

        Dark Abstellgleis im Sommer ist zu heiß in der Sonne. Die Imitation einer Bar ist teurer als sie, aber gleichzeitig wird sie den anspruchsvollsten ästhetischen Geschmack voll befriedigen.

        Metall Abstellgleis
        Holzimitat

          Es ist nützlich, Holz zu imitieren, weil eine solche Lösung:

          • 100% umweltfreundlich;
          • montiert ohne Probleme;
          • gekennzeichnet durch eine große Vielfalt an Größen;
          • in der Lage, seit 20 Jahren zu arbeiten, die ganze Zeit eine gute Isolierung zur Verfügung stellend.

          Probleme können mit der Entflammbarkeit einer solchen Ausrüstung und ihrer Anfälligkeit für Insekten zusammenhängen.

          Eine spezielle Verarbeitung löst sie weitgehend, erhöht jedoch die Kosten für den Bau oder die Reparatur. Es empfiehlt sich, die benötigte Materialmenge vor dem Kauf zu berechnen, da sonst unnötige Kosten entstehen. Sie können nur die glattesten Wände auf einer hölzernen oder Metallleiste schneiden.

          Die Holzkiste sollte ebenfalls alle notwendigen vorbeugenden Behandlungen erhalten.

          Innenarchitektur

          Der Bau des Gebäudes und seine Außendekoration bedeutet nicht, dass alle Arbeiten abgeschlossen sind. Die Inneneinrichtung - und in jedem der Räume nach eigenen Regeln - ist von größter Wichtigkeit. Sie müssen nicht mit originellen Stilen experimentieren oder versuchen, Ihren eigenen Ansatz zu erfinden.

          Tadelloser, gewürzter Klassiker ist viel besser für eine gleichmäßige Ruhe geeignet. Innenwände und andere Oberflächen sollten nicht zu helle Farbflecken, schreiende geometrische Formen oder Oberflächen von radikal neuen Materialien haben.

          Wenn man von innen mit Holz konfrontiert, ist die Verwendung einer Rasse eine unabdingbare Voraussetzung, sonst ist die Vielfalt unangenehm.Korrekter ist es, mit traditionellen Accessoires Akzente zu setzen - Besen, Samoware, Hüte und zurückhaltende Möbelstücke. Das Beste von allem, alle dekorativen Elemente sehen im Licht von weichen gelben Lampen aus..

          Der Ruheraum ist meist mit Schindeln genäht; Lampen sind sowohl an der Decke als auch an den Wänden montiert. Die Böden sind überwiegend mit Fliesen gepflastert, um eine einfache Wartung und die äußere Attraktivität zu gewährleisten.

          Ein modernes Unterhaltungs- und elektronisches Gerät wird zu einer Verletzung des klassischen Ansatzes. Aber das ist ein Fehler, der selbst im klassischsten Innenraum durchaus zulässig ist.

          Die größte Aufmerksamkeit sollte der Dekoration des Dampfbades gewidmet werden, Das Hauptmaterial in diesem Fall wird Auskleidung von Holz an den Wänden und Fliesen auf dem Boden. Die Treue zur Tradition drückt sich in einem Ofen aus, der natürlich und einfach aussieht. Im Extremfall können Sie das Design von Naturstein oder individuellen Einsätzen aus feuerfestem Glas ausprobieren.

          Eine leere Holztür zum Dampfabteil ist eine traditionelle Bewegung; Zugeständnisse an moderne Designprinzipien können auf Kosten der Glastür gemacht werden.Dieser Schritt ist unter dem Gesichtspunkt der Sicherheit definitiv besser (es wird einfacher sein zu kontrollieren, was im Inneren vor sich geht, und es ist einfacher, herauszukommen). Die Öffnung nach außen ist deutlich korrekter als nach innen, da sie keinen freien Raum im Dampfbad aufnimmt.

          Es wird nicht empfohlen, Kieferbretter für die Dekoration zu verwenden, es ist zu leicht, sich darüber zu verbrennen.

          Stil

          Das Design ist untrennbar mit dem Stil verbunden - und es gibt guten Grund zu glauben, dass das russische Landbad, auch wenn es auf der gegenwärtigen Ebene nachgeahmt wird, für mindestens ein paar Jahrhunderte kein Ding der Vergangenheit sein wird. Die Sättigung des Innenraums mit zusätzlichen Funktionen ist natürlich nicht spurlos verlaufen. Eine unbedeutende Anzahl von Menschen ist damit einverstanden, "auf die schwarze Art" zu ertrinken und nicht einmal ein separates Dampfbad oder einen Ruheraum zu haben. Umso wichtiger ist es, jedes der Gebäude im gleichen traditionellen Stil zu erhalten.

          Demonstrieren Sie das Folgende wird ihm helfen:

          • rohes, ungeschnittenes oder geschnitztes Holz;
          • geschmiedete Teile;
          • hausgemachte Einrichtung.

          Der Ruheraum für das Bad im russischen Stil enthält viele hochwertige Textilien. Es ist ratsam, die Böden nicht zu streichen, aber nur in hydrophoben Mitteln einweichen.

          Die Rolle der dekorativen Zusätze - hölzerne Löffel und Bastschuhe, thematische Malerei, betonte antike Vorhänge ist groß. Neben Fachgeschäften finden Sie geeignete Angebote in ländlichen Märkten und an spezialisierten Standorten. Der beste und angenehmste Weg, um die gewünschte Inneneinrichtung zu erhalten, ist eine handgefertigte Dekoration.

          Es ist nicht notwendig, Ihre Design-Suche nur auf den russischen klassischen Ansatz zu beschränken. Country-Stil ist jetzt nicht weniger beliebt. - Es ist für den Zweckbau von Holzbauten konzipiert. Der einfachste Subtyp des Landes erschien in den Vereinigten Staaten, aber das Französisch ist etwas eleganter und eleganter.

          Die Hauptanforderung, ungeachtet des nationalen Formats, ist der Gebrauch in der Dekoration und in den Möbeln des hellen Holzes.

          Zeichnung geschnitzte Muster und Polieren machen die Möbel attraktiver als im russischen Stil - aber Sie können es nur in den Wartesaal und den Ruheräumen setzen. Gerichte, die den Anforderungen des Landes entsprechen, immer in leuchtenden Farben, hauptsächlich weiß-blau oder hellgelb lackiert. Bilder von pastoralen Landschaften und bunten Naturstoffen sind ebenfalls eine gute Idee.Um das Ensemble zu vervollständigen, werden Balken an der Decke und am Holzsteg oder Fliesenboden helfen.

            Im östlichen Bad Der Designansatz ist etwas anders.

            Er meint schon:

            • helle und satte Farben;
            • schick aussehende Textilien;
            • streng passend in Spirit Möbel;
            • exotische Designerartikel.

            Mosaik trägt dazu bei, die Attraktivität des Innenraums im orientalischen Stil zu erhöhen.

            Wenn Sie das Bad nicht komplett umbauen möchten, können Sie es nicht im Dampfbad, sondern im Waschraum oder am Pool platzieren. Das Erholungsgebiet wird zu einer Wasserpfeife mit leichten Strichen. Wenn dies nicht notwendig ist, fügen Sie einen Tisch mit schön gebogenen Beinen hinzu. Sitze sind auf jeden Fall mit Mosaiken verziert, da sie vom Kanon dringend benötigt werden.

            Kein Luxus oder Pomp kann in der skandinavischen Badewanne gesehen werden.. Es ist nicht notwendig, es für die Sauna zu benutzen - in gewöhnlichen Waschhäusern sieht eine solche Lösung auch attraktiv aus. Die Hauptanforderung ist eine flexible Kombination von klassischen Proportionen und betont äußerer Rauheit.

            Bevorzugt werden helle Töne, ein Übermaß an Designdetails ist völlig inakzeptabel.. Aber gleichzeitig wird es keine besondere Sünde gegen die Kanoniker sein, auf schrillen Objekten Akzente zu setzen.

            Popularitätsgewinne entwerfen Bad im japanischen Stil. Sein Prinzip ist, das Dampfbad als solches auszuschließen. Furaco-Fass hilft, es zu ersetzen, wo heißes Wasser gegossen wird, sowie ein anderes Fass gefüllt mit kleinen Kieselsteinen oder Sägemehl. Um die Wirkung von "Solid Wash" zu verbessern, verwenden Sie aromatische Komponenten. Die japanische Herangehensweise an das Interieur wird durch Produkte aus Bambus ergänzt.

            Fass furaco

            Manchmal (aber relativ selten) wird moderner Stil bei der Gestaltung von Badeplätzen verwendet.. Es kann kurz wie folgt beschrieben werden: all das widerspricht dem Geist der Country-Musik. Die Grundidee besteht darin, die gerade klassische Konfiguration durch gekrümmte, sogar seltsam aussehende Formen zu ersetzen. Die Kombination einer Vielzahl von Einrichtungsgegenständen und Oberflächen ist willkommen.

            Das modernistische Umfeld ist geradezu perfekt für gewagte und radikale Experimente. Es empfiehlt sich, die Ruheräume mit Leder-, Glas- und Chromteilen auszustatten.

            Möbel

            Wenn man über dekorative Objekte und Stil spricht, ist es unmöglich, einen sehr wichtigen Aspekt nicht zu berühren - welche Möbel sollten besser in die Badewanne gelegt werden. Im Dampfbad sollten Sie unbedingt zwei Vordächer und eine Bank ausstatten.Ihre eigene Bank oder Ihr Geschäft sollte im Ruheraum installiert werden (für sie ist das das Nötigste). Die einfachste Möglichkeit ist akzeptabel, wenn das Bad erst nach dem Waschen zum Leben erwacht und dann sofort nach Hause geht.

            Aber für eine gründlichere Ruhe sollten Sie sich ein passendes Sofa anschauen.

            Die Überdachung aus Holz ist leicht von Hand zu machen. Hauptsache ist es, die gewünschte Form, Länge und Art des Holzes klar zu verstehen. Dieses Design kann aus Stufen an einem bestimmten Ort bestehen oder ein Regal sein, das sich entlang des Umfangs des Raums erstreckt.

            Der obere Baldachin wird empfohlen, an der Wand und der Boden an den Boden zu montieren. Bei der Herstellung von Sitzen werden sowohl polierte Platten als auch Futter verwendet.

            Getrennte Blöcke sind um 100-150 cm voneinander getrennt, um den Wasserfluss zu erleichtern und die Trocknung des Sitzes zu beschleunigen. Holzstifte sind besser als Nägel, wenn man an Badmöbeln arbeitet, weil man sich nicht verbrennen kann.

            Wenn Sie mindestens regelmäßig in einem Bad an einem Tisch sitzen möchten, ist der beste Ort, um es zu platzieren, ein Warteraum.

            Jedes Brett vor der Arbeit wird gründlich poliert, sogar mit Schleifpapier. Extreme Teile, Ecken und Kantenbereiche werden so gründlich wie möglich behandelt.

            Holzdübel

            Professionelle Möbelhersteller glauben das Badesets werden am besten aus hochwertigen Eichenkieseln hergestellt. Er sieht aristokratisch und elegant aus, schafft den wohlwollendsten Eindruck. Gleichzeitig sind die aus solchem ​​Material hergestellten Streifen jedoch sehr zerbrechlich und können bei unvorsichtiger Handhabung reißen.

            Espenbaum ist viel praktischerEs ist relativ preiswert und kann im ästhetischsten Innenraum verwendet werden. Der Nachteil ist die Neigung zu schneller Trocknung und das Auftreten von mechanischen Verformungen.

            Stieleiche
            Aspen

            Erle ist auch zu Hause gut verarbeitet.und ermöglicht Ihnen sogar, ein Muster wie ein teureres Holz zu erstellen. Erfahrene Leute prüfen sorgfältig, wie gut das Erlenmassiv getrocknet ist und ob es zu viele Knoten gibt. In dieser Rasse treten solche Probleme häufig auf.

            Die Verwendung von MDF und Spanplatten ist nicht praktikabel. Selbst die Billigkeit der daraus hergestellten Strukturen kann keine Entschuldigung sein.

            Erle
            MDF
            Spanplatte

            Tipps

            Die wichtigste Schlussfolgerung, die während des Studiums der Bewertungen von Badehaus-Besitzer gemacht werden kann, ist, dass, wenn Sie sie entwerfen, sollten Sie nicht nach einer High-Speed-Mode jagen oder versuchen, das Interieur, Aussehen unter dem Status anzupassen.Es ist notwendig zu überlegen, was für Sie persönlich erforderlich ist, vor allem nach Ihrem Geschmack und Ihrer Herangehensweise. Natürlich, wenn sie das Bad nicht gefährlich machen.

            Im Dampfraum gibt es keine besondere Auswahl an Materialien, aber es ist durchaus möglich, mit geometrischen Formen von Strukturen und mit versteckter Beleuchtung zu experimentieren.

            Der Freizeitraum wird profitieren, wenn Sie den Grill ergänzen.

            Für viele Menschen entsteht selbst der Gedanke nicht - und das ist völlig umsonst; Wer wagt es, ein solches Element auszuprobieren, lehnt es nie ab. Wenn du einen Raum machst, musst du so weit wie möglich weg von den üblichen Büro- oder Massenunterkünften sein. Selbst ein eklektisches Design ist erlaubt., vorausgesetzt, dass das Thema, das zum Veranstalter wird, klar hervorgehoben wird. Meistens ist es ein großformatiger Fernseher.

            Vernachlässigen Sie nicht auch die Organisation von Raum auf dem Dachboden.

            Ein Teil der Bäder wird traditionell ohne eine Toilette gebaut, aber jedes Jahr gibt es weniger davon. Selbst die Anhänger des altrussischen Stils oder der gotischen Architektur werden so ein komfortables Element nicht aufgeben.

            Eine sinnvolle Ergänzung zur Badefreizeit ist die Nutzung von Schwimmbecken.Das ist bei weitem nicht nur "ein Behälter mit sauberem Wasser einer bestimmten Temperatur". Schließlich ist es ziemlich günstig, einen Swimmingpool mit beleuchteten anspruchsvollen geometrischen Formen auszustatten.

            Wenn das Gebäude groß ist, können Sie direkt vor dem Dampfbad einen Raum zur Freizeitgestaltung einrichten. Wenn nicht genügend Platz vorhanden ist, wird ein Warteraum dafür renoviert.

            Die Beleuchtung erfolgt in zwei Ebenen: Die zentralen Lichtquellen sorgen für den Hauptstrom, während die lokalen Akzente setzen.

            In der Mitte des Raumes sollte ein gesättigtes Licht sein, und an den Rändern ist es besser entspannt zu sein.

            Wenn geplant ist, dass mehrere Personen gleichzeitig in das Bad gehen, wird das Ecksofa zum optimalen Ausweg für einen kleinen Raum.

            Schöne Beispiele

            Ein Bad kann eigentlich ein Kunstwerk sein, im Prinzip kann man niemanden gleichgültig lassen. Hier ist eine der Varianten des Dampfbades, innen gepolstert und sorgfältig gestaltet.

            Eine der möglichen Arten von Bädern außerhalb (von der Fassade). Stark vorgeschobene Überdachungen sind zunächst überraschend. Aber dann wird klar, dass dies nur ein origineller Zug ist, und im Allgemeinen ist das ganze Konzept auf maximale Originalität aufgebaut.Was sind zumindest verdrehte Säulen von offenen Dachstützen, die sich harmonisch mit den gebogenen Holzoberflächen der Fassadenwand verbinden.

            Auf welche Art von Bad zu wählen, finden Sie im nächsten Video.

            Kommentare
             Kommentarautor

            Die Küche

            Kleiderschrank

            Wohnzimmer