Ziegelbad: Vor- und Nachteile

Bad - ist ein unverzichtbares Werkzeug zur Entspannung nach einem anstrengenden Tag, ein großartiger Ort, um Freunde zu treffen. Es ist bequem, die Dienste einer Baufirma zu benutzen, aber Sie müssen eine große Menge bezahlen.

Viele Gärtner bevorzugen es, ein Bad mit ihren eigenen Händen zu bauen.

Vor- und Nachteile

Traditionell wurden russische Bäder aus Holz gebaut. Heutzutage werden für solche Zwecke öfter feuerbeständige Ziegel verwendet, was sicherer und nicht weniger umweltfreundlich ist. Dieses Baumaterial ist einfach zu bedienen und ermöglicht es Ihnen, ein Sauna-Projekt von beliebiger Komplexität zum Leben zu erwecken. Bevor mit dem Bau eines Ziegelbades begonnen wird, muss man sich mit den Vor- und Nachteilen des Materials und seiner Struktur vertraut machen.

Feuerfester Ziegel ist teurer als Holz, hat aber viele Vorteile, nämlich:

  • hohes Maß an Brandschutz - der Ziegel übertrifft bei der Feuerwiderstandsfähigkeit das Holz weit. Der feuerbeständige Ziegel widersteht einem Feuer perfekt, was man über Holz nicht sagen kann;
  • Haltbarkeit - ein aus Ziegelsteinen gebautes Bad kann mehr als 50 Jahre halten;
  • Umweltfreundlichkeit - bei der Herstellung von Ziegeln werden natürliche, natürliche Rohstoffe verwendet, das Material stellt keine Gefahr für die menschliche Gesundheit dar;
  • einfache Bedienung - erfordert keine besondere Pflege für die Ziegelfassade des Bades;
  • Die Verwendung von Ziegeln erlaubt es, Bäder in verschiedenen Formen und Größen zu bauen, die selbst die komplexesten architektonischen Projekte verkörpern und verschiedene Arten von Innen- und Außendekoration verwenden. Die Stärke des Gebäudes ermöglicht es Ihnen, mit dem inneren Layout und der Form des Daches zu experimentieren.

    Die Nachteile von Ziegelbädern sind wie folgt:

    • hohe Wärmekapazität - es wird viel länger dauern, um ein gemauertes Dampfbad zu beheizen als eine ähnliche Holzkonstruktion;
    • erhöhte Hygroskopizität - um die Bildung von Feuchtigkeit im Raum zu vermeiden, ist es notwendig, einen Komplex von Hydro-, Dampf- und Wärmeisolierungsarbeiten durchzuführen;
    • die Kosten des Baumaterials - feuerbeständiger Ziegel ist ziemlich teures Material, deshalb wird die Konstruktion eines Bades viel kosten;
    • die Notwendigkeit, eine Band-, Tiefgründungs- und Abschlussarbeiten zu bauen;
    • Um Wärmeeinsparungen zu gewährleisten, wird eine große Wandstärke benötigt.

    Arten von Designs

    Beim Bau eines Ziegelbades können Sie eine Vielzahl von Formen und Designs wählen. Die Qualität des Bades hängt von der richtigen internen Planung ab. Bereit Projekte werden helfen, nicht zu täuschen. Sie können die Struktur exakt mit den übergebenen Zeichnungen erstellen oder das Projekt als Idee verwenden und entsprechend Ihren persönlichen Präferenzen modifizieren.

    Es lohnt sich, einige der beliebtesten Optionen zu betrachten, eine kurze Anleitung, wie man sie erstellt.

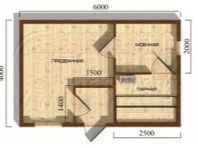
    Einstöckiges 6x4m Bad mit Terrasse

    Dieses Projekt setzt das Vorhandensein solcher drei Räume voraus wie:

    • Ruheraum;
    • Waschraum;
    • Dampfbad.

    Das Layout des Bades kann durch Austausch der Türen geändert werden. Es sollte beachtet werden, dass Der direkte Zugang zum Aufenthaltsraum ist keine gute Option.. Tatsache ist, dass wenn du die Tür öffnest, die Kälte hineingeht. Die Terrasse oder der angeschlossene Vorraum hilft, den Mangel zu beseitigen.

    Projekte Bad mit Terrassen sind sehr beliebt. Terrasse kann nach eigenem Ermessen eingebaut werden, stellte ein bequemes Möbel für Treffen mit Freunden, legen Sie das Billardzimmer.

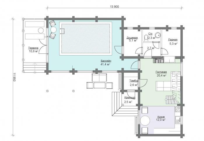
    Eckbäder

    Das Hauptmerkmal der Bäder vom eckigen Typ ist ihre nicht ganz Standardform, die schön und stilvoll aussieht. Eine solche Variante des Gebäudes ist durch die Lage des Dampfbades senkrecht zum Rest des Gebäudes gekennzeichnet.

    Die Hauptvorteile von Eckbädern sind wie folgt:

    • Der Standort des Kaminofens für ein Dampfbad im zentralen Teil des Gebäudes sorgt für die gleichzeitige Beheizung aller Räume und hilft, den Wärmeverlust zu reduzieren.
    • Eckbäder sparen Platz auf einem Grundstück. Normalerweise sind sie in der Ecke der Website platziert. Sie sind ideal für den Bau in Problembereichen geeignet, wo mit Hilfe dieser Struktur die Kommunikation oder z. B. ein großer Baum "umgangen" werden kann;
    • Wenn Sie möchten, können Sie ein Eckbad mit einem Pool oder einer Schrift machen. Die Durchführung eines solchen Projekts erfordert erhebliche Materialkosten und das Vorhandensein einer großen Fläche im Bau;
    • Die Form der Struktur ermöglicht es Ihnen, eine Ecke Dampfraum an das Haus oder Sommerküche zu befestigen. Eine Vielzahl von Optionen ermöglicht Ihnen, ein Projekt zu wählen, das auf Ihren Bedürfnissen und Fähigkeiten, der Form des Landes, basiert.

    Welches Material wählen?

    Im modernen Markt können Sie verschiedene Arten von Ziegeln finden:

    • Rote Keramik hohl und korpulent. Keramikziegel können entweder verblendet oder gemauert sein. Der Vollziegel ist ein starkes, langlebiges und frostbeständiges Material. Es wird für Mauerwerk, Keller, Lüftungskanäle und Schornsteine ​​verwendet. Der Nachteil ist die hohe Wärmeleitfähigkeit, durch die die Außenwände in zwei Reihen angeordnet sind. Vollziegel sind ein schweres Material, deshalb muss das Fundament ziemlich stark sein, um dem Gewicht der Wände zu widerstehen. Die Kosten für das Material sind hoch, da die Produktion viele Rohstoffe benötigt.

    Hohlziegel haben ein geringes Gewicht und gute Wärmedämmeigenschaften. Es ist nicht geeignet zum Verlegen von Sockeln, Kaminen.

    Hollow
    Vollmundig
    • Poröse Keramik. Bei der Herstellung wird Tonmischung unter Zugabe von Sägemehl verwendet. Während des Brennens verbrennt das Sägemehl und bildet Luftporen im Material, die das Eindringen von Luft verhindern. Dies erreicht eine Wärmeleitfähigkeit in der Nähe des Baumes. Ein solches Baumaterial hat ein geringes Gewicht, Haltbarkeit, gute Wärme- und Schalldämmeigenschaften.
    • Weißes Silikat. Dieses haltbare Material hat gute Wärmedämmeigenschaften, verträgt jedoch keine Temperaturschwankungen, kollabiert unter Einwirkung von Feuchtigkeit.
    • Schamotte Schamotte. Material mit einer körnigen Struktur wird durch Sintern von Schamottpulver mit gemahlenem Schamott hergestellt. Es gilt nicht für Mauerwerk. Es wird für den Bau von Strukturen verwendet, die hohen Temperaturen standhalten müssen - Öfen und Kamine. Der feuerfeste Ziegelstein speichert Wärme, hält die Ofentemperatur lange Zeit und gibt beim Abkühlen Wärme ab.

    DIY-Montage

    Zeichnungen

    Bevor mit dem Bau des Bades begonnen wird, ist es notwendig, einen Entwurf (Entwurf) der zukünftigen Konstruktion korrekt zu erstellen. Es ist notwendig, alle Merkmale des Gebäudes zu berücksichtigen: das Aussehen, die Anzahl und Größe der Räume, das Schaltschema der Kommunikation, die Gewichtsverteilung der Gebäude, die Berechnung der Menge der benötigten Materialien. Die einfachsten Projekte von kleinen Bädern bestehen aus einem Raum, in dem sich ein Dampfbad, ein Waschraum und ein Ankleidezimmer befinden.

    Diese Option ist jedoch nicht sehr praktisch, daher bestehen die Gebäude in den meisten Zeichnungen aus folgenden Räumen:

    • Dampfbad. Es ist wichtig zu berücksichtigen, dass sich die Tür nach den Brandschutzvorschriften nach außen öffnet. Es wird empfohlen, dass die Höhe vom Boden bis zur Decke im Dampfbad nicht mehr als 2,5 m beträgt, so dass Sie weniger Material, Zeit und Mühe aufwenden müssen, um ein Bad zu bauen und die Räume auf die erforderliche Temperatur zu erhitzen.
    • Lounge. Gewöhnlich ist ein Tisch, bequeme Möbel darin installiert, so dass Sie sich hinsetzen können, einen Snack nehmen und plaudern können;
    • Wartezimmer. Es kann auch als Garderobe verwendet werden, indem Kleiderschränke und Kleiderbügel installiert werden;
    • Waschen. Es ist eine Dusche oder ein Pool.

    Für die Entwicklung der Zeichnung des Gebäudes können Sie sich an die Designorganisation wenden. Spezialisten auf dem Gebiet des Designs werden kompetent ein Projekt unter Berücksichtigung der Wünsche des Kunden, der Anforderungen der Gesetzgebung im Bereich der Bau- und Brandschutzvorschriften erstellen.

    Um zu sparen, können Sie die vorbereiteten Projekte von Ziegelbädern nutzen, die in diesem Artikel zur Verfügung gestellt werden.

    Stiftung

    Wenn Sie ein zukünftiges Projekt eines zukünftigen Bades haben, können Sie mit dem Bau der Stiftung fortfahren. Da die Ziegelstruktur ziemlich schwer ist, muss das Fundament stark genug sein, um dem Gewicht der Struktur zu widerstehen.Die beste Wahl ist eine Streifenfundament.

    Der Gründungsaufbau besteht aus folgenden Schritten:

    • Vorbereitung und Räumung eines Geländes aus verschiedenen Abfällen, Steinen, unerwünschter Vegetation und anderem;
    • Markierung der zukünftigen Struktur entsprechend dem Projekt. Heringe sind entlang der Wände und in den Ecken platziert, zwischen denen ein starker Faden gezogen wird;
    • Grabenaushub (Tiefe 0,3-0,8 m, Breite 25-40 cm). Es ist wichtig zu berücksichtigen, dass das Fundament mindestens einen Meter über dem Grundwasserspiegel beginnen sollte;
    • eine Sandschicht (10-20 cm) wird am Boden des Grabens gegossen, mit Wasser befeuchtet und sorgfältig gestampft;
    • über der Sandschicht lag eine Trümmerschicht, angefeuchtet und fest gestampft;
    • Auf das resultierende Kissen 1-2 Schichten wasserabweisendes Material geben. Dachmaterial oder Geotextilien werden am häufigsten verwendet;
    • Installation von Schalungsplatten. Es sollte 30-60 cm über dem Boden aufsteigen;
    • nach innen ist eine verstärkte Basis von Metallstäben mit einem Durchmesser von 1,2-1,6 cm angebracht, die Reihen sind durch festen Draht miteinander verbunden;
    • Achten Sie darauf, die inneren Teile der Schalung vorher zu befeuchten;
    • Zementbetonmörtel wird in die resultierende Struktur gegossen.Es kann mit eigenen Händen mit gesiebtem Fluss- oder Steinbruch-Sand, feinem zerkleinerten Stein, Zement und Wasser gemacht werden;
    • Die Schalung wird normalerweise in 5-14 Tagen entfernt, abhängig von der Lufttemperatur. Um Verformungen in den ersten Tagen zu vermeiden, sollte die Basis 3-4 mal täglich mit Wasser gegossen werden. Um das Fundament vor dem Ausfallen von Ton und Schutt zu schützen, wird ein Blindbereich von 1 m Breite gegossen, der nach 28 Tagen zu der gewünschten Festigkeit aushärtet.

    Achten Sie darauf, im Fundament Löcher mit 8-12 cm Durchmesser zu machen, und bauen Sie ein separates Fundament für den Ofen, wenn Sie das Heizgerät verwenden möchten.

    In Anbetracht dessen, dass Beton in der Lage ist, Feuchtigkeit gut zu absorbieren, wird empfohlen, den oberirdischen Teil sorgfältig mit speziellen Abdichtungsmischungen zu behandeln, bevor mit dem Verlegen der Wände begonnen wird. In der Phase des Fundamentaufbaus ist es notwendig, die Verkabelung von Wasserversorgungs- und Abwassersystemen vorzusehen. Strom und Gas können später installiert werden.

    Belüftungslöcher
    Das Fundament unter dem Ofen

    Wände

    Nach Abschluss der Imprägnierung des Fundaments können Sie mit dem Bau von Wänden fortfahren. Das am häufigsten verwendete Einzelligationssystem, da es einfach zu bedienen ist,es kann leicht alleine gebaut werden. Dieses System besteht aus dem Wechsel von Löffel und verbundenen Reihen von Ziegeln. Eine Löffelreihe ist eine Reihe von Ziegeln, die mit der Seite entlang der Wand gelegt werden, und die Reihe wird mit den Enden zur Außenseite der Wand gelegt.

    Es gibt drei Arten von gemauerten Ziegelwänden, wie zum Beispiel:

    • Massiv - Ziegelstapel in zwei Reihen ohne Lücke zwischen den Reihen. Es ist haltbarer;
    • mit einem Lüftungsspalt von 40-60 mm;
    • leicht Dieser Typ besteht aus zwei Wänden, zwischen denen die Isolierung aufgefüllt wird (Blähton oder Feinschlacke).
    Solide
    Mit Lüftungsspalt
    Leichtgewicht

    Leichtes Mauerwerk wird häufiger verwendet, da es Ihnen ermöglicht, den Druck auf das Fundament zu reduzieren und Baumaterial zu sparen. Unabhängig von der Art des Mauerwerks sollten Wände von den Ecken errichtet werden. Zunächst ist es notwendig, sechs Reihen von Ziegeln auf der Lösung in den Ecken zu legen. Entlang jeder Reihe müssen Sie die Schnur halten. Sie sind mit Nägeln umwickelt, die in den Nähten zwischen den Ziegeln in einem Abstand von 3-4 mm von der vertikalen Reihe eingefügt sind. Dies bestimmt die Ebenheit des Mauerwerks. Verwenden Sie für den gleichen Zweck die Konstruktionsebene und das Lot.

    Es wird empfohlen, das Fundament des Bades aus Massiv zu bauen, und die Wände selbst sollten aus Hohlziegeln bestehen. Während der Verlegung müssen Sie alles schnell erledigen, damit der Zementmörtel nicht vorzeitig greift. Bei der Herstellung von Bauarbeiten im Sommer muss der Ziegel zunächst mit Wasser befeuchtet werden. Die Dicke der Zementschicht sollte 2-3 cm betragen.

      Es gibt verschiedene Varianten des kontinuierlichen Mauerwerks, darunter:

      • "Einzelauftrag" - der ständige Wechsel der Stumpf- und Löffel-Serie;
      • "Mehrfachbestellung" - Tychkovy Reihen durchlaufen 5-6 Löffelreihen.

      Bei der Verlegung von Endreihen ist es erforderlich, die Lösung mit einer Einkerbung von 10 mm beim Füllen der Nähte und von 30 bis 35 mm beim Legen der Einöde zu versehen. Wenn es Ziegel mit unterschiedlichen Spänen gibt, dann können sie mit Ausnahme der Ecken und Stützzonen für die Verlegung von Mauerwerksreihen verwendet werden.

      Achten Sie darauf, ein Sieb für den Ofen aus feuerfesten Steinen zu bauen. Es dient als eine Art Fall für den Ofen und trägt zur sanften Erwärmung bei.

      Dach und Boden

      Die Dachkonstruktion kann in einer, zwei oder mehr Rampen hergestellt werden. Es sollte berücksichtigt werden, dass die Installation umso kostenintensiver ist, je komplexer die Dachkonstruktion ist.Von der Wahl des Designs hängt auch der Arbeitsablauf ab. Löcher für Befestigungsstifte sind in den oberen Reihen der Wände gebohrt. Mauerlat und Deckenablagen sind darüber montiert.

      Wenn die Enden der Balken in Kontakt mit den Wänden sind, werden sie mit Dachpappe umwickelt. Dann baue einen Bodenbelag aus unbesäumten Brettern. In der gleichen Phase wird durch das Loch für den Schornstein bestimmt.

      Um die Lebensdauer der Deckenablagen zu erhöhen, müssen diese mit einer wasserabweisenden Schicht versehen werden.. Sie können Stoffabsinthe verwenden, die bequem mit Bauklammern montiert werden kann. Übergießen Sie eine Schicht, bestehend aus einer Mischung aus Ton und Sägemehl. Nach dem Trocknen wird es mit Sand bestreut.

      An der Stelle des Kontakts des Schornsteins mit der Decke ist mit Blechen ausgekleidet.

      Danach sammeln Sie das Traversensystem. Die Sparrenbeine werden mit Metallecken und selbstschneidenden Schrauben am Mauerlat befestigt.

      Wenn das Dach zwei oder mehr Neigungen hat, werden zusätzliche Stützen zwischen den Hängen installiert. Auf den Balken montieren sie die Kiste mit den kleinen Lamellen, bedecken sie mit Wasserabweisungs- und Wellplatten, Metallfliesen oder anderen modernen Analoga. Stellen Sie bei Bedarf ein Gegengitter her.

      Für die Installation des Bodens werden Balken mit einem Querschnitt von 15x10, 25x10 mm verwendet, die an den unteren Teil der Wände mit Metallecken montiert sind. Um von zwei Seiten nacheilen zu können, nageln Sie die Stäbe - die Basis für den Unterboden. Auf ihnen wird eine Platte befestigt, dann eine Abdichtung, eine Isolierung und eine zweite Abdichtung. Danach wird ein sauberer Boden installiert.

      Wärmend und imprägnierend

      Abdichtung und Isolierung werden benötigt, um die Funktionseigenschaften eines Ziegelbades zu verbessern.

      Die Abdichtung kann auf zwei Arten erfolgen:

      • Malmethode - von innen sind alle Oberflächen des Bades mit Imprägniermitteln bedeckt: Bitumenkitt oder Epoxidharze;
      • okleetchny Weg - Innenflächen können furniertes Blech oder gerolltes Dachmaterial sein. Dazu wird auch foliertes Polyethylen verwendet. Es ist bequem, es mit Holzlatten zu befestigen, und die Verbindungen müssen mit Aluminiumband versiegelt werden. Montieren Sie es von der Innenseite des Badspiegels nach oben.

      Es ist notwendig, eine Lücke zwischen dem Schaum und der Wand zu lassen.

      Die Wärmedämmung ist der wichtigste Aspekt bei der Erstellung eines Bades. Es hängt von der Funktionalität des Raumes ab.Wenn sich das Bad nicht aufwärmt, gehen alle Arbeiten in den Abfluss.

      In Räumen mit hoher Luftfeuchtigkeit ist es wichtig, eine hervorragende Belüftung von Dämmstoffen zu erreichen. Dadurch erwärmt sich das Bad schneller und verringert die Kondensatmenge, da es schneller verdampft.

      Als Isoliermaterial Thermoplatten, Mineralwolle, Schaum, Fiberglas oder Penoplex können aufgetragen werden. Die Arbeiten an der Isolierung sollten von der Anfangsphase an beginnen - der Konstruktion des Fundaments und der Anordnung des Bodens.

      Folk und die preisgünstigste Art, das Baden im Untergrund zu isolieren - verkorkte Flaschen werden in Reihen unter dem geschweißten Netz platziert. Reihen von Flaschen, die mit Sand bedeckt und Wasser verschüttet wurden, gossen dann Zement.

      Um im Bad nicht zu kalt zu werden, empfiehlt es sich, den Boden unter dem Boden mit einer Schicht Blähton und Schlacke zu bedecken.

      Für die Wandisolierung unter Verwendung der folgenden ungefähren Schichtenfolge:

      • Kiste mit Holz oder Aluminiumprofil für Trockenbau;
      • Minvata - Schichtdicke für ein Dampfbad 10 cm, für Nebenräume - 5 cm;
      • feuchtigkeitsbeständiges Plattenmaterial - Platte, imprägniert mit Pilzen und Schimmelpilzen;
      • Dampf- und Feuchtigkeitsisolierung "Izospan";
      • vertikale Balken des Gegengitters;
      • Futter.

        Diese Konstruktion der Isolierung verbraucht viel Platz im Inneren, was bei der Planung berücksichtigt werden muss. Wenn die Fläche des Bades klein ist, um Platz zu sparen, ist es besser, Schaumglas für die Wandisolierung zu verwenden. Darauf, die Dampfsperre, die Ummantelung und die Verlegung zu verlegen. Diese Option ist weniger dick und umweltfreundlich, chemisch neutral und emittiert keine schädlichen Substanzen bei hohen Temperaturen.

        Schaumglas hat einen Nachteil - es ist teuer. Dampfbarrieren Dampfräume und Waschraum sollten gebührend beachtet werden. Es ist notwendig, gefaltete Mineralwolle unter der Holzverkleidung zu legen. Die Decke sollte auch isoliert sein.. Zur Erwärmung des Warteraums können Sie Kraftpapier anstelle von Folie verwenden, wodurch der Prozess günstiger wird.

        Schaumglas
        Kraftpapier
        Vereitelte Minvata

          Um die Wärmeisolierung zu verbessern, sollten die Fenster so niedrig wie möglich platziert werden, und im Dampfbad sollten hohe Schwellenwerte eingehalten werden. Es ist wichtig, die Fenster klein zu machen. Je größer die Verglasungsfläche, desto größer der Wärmeverlust. Die Fläche des Fensters im Bad sollte 5% der Bodenfläche nicht überschreiten.Die Rahmen sollten fest an den Bindungen angebracht sein, die Schlitze sorgfältig verstemmt.

          Die Erwärmung des Bades aus dem Ziegel kann man machen und draußen, für diese Zwecke wird sich der Polyschaum nähern.

          Schöne Beispiele für fertiggestellte Gebäude

          Ein modernes Bad ist nicht nur ein funktionaler Raum, sondern auch ein Ort für eine angenehme Erholung mit Familienmitgliedern oder Freunden auf dem Land. Wir stellen Ihnen Beispiele von fertigen Gebäuden vor.

          Geräumiges Bad mit einer gemütlichen Terrasse. Weiße Farbe passt gut zu Holzzäunen und Terrassen.

          Das rechteckige Bad aus hellem Backstein mit dem originalen Eckfenster wirkt stilvoll und ansprechend.

          Ein kompaktes Bad aus rotem Backstein ist die beste Wahl.

          Das ursprüngliche Äußere des Ziegelbades macht es ungewöhnlich.

          Ein stilvolles Bad mit einer kleinen Terrasse aus dunklem Holz wird viele ansprechen.

          Sehen Sie sich das Projekt eines gemauerten Bades mit einem Ruheraum an, siehe folgendes Video.

          Kommentare
           Kommentarautor

          Die Küche

          Kleiderschrank

          Wohnzimmer