Wie wählt man einen Ofen für ein Bad?

 Wie wählt man einen Ofen für ein Bad?

Bad - ist ein traditioneller Ort der Ruhe des russischen Volkes. Im Dampfbad können Sie entspannen, Zeit in guter Gesellschaft verbringen. Gleichzeitig ist die heilende Wirkung des Bades unbestreitbar. Das Hauptkriterium für die Einrichtung einer gemütlichen Sauna ist der Kaminofen. Heute gibt es eine große Vielfalt an verschiedenen Öfen für ein Bad. Sie können sich in Material, Montageart, Wärmeleitfähigkeit unterscheiden und in der Preisspanne variieren.

Besonderheiten

Um den Ofen im Dampfbad richtig auszuwählen, ist es sehr wichtig, einige ihrer charakteristischen Merkmale und eine Reihe spezifischer Kriterien zu berücksichtigen, die den Rest im Bad angenehm und angenehm machen. Bei der Wahl eines Saunaofens ist es wichtig, eine ausreichende Wärmeleistung des Ofens in Betracht zu ziehen. Es muss mit der Größe und Fläche des Raumes korreliert werden.Der Ofen muss das Dampfbad und die angrenzenden Räume für eine kurze Zeit aufwärmen. In der Sommersaison sollte der gesamte Bereich des Dampfbades in ca. 30-40 Minuten aufgeheizt werden, im Winter dauert es ca. 2 Stunden.

Das nächste wichtige Kriterium bei der Wahl eines traditionellen Ofens sind die Steine. Ihre Masse und Menge sollte auch ausreichen, um das Dampfbad schnell aufzuwärmen. In den Bädern gibt es normalerweise 100 Gramm Wasser, um einen Kubikmeter Dampfbad aufzuwärmen. Ein Indikator für die Qualität der Steine ​​ist auch die Farbe des Dampfes, der von ihnen kommt, wenn Wasser herausspritzt. Dampf sollte nicht sehr dick sein, sollte aber ein gewisses Maß an Transparenz haben.

Es wird nicht empfohlen, die Temperatur der Steine ​​unter einhundert Grad zu senken. Für einen Kubikmeter Dampfraum benötigen Sie ca. 5-8 kg Steine. Bei einem Standard-Aufwärmmodus benötigen die Steine ​​eine Temperatur von etwa 200-250 Grad.

Um den gewünschten Modus einzustellen, ist außerdem ein Dampfgenerator im Ofen erforderlich. Einige Heizungen stellen einen Dampfgenerator bereit, der automatisch den Wasserfluss in den Ofen leitet, wo er verdampft und der Dampf gleichmäßig im Dampfbad verteilt wird.Das ist sehr praktisch, aber nicht in allen Saunaöfen.

Achten Sie besonders auf das Material, aus dem der Ofen hergestellt wird. Dies ist eines der wichtigsten und grundlegendsten Kriterien beim Kauf einer Heizung. Viele kostengünstige Öfen werden unter Verwendung von Baustahl hergestellt. Hohe Temperaturen beeinträchtigen dieses Material nicht, da seine Festigkeit beim Erhitzen ziemlich stark reduziert wird. In dieser Hinsicht sind sogar Öfen aus rostfreiem Stahl haltbarer, haben geringe Kosten und sind einfach zu bedienen.

Hauptmerkmale

Die sogenannten "heißen" Öfen für Bäder und "kalt" werden unterschieden. Diese beiden Optionen haben ihre eigenen spezifischen Eigenschaften. Insbesondere wird der "heiße" Ofen im Dampfbad auf eine Temperatur von über 100 Grad erhitzt. Es ist zweckmäßig, solche Öfen zu verwenden, wenn es erforderlich ist, einen Raum mit großer Fläche aufzuwärmen. Es ist jedoch notwendig, solche Öfen mit erhöhter Vorsicht zu verwenden. Versuchen, einen versehentlichen Kontakt mit der Oberfläche zu vermeiden, da dies sonst zu schweren Verbrennungen führen kann.

Aufgrund der schnellen Erwärmung eines solchen Ofens ist es auch notwendig, ständig die Lufttemperatur zu kontrollieren, um eine Überhitzung zu verhindern, bei der es für eine Person schädlich ist, im Dampfbad zu bleiben.

Für "kalte" Öfen sind keine derart strengen Betriebsvorschriften erforderlich. Ihre Wände erwärmen sich normalerweise nicht über 50-60 Grad. Dies verringert das Risiko von Verbrennungen, wenn Sie versehentlich den Ofen berühren. Das Aufheizen der Luft im Raum bei Verwendung eines "kalten" Ofens ist für lange Zeit viel einfacher auf dem erforderlichen Niveau zu halten.

Auch Öfen zeichnen sich durch ihre Platzierung aus. Meistens sind sie im Dampfbad selbst, aber es gibt Modelle, die in der Umkleidekabine platziert werden können. Öfen, die im Dampfbad platziert werden, erfordern während der Installation keinen so subtilen Ansatz, und sie kosten viel weniger als die im Wartezimmer verfügbaren Modelle. In diesem Fall gibt es einige Nachteile. Insbesondere das Brennholz in der Nähe des Ofens selbst kann aufgrund der hohen Luftfeuchtigkeit nicht gelagert werden und es wird notwendig sein, ständig darüber hinaus in einen anderen Raum zu gehen. Auch im Dampfbad wird durch den Kaminofen der freie Platz verringert.

Wenn die Gesamtfläche des Badezimmers ausreichend ist, ist es daher besser, den tragbaren Ofen in der Umkleidekabine zu platzieren und nur die Heizung im Dampfbad selbst zu lassen.

Sie können den Ofen auch mit der Heizmethode klassifizieren. Heute sind Öfen, in denen Steine ​​nicht direkt Feuer berühren, besonders beliebt. In solchen Öfen befinden sie sich in speziellen Behältern. Zur gleichen Zeit erhitzen sie sich bis zu 400 Grad. In anderen Öfen können Steine ​​direkt mit Feuer in Berührung kommen. Die Temperatur ihrer Erwärmung ist in diesem Fall sehr hoch und kann bis zu 1000 Grad steigen.

Sie können den Ofen auch mit einem Tank für Wasser und ohne ihn wählen. Ein Tank ist sehr praktisch, weil das Wasser durch die Hitze des Ofens erhitzt wird und für Wasserbehandlungen verwendet werden kann.

Design

Für jeden erfahrenen Bademeister und auch für einen Laien ist nicht nur die technische Anordnung des Bades, sondern auch sein Aussehen ein wichtiger Faktor. In der Badewanne können Sie einen wahrhaft stimmungsvollen Raum schaffen, in dem Sie angenehm und unvergesslich sein werden. Aber es ist wichtig, einige grundlegende Merkmale für die ordnungsgemäße Fertigstellung der Sauna kennen zu lernen. Traditionell wurde die Dekoration in den russischen Bädern ausschließlich aus Holz ausgeführt. Und das ist nicht nur eine Hommage an die uralten russischen Traditionen, sondern auch wissenschaftlich fundierte Fakten:

  1. Holz ist eines der umweltfreundlichsten Materialien, das bei hohen Temperaturen keine verschiedenen schädlichen Stoffe freisetzt, was natürlich nur dem Menschen zugute kommt.
  2. Die Wärmeleitfähigkeit von Holz ist extrem niedrig, so dass seine Oberfläche nicht sehr heiß ist, wodurch Sie Verbrennungen bei versehentlichen Berührungen vermeiden können.
  3. Die Wärme wird gleichmäßig über den Holzboden verteilt, was sich direkt auf die Heizrate des Dampfbades auswirkt.
  4. Ein großer Vorteil von Holz ist auch der hohe Luftaustausch. Wird das Bad ausschließlich mit Holzwerkstoffen gebaut, benötigt das Bad unter Umständen keine zusätzliche Belüftung.
  5. Wenn Holz erhitzt wird, kann es einen sehr angenehmen Geruch und für den Menschen nützliche Substanzen produzieren - Phytonozide, die sich günstig auf die Funktionsweise des menschlichen Nerven- und Herz-Kreislauf-Systems auswirken und sich positiv auf den psycho-emotionalen Hintergrund auswirken können.
  6. Und einer der Hauptvorteile von Holz ist nur eine attraktive Optik, die wahrscheinlich nie aus der Mode kommt. Bei vielen Holzarten ist keine zusätzliche Bearbeitung oder Lackierung erforderlich.
7 Foto

Die Hauptsache in der Anfangsphase des Designs eines Bades ist die Auswahl des richtigen Materials für die Endbearbeitung. Es lohnt sich, eine Deckschicht zu wählen, die sich an bestimmten Faktoren orientiert:

  • die Beschichtung muss beständig gegen hohe Temperaturen, hohe Luftfeuchtigkeit und direkten Kontakt mit Wasser sein;
  • bei steigender Temperatur keine gesundheitsschädlichen Stoffe ausstoßen;
  • sollte beim Menschen keine allergischen Reaktionen hervorrufen;
  • haben hohe Stärke und langes Leben;
  • ein attraktives Aussehen haben.

Eine der wichtigsten Regeln beim Dekorieren eines Bades ist die Verwendung von Nadelholz im Dampfbad. Dieses Holz hat eine große Anzahl von Harzen, die bei hohen Temperaturen auffallen. Und diese Beschichtung wird von viel stärkeren anderen Steinen erhitzt. In Gebieten, die an das Dampfbad angrenzen, sollten Nadelholzarten verwendet werden. Sie sind perfekt für eine Garderobe und Wäsche, die nicht so viel wie ein Dampfbad heizen. In den angrenzenden Räumen werden Nadelhölzer ein sehr angenehmes Aroma abgeben und auf den Organismus in gesunder Weise wirken.Auch für benachbarte Räume sind Dampfräume gut geeignet und Materialien wie Trockenbau, PVC oder feuchtigkeitsbeständige Holzfaserplatten.

Erfahrene professionelle Bademeister empfehlen bei der Fertigstellung des Dampfbades Hartholz. Dazu gehören Birkenholz, Espe, Pappel, Esche oder Linde. Insbesondere sieht die Esche nach Ansicht vieler attraktiv aus und weist eine hohe Festigkeit und lange Lebensdauer auf. Ziemlich oft wird Lindenholz für die Fertigstellung des Dampfbades verwendet. Es schafft ein sehr angenehmes Aroma im Raum. Aspen ist eines der haltbarsten, hitzebeständigsten Materialien und unterliegt keiner Verrottung.

Im Allgemeinen sind Harthölzer sehr gut geeignet für den Einsatz in Hochtemperaturumgebungen.

Große Aufmerksamkeit sollte auf die Gestaltung des Ofens im Bad gelegt werden. Schließlich ist dies der Hauptbestandteil jedes Dampfbades. Unterschiedliche Materialien können für die Gestaltung von Badöfen verwendet werden, unter denen Ziegel, Fliesen, natürliche oder künstliche Steine, Putz, Fliesen und Stahlgehäuse oft verwendet werden. Bei der Verkleidung des Ofens mit Fliesen ist es möglich, einige seiner Sorten zu unterscheiden:

  • Klinker Fliesen. Bei der Herstellung dieser Art von Fliesen verwendet Ton mit einer Vielzahl von Schmelzen und Farbstoffen gemischt.
  • Majolika Bei der Herstellung dieser Keramikfliese wird der Ton gebrannt und mit einer speziellen Glasur überzogen. Auf einer solchen Fläche können, wenn nötig, auch verschiedene Ornamente und Gemälde angebracht werden. Diese Fliese hat eine sehr reiche und helle Farben.
  • Terrakotta Diese Kachel ähnelt der vorherigen Kachel, aber diese Instanz hat eine sehr hohe Stärke.
  • Marmorfliesen. Diese Art der Einrichtung macht das Badezimmer zu einer gemütlichen Atmosphäre. Der marmorverkleidete Ofen sieht sehr repräsentativ aus. Auch Marmor unterscheidet sich in der hohen Haltbarkeit und Haltbarkeit.

Wenn Sie den Ofenstein fertig stellen, können Sie einige Vorteile dieser Art des Futters hervorheben. Eine Ziegelbeschichtung erwärmt sich somit gut und schnell auf die erforderliche Temperatur und kann die Wärme für eine lange Zeit halten. Zu den Vorteilen dieser Art der Auskleidung gehört auch ihre Haltbarkeit, da der Ziegelstein nicht durch hohe Feuchtigkeit und Temperatur zerstört wird. Der Blick auf den Ofen mit Stein verleiht dem Raum ein sehr ästhetisches Aussehen. Bei der Endbearbeitung kann Stein verwendet werden:

  • keramischer Granit;
  • Marmor;
  • Spule;
  • Granit

Sie können den Ofen auch mit einem Stahlgehäuse anordnen. Eine solche ungewöhnliche Art der Dekoration ist wie folgt: Die Ofenoberfläche ist von einem speziellen Metallrahmen umgeben, auf dem Stahlschilde angebracht sind.

Diese Art der Auskleidung ermöglicht es dem Ofen, den Raum zu erwärmen, aber es ist wichtig, den wichtigen Punkt zu berücksichtigen, dass die Beschichtung des Rahmens selbst sehr heiß ist und eine ernsthafte Verbrennung verursachen kann, wenn sie versehentlich von einer Person berührt wird.

Gips ist eine Art von Design, das auch sehr beliebt ist und oft verwendet wird. Wenn Sie die kostengünstigste und einfachste Möglichkeit wählen, den Ofen in der Badewanne fertigzustellen, dann ist die Verwendung von Gips die beste Lösung. Die Arbeit des Verputzens des Ofens muss in mehreren Stufen durchgeführt werden:

  1. Zuerst ist es notwendig, Schmutz und Staub von der Oberfläche des Ofens zu entfernen und die erste Schicht aufzutragen, um den Ofen vollständig zu reinigen;
  2. dann wird eine neue Putzschicht aufgetragen, um die Oberfläche zu ebnen;
  3. In der letzten Phase ist es am besten, die Oberfläche mit Kalk zu tünchen.

    Eine der ältesten Möglichkeiten zum Beschichten des Ofens ist das Verlegen von Fliesen. Trotz der langjährigen Verwendung dieser Verkleidung verleihen die Fliesen dem Ofen ein sehr originelles Aussehen und verleihen dem Badezimmer eine gewisse Atmosphäre.

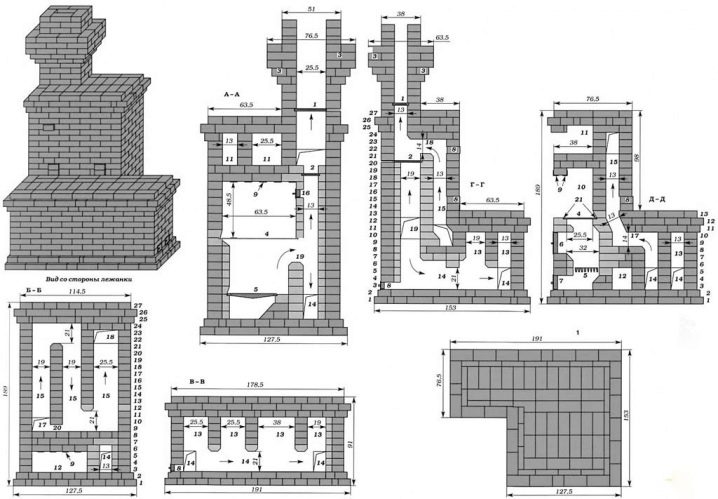
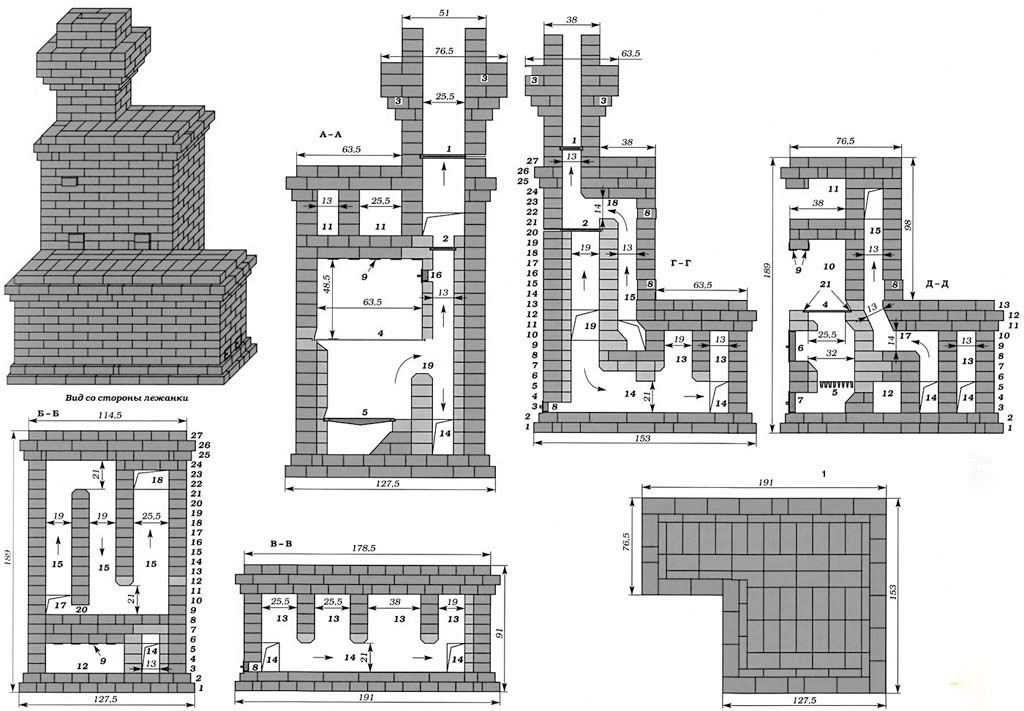
    Zeichnungen und Größen

    Einige erfahrene Handwerker bevorzugen, einen Badeofen ohne vorgefertigte Zeichnungen und Diagramme zu bauen, mit dem Argument, dass das Gebäude einfach und anspruchslos ist. Aber natürlich haben solche Fachleute bereits Erfahrung in der Öfenverlegung, und für selbst konstruierte Öfen ist es besser, die Zeichnungen im Voraus vorzubereiten und alles richtig zu berechnen. Die Menge an Wärme und Dampf, die der Ofen erzeugen wird, hängt von der korrekten Konstruktion des Ofens ab.

    Berechnen Sie alle Parameter des Ofens muss auf der Fläche des Dampfbades basieren. Um das Volumen des Dampfraums zu berechnen, müssen Sie seine Leistung, dh Höhe, Breite und Länge, multiplizieren. Danach müssen Berechnungen vorgenommen werden, die darauf basieren, dass für einen Quadratmeter eines Dampfbades 1 kW Energie benötigt wird.

    Im Folgenden finden Sie einige Beispiele für beliebte Zeichnungen von Saunaöfen, unter denen Sie das Notwendige auswählen oder Ihr eigenes Projekt erstellen können.

    Ansichten: Was ist besser?

    Es ist möglich, Öfen für ein Bad nach dem Kriterium des von ihnen verwendeten Brennstoffs zu klassifizieren. Öfen können Gas, Holz oder Arbeiten an Elektrizität sein.

    Gas

    Gasbefeuerte Saunaöfen sind nicht sehr beliebt und sind ziemlich selten,weil ihre Installation die Entwicklung eines individuellen Projekts erfordert, und der Prozess des Einbringens des Ofens wird viel Zeit und Mühe kosten. Auf der anderen Seite ist die Einstellung der Temperaturbedingungen in solchen Öfen völlig automatisch, sie erfordern keine konstante Last von Brennholz und sie müssen nicht oft gereinigt werden. Das Gleiche gilt für elektrische Öfen, obwohl ihre Installation nicht so viel Leistung erfordert. Diese Öfen arbeiten vom Stromversorgungsnetz.

    Holz brennen

    Die klassische und beliebteste Variante sind Holzöfen. Sie wiederum können je nach Herstellungsmaterial auch sortenrein systematisiert werden. Sie können aus Ziegel, Metall, Stahl oder Gusseisen bestehen. Unten wird ein Ofen von verschiedenen Materialien und verschiedenen Designs betrachtet.

    Tragbare Feuerstelle

    Die Konstruktion einer solchen Heizung hat eine lange Feuerkammer, in der sich eine Tür zum Verlegen von Brennholz befindet, und der andere Teil ist mit einem Tank verbunden, in dem sich Steine ​​befinden. Dementsprechend ermöglicht eine solche längliche Konstruktion, dass die Feuerkammer in dem Wartezimmer oder benachbarten Raum platziert wird, und die heißen Steine ​​selbst werden in dem Dampfbad sein.

    Der Teil der Wand, durch den die Feuerkammer geführt wird, ist am besten aus Steinen oder feuerfesten Materialien ausgelegt.

    Firebox ohne Entfernung

    Dies sind Standardheizungen, die direkt im Dampfbad installiert werden. Dieses Modell ist eine einteilige Konstruktion, bei der das Feuer die Steine ​​direkt erhitzt. Solche Öfen sind üblicherweise mit einem zusätzlichen Lufteinlass ausgestattet.

    Offene Heizungen

    Auch eine der Standard-und klassischen Optionen, in denen die Steine ​​auf der Oberseite des Ofens sind. Sie erwärmen sich und geben Dampf ab, wenn Wasser über sie gegossen wird.

    Geschlossene Feuerstelle

    Stellen Sie Steine ​​in den Ofen. Auf der Oberseite des Ofens befindet sich ein Tank mit Flüssigkeit, der allmählich auf die Oberfläche der Steine ​​gelangt.

    Holzöfen

    Oft werden Öfen aus solchem ​​Material mit Hilfe der Schweißmaschine und der Eisenbleche selbst hergestellt. Auch Metallöfen werden seit langem von bekannten Weltmarken hergestellt. Zu den positiven Eigenschaften solcher Strukturen gehören:

    • geringe Kosten für das Produkt oder die Bauteile;
    • die Möglichkeit, den Ofen selbst ohne großen Aufwand und große finanzielle undZeitkosten;
    • lange Lebensdauer;
    • kleine Größe und Leichtigkeit;
    • schnelles Aufwärmen des Dampfbades;
    • breite Palette von Gestaltungsmöglichkeiten.

      Zu den Minuspunkten gehört die schnelle Abkühlung des Ofenkörpers. Diese Eigenschaft hat die Mehrheit von Metallprodukten, da das Metall die Temperatur für eine lange Zeit nicht aufrechterhalten kann. Nachteilig ist auch die hohe Temperatur des Gehäuses im laufenden Zustand, die bei versehentlichem Berühren zu Verbrennungen führen kann.

      Gusseisenöfen

      Diese Modelle werden teurer und schwerer sein als gewöhnliche Metall-Modelle. Gusseisen ist eines der traditionellen Materialien bei der Herstellung von Saunaöfen. Im Hinblick darauf können einige positive Aspekte unterschieden werden:

      • hohe Korrosionsbeständigkeit von Gusseisen;
      • lange Lebensdauer und Zuverlässigkeit;
      • diese Öfen können auch beim Heizen großer Räume verwendet werden;
      • breite Palette von Designs;
      • lange Wärmespeicherung.

      Der Hauptnachteil solcher Öfen ist, dass minderwertiges Gusseisen mit einer plötzlichen Temperaturänderung in der Amplitude von mehr als 90 Grad platzen kann.Eine solche Situation ist möglich, wenn ein Eimer mit kaltem Wasser über den heißen Behälter gekippt wird. Auch Gussöfen haben in der Regel ein sehr hohes Gewicht, was ihre Beweglichkeit verringert. Im Allgemeinen sind Gusseisenöfen und Metallmodelle in vielen Parametern ähnlich. Solche Öfen können entfernt und ohne die Entfernung des Ofens gemacht werden. Kamenka solcher Öfen sind beide offen und geschlossen. Ist das für große Gusseisen Öfen müssen möglicherweise das Fundament wegen ihrer großen Masse zu stärken. Daraus kann geschlossen werden, dass Gusseisen- und Metallöfen zu den bequemsten und am weitesten verbreiteten Optionen gehören.

      Stein- und Ziegelöfen

      Sie haben eine Reihe von positiven Eigenschaften, zum Beispiel, ein Ziegelstein und ein Stein sind sehr gut beheizt und können große Räume oder angrenzende Räume mit einem Dampfbad beheizen. Steinofen ist eine ausgezeichnete Option in Bezug auf Design und verleiht dem Raum eine besondere ästhetische Erscheinung.

      Der Nachteil von Steinöfen ist ihre hohe Kosten, weil solche Öfen als exklusive Design-Projekte gelten.

      Mit Wärmetauscher

      Separat und detaillierter muss man über die Öfen mit dem Wärmeaustauscher erzählen.Der Wärmetauscher selbst ist ein serpentinenartiges Rohr, das oft einfach als "Serpentin" bezeichnet wird. Sie sind dazu bestimmt, Wasser in Gegenwart eines Tanks in der Nähe des Ofens zu erhitzen. Solche Rohre können von zwei Arten sein: Spulen des internen Typs und dementsprechend extern. Häufig werden Konstruktionen vom internen Typ verwendet. Durch ihre Leistung sind sie effizienter und zuverlässiger.

      Das Funktionsprinzip eines solchen Wärmetauschers ist wie folgt: Kaltes Wasser aus dem Tank tritt in die Schlange ein, in der es durch die Hitze des Ofens erhitzt wird. Dann tritt das erwärmte Wasser wieder in den Tank ein und kann für hygienische Verfahren und zum Waschen verwendet werden. Während der Ofen in Betrieb ist, wird Wasser im Wärmetauscher zirkuliert. Zusätzlich zu der Spule kann ein anderer Wasserkreislauf verwendet werden.

      Mit integriertem Kessel

      Öfen im Bad mit eingebautem Boiler sind ebenso beliebt wie alle anderen. Solche Modelle sind sehr einfach zu installieren, und ihr Betrieb erfordert keinen Zeit- und Arbeitsaufwand.

      Elektrokessel für die Warmwasserbereitung werden normalerweise nicht im Dampfbad selbst aufgestellt, da sie nicht hohen Temperaturen ausgesetzt sind.

      Schild Öfen

      Der Schutzschirm erfüllt die Funktion des Schutzes gegen zufälliges Entzünden von brennbaren Materialien in der Nähe des Ofens. In solchen Öfen werden üblicherweise drei Hauptkomponenten unterschieden: der Bodenschirm, die Seite und die Vorderseite. Die Bodendusche dient zum Schutz von Holzböden in unmittelbarer Nähe des Ofens. Seitenwände schützen zuverlässig die Wände des Dampfbades in der Nähe des Ofens vor hohen Temperaturen. Und der frontale Bildschirm bietet Sicherheit, wenn er zwischen dem Dampfbad und dem Warteraum installiert wird. Sicherheitsschilder können aus Metall bestehen. Außerdem gibt es Ziegel-Thermoscreens.

      Das Metallsieb wird unter Einhaltung kleiner Abstände auf dem Ofenkörper montiert. Dank dieser Bildschirme wird die Infrarotstrahlung reduziert, der Raum erwärmt sich schneller und die Luftzirkulation zwischen dem Ofen und dem Bildschirm lässt die Struktur nicht auf hohe Temperaturen aufheizen. Brick Screens sind eine gewöhnliche Mauersteine ​​um den Umfang des Ofens.

      Unabhängige Produktion

      Bevor Sie also selbst einen Badeofen bauen, müssen Sie sich um die Vorbereitung der notwendigen Werkzeuge und Materialien kümmern. Dafür benötigen Sie:

      • rote und feuerfeste Ziegel;
      • Ton;
      • Sand;
      • Blower Tür;
      • Feuer Tür;
      • Roststäbe;
      • saubere Türen;
      • Asbestzementplatte;
      • Steine

      Als feuerfeste Materialien werden normalerweise Ziegel in Standardgrößen oder Steine ​​verwendet (wenn ein Ofen mit Stein verlegt wird, ist es wichtig, keinen Feuerstein zu verwenden, der aufgrund hoher Temperaturen reißen kann).

      Das Hauptkriterium vor Beginn der Arbeiten ist die Berechnung des ungefähren Gewichts des zukünftigen Ofens, da auf diese Weise ein solides Fundament erstellt wird, auf dem die Konstruktion angebracht werden kann. Daher wird vor dem Bau des Ofens das Fundament gegossen. Zement, Schotter und Metallgitter werden ebenfalls benötigt, um es zu füllen. Bei der Verlegung des Ofens werden normalerweise Standardbefestigungen verwendet, die einen Ofen verwenden:

      • Kelle;
      • Hammer Pick;
      • Blase oder Laserniveau;
      • Schnurpeitsche;
      • Senkblei;
      • das Quadrat ist Konstruktion;
      • manipulieren;
      • Putz Regel;
      • Kapazität für die Lösung und Schüttgüter.

      Um die Unregelmäßigkeiten auf den Ziegeln zu schneiden, wird es empfohlen, eine Mühle zu verwenden. Sie muss einen speziellen Kreis haben, der mit Steinoberflächen arbeiten soll.

      7 Foto

      Durch ihre Bemühungen ist es möglich, nicht nur eine Ziegelkonstruktion zu machen. Oft dafür verwendet und Metall. In diesem Fall benötigen Sie:

      • Stahlblech mit einer Dicke von 1 und 5 mm (es wird empfohlen, hitzebeständige Zusammensetzungen zu verwenden);
      • Rost;
      • Metallecke mit einem Regal etwa 40 oder 50 mm.

      In Bezug auf Metallstrukturen sind geringfügig andere Anpassungen erforderlich, insbesondere:

      • Schweißtransformator oder Inverter;
      • Winkelschleifer;
      • Räum- und Trennscheibe für Metall;
      • elektrische Bohrmaschine mit einer Reihe von Bohrern;
      • Maßband;
      • Schreihals

      In den Fällen, in denen auch ein zukünftiger Tank zur Erwärmung des Wassers vorgesehen ist, wird ein großes Rohrvolumen benötigt. Auch für die Installation von Warmwasserheizungen werden eine Vielzahl von Armaturen mit dem notwendigen Gewinde benötigt.

      Vorbereitende Arbeiten

      Zu Beginn der Arbeiten am Bau des Ofens sollte mit der Vorbereitung seines zukünftigen Standortes begonnen werden. Wenn es sich um ein Fernwärmesystem handelt, wird ein Teil der Wand zwischen dem Dampfbad und dem Wartezimmer geschnitten. Wenn der Ofen in der Raumecke aufgestellt werden soll, wird in diesem Fall eine mineralische Dämmung an dieser Stelle angebracht, die dann mit Ziegeln ausgekleidet wird. Berücksichtigen Sie auch die Lage des Schornsteins.

      Fundament Installation

      Die Installation der Stiftung ist ein sehr wichtiger Arbeitsschritt, der es wert ist, Zeit und Mühe zu investieren. Schließlich ist selbst ein Ofen in Standardgröße eine beeindruckende Gewichtsstruktur, besonders wenn er aus Stein oder Gusseisen besteht. Daher müssen Sie eine gute Grundlage für den Ofen schaffen, indem Sie eine bestimmte Abfolge von Arbeiten beobachten:

      1. Zu Beginn ist es, eine Grube am Aufstellungsort des Ofens zu graben. Es sollte die Größe des Ofens um ca. 20-25 cm überschreiten.
      2. Dann sollte der Boden der ausgegrabenen Grube mit einer Schicht von ungefähr 10 cm bedeckt werden, dann mit Wasser gegossen und gut verstopft werden.
      3. Dann wird eine Schuttschicht mit einer Schicht von etwa 15-20 cm bedeckt.
      4. Wenn Sie eine Stahlbetonplatte um den Umfang der Grube verlegen, müssen Sie eine Holzschalung bauen.
      5. Beton für das Fundament wird in den folgenden Proportionen vorbereitet: Dazu einen Teil Zement mit 4 Teilen Schutt vermischen und drei Teile Sand hinzufügen. Wasser muss unter der Bedingung zugegeben werden, dass sich der Beton nicht ausbreitet und seine Plastizität beibehalten kann. Nach dem Mischen der Lösung muss sie sofort in die Grube gegossen und verdichtet werden. Die Oberfläche des Fundaments wird regelmäßig eingeebnet und dann mit einem Polyethylenfilm bedeckt. Nach solchen Verfahren müssen Sie warten, bis die Lösung aushärtet und aushärtet.

      Bei einem Metallofen müssen Sie die erforderlichen Rohlinge vorab auswählen. In der Regel werden Bleche mit einer Dicke von ca. 4-5 mm verwendet. Es ist jedoch ziemlich schwierig, solche Blätter mit einer gewöhnlichen Schleifmaschine zu schneiden.

      Oft wird für solche Zwecke ein Gasschneider verwendet, der viel Zeit und Mühe spart.

      Die wichtigste Phase der Arbeit ist also das Verlegen der Ziegelwände des Ofens. Wie oben erwähnt, gibt es "kalte" und "heiße" Öfen für Bäder. Bei ihren Bauarbeiten wird sich nicht wesentlich unterscheiden. Und tatsächlich, und in einem anderen Fall wird die Feuerkammer zuerst mit Feuerfestmaterialien ausgelegt, und dann wird eine Aschekrone darunter angeordnet. Auch zwischen dem Arbeitsraum und dem Gebläse ist Rost eingebaut. Es wird verwendet, um dem Ofen Luft zuzuführen.

      Die "heißen" und "kalten" Öfen unterscheiden sich nur in der Lage der Steine. Das heißt, in einem Fall sind die Steine ​​in direktem Kontakt mit Feuer und sind offen und heizen sich viel schneller auf, während in dem anderen die Steine ​​geschlossen sind. Auch in modernen Bädern wird häufig Dampferzeuger eingesetzt.

      Bevor Sie jedoch den Ofen selbst installieren, müssen Sie einen Installationsort vorbereiten.Selbst wenn keine zusätzliche Verstärkung des Fundaments erforderlich ist, müssen Sie sich noch um den Installationsort kümmern. Dazu werden Wärmedämmung und Wärmedämmung verwendet. Sie können Metallbleche oder Tonziegelschicht als Barriere für Holzwände aus einem Arbeitsofen verwenden. Dann können Sie zur Installation des Ofens selbst gehen.

      Auch für die Wärmedämmung können Sie Materialien wie Steinwolle oder Zementfaserplatten verwenden. Die durchschnittliche Dicke solcher Isolierplatten sollte etwa 20 bis 25 mm betragen, was im Prinzip von der Leistung des Ofens abhängt.

      Anweisungen für die richtige Ofenwandinstallation:

      1. Das Dachmaterial wird auf das vollständig ausgehärtete Fundament gelegt. Dann legte man die sogenannte "Keller" -Reihe von Ziegeln an. Er sollte besondere Aufmerksamkeit schenken und es sehr glatt auslegen, ständig das Niveau überprüfend. Tatsächlich legt diese Serie die Ofenform fest. Einige Fachleute empfehlen sogar, zwei "Keller" -Reihen von Ziegeln auszulegen.
      2. Dann müssen Sie in den ausgekleideten Reihen eine vorbereitete Asbestzementplatte verlegen, die den Boden für den Aschekasten bildet.
      3. Das gleiche Blatt wird in der dritten Reihe, aber unter dem Feuerraumfach installiert.
      4. Die nächste Ziegelreihe bildet eine Nische unter der Heizung.
      5. Dann beginnt die Berechnung des Ofens selbst. In der gleichen Phase ist es notwendig, die Überlappung des Bodens durchzuführen.
      6. Als nächstes müssen Sie die Steine ​​auslegen und die Installation der Tür und des Portals im Ofen durchführen.

      Ein sehr wichtiger Punkt für die richtige Anordnung des Dampfbades ist die Entladung des Schornsteins. Für den Ofen aus beliebigem Material können Sie ein Metallrohr verwenden. Hauptsache, der untere Teil des Rohres war hitzebeständiger.

      Sie können einen Metallofen mit eigenen Händen wie folgt kochen:

      1. Als Grundlage können Sie ein Rohr mit großem Durchmesser nehmen, das so geschnitten werden muss, dass ein Teil etwas größer ist als das andere.
      2. Auf dem längeren Rohrabschnitt wird ein Loch geschnitten, das als Gebläse dient.
      3. In ähnlicher Weise wird ein Loch für die Feuerkammer geschnitten.
      4. Neben dem Rohr müssen die Scharniere geschweißt werden. Dann werden die Türen des Lüfters und die Brennstoffkammer an ihnen aufgehängt.
      5. In der Seite des Ofens ist auch ein Loch geschnitten. Es wird eine Plattform für die Lokalisierung von Steinen geschaffen. Darunter sind gut Stäbe aus Metall.

      Das Ergebnis ist ein effizienter und mobiler Rundofen vonMetall. In einigen Fällen kann es außerdem ein Ziegelstein auferlegen. Aber in diesem Fall wird es nicht mobil sein.

      Hersteller

      Heute auf dem Markt gibt es eine große Anzahl von Herstellern von Saunaöfen. Im Folgenden finden Sie ein Ranking der führenden Marken in Russland, basierend auf einer Analyse der Kundenbewertungen und des Ansehens der Hersteller.

      Ofen "Termofor Geyser". "Termofor" - einer der führenden Hersteller von Saunaöfen. Dieses Modell ist ein klassischer Saunaofen speziell für die russische Sauna. Es ist aus hitzebeständigem legiertem Stahl hergestellt, wodurch es sehr zuverlässig und verschleißfest ist. Ein Merkmal des Heizers ist die Anwesenheit eines zweistufigen Verdampfungssystems, dh es ist sowohl ein offenes als auch ein geschlossenes System. Im Ofen gibt es ein praktisches System zur Abgabe von Wasser, das in die Heizung eintritt. Um dies zu tun, hat es ein spezielles Ventil, das Wasser in den gemessenen Teilen liefert. Der Ofen eignet sich für kleine Bäder und für größere Räume. Hauptvorteile:

      • es erwärmt sich schnell;
      • das Verdampfungssystem gibt dem Raum einen angenehmen angenehmen Dampf;
      • starke Körperwände;
      • großes Volumen des Ofens, mit dem Sie es in großen und kleinen Dampfräumen installieren können;
      • attraktives und stilvolles Aussehen des Ofens.

        "Sahara 24" von "Teplodar" ist ein ausgezeichneter Ofen, gekennzeichnet durch die Anpassung der Modi. Die Leistung dieses Ofens ist ziemlich groß und eignet sich für Räume jeder Größe. Der Ofen erwärmt schnell den Raum, zum Beispiel wird sich die durchschnittliche Fläche des Dampfbades auf mehr als 100 Grad pro Stunde erhitzen. Der Ofen braucht keine besondere Pflege, er ist leicht von den Verbrennungsprodukten zu reinigen. Hauptvorteile:

        • schnelles Aufwärmen auch großer Räume;
        • mäßiger Feuchtigkeitsgehalt;
        • Kamenka hohes Volumen;
        • extrem einfache Vorrichtung des Ofens;
        • Pflegeleichtigkeit.

          Der Hephaestus PB-01-Ofen des Herstellers Hephaestus gehört zu Recht zu den besten Guss-Saunaöfen. Seine enorme Kapazität erlaubt es, große Räume von bis zu 45 Kubikmetern aufzuwärmen. Der Ofen hat die Fähigkeit, den stärksten Temperaturabfällen standzuhalten. Ein schnelles Aufwärmen des Raumes und leichter Dampf machen den Aufenthalt im Bad angenehm und angenehm. Der einzige Nachteil ist das ziemlich große Gewicht des Ofens, wie auch andere Konstruktionen aus Gusseisen. Hauptvorteile:

          • schnelles Aufwärmen des Dampfbades;
          • hohe Verschleißfestigkeit;
          • Fähigkeit, sehr große Räume zu erhitzen;
          • die Dauer der Wärmeerhaltung im Raum.

          Auch hervorragende Gussmodelle sind Öfen "Vesuvius Legend Suite". Dieses Modell wärmt im Gegensatz zum vorherigen kleinere Räume auf. Aber sie hat viele positive Eigenschaften. Es ist erwähnenswert, dass dieses Design des Selbstreinigungssystems eine Glasoberfläche hat, die den Aufwand für die Pflege des Ofens erheblich verringert. Hauptvorteile:

          • hohes Maß an Effizienz;
          • Haltbarkeit;
          • leichte Pflege;
          • langfristige Wärmespeicherung

          Zusätzlich zu den Hauptverkaufsführern gibt es andere beliebte Marken von Saunaöfen, die den Hauptmarken ein wenig unterlegen sind.

          Die Firma Harvia hat sich seit langem auf dem Markt als die Veröffentlichung von Qualitätsprodukten etabliert. Grundsätzlich produziert diese Firma Saunaöfen. Aber in ihren Katalogen können Sie Heizungen für ein traditionelles russisches Bad aufheben.

          Die Firma "Ermak" ist einer der führenden inländischen Hersteller von Saunaöfen. Die Produkte dieser Firma zeichnen sich durch ihre Kompaktheit und die Möglichkeit aus, den Ofen mit verschiedenen Funktionsvorrichtungen zu ergänzen.Das angenehme Design der Jermak-Öfen verleiht dem Dampfbad eine ästhetische Erscheinung. Die meisten Produkte dieses Herstellers sind aus Qualitätsstahl gefertigt.

          Das finnische Unternehmen Kastor ist seit langem auch aktiv am Verkauf von Saunaöfen beteiligt. Die Produkte des Unternehmens haben ein sehr originelles und exquisites Design, das dem Dampfbad eine eher kreative Erscheinung verleiht.

          Der Ofen der Marke "Lokomotive" ist sehr wichtig für russische Bäder, wo intensiver und hochwertiger Dampf geschätzt wird. Der Name dieser Marke spricht für sich. Der Ofen ist dank eines leistungsstarken Dampfgenerators in der Lage, eine große Menge an hochwertigem und nützlichem Dampf zu erzeugen.

          Öfen der Marke Kutkin zeichnen sich durch eine große Vielfalt aus. Die Entwürfe dieser Firma können sowohl Gas als auch Holz sein und sogar mit Dieselkraftstoff arbeiten, dem nicht alle Hersteller rühmen können. Die Kombination aus ursprünglichem Design und Effizienz macht den Kutkin-Ofen zu einer ausgezeichneten Wahl für die Dampfraumheizung.

          Öfen der heimischen Firma Berezka zeichnen sich durch ihre demokratischen Preise und ihre hochwertige Verarbeitung aus. Das Unternehmen produziert eine ziemlich große Anzahl von Öfen verschiedener Modelle, unter denen Sie je nach individuellen Vorlieben wählen können.

          Die heimische Firma "Svarozhich" beliefert den Markt mit exklusiven Öfen mit einem wunderbaren Design. Öfen dieses Herstellers zeichnen sich dadurch aus, dass sie Modi steuern können. Dieser Ofen kann sogar im Sauna-Modus betrieben werden. Es hat einen großen Ofen und die Tür hat eine geschmiedete Oberfläche.

          Und vervollständigt unseren "Ofen" -Rating-Hersteller Troika. Dies sind recht zuverlässige und effiziente Öfen zu vernünftigen Preisen. Eine Besonderheit der Produkte dieses Unternehmens ist ihre Sorgfalt in der Pflege, einfache Installation und Bedienung.

          Die Öfen der Marke IziStim zeichnen sich durch hohe Preise aus, sind aber qualitativ nicht schlechter als globale Marken. Dies sind ziemlich starke Modelle mit einem attraktiven Design, das eine echte Dekoration für die Sauna wird, und nicht nur eine Struktur zum Aufwärmen des Raumes. Hochwertige Materialien verleihen den Öfen dieser Firma eine lange Lebensdauer und hohe Zuverlässigkeit. Dies ist eines der exklusiven Produkte, die keine große Popularität genießen.

          Kundenbewertungen

          Die wenigsten Kommentare und Beschwerden von Kunden gingen bei den Produkten der Marken Hephaestus, Teplodar und Termofor ein.Diese Unternehmen sind seit langem mit der Herstellung und Lieferung von Saunaöfen auf dem Weltmarkt beschäftigt, so dass sie umfangreiche Erfahrung in der Produktion von Heizgeräten haben und ihren Ruf überwachen. Die Öfen der Marke "Troika" und "Vesuvius" zeichneten sich durch eine lange Lebensdauer und effektive Erfüllung ihrer Aufgaben aus.

          Brand "Birch" Käufer für niedrige Kosten und gute Qualität, aber nach Meinung vieler Benutzer, solche Öfen sind besser geeignet für die Sauna. Die Produkte der Firma "Ermak" sagen die meisten Anwender wie mit einer kompakten, aber gleichzeitig geräumigen Heizung. Auch viele Käufer dieses Modells waren mit dem Panoramaglas an der Feuerraumtür und dem Griff mit Selbstkühlung zufrieden.

          Sicherheitstechnik

          Sich im Bad auszuruhen, war nicht nur nützlich und bequem, sondern vor allem sicher, Beachten Sie unbedingt einige wichtige Sicherheitshinweise:

          • Beim Kauf eines Ofens müssen Sie auf die Marke des Herstellers achten und alle Zertifikate über die Einhaltung von Brandschutz und Qualität sorgfältig lesen. Bei der Eigenfertigung müssen Sie sich mit den Anforderungen der Feuerwehr vertraut machen und den Ofen in strikter Übereinstimmung mit ihnen betreiben.
          • Es lohnt sich, einen Ofen zu kaufen, dessen Körper sich bei plötzlichem Kontakt der offenen Haut mit der Ofenoberfläche nicht so stark erhitzt, dass er schwere Verbrennungen verursacht.
          • Der Hauptbestandteil der Heizung in jedem Heizgerät sind die Steine ​​selbst. Daher sollte ihre Wahl auch besondere Aufmerksamkeit erhalten. Steine ​​sollten nicht von hohen Temperaturen brechen. Sie in die Rillen zu legen, sollte sehr zuverlässig und stabil sein, damit sie nicht aus dem Schmelzofen fallen.
          • Das Hinzufügen von Wasser zu heißen Steinen sollte extrem dosiert werden, da selbst eine große Menge an Dampf Verbrennungen verursachen kann.
          • Im Dampfbad selbst sollten Decke, Wände und Boden vor übermäßiger Überhitzung geschützt werden. Dies ist besonders dort zu empfehlen, wo sich der Ofen selbst befindet, da die Temperatur dort am höchsten ist, was zu Schäden an den Wänden führen kann.
          • Größere Aufmerksamkeit sollte der Installation von hochwertigen Schornsteinen gewidmet werden. Dies ist eine der wichtigsten Sicherheitsregeln im Bad. Ein guter Schornstein muss sofort Rauch aus dem Ofen entfernen und verhindern, dass er in den Raum gelangt. Überlasten Sie den Ofen auch nicht mit Brennholz.Erstens kann der Schornstein nicht mithalten und ein Teil des Kohlenmonoxids gelangt in das Dampfbad, und zweitens kann der Ofen auf extrem hohe Temperaturen erhitzt werden, und dann ist es einfach unmöglich, im Dampfbad zu bleiben.
          • Stellen Sie sicher, dass Sicherheit nicht nur im Badezimmer notwendig ist. Aufmerksamkeit sollte dem Dachboden geschenkt werden, durch den der Schornstein geht. In der Nähe des Schornsteins, und es ist besser, keine Gegenstände zu lagern, die Feuer von hohen Temperaturen über dem gesamten Raum des Dampfbades entzünden könnten. Es wird auch empfohlen, den Dachboden zu lüften, um eine übermäßige Erwärmung zu vermeiden.

          Es sollte ein Belüftungssystem für konstanten Zufluss und Frischluftzirkulation in Betracht gezogen werden.

          • Es wird nicht empfohlen, das Bad betrunken zu besuchen, da es Stress für den ganzen Körper verursacht und die Wellness-Prozeduren nur zum Nachteil wirken. Besuchen Sie auch nicht die Schwangeren im Dampfbad.
          • Wenn eine Person zu Pilzkrankheiten neigt, ist es sehr unerwünscht, das Bad für sie zu besuchen. Dies kann ihnen noch größeren Schaden zufügen und das Risiko von Krankheiten bei anderen Besuchern des Dampfbades verursachen.
          • Erhitzen Sie das Bad nicht auf hohe Temperaturen, um es unbequem zu machen. Übermäßige Überhitzung verursacht Schwindel, Erbrechen und sogar Bewusstlosigkeit. Daher ist es auch bei einem kleinen Verdacht auf Hitzschlag am besten, das Dampfbad zu verlassen. Von einer niedrigeren Temperatur sofort spürbar besser fühlen.

          Angesichts dieser Empfehlungen wird der Rest in der Badewanne angenehm und komfortabel sein, und das Ergebnis ist Wellness und Entspannung.

          Tipps und Tricks

          Für die Erwärmung des Bades müssen Sie gut getrocknetes Brennholz verwenden. Sie sollten an einem bestimmten Ort auf der Website gelagert werden, der nicht für Regen verfügbar ist. Es wird empfohlen, kleine Lücken zwischen den Hölzern zu lassen, also sollten Sie sie nicht zu eng aneinander stapeln.

          Auf keinen Fall darf Brennholz mit Plastikfolien abgedeckt werden. In diesem Fall gibt es einen Treibhauseffekt, durch den das Holz nicht nur austrocknet, sondern auch feuchter wird.

          Heute ist ein Bad nicht nur ein Ort zum Heilen und Waschen, sondern auch ein universeller Raum, um Zeit in guter Gesellschaft zu verbringen. Daher wird dem Bad auch viel Aufmerksamkeit geschenkt. Führende Stile sind heute:

          • High-Tech unterscheidet Prägnanz und strenge Farben, klare Formen und Linien;
          • retro ist das beste für alte Liebhaber;
          • Country-Musik beinhaltet die Umsetzung eines Bades in einem bestimmten rustikalen Stil.
          Hightech
          Retro
          Countrymusik

          In früheren Zeiten wurden Bäder nur "auf die schwarze Art" geheizt, aber auch heute noch ist diese Methode beliebt. Für diese Methode der Feuerstelle kann in mehrere positive Aspekte unterteilt werden:

          • ein solches Bad wärmt sich viel schneller auf;
          • feuchtes und erhitztes Holz gibt einen angenehmen charakteristischen Geruch ab;
          • Die Konstruktion des "schwarzen" Bades ist äußerst einfach und kann einfach selbst gemacht werden.

          Badeverfahren haben eine gute Wirkung auf die menschliche Gesundheit. Hohe Temperatur reinigt die Haut und entfernt schädliche Substanzen aus dem Körper zusammen mit Schweiß. Ein Besuch im Dampfbad härtet den menschlichen Körper und erhöht die Immunität, sowie die Arbeit von fast allen inneren Organen, besonders Herz und Lunge.

          Es ist sehr wichtig, das Bad richtig zu heizen. Es scheint, dass es nichts Schwieriges gibt, einfach Brennholz in den Ofen zu stellen. Aber hier gibt es einige Besonderheiten. Brennholz im Ofen sollte gelegt werden, die kleinen Lücken zwischen ihnen beobachtend.Wie Sie wissen, kann das Feuer nicht ohne Luft sein, und diese Lücken sorgen für seine Zirkulation, so dass Brennholz schnell zu entzünden beginnt. Bei hoher Hitze und schneller Aufwärmung kann die Ofentür leicht geöffnet werden, aber aus Sicherheitsgründen ist es besser, ein speziell für diesen Zweck konzipiertes Gebläse zu verwenden. Es wird nicht nur sicherer, sondern auch viel effizienter.

          In keinem Fall darf das Ventil im Schornstein bei Betrieb des Ofens vollständig geschlossen sein, da sonst das emittierte Kohlenmonoxid beginnt, den Raum zu füllen. Birke, Espe und Erle gelten traditionell als das beste Holz zum Heizen. Von ihnen gibt es praktisch keinen Schmutz und Ruß im Inneren des Ofens, was den Aufwand für die Reinigung von Schornstein und Aschekasten verringert.

          Es ist ratsam, einige Instrumente in der Badewanne zu installieren, die dabei helfen, den gesamten Prozess zu regulieren. Das berühmteste und einfachste Gerät für ein Bad ist ein Thermometer. Heute ist es in fast jedem Bad erhältlich, mit dem Sie den Temperaturanstieg oder Temperaturabfall im Dampfbad überwachen können.

          Es ist wichtig, das Dampfbad dosiert zu besuchen und eine angenehme Zeit für sich selbst zu entdecken. Daher können Sie im Bad die Timerzeit einstellen.Oft verwendet für diese Sanduhr, die in Geschäften Badzubehör verkauft werden. Auf einer solchen Uhr markierte Zeitskala. Normalerweise sind es 10-15 Minuten. Diese Zeit ist genug für einen einzigen Eintritt in das Dampfbad.

          Ein ziemlich interessantes Gerät ist ein Hygrometer. Dieses Gerät überwacht die Luftfeuchtigkeit im Raum, was sehr praktisch ist, da eine angenehme Ruhezeit von der günstigen Ausgewogenheit von Luftfeuchtigkeit und Temperatur abhängt.

          Selbst in der Badewanne können Sie ein spezielles Barometer installieren, das den Druck im Raum misst. Heute können sie sowohl mechanisch als auch elektronisch sein.

          Materialien, die solche Vorrichtungen herstellen, sollten gegenüber hohen Temperaturen und erhöhter Feuchtigkeit beständig sein. Der Körper muss vollständig versiegelt sein und sollte nicht auf eine hohe Temperatur erhitzt werden. In modernen Geschäften finden Sie auch integrierte Messgeräte, die verschiedene Geräte beinhalten.

                            Öfen, die auf Stromnetzen betrieben werden, sind viel kompakter und mobiler. Fast alle Prozesse in solchen Öfen sind automatisiert und können individuelle Temperaturparameter einstellen,Feuchtigkeit und Dampf beim Besuch des Dampfbades. Für diese Öfen muss nicht viel Aufwand in die Absaugung von speziellen Lüftungs- und Schornsteinsystemen investiert werden. Ein großes Plus von elektrischen Heizungen ist die vollständige Abwesenheit von Verbrennungsprodukten, Ablagerungen, Staub und Asche. Ein solcher Ofen ist außerdem äußerst einfach in Betrieb und Wartung.

                            So hängt eine komfortable, nützliche und sichere Erholung in der Badewanne zum größten Teil vom richtig gewählten Herd ab. Moderne Hersteller bieten viele verschiedene Modelle an, unter denen Sie je nach Aussehen des Ofens, Material, Funktionalität und Preis einen Ofen für Ihre individuellen Anforderungen auswählen können.

                            Falls erforderlich, kann der Ofen unabhängig hergestellt werden, indem die oben genannten Tipps von erfahrenen Handwerkern verwendet werden.

                            Wie man den besten Ofen für ein russisches Bad auswählt, erfahren Sie aus dem folgenden Video.

                            Kommentare
                             Kommentarautor

                            Die Küche

                            Kleiderschrank

                            Wohnzimmer