Wie macht man einen Trockenbaubogen?

 Wie macht man einen Trockenbaubogen?

Der anmutige Bogen ist ein Element der Architektur, das jeder Innenraum exquisit und einzigartig machen kann. Richtig gewähltes Bogen-Design wird es ermöglichen, zum dominierenden Punkt im Inneren zu werden und den gesamten Raum der Wohnung zu einer Einheit zusammenzufassen. Dieser Artikel wird Ihnen zeigen, wie man einen Trockenbaubogen ohne die Hilfe von professionellen Bauherren und unnötigen Investitionen macht.

Besonderheiten

Gewölbte Öffnungen erschienen im Osten. Nach und nach verlagerte sich die Angewohnheit, die Eingangstüren durch dekorative Bögen zu ersetzen, nach Europa. Diese Art des Dekorierens von Innengängen löst nicht nur das Problem der Raumerweiterung aufgrund fehlender Türen, sondern schmückt sie auch, verleiht dem Haus Eleganz und Stil, erfrischt das langweilige Interieur und verleiht ihm eine originelle Note.

Nachdem Sie die Entscheidung getroffen haben, den Bogen selbst zu machen, sollten Sie auf den Trockenbau achten, da diese Art von Material am leichtesten zu installieren ist (schließlich sind ernsthafte Kenntnisse und Erfahrungen erforderlich, um eine gewölbte Öffnung aus Gips oder Gips zu bilden).

Die Hauptvorteile von Trockenbaubögen sind:

  • geringes Gewicht des Materials (die Bögen können sowohl an den tragenden Wänden als auch an nicht sehr starken Trennwänden installiert werden, ohne die Zuverlässigkeit der Konstruktion zu fürchten);
  • schnelle und einfache Installation;
  • Qualität des Materials - weiches, aber haltbares Material ermöglicht es Ihnen, zu experimentieren, während Sie einen einzigartigen Raumstil schaffen und jede ausgefallene Form der Struktur ausschneiden;
  • Maskierungseigenschaft. Gipskartonkonstruktionen in Form von Bögen ermöglichen es, technische Einheiten und Kommunikation im Raum zu verbergen;
  • die Fähigkeit, die funktionellen Teile eines Raumes zu trennen;
  • Funktionalität (Trockenbauöffnungen können Nischen für Bücher oder Kerben für Zimmerpflanzen haben).

Arten

Der klassische Trockenbaubogen ist eine Struktur, die zwischen benachbarten Räumen installiert und an den Seiten der Säulen getragen wird.Umgehen Sie die übliche Version der Trockenbau, können Sie eine originelle asymmetrische Form schaffen, die das moderne Interieur betont.

Entsprechend der Form des Bogens werden die Bogenkonstruktionen in folgende Haupttypen eingeteilt:

  • römisch Die häufigste Art von Bogen. Sein halbrundes Gewölbe wird in jedem Interieur angebracht sein;
  • Quadrat oder Portal. Sie machen weite Öffnungen aus;
  • Trapezus. Auch oft bei der Gestaltung von breiten Öffnungen verwendet;
  • ellipsoidisch. Diese Ansicht ähnelt der klassischen Version, jedoch mit einem großen Radius an den Ecken;
  • gotisch Es hat ein eiförmiges Gewölbe mit einer spitzen Spitze;
  • Türkisch Künstlerisch-orientalisches Design;
  • Britisch Diese Form hat strenge Formen. Heben Sie die Raffinesse jedes Zimmers hervor;
  • Thai oder Semiarca. Asymmetrischer Bogen: Auf der einen Seite ist dies ein klassischer Bogen, auf der anderen Seite ein Bogen in Form eines Portals.

Moderne Designer, die die hervorragenden Eigenschaften des Materials nutzen, stellen völlig originelle Lösungen her. Innenbögen ergänzen die ursprünglichen Lichter und LED-Lichter. Diese Elemente spielen oft nicht nur eine dekorative Rolle, sondern schaffen auch zusätzliche lokale Beleuchtung in der Wohnung.

Zusätzlich zu den Beleuchtungskörpern gibt es einen weiteren Designtrick, der einem normalen Torbogen nützliche Eigenschaften hinzufügt: die Gestaltung von Regalen und Nischen sowohl innerhalb der Struktur als auch von den Außenseiten. Diese Idee hilft, zusätzlichen Komfort zu schaffen, denn auf den kleinen Regalen können Sie Souvenirs und Familienfotos perfekt platzieren.

Für verschiedene Räume

Gipsplattenbögen in einem modernen Interieur sind keine Seltenheit. Dieses architektonische Element ermöglicht es Ihnen, die üblichen Türen zu verlassen und gleichzeitig die Türöffnung fertigzustellen.

In kleinen Wohnungen ist oft nicht genug Platz für offene Türen. Aus diesem Grund, anstelle der Tür in der Öffnung montieren einen schönen und übersichtlichen Bogen. Solche Bögen spielen die Rolle einer bestimmten Grenze zwischen benachbarten Räumen, wo früher die Tür war, und erweitern tatsächlich den freien Raum.

Die Wahl zugunsten des Innenbogens und bei der Sanierungsplanung der Wohnung. Zum Beispiel kann der Ausgang von der Küche auf den Balkon oder vom Wohnzimmer in die Küche in Form einer eleganten Bogenöffnung angeordnet werden. Gleichzeitig ist es möglich, eine bevorzugte Blendenform zu wählen (Standardhalbkreis, Trapez oder andere asymmetrische Form).

Wenn es darum geht, den Raum zu erweitern, ist es sinnvoll, die Türen durch eine gewölbte Öffnung im Flur und im Flur zu ersetzen. Diese Räume dienen eher dazu, Räume miteinander zu verbinden, als für ein komfortables Leben in ihnen, so dass es nicht nötig ist, im Falle einer Türverweigerung Platz zu sparen.

Um den gesamten Stil in einer Wohnung zu erhalten, sind häufig alle Türen in Form von gleichartigen Bögen ausgeführt. Dies ist nicht immer der Fall, und manchmal wird das Innere sogar übermäßig belastet. Aber eine zwei-drei gewölbte Öffnungen von der gleichen Form des oberen Teils, von denen eine durch eine interessante Ausschneidung der Trockenbaukonfiguration an der Wand ergänzt wird - eine sehr stilvolle Annäherung.

Wie wähle ich?

Früher wurden die Bögen nur mit Palästen und Häusern von wohlhabenden Menschen geschmückt, aber heute kann dieses Element in jeder durchschnittlichen Wohnung und sogar in einem modernen Rahmenhaus gefunden werden (ein hölzerner Bogen wird zur Zeit der Herstellung des Rahmens des Hauses geschnitten).

Wenn Sie den Bogen auswählen, müssen Sie sich auf seine funktionale Komponente konzentrieren. Bögen sind aktiv und passiv. Passive oft in Wohngebäuden gefunden und führen die Funktion eines einfachen Übergangs, die Verbindung von zwei Räumen.Ihre Formen sind einfach: Ovale, Portale oder Standardrechtecke und Trapeze. Aktive Bögen beinhalten komplexere Formen und enthalten oft zusätzliche dekorative Elemente (Regale, Lampen).

Wenn entschieden wird, die gebohrte Metalltür durch einen Rundbogenbogen zu ersetzen, empfehlen Experten, ein fertiges Modell zu wählen, da in diesem Fall die Frage nach der Zuverlässigkeit der Konstruktion gestellt wird.

Herstellung

Um einen klassischen Bogen mit Ihren eigenen Händen zu machen, müssen Sie sein Gerät verstehen, verstehen, was die Feinheiten der Technologie der Konstruktion dieser Struktur sind.

Gekrümmte Bögen bilden den sogenannten Bogen des Bogens. Es kann eine gleichmäßige Beschichtung aufweisen oder aus verschiedenen Teilen bestehen, zwischen denen sich Lücken befinden. Es ist möglich, eine glatte Ausführung des Bogenbogens mit Hilfe eines dekorativen Reliefs, Verkleidungen an den Kanten des Bogens, wieder zu beleben.

Der Gipfel des Bogens wird der höchste Punkt seines Bogens genannt. Es dient als ein Kraftelement des Designs. Oft ist die Spitze auch ein ästhetisches Fragment (zum Beispiel in den Bögen des östlichen Typs). Er Tops gehen die Flügel hinunter, ihre Enden ruhen auf den tragenden Strukturen - Biegung, die auch dekorativ verziert werden kann.

Die Spannweite des Bogengewölbes ist die Breite des von den Flügeln gebildeten Bogens. Die Höhe dieses Bogens von der Mitte der Spannweite bis zur Spitze wird als Pfeil des Bogens bezeichnet. Ein gewölbter Gewölbe ruht normalerweise auf Pilasterhalbsäulen oder geht innerhalb der Wände, auf dem Spachtel ruhend (in diesem Fall wird dieses Gewölbe hängend genannt). Das Portal besteht aus einer Struktur, die sich unter den Pilastern und Flügeln befindet.

Die Spitze, Bogen und Portal sind die wichtigsten sichtbaren Komponenten der Struktur. Sie werden gewölbter Transom genannt. Normalerweise machen Framulu in einem einzigen Konzept aus. Der goldene Schnitt der Bogenstruktur wird durch das Verhältnis F = (A + B) / B bestimmt, falls B≥A. Dieses Verhältnis in der Architektur wird beobachtet, wenn A = 1/3 B ist. Der Bogen hat den korrekten goldenen Schnitt, wenn seine Höhe etwa drei Breiten der Bogenöffnung beträgt, ansonsten kann man die Höhe des Raumes verringern und den gesamten Innenraum ruinieren.

Detaillierte Berechnungen und Montage werden in den folgenden Abschnitten beschrieben. Aber neben den Installationsarbeiten lohnt es sich auch, sich auf die Veredelungsarbeiten zu konzentrieren: wie man es anordnet und um so besser, dass der Bogen schön aussieht.

Die folgenden Materialien können als Dekorationsmaterialien für die Bogenverzierung verwendet werden:

  • plastic moulding - kostengünstige und einfache Optionen;
  • Polyurethan ist ein flexibles Material, das verwendet wird, um Stuckformteile von Giebeln, Decken, Gesimsen zu bilden;
  • dekorativer Stein - ein künstliches oder natürliches natürliches Mineral. Am häufigsten bei der Konstruktion von Bögen in tragenden Wänden oder monolithischen Strukturen verwendet.

Was Plastik betrifft, ist alles einfach. Sie können im Geschäft fertige Profile kaufen, die gewünschte Farbe wählen oder selbst bemalen und ohne großen Aufwand aufleimen.

Es ist ziemlich schwierig, ein Dekor aus Polyurethan selbst herzustellen, weshalb sie oft auf fertige Dekorelemente zurückgreifen. Facing Stone - eine teure, aber elegante Option. Meist wird Schiefer oder Muschelstein verwendet. Künstliche Acrylsteinfliesen werden aus einem kleineren Gewicht hergestellt und können sogar für Gipskartonwände verwendet werden. Was die Textur betrifft, können hier, abhängig von dem Innenraum des Raums und persönlichen Vorlieben, unbehandelte Oberflächen und polierte Spiegelversionen von Fliesen verwendet werden.

Wie berechnet man?

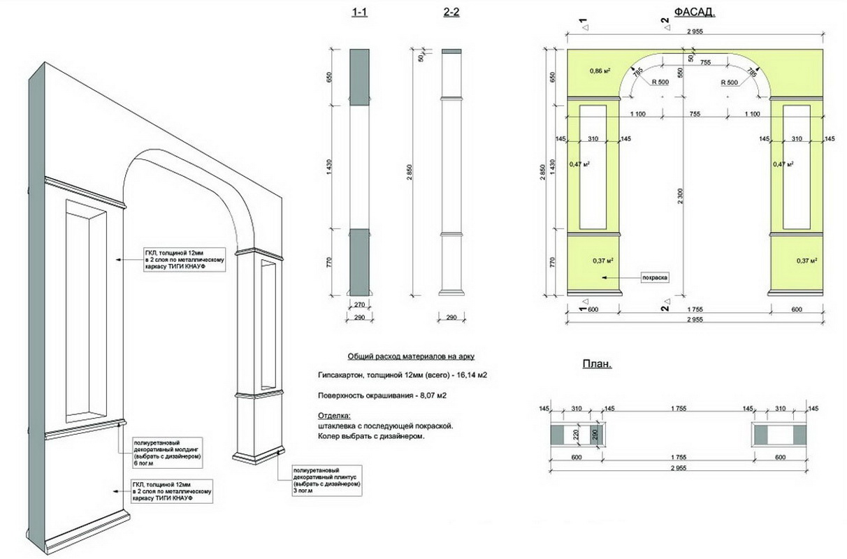
Wenn es eine Aufgabe gibt, einen Bogen unabhängig zu machen, nachdem die Form und Größe gewählt worden sind,Der Master muss zuerst das zukünftige Produkt berechnen, um die genauen Abmessungen der montierten Teile zu bestimmen. Keine Angst, denn die Berechnungen dieses Designs basieren auf einfachen Schulformeln. Bei Berechnungen wird empfohlen, parallel auf dem Millimeterpapier eine Skizze des zukünftigen Produkts zu zeichnen, nach der das Projekt auf die spezifizierten Dimensionen des Produkts skaliert wird. Als Schablone können Sie eine dicke Karton- oder Profilplatte aus Faserplatte verwenden. Durch Anbringen der Schablone an der Oberfläche des errichteten gekrümmten Daches ist es möglich, die Genauigkeit vorher durchgeführter Berechnungen realistischer zu bewerten und gegebenenfalls rechtzeitig zu korrigieren.

In diesem Artikel wird eine ungefähre Berechnung eines Standard-Rundbogengewölbes für eine gerade Türöffnung betrachtet.

Die wichtigsten 3 Parameter, die dem Master bekannt sein sollten, sind die Breite der Öffnung, die Höhe des zukünftigen Bogens und die Tiefe der Wand. Es gibt zwei Hauptmethoden der Berechnung: empirisch und mathematisch. Der Meister entscheidet, welche von ihnen für ihn bequemer ist. Die Berechnung und Zeichnung des Bogenumfangs muss auf Papier in einem Maßstab durchgeführt werden, der 30% kleiner ist als der tatsächliche Umfang.

Wenn eine empirische Berechnung erforderlich ist, messen Sie zunächst die Türöffnung und übertragen Sie sie auf ein Blatt Papier. Verbringen Sie die Symmetrieachse der Türöffnung. Nachdem Sie den Kompass genommen haben, legen Sie sein Bein auf den Achsenpunkt und machen Sie mehrere verschiedene Kreise. Wählen Sie die am besten geeignete, und der Rest wird mit einem Kaugummi entfernt.

Bei der mathematischen Berechnung des Bogenradius wird der Satz des Pythagoras verwendet:

R = L2 + (R2 - H2)

R = L2 + (R - H) 2

Konvertieren Sie die Formel, erhalten Sie die folgende Form:

R2 = L2 + R2 - 2HR + H2

Subtrahieren R erhalten:

L2 + H2 - 2HR = 0

Nach der folgenden Konvertierung erhalten:

2RH = L2 + H2

Der Radius von R am Ende:

R = (L2 + H2) / 2H

Wo R der Radius des Kreises ist, ist L die halbe Sehne des Bogens (die Größe dieser Sehne ist gleich der Länge des Bogenlumens). H - Hubhöhe.

Aufgrund der Tatsache, dass der hergestellte Bogen viele Fragmente enthält (um sie zu formen, sollten Sie eine Platte mit bestimmten Abmessungen nehmen), müssen Sie zuerst die Abmessungen des Elements berechnen, das aus der Platte mit den ausgewählten Abmessungen hergestellt wurde. Die Berechnung basiert auf der Umkehrung. Es ist notwendig, die maximale Länge des Teils zu berechnen, die aus dem vorhandenen Brett mit einer bestimmten Breite gemacht wird, angesichts des bereits bekannten Radius. Unter Verwendung der vorherigen Formeln, in denen alle Beziehungen bereits bekannt sind, müssen wir die folgende Gleichheit ableiten:

L2 = 2RH - H2

HR - H2

Nachdem die Berechnung vollständig durchgeführt wurde und das Projekt in einer Reihe steht, wird es möglich sein, visuell darzustellen, wie die Struktur aussehen wird. Bei Bedarf können Sie die Parameter der Öffnung erneut messen und die Berechnungen leicht korrigieren. Ändern Sie die Zeichnung, bis das Aussehen vollständig dem Master entspricht.

Wie schneidet man?

Wenn das Projekt fertig ist, fahren Sie mit dem Skalieren des Produkts auf Trockenbau fort. Unter Beibehaltung der Proportionen des Produkts legen sie das Bogenmodell in den angegebenen Parametern an. Schneiden Sie ein Stück Trockenbau auf die gewünschte Größe. Dazu wird an der gezogenen Linie ein spezielles Messer ausgeführt und mit den Händen die zusätzlichen Trockenbaustücke abgebrochen.

Es ist notwendig, zwei identische Blätter vorzubereiten. Einer von ihnen ist auf einer flachen Oberfläche platziert, eine Linie wird durch das Zentrum gezogen. 2-3 cm höher als die Unterseite des Blattes markieren und einen Bolzen oder eine Schraube befestigen. Ein Bolzen wird auf ein Seil gelegt, dessen freier Teil zu einer Schlinge zusammengezogen wird und in die ein Bleistift gesteckt wird. Mit diesem System (ähnlich dem Kompass) können Sie eine flache Biegungslinie des Bogenradius zeichnen. Nachdem sie den gewünschten Radius bestimmt haben, ziehen sie die Schnur fest und zeichnen mit einem Bleistift eine Biegelinie.

Danach wiederholen Sie auf dem zweiten Blatt Trockenbau das Markup in ähnlicher Weise. Um unnötige Aktionen zu vermeiden, können Sie den Rohling auf ein Blatt schneiden, auf ein anderes Blatt legen und einen Stift um die Kontur des Produkts ziehen. So werden sich zwei identische Vorbereitungen ergeben. Es ist am besten, Produkte mit speziellen Scheren für Metall zu schneiden, sorgfältig alle unnötigen abschneiden.

Installation

Um den Trockenbaubogen in der Tür zu installieren, benötigen Sie:

  • Trockenbau-Bögen;
  • Metallprofile;
  • Dübel;
  • selbstschneidende Schrauben von zwei Arten: 3,5 × 25 mm; 4,2 × 13 mm;
  • Scheren für Metall;
  • Zangen;
  • Schraubendreher;
  • Perforator;
  • Rolle mit Nadeln;
  • Band oder Level bauen;
  • einfacher Bleistift;
  • Spachtelmasse;
  • Schleiffell;
  • Ecken für Wände;
  • Grundierung;
  • Mantelmaterial (optional).

Bevor Sie die Rahmenkonstruktion anbringen, sollten Sie eine Türöffnung vorbereiten. Zuerst müssen Sie den Türrahmen entfernen und die Tür nach oben und seitwärts stanzen, um den Platz für den Bogen zu erhöhen. Die Oberflächen der entstehenden Öffnung werden sorgfältig gereinigt, grobe Unebenheiten geglättet, Staub und Schmutz entfernt.

Es ist notwendig, die Schritt-für-Schritt-Installationsanweisungen zu befolgen, dann wird die Lichtbogenstruktur sicher installiert und in der Öffnung gesichert. Zuerst, im oberen Teil der Öffnung mit Dübeln befestigen Sie die Führungen des Metallprofils. An den Wänden der Öffnung installieren Sie auch ähnliche Führungen (bis zu der Ebene, wo die gekrümmten Teile des Bogens enden).

Danach bilden die Metallprofile das Produkt in Form eines Bogens. Entlang der Kanten des Profils machen Sie äquidistante Schnitte mit speziellen Scheren für Metall und biegen Sie das Produkt, mit dem Fokus auf die fertigen Muster der Trockenbau. In ähnlicher Weise bilden zwei derartige gekrümmte Profile für jede Seite.

Das gebogene Profil sollte folgendermaßen installiert werden: Das Profil wird mit den Dübeln vertikal an den Führungen befestigt und mit selbstschneidenden Schrauben an der Trockenbauwand befestigt. Um den Rahmen zuverlässiger zu montieren, werden mehrere Teile des Profils zwischen den Bögen innerhalb des Bogens eingefügt.

Wie man sich verbiegt?

Der nächste Schritt bei der Installation des Bogens ist die Befestigung des bogenförmigen Teils in der Struktur. Nehmen Sie dazu ein Trockenbaublatt. Schneiden Sie den Streifen vorsichtig entsprechend der Breite des Bogeninnenraums ab, länger als seine Innenfläche.Bei der Messung der Länge ist nicht überflüssig, einen Rand von etwa 10-15 cm zu lassen.

Bend Trockenbau kann mit normalem Wasser sein. Befeuchten Sie dazu den Boden der Trockenbauwände und durchstechen Sie ihn mit einer Nadelrolle. Als nächstes müssen Sie dieses Element biegen und im Bogen befestigen. Dies geschieht mit Klebeband und bleibt einige Zeit trocknen. Selbst gemachter Bogenrahmen bereit.

Wie zu Kitt?

Nachdem der Bogenrahmen montiert ist, alle Elemente sicher befestigt sind und das Innere vollständig trocken ist, können Sie mit der Verarbeitung und dem Erscheinungsbild der Struktur fortfahren.

Zu Beginn wird die gesamte Oberfläche des Bogens mit Spezialpapier geschliffen, beseitigt alle Unregelmäßigkeiten und entfernt Staub vom Schleifpapier. Die Oberfläche des Bogens sollte glatt sein. Die verbleibenden Nähte der Installation müssen mit Kitt versiegelt werden. Bevor Sie die Nähte ausfüllen, müssen Sie die vorbereiteten Eckprofile installieren (sie geben den Ecken des Bogens Steifigkeit und Schutz vor Verformung).

Diese Ecken können oben auf dem Kitt befestigt werden, aber dann von oben ist es notwendig, eine weitere Schicht von Kitt anzubringen, alle Gelenke auszurichten. Nachdem der Kitt getrocknet ist, die Oberfläche wieder mit Schmirgelpapier ebnen. Entfernen Sie Staub und grundierten den gesamten äußeren Bereich des Bogens.Wenn der Boden trocken ist, führen sie den endgültigen Kitt der Struktur aus und schleifen Unregelmäßigkeiten.

Wie male ich?

Wenn alle schmutzigen Arbeiten erledigt sind, sollten Sie mit der Dekoration fortfahren.

Bei der Auswahl eines Designs sollte das Gesamtkonzept des Interieurs und seines Stils berücksichtigt werden. Die schnellste und billigste Art der Veredelung ist das Streichen der Struktur mit Wasserfarbe. Dieses Finish ist sehr praktisch, weil es im Falle einer Verschmutzung der Wand mit einem feuchten Tuch abgewischt werden kann, außerdem wird der Bogen sehr widerstandsfähig gegen Kratzer sein. Diese Art von Finish ist auch gut, denn wenn Sie möchten, können Sie den Bogen schnell selbst neu streichen.

Optionen im Innenraum

Bogengewölbe nehmen einen besonderen Platz unter den architektonischen Details ein, wenn sie einen Raum verzieren. Sanfte Linien bringen Gemütlichkeit in jeden Raum und unterstreichen den raffinierten Stil. Wenn die Wahl zugunsten eines Bogens für das Innere getroffen wird, ist es notwendig, ein solches Design zu wählen, so dass das gewölbte Design organisch in den Raum des Raumes passt und als ein gewisses Highlight im Innenraum dient.

Die Bögen in Räumen mit halbkreisförmigen Fensteröffnungen sehen gut aus.Gewölbestrukturen werden den Innenraum vorteilhaft ergänzen, in dem sich Türen mit einer halbrunden Spitze befinden. Gewölbte Öffnungen werden nicht nur in Wohnräumen und Fluren verwendet. Der Küchenbereich ist ebenfalls mit Bögen dekoriert. Hier dienen sie nicht nur als Dekorelement, sondern erfüllen auch ihre funktionale Rolle (Lagersysteme, Nischen in Form von Bögen).

Das Design des mit Glasregalen verzierten Bogens wirkt authentisch. Wenn es der Raum erlaubt, können schwerelose Glasregale durch massive aus Stein oder Holz, Sperrholz ersetzt werden. Sie dienen als ein großartiger Ort für Souvenirs und Fotos.

Die Lichtrahmung des inneren und äußeren Teils des Bogens sieht interessant aus. Wo es nicht genug Licht gibt, wird es besonders nützlich sein. Dies gilt für die meisten Flure und Flure. Designer empfehlen, für diese nicht standardmäßigen Formen von Lampen zu verwenden, um dem Raum eine zusätzliche Raffinesse zu geben. Bei gewölbten Öffnungen mit leichten Elementen sollten Sie sich nicht auf das Bogenmaterial beschränken, da die Hintergrundbeleuchtung sowohl beim Gipskartonbogen als auch bei der Konstruktion von Holz vorteilhaft ist.

Am harmonischsten ist der Bogen mit absoluter Symmetrie oder glatten, glatten Linien bei der anfänglichen Wahl der asymmetrischen Form. Dieser Bogen ist für jedes Interieur geeignet. Wenn es sich lohnt, die Form des Bogens im Stil des Jugendstils zu wählen, sollten Sie die gekrümmten Bögen betrachten. In der klassischen Version des Innenraums ist ein solcher Bogen nicht geeignet. Aber hier wäre es angebracht, dieses Element mit viel Dekor aus Gipsornamenten in Form von Säulen und komplizierten Locken zu betrachten.

Acre in Form einer Ellipse oder eines breiten Portals hat eine strenge, aber edle Erscheinung. Es ist einfach durchzuführen, erfordert keine häufigen Änderungen und ist in jedem Raum geeignet.

Der Bogen im Inneren eines modernen Raumes ist jedoch ein eher umstrittenes Element. Manche schätzen das Gewölbe als Überbleibsel vergangener Jahrhunderte. Andere loben dieses elegante Detail und hoffen, dass es nie aus der Mode kommt.

Und da sie nicht über Geschmack streiten, ist es auf jeden Fall nicht wert, von diesem Design sofort abzulehnen. Selbst in der modernen Welt der Designer ist der Bogen kein geschmackloses, obsoletes Fragment einer Wohnung, wenn es mit dem allgemeinen Stil des Raumes kombiniert wird. Der Bogen ist längst zum Klassiker geworden.Und nur seine erfolglose Anwendung kann die Klassiker verderben.

Wie man einen Bogen aus Gipskarton macht, siehe das folgende Video.

Kommentare
 Kommentarautor

Die Küche

Kleiderschrank

Wohnzimmer